Unbeendet Küche in U-Form im Neubau

sp16

Mitglied
Beiträge
16
Hallo,

ich möchte hier meine Planung einstellen. Ich möchte im Neubau eine Küche in U-Form und habe mich bereits im ALNO -Planer ausprobiert.

Diesen finde ich sehr komplex, so dass ich mich für die Planung entschuldigen muss und gern weitere Tipps versuche umzusetzen.

Beste Grüße

Stefan


Checkliste zur Küchenplanung von sp16

Anzahl Personen im Haushalt : 2
Davon Kinder? : keine
Körpergrössen aller Hauptbenutzer (wegen Arbeitshöhe ) in cm : 182, 185
Art des Gebäudes? : Neu-/Umbau, Planänderungen nicht möglich
Brüstungshöhe des Fensters (in cm) : 85, nein 91 cm
Fensterhöhe (in cm) : 143
Raumhöhe in cm: : 275
Heizung : Fussbodenheizung
Sanitäranschlüsse : variabel an aktueller Wand = Wand zum Bad
Ausführung Kühlgerät? : Integriert im Hochschrank (60cm)
Kühlgerät Größe : noch unbekannt
Ausführung Tiefkühl (TK)-Gerät : Im Kühlschrank bis 2 Schubladen unten
Dunstabzugshaube? : Abluft, am 0907.01.2014 bekannt gegeben, dass es Umluft sei
Hochgebauter Backofen ? : Wenn möglich
Hochgebauter Geschirrspüler ? : nein
Kochfeldart? : Induktion
Kochfeldbreite ca. (in cm)? : 90
Spülenform: : Noch nicht festgelegt
Weitere geplante Heißgeräte : Dampfgarer ohne Wasseranschluß, Wärmeschublade
Küchenstil? : grifflos
Sitzmöglichkeit in der Küche / im Küchenbereich als : Keine
Sitzmöglichkeit: Für wieviel Personen? : nein
Sitzmöglichkeit: Tisch - wenn gesonderter Tisch oder offene Küche : Wird nach Bedarf neu gekauft
Gewünschte o. vorhandene Tischgröße : 180 x 90
Wofür soll der Sitzplatz in der Küche genutzt werden? Wie häufig? : kein Sitzplatz
Welche Arbeitshöhe ist angedacht (in cm)? : 90
Was steht auf der Arbeitsplatte oder soll dort stehen? : Kaffeevollautomat, Messerblock, Obstschale
Welche weiteren Küchenmaschinen müssen in der Küche untergebracht werden? : Wasserkocher, Schneidemaschine (z. B. in Schublade), Mixer
Was soll in der Küche außer den Standards untergebracht werden? : Geschirr komplett (nichts in Ess-/Wohnzimmer)
Welchen Stauraum gibt es sonst noch? : Keller
Was/wie wird gekocht? (Alltagsküche, Menüs, Snacks usw) : Alltagsküche
Wie häufig wird gekocht? : (fast) täglich 1x warm
Wird alleine gekocht? Oder auch gemeinsam? Mit und für Gäste? : allein bzw. zu zweit
Was stört an der bisherigen Küche und was soll die neue Küche unbedingt können? Warum? : sollte modern und praktisch sein
Steht schon ein Küchenhersteller fest oder wird bevorzugt? : nein, evtl. Nobilia
Steht schon ein Gerätehersteller fest oder wird bevorzugt? : nein
Preisvorstellung (Budget) : bis 10.000,-
__________________________Im Threadverlauf ergänzt:
Eingescannter Grundriss:

126523d1384944223-kueche-in-u-form-im-neubau-grund_kueche.jpg
 

Anhänge

  • PLAN1.POS
    5 KB · Aufrufe: 189
  • PLAN1.KPL
    3,9 KB · Aufrufe: 193
Zuletzt bearbeitet von einem Moderator:
AW: Küche in U-Form im Neubau

Hallo
Bitte lies noch mal obenstehende Box und folgen den Links; wenn Du alle benötigten Infos im Eingangsbeitrag ergänzt hast, helfen wir Dir gerne.
 
AW: Küche in U-Form im Neubau

Hallo Vanessa,

ich muss den Grundriss leider erst einscannen. Fehlt dann noch mehr? Sind die Daten des Alno -Küchenplaners vollständig?

Viele Grüße

Stefan
 
AW: Küche in U-Form im Neubau

Optimal wäre es, wenn du zu deiner Planung noch ein paar Bilder und den Grundriss (unter Planen "Strg+Alt+S" drücken) einstellen könntest.

Was soll noch in dem Raum untergebracht werden. Existieren die Möbel bereits. Wenn ja, dann bitte die Maße dazu.

Wieso sind Planänderungen, z.B. die Verlegung von Wasser, nicht mehr möglich, wenn es sich um einen Neubau handelt?

Mit Dampfgarer und Wärmeschublade finde ich deine Preisvorstellung sehr sportlich, oder meinst du damit nur die Möbel?
 
AW: Küche in U-Form im Neubau

In dem ganzen Raum soll noch der Esstisch und der Wohnbereich untergebracht werden. Die Möbel existieren noch nicht.
Der Neubau ist ziemlich weit fortgeschritten, aber wahrscheinlich könnte man Wasser- und Stromanschlüsse noch ändern.

Grüße

Stefan
 

Anhänge

  • grundriss.jpg
    grundriss.jpg
    19,8 KB · Aufrufe: 214
  • 3D_2.jpg
    3D_2.jpg
    50,8 KB · Aufrufe: 352
  • 3D_1.jpg
    3D_1.jpg
    42 KB · Aufrufe: 613
  • grund_küche.jpg
    grund_küche.jpg
    77,8 KB · Aufrufe: 1.079
AW: Küche in U-Form im Neubau

Du hättest es einfacher mit der Planung, wenn Du den ganzen Raum im Alno darstellen würdest und dort auch gleich möblierst. Der Raum ist nicht üppig, da will es gut überlegt sein, was man wie dort unterbringt.


Sind die 90cm Arbeitshöhe ausgiebig getestet worden? - Ist das Fenster schon drin/bestellt? Die Brüstungshöhe ist für so grosse Leute wie ihr etwas niedrig. Ich bin 165cm und arbeite auf 93cm - ich komme aber auch mit den 98cm bei meiner Schwester gut klar.

Arbeitshöhe & Rastermasse
--Zum Vergrößern bitte hier klicken...
full

Typische Korpushöhen für 5-rasterig: 65cm, 70 cm, 72 cm, 75cm.
Typische Korpushöhen für 6-rasterig: 78cm, 79,8cm, 86,4cm
Zu Nolte im Vergleich zu anderen Herstellern mit nur drei Zentimeter höherem Korpus (zB Häcker ):
Der größte und auch für Laien sichtbare Unterschied ist das Raster und das spricht eindeutig für den 78 cm Korpus . So kann eine Stauraumoptimierung erreicht werden.
Selbst größere Töpfe bekommt man in 26cm hohen Auszügen unter, bei 30cm Auszügen hast du einfach 4cm mehr Luft, also ungenutzten Stauraum dazu.
In die hohen 39cm Auszüge bekommst du dafür zB Flaschen, Mixeraufsätze, Cornflakesschachteln, die aber für 30cm Auszüge wiederum zu hoch sind.
Und dein Besteck braucht auch keine 15cm hohe Schublade, 13cm reichen.
--Zum Vergrößern bitte hier klicken...

Wenn ihr euch also nicht in eine spezielle Noltefront verliebt habt, solltet ihr vielleicht nochmal darüber nachdenken.
In Korpushöhen - Rastermaße - Auszugs-Innenmaße - Stauraumplanung sind diverse Hersteller mit ihren Standardkorpushöhen verlinkt.
Wenn man dann z. B. einen 78cm hohen Korpus wählt, ergeben sich folgende Maße
- 78 cm Korpushöhe
- 4 cm APL -Höhe
- 12 cm Sockelhöhe
-----------------
= 94 cm Gesamthöhe=Arbeitshöhe
ARBEITSHÖHE ermitteln​


  • [*=1]z. B. Bügelbrett nehmen und in verschiedenen Höhen Probeschnippeln und messen, wenn es einem am bequemsten erscheint.
    [*=1]Höhe Beckenknochen sollte nicht überschritten werden.

Sobald man anfängt die Schultern hochzuziehen, ist es zuhoch; Wenn man sich vornüberbeugt, zu niedrig.​
________________________________________________________________



Eckschränke: Lies mal hier über Tote Ecken und deren Vorzüge:
Tote Ecken gute Ecken

Und hier noch ein nettes Bild zu dem Thema :kiss: -
-
280820092305-jpg.58778



 
AW: Küche in U-Form im Neubau

Hallo Vanessa,

danke für die vielen Hinweise. Arbeiten wir sie mal Schritt für Schritt ab.

Den ganze Raum werde ich am WE mal im KPL darstellen. Dieser geht noch viel weiter, wurde von mir nur noch nicht so angelegt.

Die Arbeitshöhe wurde noch nicht ausgiebig getestet. Das Fenster ist schon drin und kann nicht mehr geändert werden.

In eine spezielle Front haben wir uns nicht verliebt. Ich habe nur so meine Vorstellungen...

Die toten Ecken muss man natürlich nutzen und ich werde es umplanen.

Beste Grüße

Stefan
 
AW: Küche in U-Form im Neubau

NEIN, tote Ecken muss man nicht nutzen! Die lässt man tot, wenn man sie nicht von der anderen Seite wie bei eurem Halbinselplan bestücken könnte.
 
AW: Küche in U-Form im Neubau

Guten Morgen!

Ich habe den Raum jetzt nch mal vollständig dargestellt. Auf der freien Fläche kommt das Sofa hin.

Evtl. kann man es sich somit besser vorstellen.

Grüße
Stefan
 

Anhänge

  • PLAN1.KPL
    3,9 KB · Aufrufe: 184
  • PLAN1.POS
    8,1 KB · Aufrufe: 192
  • 3D_3.jpg
    3D_3.jpg
    41,4 KB · Aufrufe: 264
AW: Küche in U-Form im Neubau

Ein großes Problem ist ja wohl das Fenster planlinks mit Brüstungshöhe 85 cm.

Was für eine Art Fenster kommt da rein? Kann man jetzt schon feststellen wieviele cm von Brüstung bis Unterkante Fensterflügel sind, so dass der gerade noch öffnen kann?

Am besten wohl gleich die Fensterbank weglassen und Fensternische mit APL ausfüllen.

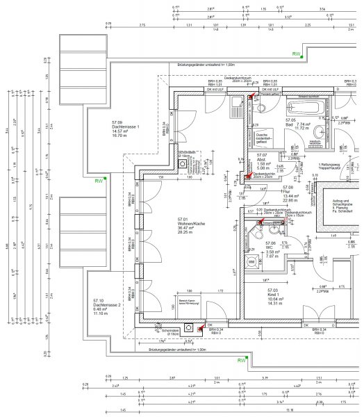
Es wäre sinnvoll den Grundriss nochmal einzuscannen und dann als PDF zu speichern. So kann man vieles nur raten und nicht lesen.

Der Kaminschacht im Küchenbereich .. soll da noch ein Ofen oder so kommen?

Sanitäranschlüsse an aktueller Wand? An der Fensterwand planlinks oder an der Trennwand zum Bad planoben?

Welche Vorstellungen bestehen denn bezüglich Sofa etc.? Eher Einzelsofa oder L-Sofa oder wie?

In der jetzigen U-Planung soll ein kleiner DG im Hängeschrank verwendet werden?

Wirklich eine DAH mit Abluft? Wo soll die Abluft rausgeführt werden? Gibt es da schon ein Loch für? Durchmesser mind. 150 mm?
 
AW: Küche in U-Form im Neubau

Hallo,

ich habe jetzt die Küche in einem Küchenstudio planen lassen.
Es ist eine Bauformat Cube 130, grifflos in weiß hochglanz mit Front Rhodos. Aktuell liegt ein Angebot mit einer "normalen" APL vor, der Aufpreis für Silestone beträgt 3000 Euro. Die Rückwand bekommt noch einen Fliesenspiegel und wird nicht mit Glas (wie auf dem Bild) eingebaut.
Die E-Geräte sind allesamt von der Firma Bosch .

Einbaubackofen HBG36B650
Induktions-Kochstelle Glaskeramik PIK975N24E
Wandesse, 90 cm, weiß, Schräg-Essen-Design DWK09G620
Geschirrspüler XXL 60 cm, vollintegrierbar SBV69N00EU
Dampfgarofen HBC26D553
Einbau-Wärmeschublade, Edelstahl, 141 mm hoch HSC140P51
Einbau Kühlschrank VitaFresh Comfort KIF20A51
Einbau-Gefrierschrank Comfort GID14A65

Edelstahlspüle Blanco FLOW XL 6 S-IF
EVENES, Küchenarmatur, Spültischmischer Noblesse
Abfalltrennsystem Franke Sorter 300-45 Trio


Das Küchenstudio hat mir mal ein Bild per Mail zugeschickt, welches aber noch nicht die letzte Version zeigt. Daher habe ich es mal mit ein paar kurzen Beschriftungen versehen.

Der aktuelle Küchenpreis beträgt 18000 Euro inkl Einbau und Anschluss. Verrechnet man die APL mit der Silestone, kommen nochmal 3000 Euro drauf. Der Verkäufer hat mir die ganzen Hintergrunde der Blockverrechnung usw. erklärt und ich habe nicht das Gefühl, dass noch viel Handlungsspielraum besteht. Daher wollte ich euch mal fragen, wo man hier evtl. ansetzen kann. Er wollte mir nochmal den Preis mit einer Front mit Fuge kalkulieren.

Danke & Beste Grüße

Stefan
 

Anhänge

  • planung2.jpg
    planung2.jpg
    85,6 KB · Aufrufe: 567
  • planung1.jpg
    planung1.jpg
    69,3 KB · Aufrufe: 222
AW: Küche in U-Form im Neubau

Leider habe ich noch keine Antworten erhalten, so dass ich gern noch diese Fragen von Kerstin beantworte.

- Die Brüstungshöhe des Fensters beträgt ca. 91cm. Der untere Teil des Fensters ist fest (ca. 30cm hoch), der obere Teil geht zu öffnen. Somit geht es über der Armatur auf.

- Die APL wird bis zum Fenster reingesetzt. Es wird keine Fensterbank verbaut.

- Sanitäranschlüsse sind an der Trennwand zum Bad.

- Es kommt kein Kamin in die Küche. Das ist nur eine Vorrichtung.

- Das Sofa wird braun, L-Form und steht an der gegenüberliegenden Wand im Wohnbereich.

- Die DAH wird mit Umluft betrieben

- Grundriss habe ich eingefügt.

Grüße

Stefan
 

Anhänge

  • Grundriss.jpg
    Grundriss.jpg
    60,4 KB · Aufrufe: 221
Zuletzt bearbeitet von einem Moderator:
AW: Küche in U-Form im Neubau

Leider kann man die Zahlen auf dem Grundriss nicht lesen. Als PDF wäre das sicherlich besser. EDIT: erledigt, der Plan weiter oben läßt sich besser lesen)

Die Küchenplanung gefällt mir gar nicht. Hast du einen Dampfgarer unter der APL schon mal bedient? Ich halte die Position für nicht so gut.

Alles schmale Unterschränke, keine breiten Schränke, dazu mal:
Zum Angucken, wie Stauraum genutzt werden kann:
Gerbera mit ganz vielen übertiefen Auszügen
Stauraumnutzung von doppelkeks und die Küche dazu
Küche von Moiree
Küche von KerstinB und nach dem Umzug (hier kann man gut sehen, was man alles alleine in Schubladen unterbringen kann)
Küche von Jelena
Küche von Ulla
Nekos Küche
Darlas Küche
Magnolias Küche
Vanessas Küche
Hemerocallis Küche
Littlequeenies Küche
Angelikas Küche
Küche von atmos
Küche von biggimaus
Küche von Bodybiene
Küche von Missjenny
Küche von träumerle
Muckelinas Küche (interessante Variante mit aufgesetzten Griffen)
Mr. Woms (Esthers) ;-) Schreinerküche
Küche von Ullmann

Dann viele Glasschränke, da kann man eigentlich nur Schönes dahinterstellen.

Reicht euch denn der Stauraum?

Den Kaminschacht an sich wird es aber geben? Gibt es eine Wahrscheinlichkeit, dass da mal ein Kamin angeschlossen wird? Das verengt ja schon mit dem Schacht den Durchgang dort.
 
AW: Küche in U-Form im Neubau

Mit 182 und 185 cm seid ihr ja nicht klein .. sind die 91 cm Arbeitshöhe nicht etwas zu niedrig? Habt ihr mal die Optimalhöhe ermittelt?
ARBEITSHÖHE ermitteln
3 Methoden haben sich da etabliert:
- Ellbogen abwinkeln und von dort 15 cm runtermessen
- Höhe Beckenknochen messen
- z. B. Bügelbrett nehmen und in verschiedenen Höhen Probeschnippeln und messen, wenn es einem am bequemsten erscheint.
Idealerweise ergeben alle 3 Methoden ca. denselben Wert
Ausführlicher in Optimale Arbeitshöhen beschrieben.


Und .. vorbehaltlich der Geräte .. gut ist immer folgendes, um den Preis schneller abschätzen zu können:

Bilder der Planung: xx
Gesamtpreis: xxx
davon ermittelter Internetpreis Geräte (mittlerer Preis zuzügl. Versandkosten): xxx
Korpushöhe: xxx
Frontmaterial: xxx
Wangenmaterial: xxx
APL-Material: xxx
Das wäre dann übersichtlich.

So pauschal .. mir erscheinen die 18000 Euro aktuell recht hoch.
 
AW: Küche in U-Form im Neubau

Ich habe mal umgeplant, was mir nämlich an der Planung auch nicht gefällt. Man will die Terrasse von der Küche aus nutzen. Da wird man am ehesten mal an den Kühlschrank wollen oder Geschirr holen. Da steht dann die Terrassentür vor dem Kühlschrank.

Daher jetzt von planlinks wie folgt, dabei alles im 6er Raster, was ja zur Bauformat paßt:

- 30er Auszugsunterschrank insbesondere, Öle/Essige, und was sonst noch höher ist.
- 90er Auszugsunterschrank Raster 1-1-2-2, Kochfeld linksbündig, damit es quasi mittig vor dem dortigen Stück Wand ist. Hier Kochbesteck, Töpfe, Pfannen, Auflaufformen etc.
- 100er Auszugsunterschrank Raster 1-1-2-2 ... Küchenhelfer, Messer, Folien usw. Gewürze, typische Kochvorräte, Schüsslen für Vorbereitungsarbeiten etc.
Hier dann die APL in die Fensterlaibung laufend. Dadurch entsteht hier der ideale Vorbereitungsplatz mit viel Fläche zwischen Spüle und Kochfeld.
- tote Ecke
- 30er MUPL f. Bio/Restmüll, unten Stauraum:
full

- 50er Spülenschrank (60er wenn es bis zu dem Mauervorsprung reicht). Oben gekürzter Auszug für küchentypische Putzmittel, unten Gelber Sack Müll / Altpapier.
- 60er GSP
- Heißgeräte-Hochschrank ... hier im Auszug unten auch Platz für Vorräte, z. B. Getränke
- Kühlschrank

Dann eine Halbinsel, Richtung Küche ein 30er Drehtürschrank, hier kann man gerade nicht benötigte Backbleche etc. senkrecht einstellen. Daneben dann ein 90er Auszugsunterschrank in Übertiefe, insbesondere für Besteck, Geschirr wie Teller, Tassen, Serviergeschirr usw.

Zum Essplatz hin dann 2x60er tiefenreduziert mit Glastür für gute Gläser und schöne Stücke.

Hängeschränke in der Küche insbesondere Tupper, Tees/Kaffee etc. in den geschlossenen Hängeschränken und wenn denn Glas sein soll, dann Gläser, Tassen etc, also das, was etwa hübscher ist, hinter der Glasfläche.
 

Anhänge

  • sp16_20140107_kb1-alt_Ansicht5.jpg
    sp16_20140107_kb1-alt_Ansicht5.jpg
    130,8 KB · Aufrufe: 172
  • sp16_20140107_kb1-alt_Grundriss.jpg
    sp16_20140107_kb1-alt_Grundriss.jpg
    62,7 KB · Aufrufe: 186
  • sp16_20140107_kb1-alt.POS
    13,4 KB · Aufrufe: 206
  • sp16_20140107_kb1-alt.KPL
    4,1 KB · Aufrufe: 157
  • sp16_20140107_kb1-alt_Ansicht4.jpg
    sp16_20140107_kb1-alt_Ansicht4.jpg
    150,1 KB · Aufrufe: 181
  • sp16_20140107_kb1-alt_Ansicht3.jpg
    sp16_20140107_kb1-alt_Ansicht3.jpg
    153,8 KB · Aufrufe: 193
  • sp16_20140107_kb1-alt_Ansicht2.jpg
    sp16_20140107_kb1-alt_Ansicht2.jpg
    147 KB · Aufrufe: 186
  • sp16_20140107_kb1-alt_Ansicht1.jpg
    sp16_20140107_kb1-alt_Ansicht1.jpg
    138 KB · Aufrufe: 186
AW: Küche in U-Form im Neubau

Hallo!
also die Arbeitshöhe ist ein Kompromiss, geht aber bei dem Fenster nicht anders, wenn man keine unterschiedlich hohen APLs will.
links neben dem Kühlschrank ist jetzt auch ein 30er Schrank geplant, siehe meine Beschriftungen.
den Dampfgarer unten einzubauen ist ebenfalls ein Kompromiss, da ich keine 60er Hochschränke habe. Aber beim Dampfgaren stellt man es ein und nimmt es raus, also muss man 2x bücken in Kauf nehmen.
Glasschränke gibt es übrigens keine, das wurde schon überarbeitet.

Die Rechnung zu den E-Geräten stelle ich morgen ein

Grüße
stefan
 
AW: Küche in U-Form im Neubau

Ich habe auch einmal geplant.

Beginnend planoben links:
Blende
Kühlschrank
GSA
30er MUPL
Spüleneckschrank, damit du an die Wasseranschlüsse kommen kannst

sp16_Mela_Spüle.jpg

planrechts, ab toter Ecke, in Übertiefe 75 cm:
80er Auszug 1-1-2-2
90er Auszug 1-1-2-2 mit Kochfeld
60er Auszug 1-1-2-2


obendrüber OS mit Unterbauhaube oder Lüfterbaustein

zum Abschluss:
HS mit den gewünschten Geräten
Wange oder Blende

sp16_Mela_Herd.jpg
 

Anhänge

  • sp16_Mela_Grundriss.JPG
    sp16_Mela_Grundriss.JPG
    38,3 KB · Aufrufe: 183
  • sp16_Mela_Draufsicht.jpg
    sp16_Mela_Draufsicht.jpg
    44,2 KB · Aufrufe: 177
  • Sp16_Mela.KPL
    3,9 KB · Aufrufe: 167
  • Sp16_Mela.POS
    9,5 KB · Aufrufe: 179
AW: Küche in U-Form im Neubau

Mela, das geht nicht ganz auf so, die planrechte Wand hat nur 332 cm bis zu dem Vorsprung. Und planlinks nur 344 cm.

@Stefan ... in meiner Variante könnte man wenigstens die Halbinsel in Idealhöhe ausführen.
 
AW: Küche in U-Form im Neubau

Kerstin,
ich habe den Grundriss von sp16 genommen und nicht weiter kontrolliert.
 
AW: Küche in U-Form im Neubau

Ja, das ist eben immer so. Deshalb habe ich gerne die Originalzeichnungen, weil ich das dann oft gleich besser selber anlege.
 

Ähnliche Beiträge

Neff Hausgeräte Ballerina Küchen Blum Bewegungstechnologie Weibel - Intelligente Küchenlüftung

Neff Spezial

Blum Zonenplaner

Weibel Abluft-Tuning

Weibel Abluft-Tuning
Zurück
Oben