Unbeendet Küche für Neubauwohnung

xuligerman

Mitglied
Beiträge
2
Wohnort
Dortmund
Hallo Küchenforum-Experten,

Ich muss mich bald entscheiden, ob ich in meiner zukünftigen Wohnung die Raumaufteilung ändern will oder sie wie im Vorschlag des Bauträgers belasse.

Es steht fast alles fest, wie im Grundrissvorschlag gezeigt. Die Idee hier war eine L-förmige Küche zu realisieren,plus Unterschränke auf der Gegenseite als Verlängerung der Wand so in einer Art von Bar oder Tisch?

Wäre das so praktisch? Gibt es eine andere Variante?


Da ich ein absoluter Anfänger in diesem Bereich bin, würde ich mich auf Ihre Vorschläge sehr freuen!

Vielen Dank im Voraus und beste Grüße,
Li

Checkliste zur Küchenplanung

Anzahl Personen im Haushalt: 2
Davon Kinder?:
Art des Gebäudes?: Neu-/Umbau, Planänderungen möglich
Körpergrössen aller Hauptbenutzer (wegen Arbeitshöhe ) in cm: 172 und 184 cm
Brüstungshöhe des Fensters (in cm): noch nicht bekannt
Fensterhöhe (in cm): noch nicht bekannt
Raumhöhe in cm: ca. 213
Heizung: Fussbodenheizung
Sanitäranschlüsse: variabel an aktueller Wand
Ausführung Kühlgerät: Stand-Alone bis 60 cm Breite
Kühlgerät Größe: bis 178 cm Höhe
Ausführung Tiefkühl (TK)-Gerät: Im Kühlschrank ab 3 Schubladen unten
Dunstabzugshaube: Umluft
Backofen etc. hochgebaut?: Ja
Hochgebauter Geschirrspüler ?: Nein
Kochfeldart: Induktion
Kochfeldbreite ca. (in cm)?: 60 genug? oder besser breite?
Spülenform: 1,5 Becken mit Abtropffläche
Geplante Heißgeräte: Dampfbackofen (DGC) mit Wasseranschluß
Küchenstil: Grifflos
Sitzmöglichkeit in der Küche / im Küchenbereich: Gesonderter Tisch
Sitzmöglichkeit: Für wieviel Personen?: für 4 Personen
Sitzmöglichkeit: Tisch - wenn gesonderter Tisch oder offene Küche: Vorhandener Tisch
Gewünschte o. vorhandene Tischgröße: 200 x 100 cm
Wofür soll der Sitzplatz in der Küche genutzt werden? Wie häufig?: Frühstück bzw. Abendessen, täglich
Welche Arbeitshöhe ist angedacht (in cm)?: 100
Was steht auf der Arbeitsplatte oder soll dort stehen?: Kaffeemaschine, Wasserkocher, Sonstiges (evtl. im Beitragstext benennen)
Welche weiteren Küchenmaschinen müssen in der Küche untergebracht werden?: Küchenmaschine, Toaster, Handrührgerät, Mixer
Was soll in der Küche außer den Standards untergebracht werden?:
Welchen Stauraum gibt es sonst noch?: Hauswirtschaftsraum, Keller
Was/wie wird gekocht? (Alltagsküche, Menüs, Snacks usw): Alltagsküche
Wie häufig wird gekocht?: (fast) täglich 1x warm
Wird alleine gekocht? Oder auch gemeinsam? Mit und für Gäste?: meist alleine, ab und an auch für Gäste
Was stört an der bisherigen Küche und was soll die neue Küche unbedingt können? Warum?: n.A.
Welche Mülltrennung soll in der Küche vorgehalten werden?: Biomüll, Restmüll
Steht schon ein Küchenhersteller fest oder wird bevorzugt?: nein
Steht schon ein Gerätehersteller fest oder wird bevorzugt?: Wunsch ist Miele , preislich vermutlich Siemens /NEFF
Preisvorstellung (Budget): bis 10.000,-
 

Anhänge

  • Bauvorschlag.JPG
    Bauvorschlag.JPG
    36,7 KB · Aufrufe: 285
  • Grundriss mit Maßen.JPG
    Grundriss mit Maßen.JPG
    44,2 KB · Aufrufe: 276
  • Grundriss_Kitchen.jpg
    Grundriss_Kitchen.jpg
    72 KB · Aufrufe: 272
  • PLAN1.KPL
    3,9 KB · Aufrufe: 175
  • PLAN1.POS
    4,6 KB · Aufrufe: 191
Hallo,
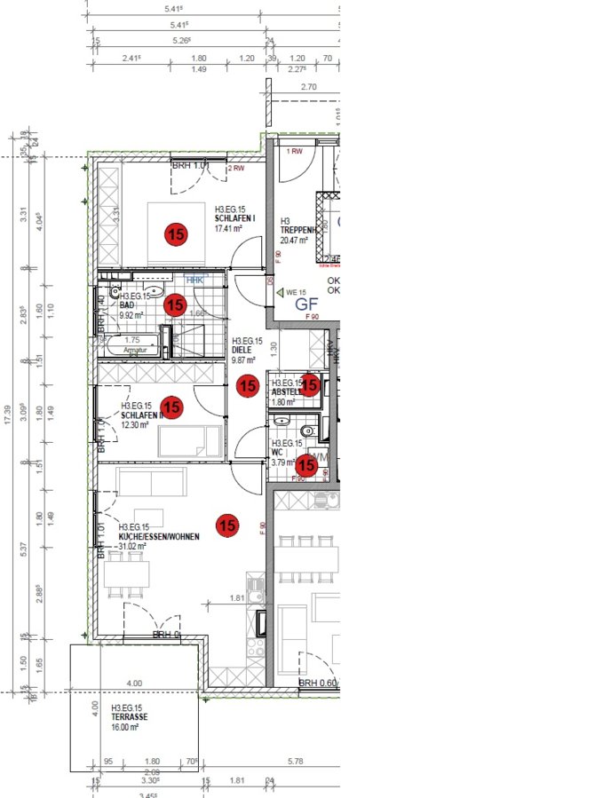
leider kann man dem Grundriss nur sehr schlecht die Maße entnehmen und in der Küchenzeile befindet sich scheinbar noch ein Installationsschacht (was hat der Architekt sich dabei gedacht???), der bitte auch noch genau bemaßt werden müsste, da man ja drum rum bauen muss.

Von daher alles erst mal geschätzt, du kannst dir meine Planung aber gerne runter laden und die Maße korrigieren oder wenigstens korrekte Maße hier angeben.

Deinen Wunsch nach einem Stand-Alone habe ich nicht erfüllt, ein EinbauKS ist einfach in diesem Raum schlichter und auch nicht so laut (spreche aus Erfahrung).
Da die schmale Seite nur 181 cm breit ist, passen hier keine 2 *richtigen* Schränke für Einbaugeräte hin, deswegen den BO quasi auf die APL gesetzt, so dass er trotzdem noch hoch gebaut ist.
Irgendwo gibt es hier im Forum auch ein Bild dazu, finde ich aber auf die Schnelle nicht :-\

Meine Idee wäre, alles aus einem Guss zu gestalten, aber die Möbelfarbe Richtung Wohnbereich an zu passen, es sei denn, ihr wollt eh´ alles in weiß ;-)

Die Wohnmöbel habe ich mal in realistischeren Maßen eingezeichnet, da sieht man schnell, dass für einen großen Esstisch und eine Art Tresen nicht viel Platz ist.

xuligeman_1-1.JPG


xuligeman_1-2.JPG


xuligeman_1-3.JPG


xuligeman_1-4.JPG
 

Anhänge

  • xuligeman_1.KPL
    3,9 KB · Aufrufe: 183
  • xuligeman_1.POS
    7,8 KB · Aufrufe: 180
.. ist die Küchennische tatsächlich nur mit ca 180cm Rohbaumassen geplant? Dann wäre der Architekt ein unbrauchbarer Trottel - den diese Nische müsste Rohbaumasse schon 190cm haben, um dort die geplanten 3 Seitenschränke unterzubringen ...

Eine Theke zusätzlich zum Esstisch halte ich bei der Raumgrösse & Form für unrealistisch - die zusätzlichen dann ist der Terrassenzugang so zugestellt, dass man kaum mehr raus kommt. Ihr solltet euch auf einen Sitzplatz beschränken und die Küche tatsächlich der Wand lang verlängern bis zum Eingangsbereich. Macht mal eine Stauraumplanung um zu sehen, was bei euch in dem All-Raum unterzubringen ist.

Den Raum anders zu möblieren wäre auch doof, da man die Nische mit der Küche noch am besten nutzen kann.
 
@Angelika95 , vielen herzlichen Dank für die detaillierte Erklärung und den Entwurf. Sorry für meine späte Rückmeldung. Der Bauunternehmen hat sich erst heute wieder gemeldet. 1. Der Schacht ist u.a. erforderlich für die Entwässerung der DG-Wohnung und wird durch alle Etagen gezogen. Es ist dort auch eine mechanische Lüftung für die Küche im Schacht vorgesehen. Der Schacht ist von der Außenwand ca. 2,25 m entfernt, ca. 0,85 m breit und ca. 0,30 m tief. Ich habe versucht herauszufinden, die Maße des Schachtes im Planer zu ändern. Hat es aber nicht geklappt. Werde dem Bauunternehmen schreiben, ob eine Alternative Position für den Schacht gibt. Hier ist ziemlich blöd. 2. Du hast die Maße des Raums ziemlich genau eingeschätzt. Kann man sogar so lassen. Ich lade hier den Grundriss mit Maße nochmal hoch. Hoffentlich sieht man jetzt besser. 3. Das mit Lärm des Kühlschranks ist ein guter Hinweis. Werde wahrscheinlich auch einen EinbauKS nehmen. 4. Weiß bevorzuge ich eigentlich. Aber das kann man als Schritt 2 noch entscheiden, nachdem die Küche mehr oder weniger fest steht.

@Nice-nofret , wie du im Grundriss sieht, so ein Trottel ist doch der Architekt...Meinst du Stauraumplanung für ganze Wohnung?
 

Anhänge

  • Grundriss mit Maßen.JPG
    Grundriss mit Maßen.JPG
    71,6 KB · Aufrufe: 236
Schacht mitten auf der Wand und die Nische nur 180cm breit ... was für Stümper - warum können die den Schacht nicht wenigstens in die Küchenecke verlegen?

Stauraumplanung - ja für den ganzen Raum - wenn Du eine für die ganze WHG machst, schadet das sicher nicht.
 
Ja, der Architekt gehört mit dem Klammerbeutel gepudert ;-), wäre die Nische breiter, müsste die Küche nicht so weit in den Raum rein...

Ich habe Evelins Idee mit dem Einzeiler mal aufgenommen und außerdem die Couchecke durch ein Küchensofa mit eurem großen Tisch ersetzt. Bevor du gleich hinten über fällst, gib in die Google-Bildersuche mal das Wort Küchensofa ein, das gibt es durchaus in chic und modern, aber auch in plüschig-rüschig;-).
Auf jeden Fall kann so ein Teil so gemütlich sein, dass man auf TV-Abende nicht verzichten muss und außerdem wäre ja Platz für einen TV-Sessel, vielleicht sogar 2 ;-), Alno bietet da ja nicht so viel Auswahl, deswegen nur Dummys für diese Möbel.
xuligeman_2-1.JPG
xuligeman_2-2.JPG
xuligeman_2-3.JPG
 

Anhänge

  • xuligeman_2.KPL
    3,9 KB · Aufrufe: 190
  • xuligeman_2.POS
    8,8 KB · Aufrufe: 193
hey, hab da mal eine zwischenfrage: bastele auch gerade an einer neuen küche rum und brauche noch eine gute abzugshaube. weiß aber nicht, wie groß die sein muss. hab dann im netz so nen anbieter gefunden, der sowas für großküchen berechnet:

1. Beitrag und gleich Werbung! Deshalb Link entfernt

hat jemand damit schon erfahrung gemacht oder weiß ob die das auch für private machen?
 
Zuletzt bearbeitet von einem Moderator:

Ähnliche Beiträge

Neff Hausgeräte Ballerina Küchen Blum Bewegungstechnologie Weibel - Intelligente Küchenlüftung

Neff Spezial

Blum Zonenplaner

Weibel Abluft-Tuning

Weibel Abluft-Tuning
Zurück
Oben