Unbeendet Küche für ein Eigenheim

TheSealion

Mitglied
Beiträge
2
Hallo,

nachdem wir bisher in zwei Küchenstudios waren und uns die Preise jetzt schon nicht mehr viel Vergleich ermöglichen, fragen wir hier noch einmal nach Ideen und "Richtgrößen" was unsere bisherigen Wunschküche so kostet und ob es noch Ideen zur Optimierung gibt.

Angedacht ist bisher eine Dreiergruppe mit Hochschränken, wobei einer davon (der in der Ecke) eine Kühl-Gefrier Kombination ICBN 3366 (ICBN 3366 Premium BioFresh NoFrost) enthalten soll.
In den mittleren soll der hochgesetzte Backofen (hier haben wir uns noch auf keinen Typ festgelegt, schön wäre allerdings ein Modell mit Pyrolyse ) und hinter einer Lifttür eine Mikrowelle (die ist bereits vorhanden).
In den dritten Schrank soll noch ein "kleiner" Gefrierschrank, da uns die 2,5 Schubladen im Kombigerät nicht ausreichen.

Für die zweite Wand haben wir an eine Reihe von Unterschränken mit den Breiten 30 - 60 - 100 - 60 - 30 gedacht.
In einen 60er Unterschrank soll der Geschirrspüler . Die anderen Unterschränke waren jeweils mit Auszügen bzw. Schubladen. Die angedachte Spüle ist von V&B (Einbauspülen von Villeroy & Boch - verschiedene Ausführungen:  Villeroy & Boch) die mittig über dem 100er Schrank eingebaut werden soll.

Als Oberschränke sind zwei 90er mit Lifttüren und zwei Regalböden dazwischen gedacht.

Die Kochinsel besteht aus 3 Unterschränken, sowie einem Induktionskochfeld mit Twist Bedienung T43T40N0 (Neff - PRODUKTE - Kochfelder - Elektro-Kochfelder mit Induktion,autark - T43T40N0) sowie einem zusätzlichen Tresen den wir zum Frühstücken nutzen wollen.

Die Abzugshaube ist eine Umlufthaube von Siemens LF91BA560 (Produktsuche - Kochen und Backen - Dunstabzugshauben - Inselessen - LF91BA560).

Wir haben bisher zwei konkrete Angebote von ~15000€ mit einer Nolte Küche mit Lackfronten (Mognolia/Eiche) bzw.
~11.000€ für Nobilia mit Folienfronten (und einfacherer Abzugshaube).

Wir fragen und jetzt vor allem, mit welchem Angebot wir weiterarbeiten sollen (ist Lack besser als Folie, wie ist der Unterschied Nolte / Nobilia, ..) und natürlich es die Küche so optimal geplant ist, oder ob es noch Verbesserungsmöglichkeiten gibt.

Mike


Checkliste zur Küchenplanung von TheSealion

Anzahl Personen im Haushalt : 2
Davon Kinder? : keine
Körpergrössen aller Hauptbenutzer (wegen Arbeitshöhe ) in cm : ~173
Art des Gebäudes? : Neu-/Umbau, Planänderungen möglich
Brüstungshöhe des Fensters (in cm) : Bodentief
Fensterhöhe (in cm) : ca. 2m
Raumhöhe in cm: : 260cm
Heizung : Fussbodenheizung
Sanitäranschlüsse : vollkommen variabel
Ausführung Kühlgerät? : Stand-Alone bis 60 cm Breite
Kühlgerät Größe : noch unbekannt
Ausführung Tiefkühl (TK)-Gerät : Eigenständiges Gerät bis 72 cm Höhe
Dunstabzugshaube? : Umluft
Hochgebauter Backofen ? : Ja
Hochgebauter Geschirrspüler ? : nein
Kochfeldart? : Induktion
Kochfeldbreite ca. (in cm)? : 60
Spülenform: : 1 Becken mit Abtropffläche
Weitere geplante Heißgeräte : Standmikrowelle
Küchenstil? : klassisch
Sitzmöglichkeit in der Küche / im Küchenbereich als : Tresen in Barhöhe
Sitzmöglichkeit: Für wieviel Personen? : für 2 Personen
Sitzmöglichkeit: Tisch - wenn gesonderter Tisch oder offene Küche : Keine
Gewünschte o. vorhandene Tischgröße : keine
Wofür soll der Sitzplatz in der Küche genutzt werden? Wie häufig? : zum Frühstücken
Welche Arbeitshöhe ist angedacht (in cm)? : 91
Was steht auf der Arbeitsplatte oder soll dort stehen? : Kaffeemaschine, Wasserkocher, Küchenmaschine, Toaster
Welche weiteren Küchenmaschinen müssen in der Küche untergebracht werden? :
Was soll in der Küche außer den Standards untergebracht werden? : Sonstiges (evtl. im Beitragstext benennen)
Welchen Stauraum gibt es sonst noch? : Geschirr/Gläserschrank im Wohn-/Esszimmer, Hauswirtschaftsraum
Was/wie wird gekocht? (Alltagsküche, Menüs, Snacks usw) : Alltagsküche
Wie häufig wird gekocht? : (fast) täglich 1x warm
Wird alleine gekocht? Oder auch gemeinsam? Mit und für Gäste? : meistens zu zweit, ab und zu mit Gästen
Was stört an der bisherigen Küche und was soll die neue Küche unbedingt können? Warum? : wenig Arbeitsfläche
Steht schon ein Küchenhersteller fest oder wird bevorzugt? :
Steht schon ein Gerätehersteller fest oder wird bevorzugt? :
Preisvorstellung (Budget) : bis 15.000,-
 

Anhänge

  • entwurf2.POS
    7,2 KB · Aufrufe: 164
  • entwurf2.KPL
    3,9 KB · Aufrufe: 167
  • Grundriss.JPG
    Grundriss.JPG
    73,6 KB · Aufrufe: 208
  • Küche1.jpg
    Küche1.jpg
    50,7 KB · Aufrufe: 197
  • Küche2.jpg
    Küche2.jpg
    56,4 KB · Aufrufe: 195
  • Küche3.jpg
    Küche3.jpg
    54,5 KB · Aufrufe: 195
  • Draufsicht.jpg
    Draufsicht.jpg
    42 KB · Aufrufe: 200
  • Küche4.jpg
    Küche4.jpg
    48,2 KB · Aufrufe: 187
AW: Küche für ein Eigenheim

Guten Morgen Mike,

Herzlich Willkommen im Küchenforum :-).
Da ist ja alles dabei, was man bei der Vorstellung braucht.

Bzg. Fronten sind Folienfronten so das schlechteste was man nehmen kann und Lack ist einer der teureren Fronten. Wenn Du Angebotspreise vergleichen willst ist es immer gut den mittleren Internetpreis der Geräte + Versand und 50€ Aufbau zu rechnen, dann bekommst Du ein Gefühl für den Möbelpreis. Dazwischen liegt bspw. noch Schichtstoff , das ist sehr robust nicht ganz so eben, man sieht ganz leicht Kanten und liegt preislich dazwischen. Wir haben zB Melamin, sieht fast aus wie Lack und ist günstiger.

Die Insel wäre mir zu wenig tief, statt des Tresens würde ich es tiefer machen.
Im Prinzip viel mir gleich so eine Aufteilung ein, ist Geschmacksache, ich finde es toll, ähnlich wie meins nur der Nachteil, dass man etwas rum laufen muss.

Ansonten würde ich schauen einen Hersteller mit 6 Rastern zu nehmen, dadurch bekommt man eine Stauraumebene zusätzlich.

LG
Muckelina
 

Anhänge

  • Mike.JPG
    Mike.JPG
    32,5 KB · Aufrufe: 166
AW: Küche für ein Eigenheim

Auch von mir ein :welcome:

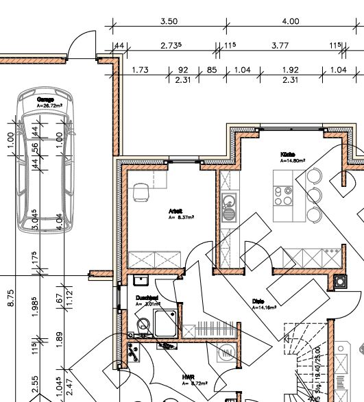
Schöne Vorstellung mit allem was wir so benötigen :-) gleich im Eröffnungsbeitrag :2daumenhoch: Das Einzige was mir fehlt ist ein vermasster Küchengrundriss (am besten Architektenplanung). Ich gehe von Schiebetüren in den Garten aus? Auch als Küchenzugang würde ich eine Glasschiebetüre empfehlen (entweder aussen laufend od. in der Wand).

Die 91cm erscheinen mir eher niedrig bei einer Grösse von 173cm; das solltest Du dringend austesten.
ARBEITSHÖHE ermitteln:


  • [*=1]z. B. Bügelbrett nehmen und in verschiedenen Höhen Probeschnippeln und messen, wenn es einem am bequemsten erscheint.
    [*=1]maximale Höhe ist Oberkante Beckenknochen.

Sobald man die Schultern hochzieht ist es zu hoch; wenn man sich vorbeugt zu niedrig.
Ausführlicher in Optimale Arbeitshöhen :link: beschrieben.

Hier noch etwas ausführlicher zu 5er (Nobilia & Nolte ) und 6er-Raster und Korpushöhen. Ich würde bei eurer Grösse unbedingt 6er-Raster empfehlen und Schichtstoff od. Melaminfronten, wenn Kinder & Grobmotoriker im Haus aktiv sind.


Arbeitshöhe & Rastermasse

full

Typische Korpushöhen für 5-rasterig: 65cm, 70 cm, 72 cm, 75cm.
Typische Korpushöhen für 6-rasterig: 78cm, 79,8cm, 86,4cm
Zu Nolte im Vergleich zu anderen Herstellern mit nur drei Zentimeter höherem Korpus (zB Häcker ):
Der größte und auch für Laien sichtbare Unterschied ist das Raster und das spricht eindeutig für den 78 cm Korpus . So kann eine Stauraumoptimierung erreicht werden.
Selbst größere Töpfe bekommt man in 26cm hohen Auszügen unter, bei 30cm Auszügen hast du einfach 4cm mehr Luft, also ungenutzten Stauraum dazu.
In die hohen 39cm Auszüge bekommst du dafür zB Flaschen, Mixeraufsätze, Cornflakesschachteln, die aber für 30cm Auszüge wiederum zu hoch sind.
Und dein Besteck braucht auch keine 15cm hohe Schublade, 13cm reichen.

nolte-vs-haecker-u-a-jpg.64764

Wenn ihr euch also nicht in eine spezielle Noltefront verliebt habt, solltet ihr vielleicht nochmal darüber nachdenken.
In Korpushöhen - Rastermaße - Auszugs-Innenmaße - Stauraumplanung sind diverse Hersteller mit ihren Standardkorpushöhen verlinkt.
Wenn man dann z. B. einen 78cm hohen Korpus wählt, ergeben sich folgende Maße
- 78 cm Korpushöhe
- 4 cm APL -Höhe
- 12 cm Sockelhöhe
-----------------
= 94 cm Gesamthöhe=Arbeitshöhe



Es lässt sich Vergleichen, wenn man die Geräte rausrechnet (siehe Muckelina's Beitrag) und sich genau die gleichen Fronten & Aufteilungen anbieten lässt. Ihr solltet mit keinem der Angebote weiterarbeiten, sondern euch lieber Angebote von Schüller , Häcker, Bauformat , Brinkmeier Brion etc., im 6er-Raster und robusten Fronten unterbreiten lassen.

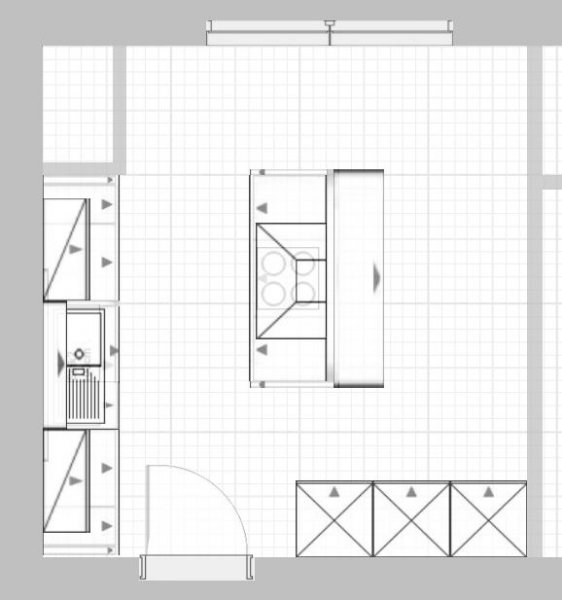
Die angedachte Grundaufteilung ist eine brauchbare Variante; folgende Anmerkungen hierzu (immer von links nach rechts):

  • Schmale Schränke sind prinzipiell ungünstig (weniger und sehr teurer Stauraum), ausserdem ist der GSP am Rande besser aufgehoben, deshalb die Aufteilung der Spülenzeile: 100cm U-Schrank; 40cm Müll u.d. APL; 80 cm Spülen-U-Schrank; 60cm GSP (hat nur eine Front - kein U-Schrank). Möglich wäre auch 90-40-90-60 od. 80-80-60-60, od. 60-80-80-60; wobei Symmetrie überflüssig ist, da man in der Küche in keiner Position diese Symmetrie wahrnehmen kann.
  • Insel - die Durchgänge zwischen den Arbeitsblöcken und zwischen Seitenschränken & Insel sollte ca 90-100cm betragen. Zur Schiebetüre hin, kann es auch weniger sein.
  • Spülbecken so gross wie möglich wählen (an Bleche, Bretter, grosse Töpfe, Roste denken).
  • Warum Umluft und nicht Abluft? Die ist immer Effizienter und zur Strafe günstiger und leiser zu haben.
  • Glastüren sehen trotz Milchglas im echten Leben meist nicht gut aus, nur im Küchenstudio oder Katalog unter kontrollierten Bedingungen mit aufgeräumten, einfarbigen und spärlichem Innenleben wirken sie so schön.
    Hier ein paar Beispiele aus dem echten Leben:

    Auch diese Leute dachten, bei ihnen würden die Glasschränke so schön, wie im Küchenstudio aussehen...
  • Die Kochinsel solltet ihr lieber mit überstehender Arbeitsplatte , als mit Tresen bauen - der Tresen behindert die optimale Nutzung und begrenzt die Arbeitsfläche sinnlos. Dafür besteht akkute Absturzgefahr...
  • Die U-Schränke der Kochinsel auf 2 breite U-Schränke in Uebertiefe festlegen - das gibt deutlich mehr Stauraum.
  • DAH würde ich eine Decken-DAH vorschlagen (z.B: von Best - die sind brauchbar und bezahlbar).
  • Magnolia beisst sich i.d.R. böse mit Weiss ... das sollte man sich also gut überlegen.
  • offene Regale schauen zwar hübsch aus, sind aber häufig zugemüllt und schauen suboptimal aus.
 
Zuletzt bearbeitet von einem Moderator:
AW: Küche für ein Eigenheim

Bei der verlinkten Spüle könnte der Spülenschrank doch noch schmaler werden - 60 cm würden ausreichen, oder? Den Platz kann man bestimmt in einem anderen Auszugsschrank besser nutzen. Ich finde jedenfalls, dass Spülenschränke die schlechteste Raumausnutzung bieten mit dem vielen freien Luftraum um das Spülbecken...

Viele Grüße,
Weis28
 
AW: Küche für ein Eigenheim

;-) wie Du sehen kannst, habe ich auch schmalere U-Schränke vorgesehen - UND zu einer breiteren Spüle geraten ...
 
AW: Küche für ein Eigenheim

Ups, sorry, jetzt seh' ich's auch... ;-)
 
AW: Küche für ein Eigenheim

Vielen Dank für die Anregungen, ich denke da werden wir unsere Planung noch einmal ein wenig überarbeiten.

Bei den Glasfronten der Oberschränke wollten wir sowieso nur jeweils die untere Hälfte nehmen, damit die Front nicht so massiv wirkt. Mal sehen, ob wir da noch auf ganz geschlossen wechseln und wie das dann aussieht.

Warum ist der GSP am besten am Rand aufgehoben?

Bei der Abzugshaube würden wir zwar gerne eine Abluft nehmen, da wir aber eine kontrollierte Be-/Entlüftung haben und auch noch einen Kaminofen im Wohnzimmer wollen war unsere bisherige Info das einen Ablufthaube nicht mehr so einfach installiert werden kann. Und wenn braucht man einen Unterduckwächter, der das gesparte Geld bei weitem wieder auffrist.

Mike
 
AW: Küche für ein Eigenheim

GSP am Rand ist immer gut, weil man dann in eine Richtung ausräumen kann und nicht immer um die Klappe herum muß. Außerdem ist das meist eine Position, wo die GSP auch mal beim Kochen eine Weile offen stehen kann, weil die Klappe nicht stört. Dann kann man immer alles gleich dort verstauen, was man nicht mehr braucht.
 
Neff Hausgeräte Ballerina Küchen Blum Bewegungstechnologie Weibel - Intelligente Küchenlüftung

Neff Spezial

Blum Zonenplaner

Weibel Abluft-Tuning

Weibel Abluft-Tuning
Zurück
Oben