Chrizzly
Mitglied
- Beiträge
- 16
Hallo liebes Küchenforum,
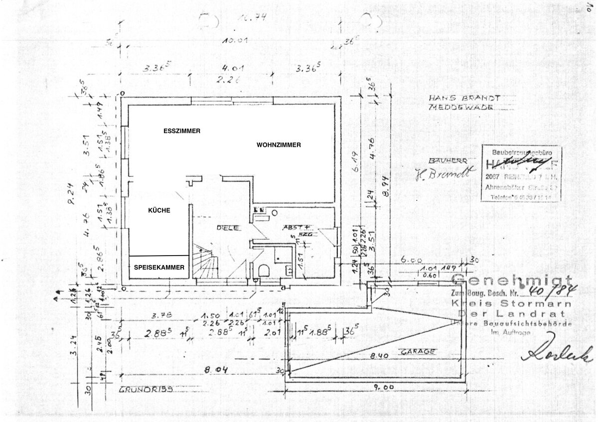
Anfang September beginnen wir mit der Komplettsanierung unseres neuen/alten Hauses und dabei spielt die Küche für uns eine wichtige und zentrale Rolle. Es gibt eine aktuelle Planung (siehe Anlage), allerdings sind wir komplett offen für eure Ideen und Vorschläge.
Wir werden eine Wand zum Ess/Wohnbereich wegnehmen, um die Küche in diese Richtung zu öffnen. Außerdem möchten wir im hinteren Bereich eine Wand einziehen und so eine Speisekammer schaffen. Dort sollen alle Vorräte, zusätzliche Arbeitsfläche für unsere ganzen Küchengeräte (Airfryer, Küchenmaschine, Pastamaker etc.) und der Gefrierschrank untergebracht werden. Auf die Arbeitsfläche in der Küche möchte wir nur wenige Geräte/Gegenstände stellen. Vorne in der Küche sollen alle Kochutensilien, Geschirr, Gewürze etc. in Schränken und Auszügen untergebracht werden.
Auf Hängeschränke an der Fenster- und Esszimmerseite würde wir gerne verzichten. Kleinere (offene) Regale wären aber in Ordnung. Wichtig ist uns möglichst viel Stauraum und Arbeitsfläche. Dies möchte wir mit großen Auszügen und den Hochschränken an der Speisekammerwand realisieren.
Wir verfolgen einen simplen, minimalistischen Look. Für uns ist die Küche eher eine Art Werkstatt und der praktische Nutzen und die Funktion sollte über dem Design stehen. Aber natürlich sollte es passen und schick aussehen. Es muss aber keine komplett durchgestylte Pinterest-Küche werden. Bei den Fronten haben wir aktuell ein helles Kristall-Grau-Satin geplant und die Arbeitsplatte soll 2cm schwarzer, matter, satinierter Granit werden. In der Küche verlegen wir große Fliesen in grauer Betonoptik und im Esszimmer/Wohnbereich wird Eichenparkett verlegt. Die Wände bleiben erstmal weiß.
Der aktuelle Entwurf gefällt uns grundsätzlich schon ganz gut, folgende Punkte würden wir gerne direkt ansprechen:
- aktuell haben wir die Unterschränke von Schüller mit einer Höhe von 84,5 cm. Diese gibt es aber leider nicht in der tiefen Version mit 70cm, so dass sie weiter vorne stehen, damit wir eine Arbeitsfläche von 70cm haben. Alternativ könnte man die US mit einer Höhe von 78cm nehmen und dann die Tiefe Variante mit 70cm. Dann müsste man allerdings einen 15cm Sockel nehmen, um auf eine finale Arbeitshöhe von 96cm zu kommen. Mit den 84er US wäre es ein Sockel von 10cm.
Was macht hier im punkto Stauraum und Ästhetik mehr Sinn?
84er US mit 60er Tiefe und 10cm Sockel
oder
78er US mit 70er Tiefe und 15cm Sockel
- die Schrankwand zur Speisekammer sieht noch etwas asymmetrisch aus (Spalt über dem Durchgang und rechts oben an der Wand, zwei verschiedene Schrankgrößen in der oberen Reihe etc.)
Habt ihr Ideen, wie man die Hochschrank -Wand noch passender aufteilen könnte?
- Den hellen, cleanen Look wollen wir mit ein paar Holzelementen (aktuell Eck-Regal an der Sitzseite und zwei Regalbretter hinten an der Speiskammerwand) und vllt offenen Regalen etwas auflockern. Außerdem überlegen wir evtl. ein paar Fronten (z.B. die oberste Reihe der Hochschränke) in Holzoptik zu wählen.
Aktuell wirken die beiden Holzelemente noch nicht wirklich schlüssig. Vllt fällt euch hier was ein, um diese Akzente noch besser zu setzen. Eventuell auch ein anderes Regal an der Sitzseite?
- da wir den Raum durch die Speisekammer verkleinern, würden wir den Durchgang zur Speisekammer evtl. sogar offen lassen, um das Raumgefühl etwas aufzulockern. Alternative wäre eine Schiebetür oder Schranktüren, damit die Kammer versteckt wäre. Aber wie praktisch wäre das im Alltag? Und aktuell wurde uns gesagt, das ein Schranktür nicht möglich sei...
Soweit die Planung und unsere Gedanken. Wenn noch wichtige Infos fehlen sollten, dann fragt gerne jederzeit nach.
Wir freuen uns auf euren Input und sind wirklich komplett offen für eure Vorschläge und Ideen. Vielleicht macht ja auch ein ganz anderes Layout mehr Sinn und sicher gibt es Dinge, an die wir noch gar nicht gedacht haben.
Liebe Grüße und noch einen schönen Restsonntag,
Chris und Lisa
Checkliste zur Kuechenplanung
Personenkriterien und Ergonomie
Anzahl Personen im Haushalt: 2
Davon Kinder: keine
Körpergrößen aller Hauptbenutzer in cm (wegen Arbeitshoehe): 176, 185
Welche Arbeitshöhe ist angedacht (in cm)?: 96
Gebäudekriterien
Art des Gebäudes: Neu-/Umbau > Planänderungen möglich, Bestandsbau > (kleinere) Umbauten möglich, Eigentum
Bruestungshöhe des Fensters (in cm): frei wählbar
Fensterhöhe (in cm): frei wählbar
Raumhöhe in cm: 275
Heizung: Keine Heizung
Sanitäranschlüsse: vollkommen variabel
Einbaugerätekriterien
Ausführung Kühlgerät: Integriert im Hochschrank (60cm)
Einbaukühlgerät Größe: 178cm
Ausführung Tiefkühl (TK)-Gerät: Nicht erforderlich bzw. steht woanders
Dunstabzugshaube: Abluft
Hochgebauter Backofen : ja
Geplante Heißgeräte: Standmikrowelle, Dampfbackofen (DGC) ohne Wasseranschluß
Hochgebauter Geschirrspüler : wenn möglich
Art des Kochfeldes: Induktionskochfeld
Kochfeldbreite (ca. in cm): 80
Sitzmöglichkeiten
Sitzmöglichkeit in der Küche / im Küchenbereich: Überstehende Arbeitsplatte
Sitzmöglichkeit: Für wieviel Personen?: Für 2 Personen
Sitzmöglichkeit: Tisch - wenn gesonderter Tisch oder offene Küche: Keiner
Gewünschte oder vorhandene Tischgröße: N. a.
Wofür soll der Sitzplatz in der Küche genutzt werden und wie häufig: Gemeinsam kochen, Gesellschaft beim Kochen
Stauraum-Planung
Was steht auf der Arbeitsplatte oder soll dort stehen?: Kaffeemaschine, Wasserkocher, Toaster
Welche weiteren Küchenmaschinen müssen in der Küche untergebracht werden: Küchenmaschine, Handrührgerät, Mixer, Sonstiges (evtl. im Beitragstext benennen)
Was soll in der Küche außer den Standards untergebracht werden: Geschirr komplett (nichts in Ess-/Wohnzimmer)
Welchen Stauraum gibt es sonst noch: Speisekammer, Hauswirtschaftsraum
Kochgewohnheiten
Was/wie wird gekocht? (Alltagsküche, Menüs, Snacks usw): Täglich Alltagsküche, Menüs mit Familie und Freunden
Wie häufig wird gekocht: (fast) täglich 1x warm
Wird alleine gekocht? Oder auch gemeinsam? Mit und für Gäste?: Gerne gemeinsam und mit/für Gäste
Spülen und Müll
Spülenform: 1 Becken ohne Abtropffläche
Welche Mülltrennung soll in der Küche vorgehalten werden: Biomüll, Gelber Sack Müll, Restmüll
Sonstiges
Steht schon ein Küchenhersteller fest oder wird bevorzugt: Schüller
Steht schon ein Gerätehersteller fest oder wird bevorzugt: Neff , Siemens , Miele , Blanko
Küchenstil: Klassisch
Was stört an der bisherigen Küche und was soll die neue Küche unbedingt können? Warum?: möglichst viel Stauraum und Arbeitsfläche
Preisvorstellung (Budget): 15000
Angehängte Dateien
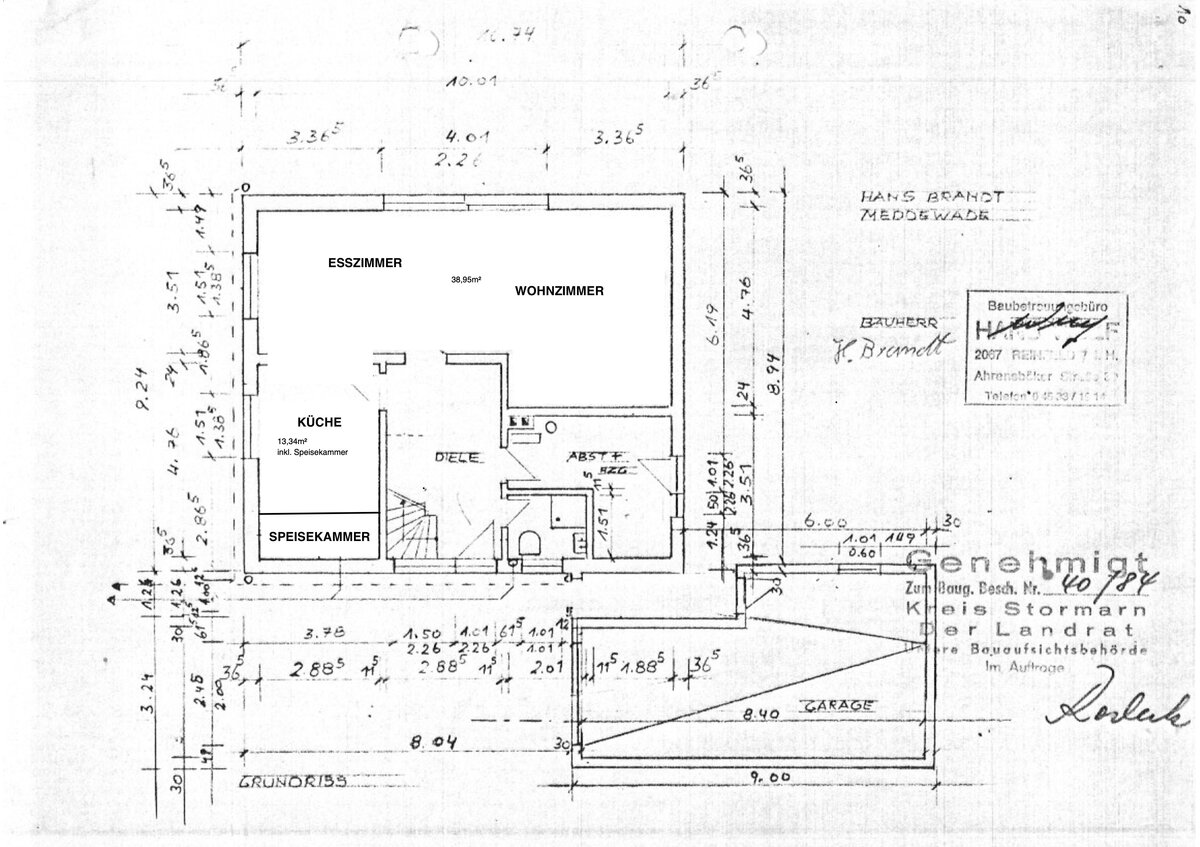
Anfang September beginnen wir mit der Komplettsanierung unseres neuen/alten Hauses und dabei spielt die Küche für uns eine wichtige und zentrale Rolle. Es gibt eine aktuelle Planung (siehe Anlage), allerdings sind wir komplett offen für eure Ideen und Vorschläge.
Wir werden eine Wand zum Ess/Wohnbereich wegnehmen, um die Küche in diese Richtung zu öffnen. Außerdem möchten wir im hinteren Bereich eine Wand einziehen und so eine Speisekammer schaffen. Dort sollen alle Vorräte, zusätzliche Arbeitsfläche für unsere ganzen Küchengeräte (Airfryer, Küchenmaschine, Pastamaker etc.) und der Gefrierschrank untergebracht werden. Auf die Arbeitsfläche in der Küche möchte wir nur wenige Geräte/Gegenstände stellen. Vorne in der Küche sollen alle Kochutensilien, Geschirr, Gewürze etc. in Schränken und Auszügen untergebracht werden.
Auf Hängeschränke an der Fenster- und Esszimmerseite würde wir gerne verzichten. Kleinere (offene) Regale wären aber in Ordnung. Wichtig ist uns möglichst viel Stauraum und Arbeitsfläche. Dies möchte wir mit großen Auszügen und den Hochschränken an der Speisekammerwand realisieren.
Wir verfolgen einen simplen, minimalistischen Look. Für uns ist die Küche eher eine Art Werkstatt und der praktische Nutzen und die Funktion sollte über dem Design stehen. Aber natürlich sollte es passen und schick aussehen. Es muss aber keine komplett durchgestylte Pinterest-Küche werden. Bei den Fronten haben wir aktuell ein helles Kristall-Grau-Satin geplant und die Arbeitsplatte soll 2cm schwarzer, matter, satinierter Granit werden. In der Küche verlegen wir große Fliesen in grauer Betonoptik und im Esszimmer/Wohnbereich wird Eichenparkett verlegt. Die Wände bleiben erstmal weiß.
Der aktuelle Entwurf gefällt uns grundsätzlich schon ganz gut, folgende Punkte würden wir gerne direkt ansprechen:
- aktuell haben wir die Unterschränke von Schüller mit einer Höhe von 84,5 cm. Diese gibt es aber leider nicht in der tiefen Version mit 70cm, so dass sie weiter vorne stehen, damit wir eine Arbeitsfläche von 70cm haben. Alternativ könnte man die US mit einer Höhe von 78cm nehmen und dann die Tiefe Variante mit 70cm. Dann müsste man allerdings einen 15cm Sockel nehmen, um auf eine finale Arbeitshöhe von 96cm zu kommen. Mit den 84er US wäre es ein Sockel von 10cm.
Was macht hier im punkto Stauraum und Ästhetik mehr Sinn?
84er US mit 60er Tiefe und 10cm Sockel
oder
78er US mit 70er Tiefe und 15cm Sockel
- die Schrankwand zur Speisekammer sieht noch etwas asymmetrisch aus (Spalt über dem Durchgang und rechts oben an der Wand, zwei verschiedene Schrankgrößen in der oberen Reihe etc.)
Habt ihr Ideen, wie man die Hochschrank -Wand noch passender aufteilen könnte?
- Den hellen, cleanen Look wollen wir mit ein paar Holzelementen (aktuell Eck-Regal an der Sitzseite und zwei Regalbretter hinten an der Speiskammerwand) und vllt offenen Regalen etwas auflockern. Außerdem überlegen wir evtl. ein paar Fronten (z.B. die oberste Reihe der Hochschränke) in Holzoptik zu wählen.
Aktuell wirken die beiden Holzelemente noch nicht wirklich schlüssig. Vllt fällt euch hier was ein, um diese Akzente noch besser zu setzen. Eventuell auch ein anderes Regal an der Sitzseite?
- da wir den Raum durch die Speisekammer verkleinern, würden wir den Durchgang zur Speisekammer evtl. sogar offen lassen, um das Raumgefühl etwas aufzulockern. Alternative wäre eine Schiebetür oder Schranktüren, damit die Kammer versteckt wäre. Aber wie praktisch wäre das im Alltag? Und aktuell wurde uns gesagt, das ein Schranktür nicht möglich sei...
Soweit die Planung und unsere Gedanken. Wenn noch wichtige Infos fehlen sollten, dann fragt gerne jederzeit nach.
Wir freuen uns auf euren Input und sind wirklich komplett offen für eure Vorschläge und Ideen. Vielleicht macht ja auch ein ganz anderes Layout mehr Sinn und sicher gibt es Dinge, an die wir noch gar nicht gedacht haben.
Liebe Grüße und noch einen schönen Restsonntag,
Chris und Lisa
Checkliste zur Kuechenplanung
Personenkriterien und Ergonomie
Anzahl Personen im Haushalt: 2
Davon Kinder: keine
Körpergrößen aller Hauptbenutzer in cm (wegen Arbeitshoehe): 176, 185
Welche Arbeitshöhe ist angedacht (in cm)?: 96
Gebäudekriterien
Art des Gebäudes: Neu-/Umbau > Planänderungen möglich, Bestandsbau > (kleinere) Umbauten möglich, Eigentum
Bruestungshöhe des Fensters (in cm): frei wählbar
Fensterhöhe (in cm): frei wählbar
Raumhöhe in cm: 275
Heizung: Keine Heizung
Sanitäranschlüsse: vollkommen variabel
Einbaugerätekriterien
Ausführung Kühlgerät: Integriert im Hochschrank (60cm)
Einbaukühlgerät Größe: 178cm
Ausführung Tiefkühl (TK)-Gerät: Nicht erforderlich bzw. steht woanders
Dunstabzugshaube: Abluft
Hochgebauter Backofen : ja
Geplante Heißgeräte: Standmikrowelle, Dampfbackofen (DGC) ohne Wasseranschluß
Hochgebauter Geschirrspüler : wenn möglich
Art des Kochfeldes: Induktionskochfeld
Kochfeldbreite (ca. in cm): 80
Sitzmöglichkeiten
Sitzmöglichkeit in der Küche / im Küchenbereich: Überstehende Arbeitsplatte
Sitzmöglichkeit: Für wieviel Personen?: Für 2 Personen
Sitzmöglichkeit: Tisch - wenn gesonderter Tisch oder offene Küche: Keiner
Gewünschte oder vorhandene Tischgröße: N. a.
Wofür soll der Sitzplatz in der Küche genutzt werden und wie häufig: Gemeinsam kochen, Gesellschaft beim Kochen
Stauraum-Planung
Was steht auf der Arbeitsplatte oder soll dort stehen?: Kaffeemaschine, Wasserkocher, Toaster
Welche weiteren Küchenmaschinen müssen in der Küche untergebracht werden: Küchenmaschine, Handrührgerät, Mixer, Sonstiges (evtl. im Beitragstext benennen)
Was soll in der Küche außer den Standards untergebracht werden: Geschirr komplett (nichts in Ess-/Wohnzimmer)
Welchen Stauraum gibt es sonst noch: Speisekammer, Hauswirtschaftsraum
Kochgewohnheiten
Was/wie wird gekocht? (Alltagsküche, Menüs, Snacks usw): Täglich Alltagsküche, Menüs mit Familie und Freunden
Wie häufig wird gekocht: (fast) täglich 1x warm
Wird alleine gekocht? Oder auch gemeinsam? Mit und für Gäste?: Gerne gemeinsam und mit/für Gäste
Spülen und Müll
Spülenform: 1 Becken ohne Abtropffläche
Welche Mülltrennung soll in der Küche vorgehalten werden: Biomüll, Gelber Sack Müll, Restmüll
Sonstiges
Steht schon ein Küchenhersteller fest oder wird bevorzugt: Schüller
Steht schon ein Gerätehersteller fest oder wird bevorzugt: Neff , Siemens , Miele , Blanko
Küchenstil: Klassisch
Was stört an der bisherigen Küche und was soll die neue Küche unbedingt können? Warum?: möglichst viel Stauraum und Arbeitsfläche
Preisvorstellung (Budget): 15000
Angehängte Dateien
Anhänge



