Komplettsanierung RMH inkl. offener Küche

friesenhagen

Mitglied
Beiträge
5
Hallo zusammen,

wir planen gerade die Sanierung eines 60er Jahre RMH. Dies umfasst auch den Durchbruch der Küche zum offenen Wohn-/Eßbereich.

Probleme bereiten uns u.a. die Planung der Tür zwischen Diele und Küche. Der Türsturz könnte villoeicht noch verschoben werden. Ursprünglich wollten wir hier eine Schiebetür habe, sind uns aber nicht mehr sicher.

Unser Ziel in der Küche ist es, Stauraum zu maximieren. Gerne auch durch einen Arbeitsblock zwischen Küche und Eßbereich.


Für jegliche Ideen bin ich sehr dankbar.
Leider hat die Installation des ALNO -Planers wiederholt nicht geklappt.

Vielen Dank schon mal!
Friesenhagen



Checkliste zur Küchenplanung von friesenhagen

Anzahl Personen im Haushalt : 4
Davon Kinder? : 2
Körpergrössen aller Hauptbenutzer (wegen Arbeitshöhe ) in cm : 190, 172
Art des Gebäudes? : Neu-/Umbau, Planänderungen möglich
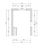
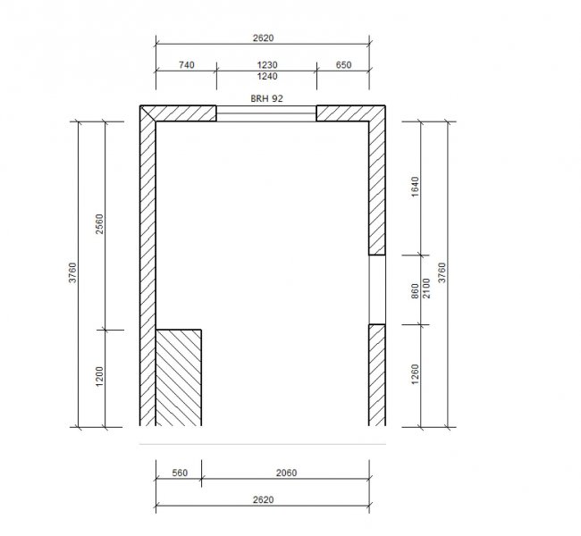
Brüstungshöhe des Fensters (in cm) : 92
Fensterhöhe (in cm) : 120
Raumhöhe in cm: : 240
Heizung : Fussbodenheizung
Sanitäranschlüsse : vollkommen variabel
Ausführung Kühlgerät? : Integriert im Hochschrank (60cm)
Kühlgerät Größe : noch unbekannt
Ausführung Tiefkühl (TK)-Gerät : Im Kühlschrank als kleines Fach oben
Dunstabzugshaube? : Abluft
Hochgebauter Backofen ? : Wenn möglich
Hochgebauter Geschirrspüler ? : ja
Kochfeldart? : Induktion
Kochfeldbreite ca. (in cm)? : 60
Spülenform: : 1,5 Becken mit Abtropffläche
Weitere geplante Heißgeräte : Einbaumikrowelle
Küchenstil? : Landhaus
Sitzmöglichkeit in der Küche / im Küchenbereich als : Keine
Sitzmöglichkeit: Für wieviel Personen? : nein
Sitzmöglichkeit: Tisch - wenn gesonderter Tisch oder offene Küche : Keine
Gewünschte o. vorhandene Tischgröße : Eßtisch ist außerhalb der Küche in angrenzendem EZ
Wofür soll der Sitzplatz in der Küche genutzt werden? Wie häufig? : Nicht vorhanden
Welche Arbeitshöhe ist angedacht (in cm)? : 92
Was steht auf der Arbeitsplatte oder soll dort stehen? : Kaffeemaschine, Wasserkocher, Brotbehälter
Welche weiteren Küchenmaschinen müssen in der Küche untergebracht werden? :
Was soll in der Küche außer den Standards untergebracht werden? : Geschirr komplett (nichts in Ess-/Wohnzimmer)
Welchen Stauraum gibt es sonst noch? : Keller
Was/wie wird gekocht? (Alltagsküche, Menüs, Snacks usw) : Alltagsküche und Menüs
Wie häufig wird gekocht? : ab und zu
Wird alleine gekocht? Oder auch gemeinsam? Mit und für Gäste? : meist allein
Was stört an der bisherigen Küche und was soll die neue Küche unbedingt können? Warum? : Spülmaschine soll nach oben, mehr Stauraum
Steht schon ein Küchenhersteller fest oder wird bevorzugt? : nein
Steht schon ein Gerätehersteller fest oder wird bevorzugt? : nein
Preisvorstellung (Budget) : bis 15.000,-
 

Anhänge

  • Plan-EG_.jpg
    Plan-EG_.jpg
    62,6 KB · Aufrufe: 299
  • Küche Raumaße.jpg
    Küche Raumaße.jpg
    32,3 KB · Aufrufe: 285
AW: Komplettsanierung RMH inkl. offener Küche

:welcome: hier im Küchenforum.

Kannst du dir den AlnoPlaner runterladen? Dann kannst du mitplanen und selber in 3 D deine Küche anschauen.. https://www.kuechen-forum.de/forum...rzanleitung-incl-pdf-zum-herunterladen.2883//

Planlinks, ist ein Versorgungsschacht?

Wäre es eine Option, die Tür zum Flur ganz zuzumachen? Dann könnte man auch dort Schränke stellen.

Wasseranschluss, hast du ja geschrieben ist vollkommen variabel. Wie siehts mit der Abluft aus?
 
AW: Komplettsanierung RMH inkl. offener Küche

Liebe Tara,
vielen Dank für Deine Nachricht.

Zu Deinen Fragen:
Links ist tatsächlich ein Versorgungsschacht!
Abluft müßte man noch einrichten - da sind wir flexibel.

Wir wohnen momentan in dem sanierten Nachbarhaus (identischer Urzustand) zur Miete. Bei unserem gemieten Haus ist der Türsturz mit einer Glasschiebetüre versehen, die uns nicht gefällt.
Wir schätzen jedoch die Helligkeit und die kurzen Wege, die sich daraus ergeben. Daher würden wir diesen Durchgang gerne beibehalten.

Ich versuche noch einmal, den ALNO -Planer zu installieren - hat aber bisher nicht geklappt.

ich könnte auch mal einen Plan unserer jetzigen Küche (im grundrißgleichen Mietshaus) schicken - allerdings gibt es hier einige Aspekte, die uns nicht gefallen.
 
AW: Komplettsanierung RMH inkl. offener Küche

Was steht, oder soll in den Bereich vor der Treppe?
Der Esstisch?

ich hab erst mal euren Raum im Alno Planer angelegt.
 

Anhänge

  • Friesenhagen Grundriss_Tara.KPL
    3,9 KB · Aufrufe: 256
  • Friesenhagen Grundriss_Tara.POS
    2,4 KB · Aufrufe: 254
  • Grundriss.PNG
    Grundriss.PNG
    4,7 KB · Aufrufe: 271
AW: Komplettsanierung RMH inkl. offener Küche

Liebe Tara,

vielen Dank dafür. Leider ist es mir immer noch nicht gelungen, den Planer zu installieren.

Vor den Treppenaufgang kommt der Eßtisch (90x180 freistehend geplant und paralle zur Längswand).
Wir haben bisher auf Höhe des Vorsprungs einen Schubladenschrank (öffnet zur Küche) und dachten daran, an dessen Rückseite noch einen gleich hohen Unterschrank gegenzustellen, welcher zum Eßbereich öffnet.

Was meinst Du?

Ein Küchenstudio empfahl uns, den Türsturz rechts so zu versetzen, damit wir an der rechten Längsseite mit insgesamt 185 cm Länge mehr Platz für einen 90er Eckschrank schaffen. Wir finden diese Maßnahme jedoch etwas aufwändig und wären auch hier für Vorschläge dankbar.

Liebe Grüße, Friesenhagen
 
AW: Komplettsanierung RMH inkl. offener Küche

So, ich habe da erst mal eine erste Diskussiongrundlage;-)

Planlinks 3 Hochschränke: Backofen , Kühlschrank, hochgesetzte Spülmaschine.
Evtl. kann man auch Spülmaschine und Backofenschrank tauschen. Oder man könnte auch über die Spülmaschine ein Kombigerät setzen. Ihr seid ja groß)

Spülzeile. Da könnte man überlegen, einen 50er Spülenschrank zu nehmen, dann kann man auch einen großen 80er Auszugschrank stellen.

Planrechts kochen. Kochfeld über einen breiten 100er Auszugschrank. Dann nur darauf achten, dass 30 cm Platz seitlich bleiben.

Und neben der Tür kann man auch noch schön einen 100er Auszugschrank stellen.

Stör dich nicht an den Farben. Mein Compi mag Alno nicht so recht;-)

Ups, seh grad, dass deine Tür bei mir falsch herum aufgeht:-[ wird beim nächsten mal geändert;-)
 

Anhänge

  • Spülen.PNG
    Spülen.PNG
    237,9 KB · Aufrufe: 264
  • Kochen.jpg
    Kochen.jpg
    32,3 KB · Aufrufe: 267
  • Hochschrankseite.PNG
    Hochschrankseite.PNG
    135,5 KB · Aufrufe: 257
  • Gesamtansicht.PNG
    Gesamtansicht.PNG
    39,4 KB · Aufrufe: 269
  • Friesenhagen1_Tara.POS
    4,7 KB · Aufrufe: 258
  • Friesenhagen1_Tara.KPL
    3,9 KB · Aufrufe: 235
AW: Komplettsanierung RMH inkl. offener Küche

Liebe Tara,

vielen Dank für Deine Mühen.

Die Idee des Auszugschranks neben der Tür finde ich interessant. Bislang hatten wir dort wieder an eine Schiebetüre gedacht und einen Küchenblock auf der planlinken Seite.

Was mir etwas eng erscheint ist die Ecke hinten links neben der Spüle.
Der Backofen muß nicht unbedingt hoch sein.

Die Ecke rechts bleibt tot (sowohl unterhalb als auch oberhalb der Arbeitsplatte ) oder fällt Dir hier noch etwas ein, was zusätzlichen Stauraum schafft?

LG, Friesenhagen
 
AW: Komplettsanierung RMH inkl. offener Küche

Leider muss ich gleich weg, deshalb nur kurz.
Du hast recht, bei der Spüle wäre es sehr eng.
Wenn der Backofen nicht hoch sein muss, ginge vielleicht auch folgende Lösung
Hierzu guck dir auch mal bei den fertiggestellten folgende an: Häcker Küche im Altbau - Fertiggestellte Küchen - Häcker Classic

Nein, tote Ecken, sind gute Ecken. Da gibt's nichts Besseres. Bei der von mir verlinkten Küche siehst du auch einen Le Mans . Und wenn du genau guckst, siehst du, wiewenig auf ein Tablear passt und das nur auf 2 Eben.
Wenn du die Ecken tot lässt, bekommst du halt die breiten Auszugschränke hin, die dir wesentlich mehr Staufläche schaffen.
 

Anhänge

  • Friesenhagen1_Tara.KPL
    3,9 KB · Aufrufe: 249
  • Friesenhagen1_Tara.POS
    4,9 KB · Aufrufe: 232
  • Grundriss.PNG
    Grundriss.PNG
    36,4 KB · Aufrufe: 262
  • Spülecke.PNG
    Spülecke.PNG
    296,1 KB · Aufrufe: 265
AW: Komplettsanierung RMH inkl. offener Küche

a) muss der Versorgungsschacht wirklich sooo riesig sein`?

b) macht die Küchentüre zu und baut die Küche als 2- Zeiler mit übertiefer Arbeitszeile.

Bei dem kleinen Häuschen bleiben den Wege auch dann noch kurz ;D. ich habe es viel 'weiter' von der Haustüre in meine Küche ... es stört mich überhaupt nicht ... die zwei Schritte mehr spielen doch überhaupt keine Rolle. Der fehlende Stauraum und praktikabilität der Küche aber schon.
 
AW: Komplettsanierung RMH inkl. offener Küche

Liebe Tara, liebe Vanessa
vielen Dank.

@Tara: Die Position des Backofens find ich nicht schlecht. Einen heißen Hintern beim Spülen bekommt man da aber nicht, oder? :-)

Momentan haben wir ja einen Schubladenschrank planlinks im rechten Winkel zum Versorgungsschacht. (@Vanessa: darin läuft auch der Kamin und daher ist ein Verschieben eher unmöglich). Diesen finde ich eigentlich super praktisch, da ich dort Geschirr und Besteck untergebracht habe und oben Speisen aus dem Kühlschrank ablegen kann, bevor ich sie in den Eßbereich rüberreiche.
Allerdings hat unser Vermieter eine Bar "draufgesetzt", welche bei uns keinen Sinn macht.
Daher war meine Idee, im Eßbereich noch einen Schiebeschrank gegenzusetzen, in dem man Toaster etc. unterbringen kann.
(siehe Bild)
Was meint Ihr? Küche version 3.jpg

@Vanessa: den Durchgang planrechts würde ich nur sehr ungern komplett schließen, da es Licht bringt!

LG, Friesenhagen
 
AW: Komplettsanierung RMH inkl. offener Küche

Dann setze in den oberen Teil des Durchgangs eine Scheibe ein, dann behälst Du das Licht...
 
AW: Komplettsanierung RMH inkl. offener Küche

Nö, im Winter wird's dich freuen einen warmen Hintern zu haben.:cool:

Wie häufig hast du den Backofen an, und bist gleichzeitig am Spülen? Und die Backofenscheibe wird ja nicht mehr heiß, nur das bisschen Gebläse.
Wobei ich dir gar nicht sagen kann, wie das bei den neuen Backöfen ist, ob da überhaupt noch warmes Gebläse rauskommt.
Ich steh zurzeit beim Schnibbeln so beim Backofen , mich hats noch nie gestört.

Klar ist die Stelle nicht optimal, aber ich wollte dir Stauraum auf der anderen Seite schaffen;-)

So, wie du den Herd jetzt gestellt hast, finde ich es zum einen unpraktisch, da du nur an einer Seite etwas abstellen kannst und zum anderen ist die Gefahr viel zu groß, dass beim Türaufmachen, der Pfannenstiel entweder runtergrerissen, oder dir Fettspritzer im Gesicht landen, wenn jemand gegen den Stiel rennt.

Vanessas Idee, statt der Tür ein Glasfenster zu machen, finde ich übrigens gut.:top:
 
AW: Komplettsanierung RMH inkl. offener Küche

So, wie du übrigens die Schränke gestellt hast, geht's eh nicht, da du jeweils 65cm rechnen musst, denn die Auszüge müssen ja noch aufgehen und nicht gegen den nächsten Griff stoßen;-)
 

Ähnliche Beiträge

Neff Hausgeräte Ballerina Küchen Blum Bewegungstechnologie Weibel - Intelligente Küchenlüftung

Neff Spezial

Blum Zonenplaner

Weibel Abluft-Tuning

Weibel Abluft-Tuning
Zurück
Oben