Manolo84
Mitglied
- Beiträge
- 13
Kleine offene L Küche im Wohnbereich
Hallo Zusammen,
wir wohnen seit 13Jahren in unserer Wohnung und haben damals die Küche mit übernommen. Nun soll endlich eine neue Küche her und hier und da Dinge verbessert werden. Bei manchen Dingen tue ich mich aber leider etwas schwer und hoffe hier auf ein paar neue Ideen.
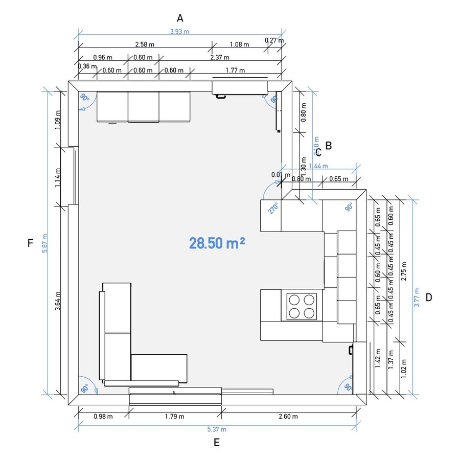
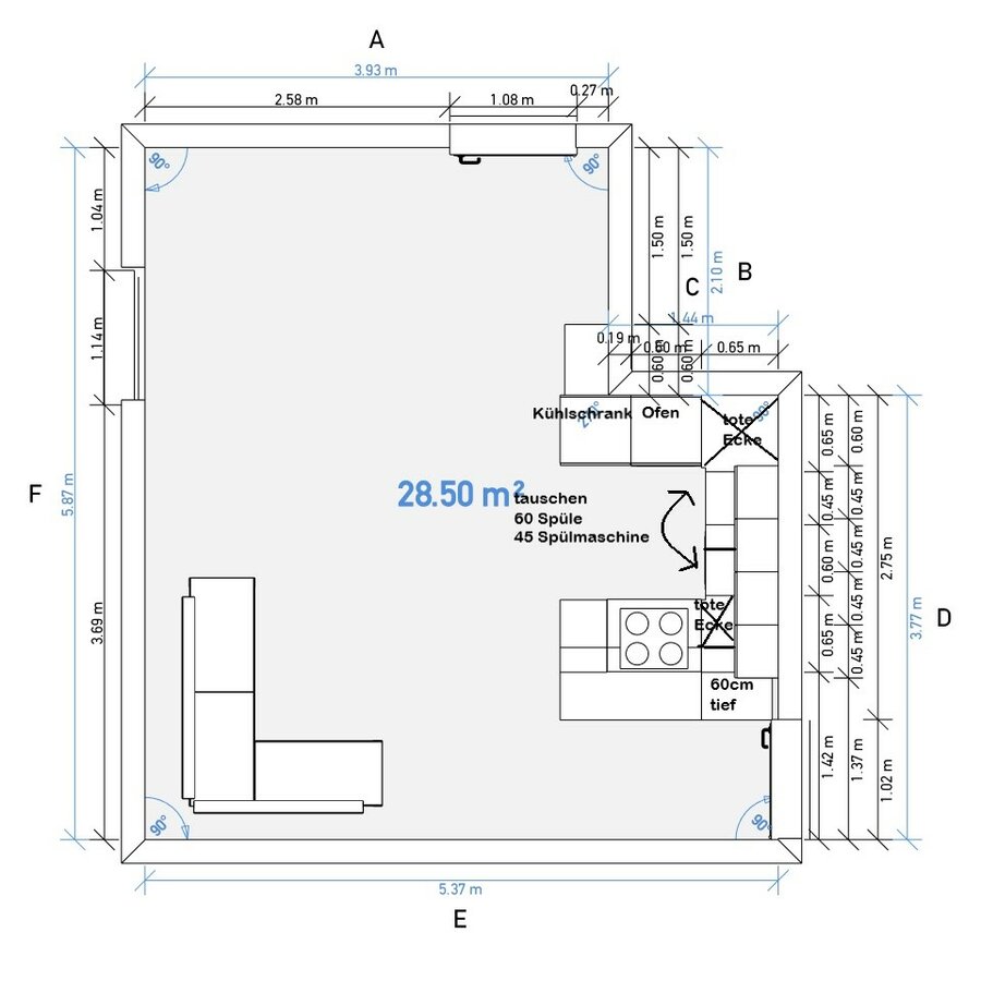
Für die Spüle in der Ecke und den verlorenen Platz, ist mir keine Lösung eingefallen. Aber da der Platz jetzt auch nicht vorhanden ist, muss da auch nicht unbedingt eine Lösung her.
Rechts neben dem Fenster steht zur Zeit eine dunkle Kommode, hier würde ich gerne einen Küchenschrank hinstellen, um noch eine zusätzliche Arbeitsfläche zum schnibbeln zu haben. Ich bin aber noch sehr unsicher was dort wirklich hinpasst. Ein Hochschrank würde mir dort nicht so gefallen, da er das Fenster verdeckt und auch keine zusätzliche Fläche schafft.
Die Oberschränke hätte ich gerne etwa aufgelockerte, als bei der jetzigen Küche. Deswegen war meine Idee, auf der längeren Seite zwei schwarze nicht verbundene Schränke mit dunkler Glaswand anzubringen.
Auf der kurzen L Seite ein großer durchgehender in Weiß Hochglanz ohne Griffe, wie auch die Unterschränke
Folgende E-Geräte waren jetzt so meine Favoriten, aber hängt auch von der Preisgestaltung des Küchenplaners ab. Bei Spülmaschine und Kühlschrank bin ich jetzt nicht so festgelegt.
Nur falls es der große Korpus bei Nolte wird, würde es die Siemens mit VarioScharnier werden.
https://www.siemens-home.bsh -group.com/de/produktliste/kochen-backen/backoefen-herde/backoefen-mit-mikrowelle /HN678G4S6?breadcrumb=cookingbakingovensovenswithmicrowave
https://www.siemens-home.bsh-group.com/de/produktliste/kochen-backen/kochfelder-kochstellen/induktionskochfelder/EX645LYC1E?breadcrumb=cookingbakinghobsinductionhobs
https://www.siemens-home.bsh-group.com/de/produktliste/geschirrspueler/einbau/vollintegrierte-geschirrspueler/SR736D11IE?breadcrumb=dishwashersbuiltindishwashersfullyintegrated
Vielen dank schon mal im Voraus für die Hilfe,
Viele Grüße Janina
Checkliste zur Küchenplanung
Personenkriterien und Ergonomie
Anzahl Personen im Haushalt: 2
Davon Kinder: keine
Körpergrößen aller Hauptbenutzer in cm (wegen Arbeitshöhe ): 160-175
Welche Arbeitshöhe ist angedacht (in cm)?: 90
Gebäudekriterien
Art des Gebäudes: Bestandsbau > (kleinere) Umbauten möglich, Eigentum
Brüstungshöhe des Fensters (in cm): Bodentiefe Fenster
Fensterhöhe (in cm):
Raumhöhe in cm: 250
Heizung: Heizkörper wie im Grundriss
Sanitäranschlüsse: fix
Einbaugerätekriterien
Ausführung Kühlgerät: N. a.
Einbaukühlgerät Größe: 88cm
Ausführung Tiefkühl (TK)-Gerät: Nicht erforderlich bzw. steht woanders
Dunstabzugshaube: keine
Hochgebauter Backofen : ja
Geplante Heißgeräte: Backofen
Hochgebauter Geschirrspüler : nein
Art des Kochfeldes: Induktion
Kochfeldbreite (ca. in cm): 60
Sitzmöglichkeiten
Sitzmöglichkeit in der Küche / im Küchenbereich: Keine
Sitzmöglichkeit: Für wieviel Personen?: N. a.
Sitzmöglichkeit: Tisch - wenn gesonderter Tisch oder offene Küche: N. a.
Gewünschte oder vorhandene Tischgröße:
Wofür soll der Sitzplatz in der Küche genutzt werden und wie häufig:
Stauraumplanung
Was steht auf der Arbeitsplatte oder soll dort stehen?: Kaffeemaschine, Wasserkocher, Allesschneider
Welche weiteren Küchenmaschinen müssen in der Küche untergebracht werden: Handrührgerät, Pürierstab
Was soll in der Küche außer den Standards untergebracht werden: Geschirr komplett (nichts in Ess-/Wohnzimmer)
Welchen Stauraum gibt es sonst noch: N. a.
Kochgewohnheiten
Was/wie wird gekocht? (Alltagsküche, Menüs, Snacks usw): Alltagsküche, aber auch mal aufwendige Menüs, aufwendige Gerichte aus aller Welt mit vielen Komponenten.
Wie häufig wird gekocht: (fast) täglich 1x warm
Wird alleine gekocht? Oder auch gemeinsam? Mit und für Gäste?: meistens nur zu zweit, Gäste eher selten
Spülen und Müll
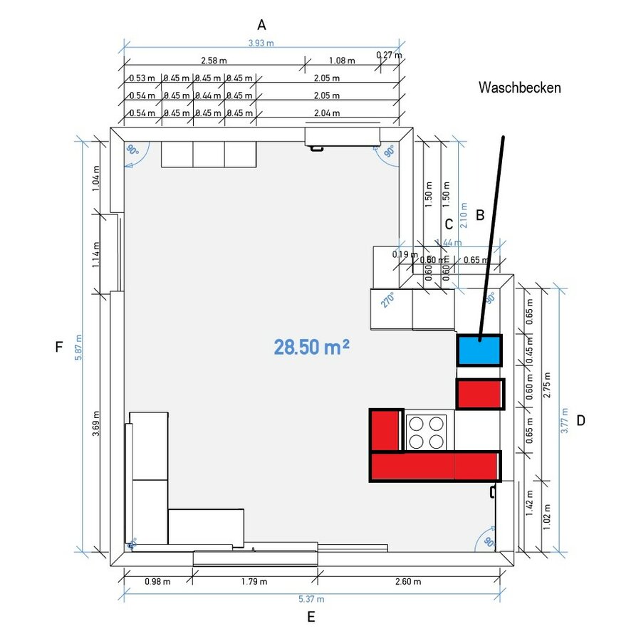
Spülenform: 1 Becken mit Abtropffläche
Welche Mülltrennung soll in der Küche vorgehalten werden: Biomüll, Restmüll
Sonstiges
Steht schon ein Küchenhersteller fest oder wird bevorzugt: Nolte,Nobilia ,
Steht schon ein Gerätehersteller fest oder wird bevorzugt: Siemens,Bosch
Küchenstil: Grifflose Küche
Was stört an der bisherigen Küche und was soll die neue Küche unbedingt können? Warum?: Der Kühlschrank in der Ecke neben dem Waschbecken steht etwas ungünstig, daher würde ich gerne den Kühlschrank, unter den Backofen im Hochschrank unterbringen.
Der Müll unterm Waschbecken ohne Auszug, da man dort nicht dran kommt wenn jemand abspült.
Preisvorstellung (Budget): 7000-8000
Angehängte Dateien
Hallo Zusammen,
wir wohnen seit 13Jahren in unserer Wohnung und haben damals die Küche mit übernommen. Nun soll endlich eine neue Küche her und hier und da Dinge verbessert werden. Bei manchen Dingen tue ich mich aber leider etwas schwer und hoffe hier auf ein paar neue Ideen.
Für die Spüle in der Ecke und den verlorenen Platz, ist mir keine Lösung eingefallen. Aber da der Platz jetzt auch nicht vorhanden ist, muss da auch nicht unbedingt eine Lösung her.
Rechts neben dem Fenster steht zur Zeit eine dunkle Kommode, hier würde ich gerne einen Küchenschrank hinstellen, um noch eine zusätzliche Arbeitsfläche zum schnibbeln zu haben. Ich bin aber noch sehr unsicher was dort wirklich hinpasst. Ein Hochschrank würde mir dort nicht so gefallen, da er das Fenster verdeckt und auch keine zusätzliche Fläche schafft.
Die Oberschränke hätte ich gerne etwa aufgelockerte, als bei der jetzigen Küche. Deswegen war meine Idee, auf der längeren Seite zwei schwarze nicht verbundene Schränke mit dunkler Glaswand anzubringen.
Auf der kurzen L Seite ein großer durchgehender in Weiß Hochglanz ohne Griffe, wie auch die Unterschränke
Folgende E-Geräte waren jetzt so meine Favoriten, aber hängt auch von der Preisgestaltung des Küchenplaners ab. Bei Spülmaschine und Kühlschrank bin ich jetzt nicht so festgelegt.
Nur falls es der große Korpus bei Nolte wird, würde es die Siemens mit VarioScharnier werden.
https://www.siemens-home.bsh -group.com/de/produktliste/kochen-backen/backoefen-herde/backoefen-mit-mikrowelle /HN678G4S6?breadcrumb=cookingbakingovensovenswithmicrowave
https://www.siemens-home.bsh-group.com/de/produktliste/kochen-backen/kochfelder-kochstellen/induktionskochfelder/EX645LYC1E?breadcrumb=cookingbakinghobsinductionhobs
https://www.siemens-home.bsh-group.com/de/produktliste/geschirrspueler/einbau/vollintegrierte-geschirrspueler/SR736D11IE?breadcrumb=dishwashersbuiltindishwashersfullyintegrated
Vielen dank schon mal im Voraus für die Hilfe,
Viele Grüße Janina
Checkliste zur Küchenplanung
Personenkriterien und Ergonomie
Anzahl Personen im Haushalt: 2
Davon Kinder: keine
Körpergrößen aller Hauptbenutzer in cm (wegen Arbeitshöhe ): 160-175
Welche Arbeitshöhe ist angedacht (in cm)?: 90
Gebäudekriterien
Art des Gebäudes: Bestandsbau > (kleinere) Umbauten möglich, Eigentum
Brüstungshöhe des Fensters (in cm): Bodentiefe Fenster
Fensterhöhe (in cm):
Raumhöhe in cm: 250
Heizung: Heizkörper wie im Grundriss
Sanitäranschlüsse: fix
Einbaugerätekriterien
Ausführung Kühlgerät: N. a.
Einbaukühlgerät Größe: 88cm
Ausführung Tiefkühl (TK)-Gerät: Nicht erforderlich bzw. steht woanders
Dunstabzugshaube: keine
Hochgebauter Backofen : ja
Geplante Heißgeräte: Backofen
Hochgebauter Geschirrspüler : nein
Art des Kochfeldes: Induktion
Kochfeldbreite (ca. in cm): 60
Sitzmöglichkeiten
Sitzmöglichkeit in der Küche / im Küchenbereich: Keine
Sitzmöglichkeit: Für wieviel Personen?: N. a.
Sitzmöglichkeit: Tisch - wenn gesonderter Tisch oder offene Küche: N. a.
Gewünschte oder vorhandene Tischgröße:
Wofür soll der Sitzplatz in der Küche genutzt werden und wie häufig:
Stauraumplanung
Was steht auf der Arbeitsplatte oder soll dort stehen?: Kaffeemaschine, Wasserkocher, Allesschneider
Welche weiteren Küchenmaschinen müssen in der Küche untergebracht werden: Handrührgerät, Pürierstab
Was soll in der Küche außer den Standards untergebracht werden: Geschirr komplett (nichts in Ess-/Wohnzimmer)
Welchen Stauraum gibt es sonst noch: N. a.
Kochgewohnheiten
Was/wie wird gekocht? (Alltagsküche, Menüs, Snacks usw): Alltagsküche, aber auch mal aufwendige Menüs, aufwendige Gerichte aus aller Welt mit vielen Komponenten.
Wie häufig wird gekocht: (fast) täglich 1x warm
Wird alleine gekocht? Oder auch gemeinsam? Mit und für Gäste?: meistens nur zu zweit, Gäste eher selten
Spülen und Müll
Spülenform: 1 Becken mit Abtropffläche
Welche Mülltrennung soll in der Küche vorgehalten werden: Biomüll, Restmüll
Sonstiges
Steht schon ein Küchenhersteller fest oder wird bevorzugt: Nolte,Nobilia ,
Steht schon ein Gerätehersteller fest oder wird bevorzugt: Siemens,Bosch
Küchenstil: Grifflose Küche
Was stört an der bisherigen Küche und was soll die neue Küche unbedingt können? Warum?: Der Kühlschrank in der Ecke neben dem Waschbecken steht etwas ungünstig, daher würde ich gerne den Kühlschrank, unter den Backofen im Hochschrank unterbringen.
Der Müll unterm Waschbecken ohne Auszug, da man dort nicht dran kommt wenn jemand abspült.
Preisvorstellung (Budget): 7000-8000
Angehängte Dateien
Anhänge
-
IMG_20200506_130753.jpg65,2 KB · Aufrufe: 497 -
Grundriss2.jpg65,2 KB · Aufrufe: 484 -
Anschlüsse.jpg61,8 KB · Aufrufe: 515 -
IMG-20200504-WA0003.jpg116,3 KB · Aufrufe: 532 -
IMG-20200504-WA0004.jpg115,8 KB · Aufrufe: 528 -
IMG-20200504-WA0005.jpg132,5 KB · Aufrufe: 516 -
Küche.JPG51,7 KB · Aufrufe: 531 -
Küche1.JPG54,2 KB · Aufrufe: 531




