Hilfe für neue Küche

AW: Hilfe für neue Küche

Samy gibtnichtauf

Gut Samy, ich finde diesen Ansatz (Kombination von Tisch und Insel) sehr schön und würde ihn gerne einmal bei einem Küchen-Forum-Teilnehmer realisiert sehen :-)
 
AW: Hilfe für neue Küche

Ja, schon, aber Tisch und Bank gibts leider schon ;-)
 
AW: Hilfe für neue Küche

Nur mal um´s gesehen zu haben...
wobei ich hier evtl vielleicht doch an Koch-Insel denken würde...

Samy
 

Anhänge

  • KF-Irenbi1.jpg
    KF-Irenbi1.jpg
    30,7 KB · Aufrufe: 123
  • KF-Irenbi2.jpg
    KF-Irenbi2.jpg
    29,1 KB · Aufrufe: 120
AW: Hilfe für neue Küche

Hallo irenbi,
ich bin mal meinem ersten Gedanken gefolgt und habe die Küche nach rechts gepackt.

Zunächst die Hochschränke:
- Kühlschrank
- Backofen
- hochgebaute GSP

Dann Spüle und Kochfeld noch auf der Wandzeile, die kurz vor dem Fenster aufhört.

Die Arbeitszeile rundum abgemauert, das spart die Sichtseiten. Realisiert mit 3x80er in Übertiefe, zusammen mit den Seitenteilen entsteht dann 250x75 cm Arbeitsfläche und entsprechender Stauraum.

Die niedrigen Unterschränke, die du vor dem Fenster geplant hast, gefallen mir nicht so.

Dann mal noch skizziert, wie der Raum weitergehen könnte. An der planoben-Wand ist er ja noch breiter als 930 cm ... geht halt mit dem Alnoplaner nicht darzustellen.

Die beiden bodentiefen Fenster im Wohnraum ... wird es da Zugang zu einem Balkon geben?
 

Anhänge

  • kf_irenbi_20100709_Variante1_Grundriss.jpg
    kf_irenbi_20100709_Variante1_Grundriss.jpg
    71,3 KB · Aufrufe: 268
  • kf_irenbi_20100709_Variante1_Ansicht5.jpg
    kf_irenbi_20100709_Variante1_Ansicht5.jpg
    274,2 KB · Aufrufe: 118
  • kf_irenbi_20100709_Variante1_Ansicht4.jpg
    kf_irenbi_20100709_Variante1_Ansicht4.jpg
    172 KB · Aufrufe: 110
  • kf_irenbi_20100709_Variante1_Ansicht3.jpg
    kf_irenbi_20100709_Variante1_Ansicht3.jpg
    207,5 KB · Aufrufe: 114
  • kf_irenbi_20100709_Variante1_Ansicht2.jpg
    kf_irenbi_20100709_Variante1_Ansicht2.jpg
    225,1 KB · Aufrufe: 110
  • kf_irenbi_20100709_Variante1_Ansicht1.jpg
    kf_irenbi_20100709_Variante1_Ansicht1.jpg
    162,2 KB · Aufrufe: 111
  • kf_irenbi_20100709_Variante1.POS
    14,4 KB · Aufrufe: 125
  • kf_irenbi_20100709_Variante1.kpl
    4,1 KB · Aufrufe: 111
AW: Hilfe für neue Küche

Hallo,

vielen Dank für Eure guten Ratschläge.

@Schreinersam :Vorschlag 2 sieht ja so ähnlich aus wie mein 1. Gedanke, nur mit gedrehter Insel.

@
Kerstin: Wäre schön, wenn ich diese Wand benutzen könnte, geht aber nicht.

Heute morgen habe ich nochmal 2 Stunden im Küchenstudio verbracht und es ist jetzt folgende Planung bei rumgekommen:

Arbeitsplattenhöhe 94cm
Hohe Hängeschränke 92 cm. 2x50 cm. Sieht optisch besser aus als die nach oben zu öffnenden Hänger. Meine bessere Hälfte war eh nie dafür.
Bank unter Fenster mit 60 Tiefe und 100 Auszug.
Zum Wohraum hin Regal.
Arbeitinsel von links nach rechts beschrieben:
APL Tiefe = 70 cm
- hochgebauteGSP 130 cm hoch
- 50 Auszug
- 40 Auszug, wobei Abfallsammler unter APL
- 60 Spüle mit innen Auszug
- 50 Auszug

Spülbecken ohne Abtropf. So breit, daß ich ein Backblech reinkriege.

Habe ich versucht mit dem Planer nachzustellen. Man bekommt ja die Bilder nicht mit.

Nebenbei bemerkt
, die beiden bodentiefen Fenster gehen zu einem ca. 6x3,5 m Balkon.

Am Montag habe ich den nächsten Termin in einem anderen Küchenstudio, dem ich bislang nur die Raumdaten und Budget gegeben habe. Bin mal gespannt, was der so geplant hat.

 

Anhänge

  • gesamt.jpg
    gesamt.jpg
    42,7 KB · Aufrufe: 118
  • kochzeile4.jpg
    kochzeile4.jpg
    37,1 KB · Aufrufe: 116
  • arbeitsinsel1.jpg
    arbeitsinsel1.jpg
    41,4 KB · Aufrufe: 114
AW: Hilfe für neue Küche

Hallo Irenbi,
warum geht denn die andere Wand nicht?

Ich finde diesen Teil vor dem Fenster nach wie vor nicht schön. Rechts vom Kochfeld ist zu wenig Platz.

Und --> :grundriss: ... und die Alno -Dateien.

EDIT:
Mich würde auch mal interessieren, wie du den Rest des Raumes möblieren möchtest ... denn hier ist ja auch eine Gesamtwirkung.
 
AW: Hilfe für neue Küche

OK,

Alno Grundriss und zwei Bilder, die ich mit einem normalen Wohnungsplaner gemacht habe. Die Küche kann ich damit aber nicht genau planen. Gibt zuwenig Schränke zur Auswahl, soll nur einen ungefähren Gesamteindruck liefern.

Nach ca. 4 Umzügen in den letzten 15 Jahren sind nicht mehr allzuviele Möbel übriggeblieben. Eine Schrankwand (gibt's das heute noch?) haben wir nicht zu stellen, aber einen grossen Fernseher zu hängen. Der sehe neben der Vitrine auf der langen Wand rechts neben dem Eingang doch ein wenig besch.... aus.

Ich koche und bereite auch gerne beim Fernsehen zu, daher wäre die kurze Wand links neben dem Eingang für den Fernseher ideal.
 

Anhänge

  • WZ_2D.jpg
    WZ_2D.jpg
    31,7 KB · Aufrufe: 245
  • Wohnung.jpg
    Wohnung.jpg
    49,4 KB · Aufrufe: 143
  • gesamt.KPL
    4,1 KB · Aufrufe: 112
  • gesamt.POS
    7,1 KB · Aufrufe: 119
AW: Hilfe für neue Küche

Hallo Irenbi,
da finde ich aber die Position vom Fernseher sehr unbequem .. auch und vor allem für die Sofasitzenden. Außerdem versperrt das Sofa das eine bodentiefe Fenster.

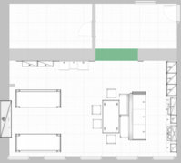
27920d1278849538-hilfe-fuer-neue-kueche-wz_2d.jpg




Auch wg. Fernsehgucken hatte ich deshalb hier den Fernseher ganz links an der Wand gedacht. Von den Sofas kann man dann gemütlich gucken, von der Essgruppe sieht man auch noch etwas und von der Arbeitsinsel (da könnte ja auch die Spüle mit hin) kann man den Fernseher auch sehen. Außerdem sind beide bodentiefen Ausgänge auf die Terrasse/Balkon nutzbar. Man kommt auch bequem aus dem Küchenarbeitsbereich dorthin, z. B., weil dort Kräutertöpfe sind.
27870d1278683021-hilfe-fuer-neue-kueche-kf_irenbi_20100709_variante1_grundriss.jpg



Deshalb nochmal meine Frage "Warum kann die Küche nicht rechts (Planaufsicht)"?
 

Ähnliche Beiträge

Neff Hausgeräte Ballerina Küchen Blum Bewegungstechnologie Weibel - Intelligente Küchenlüftung

Neff Spezial

Blum Zonenplaner

Weibel Abluft-Tuning

Weibel Abluft-Tuning
Zurück
Oben