Erste Küche in Mietwohnung

marcodeu

Mitglied
Beiträge
4
Hallihallo liebe Forenmitglieder,
erst mal herzlichen Dank für das tolle Forum mit den vielen Tips die man beim Querlesen erhält. Ich habe schon viel gelernt und doch fehlt noch sehr viel knowhow. Daher würde mich eure Meinung zu meiner Planung und Eure Tips sehrsehrsehr interessieren. :-)

Also erstmal...ich bin allein in der Wohnung. Es ist auch eine Mietwohnung, also nix mit Anschlüsse verlegen.
Was ich gerne hätte:
-Kühlschrank (normaler Größe, was empfehlt ihr?=
-Gefrierschrank (relativ groß,...also in Schubladen etwa 3-4)
-Ich habe eine Mikrowelle ...wo bringe ich die unter?
-Design ist mir wichtig
-Materialien sind mir auch wichtig.
-Ergonomie...nicht alles entscheidend. Schubladen sind toll...Laufwege finde ich nicht so problematisch.
-Auf jeden Fall Hochbackofen.
-Und eine vollintegrierte Geschirrspülmaschine
-Herstellerfavorit Bauformat
-Fronten momentan Bauformat Murano ESG-Glas Magnolie
-Arbeitsplatte bzw. Wangen in Wildeiche geölt mit einer Tiefe von 90 cm bzw. 60 cm bei 4cm dicke. Auf jeden Fall kostet der Laufmeter etwa 100 Euro.
-Kochfeld Induktion soll 70 - 90 cm haben, Backofen Standardgröße. Die Geräte werde ich mir gebraucht auf Quoka holen. Die lassen sich später günstig (bei passenden Ausschnitten) tauschen.

So...jetzt bin ich gespannt was ich vergessen habe und was euch einfällt.
Vielen Dank schon mal!

Euer Marco
PS: Ich musste bei "welchen Stauraum gibt es sonst noch" etwas anklicken (Pflichtfeld). Was bedeutet "Abseiten"? Das ist nicht korreklt...Bei mir existiert kein weiterer Stauraum.


Checkliste zur Küchenplanung von marcodeu

Anzahl Personen im Haushalt : 1
Davon Kinder? : keine
Körpergrössen aller Hauptbenutzer (wegen Arbeitshöhe ) in cm : 190
Art des Gebäudes? : Bestandsbau, Umbauten ausgeschlossen
Brüstungshöhe des Fensters (in cm) : 103
Fensterhöhe (in cm) : 110
Raumhöhe in cm: : 230
Heizung : Keine Heizung
Sanitäranschlüsse : fix
Ausführung Kühlgerät? : Integriert im Hochschrank (60cm)
Kühlgerät Größe : noch unbekannt
Ausführung Tiefkühl (TK)-Gerät : Im Kühlschrank ab 3 Schubladen unten
Dunstabzugshaube? : Umluft
Hochgebauter Backofen ? : Ja
Hochgebauter Geschirrspüler ? : wenn möglich
Kochfeldart? : Induktion
Kochfeldbreite ca. (in cm)? : 70 bis 90 (was sich findet)
Spülenform: : Noch nicht festgelegt
Weitere geplante Heißgeräte : Standmikrowelle
Küchenstil? : modern
Sitzmöglichkeit in der Küche / im Küchenbereich als : Gesonderter Tisch
Sitzmöglichkeit: Für wieviel Personen? : für 4 Personen
Sitzmöglichkeit: Tisch - wenn gesonderter Tisch oder offene Küche : Vorhandener Tisch
Gewünschte o. vorhandene Tischgröße : 1,50 m x 1 m
Wofür soll der Sitzplatz in der Küche genutzt werden? Wie häufig? : Zum gemütlich zusammensitzen. Essen. .....
Welche Arbeitshöhe ist angedacht (in cm)? : 92
Was steht auf der Arbeitsplatte oder soll dort stehen? : Kaffeevollautomat, Messerblock, Allesschneider, Toaster, Brotbehälter
Welche weiteren Küchenmaschinen müssen in der Küche untergebracht werden? : Küchenmaschine, Wasserkocher, Handrührgerät, Pürierstab
Was soll in der Küche außer den Standards untergebracht werden? : ALLE Vorräte, Staubsauger/Wischer etc., Bügelbrett, Geschirr komplett (nichts in Ess-/Wohnzimmer)
Welchen Stauraum gibt es sonst noch? : (Abseiten) kein weiterer Stauraum
Was/wie wird gekocht? (Alltagsküche, Menüs, Snacks usw) : Alltagsessen.
Wie häufig wird gekocht? : (fast) täglich 1x warm
Wird alleine gekocht? Oder auch gemeinsam? Mit und für Gäste? : Auch mal zu zweit.
Was stört an der bisherigen Küche und was soll die neue Küche unbedingt können? Warum? : Es gibt bisher keine.
Steht schon ein Küchenhersteller fest oder wird bevorzugt? : Mir gefällt bauformat recht gut.
Steht schon ein Gerätehersteller fest oder wird bevorzugt? : nein
Preisvorstellung (Budget) : bis 3.000,-
 

Anhänge

  • PLAN2.KPL
    4,1 KB · Aufrufe: 180
  • PLAN2.POS
    6,1 KB · Aufrufe: 202
  • Küche.jpg
    Küche.jpg
    53,2 KB · Aufrufe: 227
Zuletzt bearbeitet von einem Moderator:
AW: Erste Küche in Mietwohnung

Hallo Marco, herzlich Willkommen hier im Forum! :welcome:

Schön das Du Dich schon ein wenig mit dem Alnoplaner vertraut gemacht hast. Gönnst Du uns auch ein paar Planungsansichten und den Alnogrundriss. Nicht jeder möchte sich die Daten runterladen um einmal kurz drüber zu gucken. ;-)

Du hast ja schon sehr genaue Vorstellungen. Meinst Du das Du mit 3000,- Euro Budget hinkommst? Ich halte das für ein wenig knapp. ;-)
 
AW: Erste Küche in Mietwohnung

Wow...superschnelle Antwort! Vielen Dank! :2daumenhoch:
Anbei sind noch ein paar Bilder.

Zum Budget...nun...ich hoffe dass es reicht, aber eventuell habe ich die Angebote nicht korrekt interpretiert.:-[
Wie meine Planung zustande kommt:
Die Küchenschränke entsprechen im Großen und Ganzen einem Angebot für 1800 Eur. Es gibt zwar Abweichungen, aber diese sind eher eine Angebotsverringerung. Zum Beispiel statt zwei 60er Auszugsschränke nur einer, der dafür als 90er. Was ich "mehr" will entspricht einer telefonischen Angabe des Händlers. Demnach würden Glasfronten etwa 400 Euro Aufpreis kosten. Schriftlich habe ich das nicht. Kann das so sein?

Die Geräte/Spüle, Lieferung/Aufbau sind natürlich bei dem Budget von 3000 nicht dabei. Nur Holz und Fronten.

Aufbau möchte ich selbst machen. Ich weiß...ich bin kein Profi. Aber das handwerkliche macht mir Freude. Ich habe mehrere Anleitungen über das Küchen aufbauen gelesen und vieles hier im Forum. Geübt habe ich an 2 gebrauchten Küchen die wir bei Freunden eingebaut haben. Qualitativ klein Vergleich zu diesem Küchenprojekt, aber im Grunde sollte einiges ähnlich gewesen sein.

Es bestünde noch die Alternative, dass man keine L-Form nimmt, sondern ein Block zu zwei 60er Schränken die 1,49 hoch sind (ähnlich dem Plan "links") und eine Zeile (ähnlich dem Plan "oben") Dann wäre das Angebot unverändert ausser der Änderung der Fronten. Für meinen Raum wäre die obere Zeile dann aber zu lang. :'(

Anbei findet ihr weitere Bilder!
Liebe Grüße!
Marco
 

Anhänge

  • 3D-Bild_1.jpg
    3D-Bild_1.jpg
    30,2 KB · Aufrufe: 215
  • 3D-Bild_2.jpg
    3D-Bild_2.jpg
    42,7 KB · Aufrufe: 214
  • Küche_Plan.jpg
    Küche_Plan.jpg
    34,9 KB · Aufrufe: 203
AW: Erste Küche in Mietwohnung

Nur zur Info, hier noch der genaue Inhalt des ursprünglichen Angebots für ca. 1800.
Es handelt sich um die Cube 130.

Im Lieferumfang sind folgende Möbel bereits enthalten:

60 cm Hochschrank für Kühlschrank (103 Nischenmaß) 149,5 cm hoch 1 Auszüge 1 Tür für Kühlschrank
Frontfarbe Bastia 373 Magnolie Hochglanz
60 cm Hochschrank für Hochbackofen (59 er Nischenmaß) 149,5 cm hoch / 2 Auszüge
Frontfarbe Bastia 373 Magnolie Hochglanz
Abdeckboden 121 * 58 cm in 18 cm Stärke
60 cm Auszugschrank 1 Auszug + 1 Innenschubkasten + 1 Innenauszug /
Frontfarbe Bali 144 Maron
60 cm Spülenunterschrank 1 Tür /
Frontfarbe Bali 144 Maron
60 cm Front für vollintegr. Geschirrspüler /
Frontfarbe Bali 144 Maron

60 cm Auszugschrank 1 Auszug + 1 Innenschubkasten + 1 Innenauszug /
Frontfarbe Bali 144 Maron

120 cm Auszugschrank 2 Auszüge /
Frontfarbe Bali 144 Maron


Arbeitsplatte 361 cm x 60 cm 3,8 cm stark
60 cm Hängeschrank 65 hoch 2 Einlegeböden / Frontfarbe Bastia 373 Magnolie Hochglanz
60 cm Hängeschrank 65 hoch 2 Einlegeböden / Frontfarbe Bastia 373 Magnolie Hochglanz
60 cm Hängeschrank 65 hoch 2 Einlegeböden / Frontfarbe Bastia 373 Magnolie Hochglanz
60 cm Hängeschrank 65 hoch 2 Einlegeböden / Frontfarbe Bastia 373 Magnolie Hochglanz
Sockelmaterial komplett, Montagematerial, Griffe, Aufhängeschienen für Hängeschränke
 
AW: Erste Küche in Mietwohnung

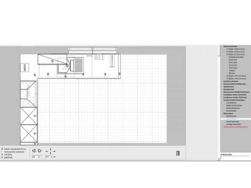
Hallo Marco,
so ganz haut deine Planung nicht hin. Du hast die Blende für die Hochschränke außerhalb des Grundrisses gesetzt. Ist dies möglich, da sich dort keine Wand befindet?

Ansonbsten benötigst zu ca. 5 cm Blende um den Schrank öffnen zu können.

Beim Kochfeld würde ich dir zu einem 70er raten, damit du 20 cm Abstand zum HS hast.
Ansonsten stehen dir die Griffe der Töpfe über und die Gefahr des Herunterreissens ist sehr hoch.
 
AW: Erste Küche in Mietwohnung

Hallo Mela,
vielen Dank für deinen Hinweis.
Schau mal...jetzt müsste es passen. Aber der Rand aussen ist nur 3 cm. Warum kann man denn dann die Tür des HS nicht öffnen? Benötige ich auf jeden Fall 5cm? Ich habe im Moment auch noch das Problem, dass ich die Massivholzplatte, die ich gerne als 90er tiefe Platte auf der Längsseite (oben) haben möchte im Moment nur als 85er Platte eingeplant habe. Sonst bekomme ich das einfach nicht sauber unter. Oder was fällt euch dazu noch ein?
Liebe Grüße,
Marco
 

Anhänge

  • 3D-Bild_3.jpg
    3D-Bild_3.jpg
    31,7 KB · Aufrufe: 206
AW: Erste Küche in Mietwohnung

Die Blende wird gesetzt, weil Wände in den seltensten Fälle ganz gerade sind und du ja Platz benötigst um die Schranktür im 90 Gradwinkel zu öffnen. Ob 3 cm in deinem Fall ausreichen kann ich nicht beurteilen.

85 cm Plattentiefe sind doch ganz ordentlich und dann hättest du keine Probleme mit der Blende.

Mir ist nicht bekannt ob es Holzarbeitsplatten mit einer von dir gewünschten Tiefe gibt.
 
AW: Erste Küche in Mietwohnung

Hallo Marco,

92cm Arbeitshöhe bei 190cm Größe kommt mir zu niedrig vor. Ist das wirklich nachgeprüft? Dein Hersteller würde sich ja auch mit etwas höherem Sockel prima für eine größere Arbeitshöhe eignen:
ARBEITSHÖHE ermitteln
3 Methoden haben sich da etabliert:
- Ellbogen abwinkeln und von dort 15 cm runtermessen
- Höhe Beckenknochen messen
- z. B. ein Bügelbrett nehmen und in verschiedenen Höhen länger Probeschnippeln und messen, wenn es einem am bequemsten erscheint. Sich Vorbeugen, dann ist's zu niedrig, die Schultern hochziehen, dann ist's zu hoch.
Idealerweise ergeben alle 3 Methoden ca. denselben Wert.

Auch wenn die Wand holzvertäfelt ist, kann man sie als Küche nutzen, entweder für Hochschränke oder mit einem Spritzschutz dran auch mit Unterschränken.
Solltest du also noch mehr Stauraum benötigen...
 
AW: Erste Küche in Mietwohnung

85 bis 90 cm tiefe APL vorm Fenster, das man vermutlich nicht von außen putzen kann .. da sollte man mal überlegen, was einem noch an Lösungen einfällt. Insbesondere die so entstehende sehr tiefe tote Ecke stört mich da doch sehr.

Über die Arbeitshöhe solltest du wirklich nochmal nachdenken, zumal das Fenster dir da ja keine Einschränkung gibt.

Wo willst du denn einen TK-Schrank unterbringen, wenn die Hochschränke nur 145 cm hoch sind?

Soll der Tisch von 100x150 cm mit in dem Küchenbereich stehen? Wo denn da? Das wird mit der übertiefen APL dann aber eng.
 

Ähnliche Beiträge

Neff Hausgeräte Ballerina Küchen Blum Bewegungstechnologie Weibel - Intelligente Küchenlüftung

Neff Spezial

Blum Zonenplaner

Weibel Abluft-Tuning

Weibel Abluft-Tuning
Zurück
Oben