Landk
Mitglied
- Beiträge
- 10
Hallo 
Wir sind derzeit an der Planung Architektenhauses. Aktuell beschäftigt uns hierbei die Küchenplanung .
Leider ändern wir derzeit fast täglich unsere Meinungen und je mehr wir lesen und anschauen um so weniger wissen wir Bescheid.
Vielleicht könnt Ihr uns ein paar Tipps geben.
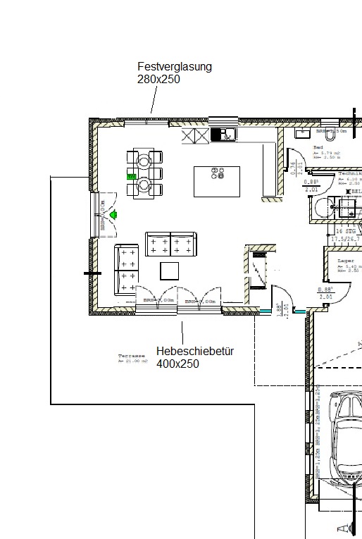
Mit dem aktuellen Plan der Küche/Wohn-/Esszimmer sind wir nicht 100% zufrieden. Die Außenmaße sind fix, die Aufteilung können noch geändert werden.
Wir hätten gerne einen Hochschrank und eine Insel, diese darf einseitig angedockt sein. Das Spülbecken als auch die Herdplatte würden wir gerne in der Insel unterbringen.
Vielen Dank schon mal für eure Mühe und Unterstützung jeglicher Art.
Grüße
Katrin
Checkliste zur Küchenplanung
Anzahl Personen im Haushalt: 2
Davon Kinder?: 1
Art des Gebäudes?: Neu-/Umbau, Planänderungen möglich
Körpergrössen aller Hauptbenutzer (wegen Arbeitshöhe ) in cm:
Brüstungshöhe des Fensters (in cm):
Fensterhöhe (in cm):
Raumhöhe in cm:
Heizung:
Sanitäranschlüsse: vollkommen variabel
Ausführung Kühlgerät: Integriert im Hochschrank
Kühlgerät Größe:
Ausführung Tiefkühl (TK)-Gerät:
Dunstabzugshaube:
Backofen etc. hochgebaut?: Ja
Hochgebauter Geschirrspüler ?:
Kochfeldart:
Kochfeldbreite ca. (in cm)?:
Spülenform:
Geplante Heißgeräte:
Küchenstil:
Sitzmöglichkeit in der Küche / im Küchenbereich: Nein
Sitzmöglichkeit: Für wieviel Personen?:
Sitzmöglichkeit: Tisch - wenn gesonderter Tisch oder offene Küche:
Gewünschte o. vorhandene Tischgröße: 180
Wofür soll der Sitzplatz in der Küche genutzt werden? Wie häufig?:
Welche Arbeitshöhe ist angedacht (in cm)?:
Was steht auf der Arbeitsplatte oder soll dort stehen?:
Welche weiteren Küchenmaschinen müssen in der Küche untergebracht werden?: Kitchenaid
Was soll in der Küche außer den Standards untergebracht werden?:
Welchen Stauraum gibt es sonst noch?: Keller, HWR
Was/wie wird gekocht? (Alltagsküche, Menüs, Snacks usw): sowohl als auch
Wie häufig wird gekocht?: 5-6 mal die Woche
Wird alleine gekocht? Oder auch gemeinsam? Mit und für Gäste?: Sowohl als auch
Was stört an der bisherigen Küche und was soll die neue Küche unbedingt können? Warum?:
Welche Mülltrennung soll in der Küche vorgehalten werden?: Biomüll, Gelber Sack, Restmüll
Steht schon ein Küchenhersteller fest oder wird bevorzugt?: Nein
Steht schon ein Gerätehersteller fest oder wird bevorzugt?: Nein
Preisvorstellung (Budget):
Wir sind derzeit an der Planung Architektenhauses. Aktuell beschäftigt uns hierbei die Küchenplanung .
Leider ändern wir derzeit fast täglich unsere Meinungen und je mehr wir lesen und anschauen um so weniger wissen wir Bescheid.
Vielleicht könnt Ihr uns ein paar Tipps geben.
Mit dem aktuellen Plan der Küche/Wohn-/Esszimmer sind wir nicht 100% zufrieden. Die Außenmaße sind fix, die Aufteilung können noch geändert werden.
Wir hätten gerne einen Hochschrank und eine Insel, diese darf einseitig angedockt sein. Das Spülbecken als auch die Herdplatte würden wir gerne in der Insel unterbringen.
Vielen Dank schon mal für eure Mühe und Unterstützung jeglicher Art.
Grüße
Katrin
Checkliste zur Küchenplanung
Anzahl Personen im Haushalt: 2
Davon Kinder?: 1
Art des Gebäudes?: Neu-/Umbau, Planänderungen möglich
Körpergrössen aller Hauptbenutzer (wegen Arbeitshöhe ) in cm:
Brüstungshöhe des Fensters (in cm):
Fensterhöhe (in cm):
Raumhöhe in cm:
Heizung:
Sanitäranschlüsse: vollkommen variabel
Ausführung Kühlgerät: Integriert im Hochschrank
Kühlgerät Größe:
Ausführung Tiefkühl (TK)-Gerät:
Dunstabzugshaube:
Backofen etc. hochgebaut?: Ja
Hochgebauter Geschirrspüler ?:
Kochfeldart:
Kochfeldbreite ca. (in cm)?:
Spülenform:
Geplante Heißgeräte:
Küchenstil:
Sitzmöglichkeit in der Küche / im Küchenbereich: Nein
Sitzmöglichkeit: Für wieviel Personen?:
Sitzmöglichkeit: Tisch - wenn gesonderter Tisch oder offene Küche:
Gewünschte o. vorhandene Tischgröße: 180
Wofür soll der Sitzplatz in der Küche genutzt werden? Wie häufig?:
Welche Arbeitshöhe ist angedacht (in cm)?:
Was steht auf der Arbeitsplatte oder soll dort stehen?:
Welche weiteren Küchenmaschinen müssen in der Küche untergebracht werden?: Kitchenaid
Was soll in der Küche außer den Standards untergebracht werden?:
Welchen Stauraum gibt es sonst noch?: Keller, HWR
Was/wie wird gekocht? (Alltagsküche, Menüs, Snacks usw): sowohl als auch
Wie häufig wird gekocht?: 5-6 mal die Woche
Wird alleine gekocht? Oder auch gemeinsam? Mit und für Gäste?: Sowohl als auch
Was stört an der bisherigen Küche und was soll die neue Küche unbedingt können? Warum?:
Welche Mülltrennung soll in der Küche vorgehalten werden?: Biomüll, Gelber Sack, Restmüll
Steht schon ein Küchenhersteller fest oder wird bevorzugt?: Nein
Steht schon ein Gerätehersteller fest oder wird bevorzugt?: Nein
Preisvorstellung (Budget):
Anhänge
Zuletzt bearbeitet:
