inxs
Mitglied
- Beiträge
- 150
- Wohnort
- Tübingen
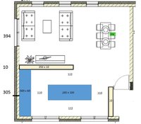
Dann hast du wieder nicht die Küche am Garten, wie gesagt überlegt euch bitte mal eure täglichen Abläufe und Laufwege. Wie sieht ein normaler Arbeitstag aus? Wie ist es am Wochenende? Wie ist es im Sommer beim Grillen oder wenn Freunde da sind. Wo laufen die Kinder/Gäste lang. Wo will man seine Ruhe haben und was will man schnell erreichen?
Zum Thema reinkommen:
1. Ich würde das mit der Küche jetzt nicht so mega wörtlich sehen. Der Plan vom Florian ist wirklich ein Raum bei dem ich mir vorstellen könnte, dass hier hier viel Zeit verbringen könnt OHNE zu Kochen. Das ist so ein Raum an dem man sich trifft, quatscht und Kaffee trinkt. Alles direkt an der Südseite mit viel Sonne und direktem Zugang zum Garten. "Ich stehe direkt in der Küche" klingt so negativ. Warum sollte es nicht positiv klingen?
Das bringt mich zu Punkt
2. Wo wollt Ihr euren Besuch denn hinführen? Direkt zum Sofa? Ich denke eher, dass eine richtig schicke Küche mit Insel wie bei Florians Plan eher einen positiven Eindruck macht und präsentiert, dass hier ein zentraler Punkt im Haus ist.
Aber das ist nur meine Meinung
Ich möchte dir einfach Zeigen, dass man alle Dinge auch anders sehen kann. Löst euch von dem denken was immer ALLE haben und findet euren eigenen Weg 
Grüße
Jonny
PS: Florian hat es mit der Wandstärke etwas gut gemeint. Da ihr im Wohn/Ess/Kochbereich keine tragenden Wände braucht würden hier auch 10er Wände reichen. Bieten sogar einen guten Schallschutz.
Zum Thema reinkommen:
1. Ich würde das mit der Küche jetzt nicht so mega wörtlich sehen. Der Plan vom Florian ist wirklich ein Raum bei dem ich mir vorstellen könnte, dass hier hier viel Zeit verbringen könnt OHNE zu Kochen. Das ist so ein Raum an dem man sich trifft, quatscht und Kaffee trinkt. Alles direkt an der Südseite mit viel Sonne und direktem Zugang zum Garten. "Ich stehe direkt in der Küche" klingt so negativ. Warum sollte es nicht positiv klingen?
Das bringt mich zu Punkt
2. Wo wollt Ihr euren Besuch denn hinführen? Direkt zum Sofa? Ich denke eher, dass eine richtig schicke Küche mit Insel wie bei Florians Plan eher einen positiven Eindruck macht und präsentiert, dass hier ein zentraler Punkt im Haus ist.
Aber das ist nur meine Meinung
Grüße
Jonny
PS: Florian hat es mit der Wandstärke etwas gut gemeint. Da ihr im Wohn/Ess/Kochbereich keine tragenden Wände braucht würden hier auch 10er Wände reichen. Bieten sogar einen guten Schallschutz.

