- Beiträge
- 58.532
AW: Planung einer Landhausküche - 17 qm
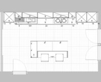
So, mal meine Variante.
Solo-Kühlschrank mit Linksanschlag. Das könnte dann z. B. ein CBNPes 3967 PremiumPlus BioFresh NoFrost sein, der hat auch einen Eiswürfelbereiter im TK-Fach und braucht den Wasseranschluß. Ich habe das Vorgängermodell und bin sehr zufrieden.
Da auch sonst genug Stauraum ist, habe ich daher den Kühlschrank und den Backofen (Mikrowelle oder Dampfgarer dazu?) mal in Trockenbau eingebaut. Wandgestaltung hier mit der Steintapete, ich könnte mir aber auch eine tolle Vliestapete vorstellen. Ich habe z. B. an der Wohnzimmerdecke eine, die ein bisschen wie unregelmäßig gefärbter Putz aussieht.
Unter dem Backofen noch ein Schrankfach mit einer Edelstahltür, um z. B. nicht benötigte Backbleche senkrecht einzustellen. Kann auch einfach entfallen.
Dann planoben die Zeile:
- 30er für Gewürze/Öle/Essig etc.
- 90er mit Kochfeld
- 90er für Küchenhelfer, Schüsseln, Folien usw.
- 90er Spülenschrank, im oberen Auszug dürfte noch der gelbe-Sack-Müll und die Putzmittel Platz haben, unten Stauraum
- 30er, wobei der 3-rasterige Auszug für Bio/Restmüll gedacht ist.
- 60er GSP leicht erhöht, darauf der KVA
Auf der anderen Seite dann nochmal Trockenbau. Der Platz zwischen den beiden 90er Unterschränken kann man eh schlecht erschließen und ich denke, ihr braucht den Platz nicht.
Planlinks das Geschirr, damit auch gut vom Esszimmer erreichbar, planrechts könnten Backformen, Backzutaten, Küchenmaschine usw. stehen.
Zur Küche hin die Tischplatte mit einem kleinen Sideboard unterstützt, da könnten Körbe mit Zwiebeln, Kartoffeln, Obst usw. stehen.
Die Halbinsel von dem T liegt auf kurzem Dreieckweg zwischen Spüle und Kochfeld und kann sehr gut als erweiterte Schnippelfläche, Kommunikationsinsel, Anrichtestelle, Buffetplatz usw. genutzt werden. Gäste werden sich dort gerne sammeln und die Köchin unterhalten.
DAH als Deckenhaube
Beispiele für realisierte Deckenhauben
Diese ganze Version nutzt voll die Kranzleisten aus. Im nächsten Beitrag mal mit reduzierten Kranzleisten (Kostenfaktor).
So, mal meine Variante.
Solo-Kühlschrank mit Linksanschlag. Das könnte dann z. B. ein CBNPes 3967 PremiumPlus BioFresh NoFrost sein, der hat auch einen Eiswürfelbereiter im TK-Fach und braucht den Wasseranschluß. Ich habe das Vorgängermodell und bin sehr zufrieden.
Da auch sonst genug Stauraum ist, habe ich daher den Kühlschrank und den Backofen (Mikrowelle oder Dampfgarer dazu?) mal in Trockenbau eingebaut. Wandgestaltung hier mit der Steintapete, ich könnte mir aber auch eine tolle Vliestapete vorstellen. Ich habe z. B. an der Wohnzimmerdecke eine, die ein bisschen wie unregelmäßig gefärbter Putz aussieht.
Unter dem Backofen noch ein Schrankfach mit einer Edelstahltür, um z. B. nicht benötigte Backbleche senkrecht einzustellen. Kann auch einfach entfallen.
Dann planoben die Zeile:
- 30er für Gewürze/Öle/Essig etc.
- 90er mit Kochfeld
- 90er für Küchenhelfer, Schüsseln, Folien usw.
- 90er Spülenschrank, im oberen Auszug dürfte noch der gelbe-Sack-Müll und die Putzmittel Platz haben, unten Stauraum
- 30er, wobei der 3-rasterige Auszug für Bio/Restmüll gedacht ist.
- 60er GSP leicht erhöht, darauf der KVA
Auf der anderen Seite dann nochmal Trockenbau. Der Platz zwischen den beiden 90er Unterschränken kann man eh schlecht erschließen und ich denke, ihr braucht den Platz nicht.
Planlinks das Geschirr, damit auch gut vom Esszimmer erreichbar, planrechts könnten Backformen, Backzutaten, Küchenmaschine usw. stehen.
Zur Küche hin die Tischplatte mit einem kleinen Sideboard unterstützt, da könnten Körbe mit Zwiebeln, Kartoffeln, Obst usw. stehen.
Die Halbinsel von dem T liegt auf kurzem Dreieckweg zwischen Spüle und Kochfeld und kann sehr gut als erweiterte Schnippelfläche, Kommunikationsinsel, Anrichtestelle, Buffetplatz usw. genutzt werden. Gäste werden sich dort gerne sammeln und die Köchin unterhalten.
DAH als Deckenhaube
Beispiele für realisierte Deckenhauben
Diese ganze Version nutzt voll die Kranzleisten aus. Im nächsten Beitrag mal mit reduzierten Kranzleisten (Kostenfaktor).
Anhänge
-
kf_soto_20121008_kb_var1_Grundriss.jpg22,8 KB · Aufrufe: 212 -
kf_soto_20121008_kb_var1.kpl4,1 KB · Aufrufe: 145
-
kf_soto_20121008_kb_var1.POS10,7 KB · Aufrufe: 153
-
kf_soto_20121008_kb_var1_Ansicht1.jpg38,5 KB · Aufrufe: 217 -
kf_soto_20121008_kb_var1_Ansicht2.jpg43,6 KB · Aufrufe: 712 -
kf_soto_20121008_kb_var1_Ansicht3.jpg29 KB · Aufrufe: 827 -
kf_soto_20121008_kb_var1_Ansicht4.jpg27,3 KB · Aufrufe: 388 -
kf_soto_20121008_kb_var1_Ansicht5.jpg27,5 KB · Aufrufe: 440

