Unbeendet Offene U-Küche 3mx3m im RMH mit Arbeitshalbinsel

DanielF

Mitglied
Beiträge
3
Hallo zusammen,

zunächst einmal ein großes Lob an das Engagement und die Qualität der Hilfestellungen hier im Forum.

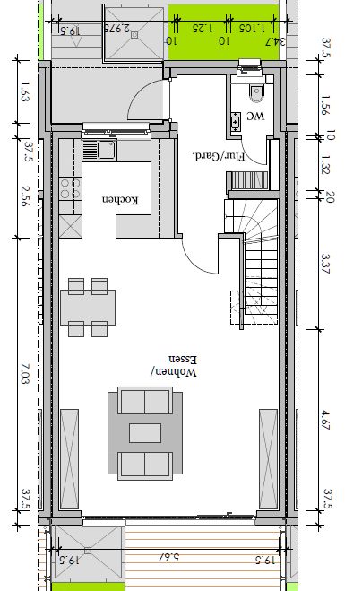
Meine Frau und ich haben vor Kurzem ein RMH von einem Bauträger gekauft, welches im September 2015 bezugsfertig sein soll. Da der Rohbau bis Ende 2014 stehen soll, beschäftigen wir uns schon mit der Küchenplanung , um Anschlüsse, Mauerkasten etc. festzulegen.

Der Küchengrundriss hat eine Breite von 2,97m und eine Tiefe von eigentlich nur 2,56m. Da uns die Tiefe etwas knapp erscheint, planen wir, ein 50cm Wandstück an die offene Seite zu setzen und somit 3m Tiefe zu haben. Damit verlieren wir zwar etwas Wohnraum, aber das scheint zu reichen. Hier sind wir aber offen für andere gute Ideen (Wandstück noch um die Seite am Hochschrank ?).

Die Küche soll Bodenfliesen bekommen und der Rest des Wohnraums Parkett .
Hat jemand Erfahrung mit Parkett in der Küche?

Da die Breite mit 3m relativ groß ist, haben wir eine Arbeitshalbinsel eingeplant. Diese soll Schubladenschränke in Richtung Esstisch bekommen, wo Geschirr aufbewahrt werden soll.

Einen Tresen oder Sitzgelegenheit in der Küche benötigen wir nicht, da der Esstisch direkt daneben im Wohnbereich steht. Hier soll lieber Arbeitsfläche mit der Halbinsel entstehen.

Gesetzt sind weiterhin eine Ablufthaube (im Visier: Berbel BKH 90 ergoline WS), der hochgesetzte Backofen und eine Einbaumikrowelle. Auch einen Hochschrank (Tür und Schubladen) für Lebensmittel wollen wir vorsehen (60cm im Plan). Im Keller wird es einen Abstellraum und Vorratsraum geben, wo auch ein Gefrierschrank stehen wird.

Noch unentschlossen sind wir bei folgenden Punkten:

- Hochgesetzter Geschirrspüler (im angehängten Plan nicht berücksichtigt, sondern im Unterschrank vollintegriert bei der Spüle)

- Dampfgarer (im Plan berücksichtigt über Backofen , die Einbaumikrowelle dann daneben im Hängeschrank)

- Tiefe der Arbeitshalbinsel 60cm oder mehr?

Zudem gibt es interessante Alternativen die rechte Seite hinter den Hochschränken zu gestalten: z.B. Hochschränke bis zur Arbeitsfläche und dort ein Aufsatzschrank mit Rolladen oder die Ecke mit Mauer/Sperrholz schließen mit eingesetzten Regalböden.

Die Kochfläche muss wohl auf der linken Seite sein und damit die Hochschränke auf der rechten, da rechts kein Platz für einen Mauerkasten wäre.
Hier eine Frage am Rande: der Mauerkasten endet im Eingangsbereich vor der Haustür (2,97m x 1,63m), welcher überdacht ist. Somit kann die Abluft nicht direkt nach oben abziehen. Hat jemand mit so einer Situation Erfahrung bzgl. Verschmutzung?

Der angehängte Plan gefällt uns bereits sehr gut. Wir sind gespannt auf Eure Tipps und Kommentare.

Checkliste zur Küchenplanung

Anzahl Personen im Haushalt: 2
Davon Kinder?:
Art des Gebäudes?:
Neu-/Umbau, Planänderungen möglich
Körpergrössen aller Hauptbenutzer (wegen Arbeitshöhe ) in cm: 160cm und 175cm
Brüstungshöhe des Fensters (in cm): 106cm
Fensterhöhe (in cm): 121cm
Raumhöhe in cm: 260cm
Heizung: Fussbodenheizung
Sanitäranschlüsse: vollkommen variabel
Ausführung Kühlgerät: Integriert im Hochschrank (60cm)
Kühlgerät Größe: bis 178 cm Höhe
Ausführung Tiefkühl (TK)-Gerät: Im Kühlschrank bis 2 Schubladen unten
Dunstabzugshaube: Abluft
Backofen etc. hochgebaut?: Ja
Hochgebauter Geschirrspüler ?: Wenn möglich
Kochfeldart: Induktion
Kochfeldbreite ca. (in cm)?: 80cm
Spülenform: 1 Becken mit Abtropffläche
Geplante Heißgeräte: Einbaumikrowelle, Dampfgarer ohne Wasseranschluß, Backofen
Küchenstil: Klassisch
Sitzmöglichkeit in der Küche / im Küchenbereich: Keine
Sitzmöglichkeit: Für wieviel Personen?: Nein
Sitzmöglichkeit: Tisch - wenn gesonderter Tisch oder offene Küche: Wird nach Bedarf neu gekauft
Gewünschte o. vorhandene Tischgröße: 180cm x 100cm
Wofür soll der Sitzplatz in der Küche genutzt werden? Wie häufig?:
Welche Arbeitshöhe ist angedacht (in cm)?:
92cm
Was steht auf der Arbeitsplatte oder soll dort stehen?: Kaffeemaschine, Kaffeevollautomat, Wasserkocher, Toaster
Welche weiteren Küchenmaschinen müssen in der Küche untergebracht werden?: Küchenmaschine, Handrührgerät, Mixer
Was soll in der Küche außer den Standards untergebracht werden?: Geschirr komplett (nichts in Ess-/Wohnzimmer)
Welchen Stauraum gibt es sonst noch?: Hauswirtschaftsraum, Keller
Was/wie wird gekocht? (Alltagsküche, Menüs, Snacks usw): Alltagsküche
Wie häufig wird gekocht?(fast) täglich 1x warm[/COLOR]
Wird alleine gekocht? Oder auch gemeinsam? Mit und für Gäste?: Meistens allein, manchmal zu zweit, seltener mit mehr als zwei Personen, aber öfter für mehr als zwei...
Was stört an der bisherigen Küche und was soll die neue Küche unbedingt können? Warum?: Die aktuelle Wohnküche in unserer Mietwohnung ist ok. Arbeitsfläche 2,80m, separater Küchschrank, Waschmaschine, ein Hochschrank für Haushaltskram (Staubsauger etc.), ein Hochschrank für Lebensmittel. Einziger großer Nachteil ist die Umlufthaube (Miele ). Hier muss jedesmal die Küche gelüftet werden nach dem Kochen. Daher wird die neue Küche eine Ablufthaube bekommen (trotz KfW55).
Welche Mülltrennung soll in der Küche vorgehalten werden?: Biomüll, Gelber Sack Müll, Restmüll
Steht schon ein Küchenhersteller fest oder wird bevorzugt?: Alno , Wellmann, o.ä, aber offen für andere
Steht schon ein Gerätehersteller fest oder wird bevorzugt?: Siemens , AEG , Miele
Preisvorstellung (Budget): bis 15.000,-
 
Zuletzt bearbeitet:
Hier unsere aktuelle Planung
 

Anhänge

  • 20140928_EG_Variante1.1.KPL
    3,9 KB · Aufrufe: 244
  • 20140928_EG_Variante1.1.POS
    9,9 KB · Aufrufe: 210
  • 20140928_EG_Variante1.1_Bild1.JPG
    20140928_EG_Variante1.1_Bild1.JPG
    82 KB · Aufrufe: 476
  • 20140928_EG_Variante1.1_Bild2.JPG
    20140928_EG_Variante1.1_Bild2.JPG
    75,9 KB · Aufrufe: 668
  • 20140928_EG_Variante1.1_Bild3.JPG
    20140928_EG_Variante1.1_Bild3.JPG
    79,8 KB · Aufrufe: 576
  • 20140928_EG_Variante1.1_Bild4.JPG
    20140928_EG_Variante1.1_Bild4.JPG
    100,1 KB · Aufrufe: 606
  • 20140928_EG_Variante1.1_Bild5.JPG
    20140928_EG_Variante1.1_Bild5.JPG
    82 KB · Aufrufe: 425
  • 20140928_EG_Variante1.1_Bild6..JPG
    20140928_EG_Variante1.1_Bild6..JPG
    83,4 KB · Aufrufe: 444
  • Grundriss.jpg
    Grundriss.jpg
    58,4 KB · Aufrufe: 406
  • 20140928_EG_Variante1.1_Planungsansicht.JPG
    20140928_EG_Variante1.1_Planungsansicht.JPG
    34,2 KB · Aufrufe: 455
Hallo Daniel :welcome: im Forum.
Sehr schöne Vorstellung:2daumenhoch: und so schön ausführlich.

Als erstes fiel mir die Mikrowelle ins Auge, ich finde die Dinger auf der Höhe eines Hängeschranks einfach gefährlich, mir ist schon mehr als einmal die Milch aus der Tasse hoch gekommen, als ich sie aus der Mikrowelle nehmen wollte, aber ich kann da halt rein gucken, aber da oben? Alternative wäre einmal einen Backofen mit integrierter Mikrowelle zu nehmen oder in einem zusätzlichen Hochschrank über der dann erhöhten GSP.
Hier mal ein bisschen umgeschoben:
Zuerst mal überall auch die nötigen Blenden rein, sonst schrappen die Laden und Türen aneinander;-)
DanielF-1-1.JPG



Ich habe es bei 3 Hochschränken belassen, aber die GSP etwas erhöht (hier ein Kühlschrankschrank als Dummy;-)), die Ecke habe ich als Stellplatz für die Geräte gelassen.
DanielF-1-2.JPG


Die Spüle in einem Spüleneckschrank in dem dann die Leitungen für die GSP im Sockel zur GSP geführt werden können, hier kann außerdem der Gelbe Sack und Putzzeugs seinen Platz finden. Biomüll und Restmüll kommen in den MUPL
DanielF-1-3.JPG

DanielF-1-4.JPG


Ich würde wahrscheinlich auch den *Inselschrank* zur Küche hin drehen.
 

Anhänge

  • DanielF-1.KPL
    3,9 KB · Aufrufe: 220
  • DanielF-1.POS
    11,2 KB · Aufrufe: 224
Hallo Angelika,
vielen Dank für deine super Tipps :danke:
Wegen des schönen Wetters am langen Wochenende haben wir uns erst heute wieder mit dem Thema befasst.
Da du nicht alles umgeschoben hast, scheint unsere Planung gar nicht so schlecht gewesen zu sein.;-)
Nach einiger Überlegung werden wir den GSP wahrscheinlich doch nicht hochsetzen, da wir ungern auf unseren Vorratshochschrank verzichten wollen.
Außerdem müssen wir die Spüle wohl links lassen, da das rechte große Fenster zu öffnen ist und evtl. mit dem Wasserhahn zusammenstoßen würde. Das müssen wir nochmal genau prüfen.
Wir posten dann unsere endgültige Planung nach dem Gang ins Küchenstudio .
Gruß
Daniel
 
Das wäre aber schade, denn Angelika hat gerade die schöne Hauptarbeitsfläche mit MUPL zwischen Spüle und Kochfeld geschaffen.

Man könnte den Wasserhahn an der rechten Spülenecke setzen. Dann kann das Fenster auf jeden Fall zumindest mit ca. 70° geöffnet werden .. zum Putzen ;-). Man kann auch über einen wegklappbaren Wasserhahn nachdenken.

Vorräte kann man auch in Unterschränken verstauen. Davon gibt es ja mehr, wenn die GSP im Hochschrank verschwindet. Der 50er Unterschrank neben der GSP würde sich da anbieten, dort dann evtl. Rasterung eher 2-2-2 und der Platz unter dem Backofen .
 
Ich persönlich finde die Vorräte in Unterschränken verstaut ziemlich gut, man hat sehr gute Übersicht, leider passt das bei mir nur in zwei Laden. Je nach Größe der Vorratsbehälter müsste es auch 3-er Raster sein, meine großen Gläser passen ganz knapp NICHT in den 2-er, sonst hätte ich bestimmt schon mal umgeräumt;-)
Ich bin auch kein 100%-Verfechter von hochgebauter GSP, aber HIER passt es sooo schön:kiss:
 
eben: bei guter Wahl von Spüle und Wasserhahn ist die geplante Spülenposition kein Problem.
 

Ähnliche Beiträge

Neff Hausgeräte Ballerina Küchen Blum Bewegungstechnologie Weibel - Intelligente Küchenlüftung

Neff Spezial

Blum Zonenplaner

Weibel Abluft-Tuning

Weibel Abluft-Tuning
Zurück
Oben