Duerer
Mitglied
- Beiträge
- 2
Hallo Zusammen,
so auch bei uns geht es ans Küchenkaufen. Nach den ersten Angeboten, und Planungsvorschlägen sind wir noch verwirrter als vorher.
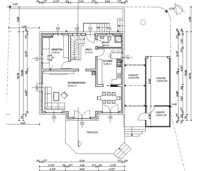
Wir bauen ein Haus und benötigen demnächst den Anschlussplan für den Architekten, damit Wasser und Stromanschlüsse geplant werden können.
Das eingezeichnete Fenster ist fix. Bei Bedarf kann noch ein weiteres eingebaut werden, was aber die Aussenansicht eigentlich verschandelt
Leider gibt es aber soviele Möglichkeiten, dass wir uns nicht entscheiden können.
Wir haben versucht die Pläne im ALNO Planer mal nachzubauen. Allerdings nur mit mäßigem Erfolg. Aber ich denke, man kann die Grundrisse erkennen.
Leider kann ich keine Bilder erzeugen "STRG+ALT+S" funktioniert nicht. Wird nur ein graues Bild erzeugt. Auch Bilder aus der Vollasicht lassen sich nicht speichern.
Aber ich habe die KPL Dateien angehängt.
Plan 1: Da ist Kochfeld und Spüle in einer Reihe. Leider keinen Platz für eine hochgebaute Spülmaschine.
Plan 2: Kochfeld und Spüle getrennt. Hierbei kocht man allerdings mit dem Rücken zum Fenster/Licht.
Plan3: Variante mit Essplatz an der Wand
Welche Variante ist die Beste? Bzw wer kann uns Tipps zur Aufstellung geben.
Wir wollen eine lackierte Küche und haben Angebote von Schüller , ALNO, Nobilia und Wellmann. Wobei die letzten beiden die billigsten sind.
Anbei auch ein Maßplan der Küche und des gesamten EG.
Anregungen sind herzlich willkommen.
Auch für Tipps, welchen Küchenhändler im Raum Nürnberg/Fürth/Erlangen Ihr weiterempfehlen könnt, sind wir dankbar.
Vielen Dank
Liebe Grüße
B&T
Checkliste zur Küchenplanung von Duerer
Anzahl Personen im Haushalt : 2
Davon Kinder? : keine
Körpergrössen aller Hauptbenutzer (wegen Arbeitshöhe ) in cm : 175 und 180
Art des Gebäudes? : Neu-/Umbau, Planänderungen möglich
Brüstungshöhe des Fensters (in cm) : 100
Fensterhöhe (in cm) : 126
Raumhöhe in cm: : 250
Heizung : Fussbodenheizung
Sanitäranschlüsse : vollkommen variabel
Ausführung Kühlgerät? : Integriert im Hochschrank
Kühlgerät Größe : bis 175 cm Höhe
Ausführung Tiefkühl (TK)-Gerät : Im Kühlschrank als kleines Fach oben
Dunstabzugshaube? : Umluft
Hochgebauter Backofen ? : Ja
Hochgebauter Geschirrspüler ? : ja
Kochfeldart? : Induktion
Kochfeldbreite ca. (in cm)? : 60
Spülenform: : 1 Becken mit Abtropffläche
Weitere geplante Heißgeräte : Standmikrowelle
Küchenstil? : klassisch
Sitzmöglichkeit in der Küche / im Küchenbereich als : Überstehende Arbeitsplatte
Sitzmöglichkeit: Für wieviel Personen? : für 2 Personen
Sitzmöglichkeit: Tisch - wenn gesonderter Tisch oder offene Küche : Wird nach Bedarf neu gekauft
Gewünschte o. vorhandene Tischgröße : nicht vorhanden
Wofür soll der Sitzplatz in der Küche genutzt werden? Wie häufig? : Zum Frühstücken, oder für schnellen Imbiss
Welche Arbeitshöhe ist angedacht (in cm)? :
Was steht auf der Arbeitsplatte oder soll dort stehen? : Messerblock, Allesschneider, Brotbehälter
Welche weiteren Küchenmaschinen müssen in der Küche untergebracht werden? : Wasserkocher, Toaster, Mixer, Pürierstab
Was soll in der Küche außer den Standards untergebracht werden? : ALLE Vorräte, Geschirr komplett (nichts in Ess-/Wohnzimmer)
Welchen Stauraum gibt es sonst noch? : Keller
Was/wie wird gekocht? (Alltagsküche, Menüs, Snacks usw) : Alltagsküche. Unter der Woche einfache Sachen. Am Wochenende auch mal Braten.
Wie häufig wird gekocht? : (fast) täglich 1x warm
Wird alleine gekocht? Oder auch gemeinsam? Mit und für Gäste? :
Was stört an der bisherigen Küche und was soll die neue Küche unbedingt können? Warum? : Bisher keine Ausziehschränke. Wenig Platz zum arbeiten/vorbereiten.
Preisvorstellung (Budget) : bis 10.000,-
so auch bei uns geht es ans Küchenkaufen. Nach den ersten Angeboten, und Planungsvorschlägen sind wir noch verwirrter als vorher.
Wir bauen ein Haus und benötigen demnächst den Anschlussplan für den Architekten, damit Wasser und Stromanschlüsse geplant werden können.
Das eingezeichnete Fenster ist fix. Bei Bedarf kann noch ein weiteres eingebaut werden, was aber die Aussenansicht eigentlich verschandelt
Leider gibt es aber soviele Möglichkeiten, dass wir uns nicht entscheiden können.
Wir haben versucht die Pläne im ALNO Planer mal nachzubauen. Allerdings nur mit mäßigem Erfolg. Aber ich denke, man kann die Grundrisse erkennen.
Leider kann ich keine Bilder erzeugen "STRG+ALT+S" funktioniert nicht. Wird nur ein graues Bild erzeugt. Auch Bilder aus der Vollasicht lassen sich nicht speichern.
Aber ich habe die KPL Dateien angehängt.
Plan 1: Da ist Kochfeld und Spüle in einer Reihe. Leider keinen Platz für eine hochgebaute Spülmaschine.
Plan 2: Kochfeld und Spüle getrennt. Hierbei kocht man allerdings mit dem Rücken zum Fenster/Licht.
Plan3: Variante mit Essplatz an der Wand
Welche Variante ist die Beste? Bzw wer kann uns Tipps zur Aufstellung geben.
Wir wollen eine lackierte Küche und haben Angebote von Schüller , ALNO, Nobilia und Wellmann. Wobei die letzten beiden die billigsten sind.
Anbei auch ein Maßplan der Küche und des gesamten EG.
Anregungen sind herzlich willkommen.
Auch für Tipps, welchen Küchenhändler im Raum Nürnberg/Fürth/Erlangen Ihr weiterempfehlen könnt, sind wir dankbar.
Vielen Dank
Liebe Grüße
B&T
Checkliste zur Küchenplanung von Duerer
Anzahl Personen im Haushalt : 2
Davon Kinder? : keine
Körpergrössen aller Hauptbenutzer (wegen Arbeitshöhe ) in cm : 175 und 180
Art des Gebäudes? : Neu-/Umbau, Planänderungen möglich
Brüstungshöhe des Fensters (in cm) : 100
Fensterhöhe (in cm) : 126
Raumhöhe in cm: : 250
Heizung : Fussbodenheizung
Sanitäranschlüsse : vollkommen variabel
Ausführung Kühlgerät? : Integriert im Hochschrank
Kühlgerät Größe : bis 175 cm Höhe
Ausführung Tiefkühl (TK)-Gerät : Im Kühlschrank als kleines Fach oben
Dunstabzugshaube? : Umluft
Hochgebauter Backofen ? : Ja
Hochgebauter Geschirrspüler ? : ja
Kochfeldart? : Induktion
Kochfeldbreite ca. (in cm)? : 60
Spülenform: : 1 Becken mit Abtropffläche
Weitere geplante Heißgeräte : Standmikrowelle
Küchenstil? : klassisch
Sitzmöglichkeit in der Küche / im Küchenbereich als : Überstehende Arbeitsplatte
Sitzmöglichkeit: Für wieviel Personen? : für 2 Personen
Sitzmöglichkeit: Tisch - wenn gesonderter Tisch oder offene Küche : Wird nach Bedarf neu gekauft
Gewünschte o. vorhandene Tischgröße : nicht vorhanden
Wofür soll der Sitzplatz in der Küche genutzt werden? Wie häufig? : Zum Frühstücken, oder für schnellen Imbiss
Welche Arbeitshöhe ist angedacht (in cm)? :
Was steht auf der Arbeitsplatte oder soll dort stehen? : Messerblock, Allesschneider, Brotbehälter
Welche weiteren Küchenmaschinen müssen in der Küche untergebracht werden? : Wasserkocher, Toaster, Mixer, Pürierstab
Was soll in der Küche außer den Standards untergebracht werden? : ALLE Vorräte, Geschirr komplett (nichts in Ess-/Wohnzimmer)
Welchen Stauraum gibt es sonst noch? : Keller
Was/wie wird gekocht? (Alltagsküche, Menüs, Snacks usw) : Alltagsküche. Unter der Woche einfache Sachen. Am Wochenende auch mal Braten.
Wie häufig wird gekocht? : (fast) täglich 1x warm
Wird alleine gekocht? Oder auch gemeinsam? Mit und für Gäste? :
Was stört an der bisherigen Küche und was soll die neue Küche unbedingt können? Warum? : Bisher keine Ausziehschränke. Wenig Platz zum arbeiten/vorbereiten.
Preisvorstellung (Budget) : bis 10.000,-
Anhänge
