Birdy
Mitglied
- Beiträge
- 16
Hallo an alle Profis, Laien bzw. einfach Küchenbegeisterte
,
die hier so rege Tipps und Beiträge liefern.
Ich lese seit einiger Zeit mit und würde mich freuen, ggfs. noch den
einen oder anderen Tipp zu bekommen.
Ich wohne alleine, koche während der Woche eigentlich nicht, am WE mal so mal so....wollte aber eine ausreichende Arbeitsfläche um mit Freunden zu schnippeln und auch ausreichend Gäste zu setzen.
Das ist mit dem Grundriss gut gelungen (meiner Meinung nach halt)
Momentan habe ich noch entspannten Vorlauf bis zur neuen Wohnung, Einzug soll September 2015 sein, aber so paar Wochen sind auch immer schnell vorbei...
Mit dem Alnoplaner habe ich mich erstmal bissl gequält, aber wird noch, dank der Beschreibung von Kerstin (kann ich nur jedem raten diese zuerst zu lesen...spart Zeit...(ich war nicht so schlau)... konnte auch das eine oder andere mit Tricks lösen. Was ich noch nicht geschafft habe, sind die Unterschränke komplett grifflos darzustellen (also auch ohne vertikale Griffleiste) und ein Nischenschrank hat noch die falsche Griffseite.
Alles weitere ergibt sicher in der einen oder anderen Diskussion, freu mich schon auf Eure Anregungen.
LG Elke
Checkliste zur Küchenplanung
Anzahl Personen im Haushalt: 1
Davon Kinder?:
Art des Gebäudes?: Neu-/Umbau, Planänderungen nicht möglich
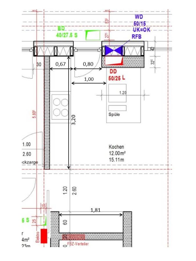
Körpergrössen aller Hauptbenutzer (wegen Arbeitshöhe ) in cm: 160 cm
Brüstungshöhe des Fensters (in cm): bodentief
Fensterhöhe (in cm): deckenhoch
Raumhöhe in cm: 260
Heizung: Fussbodenheizung
Sanitäranschlüsse: fix
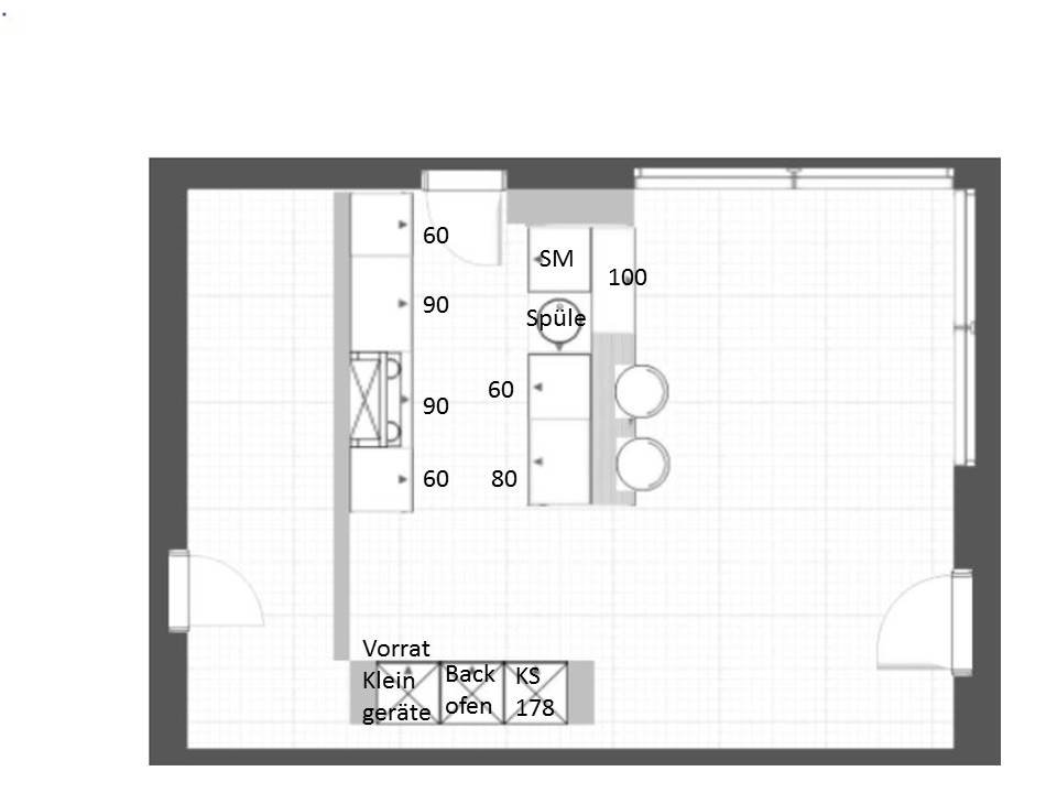
Ausführung Kühlgerät: Integriert im Hochschrank (60cm)
Kühlgerät Größe: bis 178 cm Höhe
Ausführung Tiefkühl (TK)-Gerät: Im Kühlschrank als kleines Fach oben
Dunstabzugshaube: Umluft
Backofen etc. hochgebaut?: Ja
Hochgebauter Geschirrspüler ?: Nein
Kochfeldart: Induktion
Kochfeldbreite ca. (in cm)?: 80
Spülenform: 1 Becken ohne Abtropffläche
Geplante Heißgeräte: Standmikrowelle, Backofen
Küchenstil: Grifflos
Sitzmöglichkeit in der Küche / im Küchenbereich: Überstehende Arbeitsplatte
Sitzmöglichkeit: Für wieviel Personen?: für 3 Personen
Sitzmöglichkeit: Tisch - wenn gesonderter Tisch oder offene Küche: Wird nach Bedarf neu gekauft
Gewünschte o. vorhandene Tischgröße: 2,20 x 1,00 m
Wofür soll der Sitzplatz in der Küche genutzt werden? Wie häufig?: an der Küchentheke täglich für den Morgenkaffee, am Esstisch eher wenn Besuch da ist
Welche Arbeitshöhe ist angedacht (in cm)?: 89 cm
Was steht auf der Arbeitsplatte oder soll dort stehen?: Kaffeevollautomat, Obstschale
Welche weiteren Küchenmaschinen müssen in der Küche untergebracht werden?: Küchenmaschine, Handrührgerät, Mixer, Pürierstab, Eierkocher
Was soll in der Küche außer den Standards untergebracht werden?:
Welchen Stauraum gibt es sonst noch?: Speisekammer, Keller
Was/wie wird gekocht? (Alltagsküche, Menüs, Snacks usw): je nachdem, 2/3 einfach und kurze Gerichte, dann wieder was aufwändigeres
Wie häufig wird gekocht?ab und zu[/COLOR]
Wird alleine gekocht? Oder auch gemeinsam? Mit und für Gäste?: beides, vorrangig aber alleine
Was stört an der bisherigen Küche und was soll die neue Küche unbedingt können? Warum?: zu wenig Arbeitsfläche, zu kleiner Kühlschrank
Steht schon ein Küchenhersteller fest oder wird bevorzugt?: Schüller bzw. wer die ideale Rastereinteilung für meine Vorstellungen hat
Steht schon ein Gerätehersteller fest oder wird bevorzugt?: nicht direkt, Backofen wäre Wunsch Gaggenau aus der 200er Serie, weil ich mich in das Design verguckt habe
Preisvorstellung (Budget): bis 20.000,-
die hier so rege Tipps und Beiträge liefern.
Ich lese seit einiger Zeit mit und würde mich freuen, ggfs. noch den
einen oder anderen Tipp zu bekommen.
Ich wohne alleine, koche während der Woche eigentlich nicht, am WE mal so mal so....wollte aber eine ausreichende Arbeitsfläche um mit Freunden zu schnippeln und auch ausreichend Gäste zu setzen.
Das ist mit dem Grundriss gut gelungen (meiner Meinung nach halt)
Momentan habe ich noch entspannten Vorlauf bis zur neuen Wohnung, Einzug soll September 2015 sein, aber so paar Wochen sind auch immer schnell vorbei...
Mit dem Alnoplaner habe ich mich erstmal bissl gequält, aber wird noch, dank der Beschreibung von Kerstin (kann ich nur jedem raten diese zuerst zu lesen...spart Zeit...(ich war nicht so schlau)... konnte auch das eine oder andere mit Tricks lösen. Was ich noch nicht geschafft habe, sind die Unterschränke komplett grifflos darzustellen (also auch ohne vertikale Griffleiste) und ein Nischenschrank hat noch die falsche Griffseite.
Alles weitere ergibt sicher in der einen oder anderen Diskussion, freu mich schon auf Eure Anregungen.
LG Elke
Checkliste zur Küchenplanung
Anzahl Personen im Haushalt: 1
Davon Kinder?:
Art des Gebäudes?: Neu-/Umbau, Planänderungen nicht möglich
Körpergrössen aller Hauptbenutzer (wegen Arbeitshöhe ) in cm: 160 cm
Brüstungshöhe des Fensters (in cm): bodentief
Fensterhöhe (in cm): deckenhoch
Raumhöhe in cm: 260
Heizung: Fussbodenheizung
Sanitäranschlüsse: fix
Ausführung Kühlgerät: Integriert im Hochschrank (60cm)
Kühlgerät Größe: bis 178 cm Höhe
Ausführung Tiefkühl (TK)-Gerät: Im Kühlschrank als kleines Fach oben
Dunstabzugshaube: Umluft
Backofen etc. hochgebaut?: Ja
Hochgebauter Geschirrspüler ?: Nein
Kochfeldart: Induktion
Kochfeldbreite ca. (in cm)?: 80
Spülenform: 1 Becken ohne Abtropffläche
Geplante Heißgeräte: Standmikrowelle, Backofen
Küchenstil: Grifflos
Sitzmöglichkeit in der Küche / im Küchenbereich: Überstehende Arbeitsplatte
Sitzmöglichkeit: Für wieviel Personen?: für 3 Personen
Sitzmöglichkeit: Tisch - wenn gesonderter Tisch oder offene Küche: Wird nach Bedarf neu gekauft
Gewünschte o. vorhandene Tischgröße: 2,20 x 1,00 m
Wofür soll der Sitzplatz in der Küche genutzt werden? Wie häufig?: an der Küchentheke täglich für den Morgenkaffee, am Esstisch eher wenn Besuch da ist
Welche Arbeitshöhe ist angedacht (in cm)?: 89 cm
Was steht auf der Arbeitsplatte oder soll dort stehen?: Kaffeevollautomat, Obstschale
Welche weiteren Küchenmaschinen müssen in der Küche untergebracht werden?: Küchenmaschine, Handrührgerät, Mixer, Pürierstab, Eierkocher
Was soll in der Küche außer den Standards untergebracht werden?:
Welchen Stauraum gibt es sonst noch?: Speisekammer, Keller
Was/wie wird gekocht? (Alltagsküche, Menüs, Snacks usw): je nachdem, 2/3 einfach und kurze Gerichte, dann wieder was aufwändigeres
Wie häufig wird gekocht?ab und zu[/COLOR]
Wird alleine gekocht? Oder auch gemeinsam? Mit und für Gäste?: beides, vorrangig aber alleine
Was stört an der bisherigen Küche und was soll die neue Küche unbedingt können? Warum?: zu wenig Arbeitsfläche, zu kleiner Kühlschrank
Steht schon ein Küchenhersteller fest oder wird bevorzugt?: Schüller bzw. wer die ideale Rastereinteilung für meine Vorstellungen hat
Steht schon ein Gerätehersteller fest oder wird bevorzugt?: nicht direkt, Backofen wäre Wunsch Gaggenau aus der 200er Serie, weil ich mich in das Design verguckt habe
Preisvorstellung (Budget): bis 20.000,-
Anhänge
-
2014 06 25 DG paint.jpg154,3 KB · Aufrufe: 213 -
drauf kochen.JPG126,3 KB · Aufrufe: 182 -
drauf nische.JPG118,8 KB · Aufrufe: 207 -
iso li.JPG150,5 KB · Aufrufe: 198 -
iso re.JPG122,5 KB · Aufrufe: 207 -
PLAN 1 grifflos.POS7,5 KB · Aufrufe: 164
-
PLAN 1 grifflos.KPL3,9 KB · Aufrufe: 189
-
Kueche vermasst.jpg65,8 KB · Aufrufe: 232 -
Planansicht.JPG49,9 KB · Aufrufe: 243
Zuletzt bearbeitet:
