Unbeendet Neue Küche in neuer Wohnung

julian

Mitglied
Beiträge
2
Hallo liebe Küchenforums-Nutzer,

in den letzten Tagen habe ich hier viel gelesen und bin von der Qualität der Tipps und dem Engagement der Nutzer wirklich begeistert. Deswegen habe ich mich jetzt angemeldet und hoffe mit meinem ersten Beitrag auch möglichst viel richtig zu machen. :-)

Zu unserer Situation: Wir haben eine Wohnung gekauft, die sich noch im Rohbau befindet und Ende des Jahres fertig werden soll. Noch kann man also (vermutlich begrenzt) Einfluss auf Wände, Rohre etc. nehmen, bald werden die Innenausbau-Arbeiten aber beginnen.

Die Wohnung geht über zwei Etagen und befindet sich direkt unter dem Dach eines Mehrfamilienhaus mit sieben Parteien.

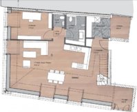
Man kommt auf der Südseite (im Plan rechts) aus dem Treppenhaus in die Wohnung und betritt auch gleich den großen Wohn- und Essbereich. Der Vorschlag einer U-förmigen Küche stammt vom Architekten und gefällt uns. Eine Insel fänden wir auch toll, haben aber Sorge dass man dann immer "durch die Küche in die Wohnung" gehen würde, was ich nicht so schön fände. Vielleicht kann man das aber auch mit Insel durch intelligentes planen vermeiden...?

Ich war nun letzte Woche in einem kleinen Küchenstudio vor Ort und habe deren Entwurf angehängt. Allerdings gefällt er uns beiden leider gar nicht. Irgendwie ist die Küche zu "08/15", uns fehlt jegliche Raffinesse, denn sie darf gerne ein kleines Highlight in der Wohnung werden. Trotzdem habe ich den Entwurf nun mal im Alno -Planer ungefähr nachgebaut, damit man eine Grundlage hat. Wir sind aber sehr sehr offen für Änderungen, auch größere! Um Details wie Farbe, Griffe, Arbeitsplattenmaterial- und höhe soll es erstmal noch nicht gehen.

Beim Ausfüllen der Checkliste kam ich gerade auf den Punkt "Sitzmöglichkeit". Ein kleiner Tresen fürs Frühstück an der Küche wäre auch eine tolle Idee.

Zu den Geräten: Auf einer Messe haben wir das Bora Dunstabzugssystem gesehen, was uns sehr zusagt! Es gibt wohl auch Alternativen von Siemens und anderen Herstellern. Auf eine klassische Dunstabzugshaube mitten im Raum würden wir gerne verzichten. Einen Dampfgarer möchten wir auf jeden Fall, vielleicht auch als Kombigerät mit Backofen . Auf eine Mikrowelle wollen wir langfristig verzichten, vielleicht am Anfang noch als Stand-Alone-Gerät. Beim Herd denken wir an Induktion . Der Kühlschrank könnte auch als schönes Stand-Alone-Gerät ausgeführt werden. Außerdem spielen wir mit der Idee eine Siebträgerkaffeemaschine anzuschaffen. Dann wäre natürlich eine Schublade darunter bzw. MUPL sehr sinnvoll.

Wir haben nächste Woche noch Termine mit zwei weiteren Küchenbauern gemacht, hoffentlich kann ich dann schon viele neue Ideen mitbringen.

Vielen Dank schonmal an alle, die sich die Mühe machen uns zu unterstützen und ihre Ideen einzubringen!

Viele Grüße
Julian


Checkliste zur Küchenplanung von julian

Anzahl Personen im Haushalt : 2
Davon Kinder? : keine
Körpergrössen aller Hauptbenutzer (wegen Arbeitshöhe ) in cm : 161, 196
Art des Gebäudes? : Neu-/Umbau, Planänderungen möglich
Brüstungshöhe des Fensters (in cm) : kein Fenster im Küchenbereich
Fensterhöhe (in cm) : kein Fenster im Küchenbereich
Raumhöhe in cm: : circa 260
Heizung : Fussbodenheizung
Sanitäranschlüsse : variabel an aktueller Wand
Ausführung Kühlgerät? : Integriert im Hochschrank (60cm)
Kühlgerät Größe : noch unbekannt
Ausführung Tiefkühl (TK)-Gerät : Im Kühlschrank ab 3 Schubladen unten
Dunstabzugshaube? : Umluft
Backofen etc. hochgebaut? : Ja
Hochgebauter Geschirrspüler ? : wenn möglich
Kochfeldart? : Induktion
Kochfeldbreite ca. (in cm)? : 80?
Spülenform: : Noch nicht festgelegt
Weitere geplante Heißgeräte : Standmikrowelle, Dampfgarer mit Wasseranschluß, Backofen
Küchenstil? : modern
Sitzmöglichkeit in der Küche / im Küchenbereich als : Tresen in Barhöhe
Sitzmöglichkeit: Für wieviel Personen? : für 2 Personen
Sitzmöglichkeit: Tisch - wenn gesonderter Tisch oder offene Küche : Vorhandener Tisch
Gewünschte o. vorhandene Tischgröße : 6 Personen
Wofür soll der Sitzplatz in der Küche genutzt werden? Wie häufig? : Frühstücken, gelegentlich
Welche Arbeitshöhe ist angedacht (in cm)? : noch offen
Was steht auf der Arbeitsplatte oder soll dort stehen? : Kaffeemaschine, Toaster, Obstschale
Welche weiteren Küchenmaschinen müssen in der Küche untergebracht werden? : Toaster, Schneidemaschine (z. B. in Schublade)
Was soll in der Küche außer den Standards untergebracht werden? : Sonstiges (evtl. im Beitragstext benennen)
Welchen Stauraum gibt es sonst noch? : Geschirr/Gläserschrank im Wohn-/Esszimmer, Hauswirtschaftsraum, Keller
Was/wie wird gekocht? (Alltagsküche, Menüs, Snacks usw) : Viel, auch mal aufwendig, Alltagsküche
Wie häufig wird gekocht? : (fast) täglich 1x warm
Wird alleine gekocht? Oder auch gemeinsam? Mit und für Gäste? : hauptsächlich allein, manchmal zu zweit oder mit Gästen,
Was stört an der bisherigen Küche und was soll die neue Küche unbedingt können? Warum? : Zu wenig Stauraum, dadurch oft unaufgeräumt
Steht schon ein Küchenhersteller fest oder wird bevorzugt? : Nein
Steht schon ein Gerätehersteller fest oder wird bevorzugt? : Bora, Miele , Siemens
Preisvorstellung (Budget) : bis 25.000,-
 

Anhänge

  • Wohnung.jpg
    Wohnung.jpg
    81 KB · Aufrufe: 203
  • Plan_vermaßt.jpg
    Plan_vermaßt.jpg
    88 KB · Aufrufe: 190
  • Plan1.KPL
    3,9 KB · Aufrufe: 191
  • Plan1.POS
    4,3 KB · Aufrufe: 184
  • 24451-3.jpg
    24451-3.jpg
    29,7 KB · Aufrufe: 200
  • 24451-2.jpg
    24451-2.jpg
    28 KB · Aufrufe: 191
  • 24451-1.jpg
    24451-1.jpg
    24,5 KB · Aufrufe: 210
  • Alno.jpg
    Alno.jpg
    37,6 KB · Aufrufe: 209
AW: Neue Küche in neuer Wohnung

Hallo Julian,
der Raum schreit förmlich nach einer echten Insel;-), mich persönlich würde es auch mehr anpesten, wenn ich immer ums ganze U rum müsste, um mir z.B. ein Glas Saft aus dem Kühlschrank zu holen und dann wieder nach oben zu gehen :cool:.
Wenn da jemand mit heiß und fettig hantiert, dann sollte man natürlich außen rum gehen, aber sonst stört es doch nicht, ob man so rum oder so rum in den Wohnbereich gelangt.
Außerdem ist der Raum sehr groß für eine Abzugshaube, die mitten drin arbeiten müsste, da wirken erhebliche Querströmungen; in wie weit eine Downkraft darunter leidet, kann ich nicht so beurteilen, aber Luft bewegt sich nun mal und die kostet ja ganz schön Stauraum.
Deswegen kochen an der Wand und spülen auf der Insel:
julian_1-1.jpg
julian_1-2.jpg
julian_1-3.jpg
julian_1-4.jpg
Hier kann man natürlich einen 100-er weg lassen und zwei Stühle dran stellen. Ein Tresen würde die schöne Arbeitsfläche zerstören...

Alternative Planung, wenn *Inselwasser* nicht mehr geht, folgt...
 

Anhänge

  • julian_1.POS
    6,8 KB · Aufrufe: 196
  • julian_1.KPL
    3,9 KB · Aufrufe: 178
AW: Neue Küche in neuer Wohnung

So, jetzt mit Kochen auf der Insel und Downkraft:
julian_2-1.jpg

julian_2-2.jpg
Kühlschrank, BO-Schrank, MUPL , Spüle, GSP

julian_2-3.jpg
3 x 100-er

julian_2-4.jpg

Plattenüberstand für höhenverstellbare Stühle, 100-er für Downkraft, 100-er Geschirrschrank
 

Anhänge

  • julian_2.KPL
    3,9 KB · Aufrufe: 171
  • julian_2.POS
    7,1 KB · Aufrufe: 186
AW: Neue Küche in neuer Wohnung

Hallo Angelika,

vielen Dank für deine tollen Ideen, das gefällt uns schon deutlich besser als die Version aus dem Küchenstudio . Insbesondere der Plattenüberstand mit den Stühlen ist ja genial, sowohl zum gemütlich frühstücken als auch wenn man mit Freunden kocht... super. :-)

Das Kochfeld hätten wir lieber mit Blick in den Raum, also so wie in deiner zweiten Version. Verstehe ich es richtig, dass Du glaubst da könnte der Abzug zu schwach sein? Gibt es da Erfahrungswerte von anderen?

Ich überlege gerade, ob man nicht auch Spüle und Kochfeld beide auf der Insel unterbringen könnte? Spricht da etwas dagegen?

Viele Grüße an Alle!
Julian
 
AW: Neue Küche in neuer Wohnung

Für beides finde ich die Insel zu klein, wenn es nicht nötig ist.
Wie genau es sich mit DAH und offenen Räumen verhält kann ich dir nicht genau sagen, zumal eine Downkraft wieder anders arbeitet, als eine Inselhaube, aber die Fachleute hier warnen immer wieder vor sehr großen Räumen und (falschen?) Hauben, vielleicht noch mal im Technikbereich nach fragen.
 
AW: Neue Küche in neuer Wohnung

Mir fehlen auf dem Grundriss mal wieder Maße, Kniestockhöhen usw. Ich stelle mir den Raum gerne ganz vor.

Prinzipiell sage ich aber auch ... um Gottes Willen kein U. Und, ich finde Kochen an der Wand ja viel praktikabler, weil man in der Auswahl von DAH und damit auch Kochfeld wesentlich variabler ist, als z. B. bei der Wahl von Bora .

Außerdem bereite ich in aller Regel länger vor, als dass ich stetig am Kochfeld stehe.
 

Ähnliche Beiträge

Neff Hausgeräte Ballerina Küchen Blum Bewegungstechnologie Weibel - Intelligente Küchenlüftung

Neff Spezial

Blum Zonenplaner

Weibel Abluft-Tuning

Weibel Abluft-Tuning
Zurück
Oben