look
Mitglied
- Beiträge
- 3
Hallo Forum,
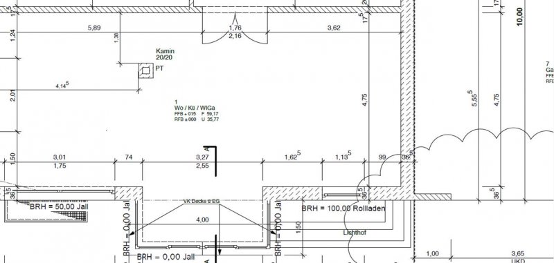
nach vielem Mitlesen habe ich nun einen ersten Entwurf unserer neune Küche. Zwischenzeitlich gab es hierzu auch schon 2 Gespräche mit Küchenstudios, bevor ich die aber vertiefen möchte, hätte ich gern noch Euern Rat gehört.
Vielen Dank.
Look
Checkliste zur Küchenplanung von look
Anzahl Personen im Haushalt : 2
Davon Kinder? : 2
Körpergrössen aller Hauptbenutzer (wegen Arbeitshöhe ) in cm : 164, 172
Art des Gebäudes? : Neu-/Umbau, Planänderungen möglich
Brüstungshöhe des Fensters (in cm) : 100
Fensterhöhe (in cm) :
Raumhöhe in cm: : 240
Heizung : Fussbodenheizung
Sanitäranschlüsse : vollkommen variabel
Ausführung Kühlgerät? : Stand-Alone bis 60 cm Breite
Kühlgerät Größe : bis 175 cm Höhe
Ausführung Tiefkühl (TK)-Gerät : Eigenständiges Gerät bis 178 cm Höhe
Dunstabzugshaube? : Umluft
Backofen etc. hochgebaut? : Ja
Hochgebauter Geschirrspüler ? : ja
Kochfeldart? : Induktion
Kochfeldbreite ca. (in cm)? : 90
Spülenform: : 2 Becken mit Abtropffläche
Weitere geplante Heißgeräte : Standmikrowelle, Dampfgarer ohne Wasseranschluß, Wärmeschublade, Backofen
Küchenstil? : klassisch
Sitzmöglichkeit in der Küche / im Küchenbereich als : Arbeitsplatte in Tischhöhe
Sitzmöglichkeit: Für wieviel Personen? : für 3 Personen
Sitzmöglichkeit: Tisch - wenn gesonderter Tisch oder offene Küche : Vorhandener Tisch
Gewünschte o. vorhandene Tischgröße : 2m x 1m
Wofür soll der Sitzplatz in der Küche genutzt werden? Wie häufig? : Imbiss
Welche Arbeitshöhe ist angedacht (in cm)? : 91
Was steht auf der Arbeitsplatte oder soll dort stehen? : Wasserkocher, Messerblock, Küchenmaschine, Toaster, Obstschale
Welche weiteren Küchenmaschinen müssen in der Küche untergebracht werden? : Schneidemaschine (z. B. in Schublade)
Was soll in der Küche außer den Standards untergebracht werden? : ALLE Vorräte, Getränkekisten, Staubsauger/Wischer etc., Geschirr komplett (nichts in Ess-/Wohnzimmer)
Welchen Stauraum gibt es sonst noch? : Hauswirtschaftsraum
Was/wie wird gekocht? (Alltagsküche, Menüs, Snacks usw) : alles, von einfach bis 5 Gänge
Wie häufig wird gekocht? : (fast) täglich 1x warm
Wird alleine gekocht? Oder auch gemeinsam? Mit und für Gäste? : Mit und für Gäste
Was stört an der bisherigen Küche und was soll die neue Küche unbedingt können? Warum? : Staufläche, Auszüge, Platz zum Kochen und Backen
Steht schon ein Küchenhersteller fest oder wird bevorzugt? :
Steht schon ein Gerätehersteller fest oder wird bevorzugt? : Kochfeld von Neff bevorzugt, ansonsten Bosch bzw Siemens (siehe Liste)
Preisvorstellung (Budget) : bis 25.000,-
nach vielem Mitlesen habe ich nun einen ersten Entwurf unserer neune Küche. Zwischenzeitlich gab es hierzu auch schon 2 Gespräche mit Küchenstudios, bevor ich die aber vertiefen möchte, hätte ich gern noch Euern Rat gehört.
Vielen Dank.
Look
Checkliste zur Küchenplanung von look
Anzahl Personen im Haushalt : 2
Davon Kinder? : 2
Körpergrössen aller Hauptbenutzer (wegen Arbeitshöhe ) in cm : 164, 172
Art des Gebäudes? : Neu-/Umbau, Planänderungen möglich
Brüstungshöhe des Fensters (in cm) : 100
Fensterhöhe (in cm) :
Raumhöhe in cm: : 240
Heizung : Fussbodenheizung
Sanitäranschlüsse : vollkommen variabel
Ausführung Kühlgerät? : Stand-Alone bis 60 cm Breite
Kühlgerät Größe : bis 175 cm Höhe
Ausführung Tiefkühl (TK)-Gerät : Eigenständiges Gerät bis 178 cm Höhe
Dunstabzugshaube? : Umluft
Backofen etc. hochgebaut? : Ja
Hochgebauter Geschirrspüler ? : ja
Kochfeldart? : Induktion
Kochfeldbreite ca. (in cm)? : 90
Spülenform: : 2 Becken mit Abtropffläche
Weitere geplante Heißgeräte : Standmikrowelle, Dampfgarer ohne Wasseranschluß, Wärmeschublade, Backofen
Küchenstil? : klassisch
Sitzmöglichkeit in der Küche / im Küchenbereich als : Arbeitsplatte in Tischhöhe
Sitzmöglichkeit: Für wieviel Personen? : für 3 Personen
Sitzmöglichkeit: Tisch - wenn gesonderter Tisch oder offene Küche : Vorhandener Tisch
Gewünschte o. vorhandene Tischgröße : 2m x 1m
Wofür soll der Sitzplatz in der Küche genutzt werden? Wie häufig? : Imbiss
Welche Arbeitshöhe ist angedacht (in cm)? : 91
Was steht auf der Arbeitsplatte oder soll dort stehen? : Wasserkocher, Messerblock, Küchenmaschine, Toaster, Obstschale
Welche weiteren Küchenmaschinen müssen in der Küche untergebracht werden? : Schneidemaschine (z. B. in Schublade)
Was soll in der Küche außer den Standards untergebracht werden? : ALLE Vorräte, Getränkekisten, Staubsauger/Wischer etc., Geschirr komplett (nichts in Ess-/Wohnzimmer)
Welchen Stauraum gibt es sonst noch? : Hauswirtschaftsraum
Was/wie wird gekocht? (Alltagsküche, Menüs, Snacks usw) : alles, von einfach bis 5 Gänge
Wie häufig wird gekocht? : (fast) täglich 1x warm
Wird alleine gekocht? Oder auch gemeinsam? Mit und für Gäste? : Mit und für Gäste
Was stört an der bisherigen Küche und was soll die neue Küche unbedingt können? Warum? : Staufläche, Auszüge, Platz zum Kochen und Backen
Steht schon ein Küchenhersteller fest oder wird bevorzugt? :
Steht schon ein Gerätehersteller fest oder wird bevorzugt? : Kochfeld von Neff bevorzugt, ansonsten Bosch bzw Siemens (siehe Liste)
Preisvorstellung (Budget) : bis 25.000,-
Anhänge
-
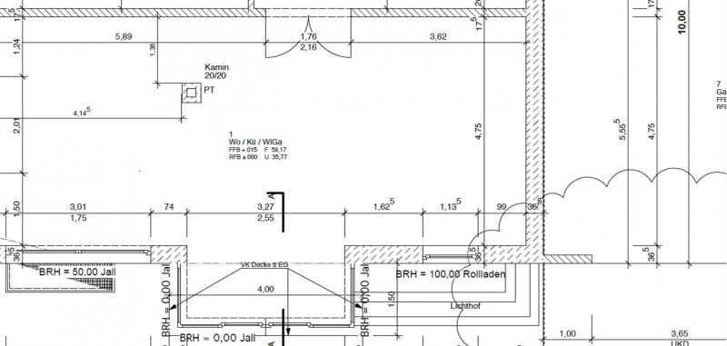
2014-05-04 Küchenplanung V2 Grundriß.jpg126,6 KB · Aufrufe: 368 -
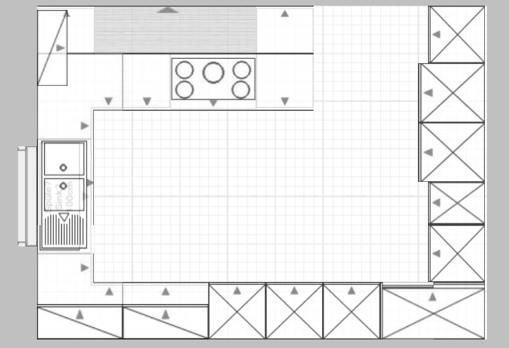
2014-05-04 Küchenplanung V2 Bild 1.jpg42,7 KB · Aufrufe: 217 -
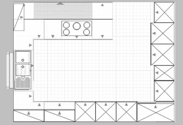
2014-05-04 Küchenplanung V2 Bild 2.jpg50,5 KB · Aufrufe: 205 -
2014-05-04 Küchenplanung V2 Bild 3.jpg58,8 KB · Aufrufe: 195 -
Grundriss.jpg45,9 KB · Aufrufe: 376 -
2014-05-04 Übersicht E-Geräte Küche.pdf10,8 KB · Aufrufe: 335



