Fertig mit Bildern Moderne Küche für junge Familie

toxicmolotow

Mitglied
Beiträge
14
Hallo erstmal,

wir sind ganz neu hier und haben uns schon ein wenig eingelesen. Sollten wir, trotz aller Fürsorge an alleszu denken, irgend etwas vergessen haben, dann bitte einfach nachfragen.

Einleitung I
Der Foren-Nick stammt aus meiner "Zockerzeit", den ich für das Internet an allen Ecken und Enden einfach beibehalten habe. Ich muss zugeben, so ganz passt er nicht in ein Küchenforum, aber so erinnere ich mich zumindest überall den Anmeldenamen.

Einleitung II
Wir, das heißt eine junge, dreiköpfige Familie wird in Kürze unser Haus bauen (lassen). Die Baugenehmigung erwarten wir in den nächsten Wochen. Unser Architekt möchte, um die Ausführungspläne erstellen zu können wissen, wo die Anschlüsse für Strom und Wasser in der Küche plaziert werden sollen. Natürlich möchte er das auch für die Bäder, das Wohnzimmer undeigentlich für so alles... Aber das ist dann eher was für andere Foren. Hier möchten wur uns auf die Küche beschränken.

Die Geschichte
Wir haben in den letzten 2 Monaten diverse Küchenstudios auf die klassische Art und Weise aufgesucht und uns dort Anregungen in der Ausstellung, als auch bei diversen Beratern gesucht. Neben der wohl üblichen Unart, keine Pläne oder konkrete Angebote rauszurücken waren wir mit den meißten Beratern leider eher unzufrieden. Von "Warum wird mir jetzt meine Zeit gestohlen, Sie kaufen doch eh nicht!" bis hin zu einer intensiven, dreistündigen Planung war an Motivation alles dabei, was die Breite an Service(wüste) zu bieten hatte.

Unsere Erwartungen
Wir suchen Tipps, Ideen oder vielleicht ganz neue Vorschläge für unsere neue Küche. Jeder Berater schlängt andere Gimmicks vor, wir selbst finden manches besser, anderes schlechter, suchen aber eine gute, haltbare, aber verhältnismäßig günstige Küche. Aufpreise für Gimmicks zahlen wir gerne, so lange das Kosten-Nutzen-Verhältnis in einem angemessenen Rahmen bleibt.

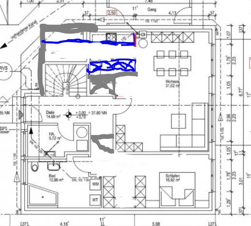
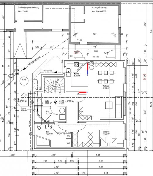
Die Hauspläne

full

full


Zur Erläuterung
Die schwarzen Wände sind, wen wundert es, fest vorgegeben. Die Roten Wände sind, ebenso wie die blauen Wände theoretisch entfernbar, stellen aber aktuell unsere angedachte Planung dar. Die blaue, gefüllte Wand oben soll nur halbhoch und eventuell einen kurzen Tresen darstellen. Die gestichelten blauen Bereiche wären variabel zu gestalten.

Falls sich jemand fragen sollte, warum es vom Flur keine Türe zur Küche gibt, so war diese einst geplant, wurde aber im Laufe der Planungen eingedampft.

Das Küchendesign
Bei den Küchenausstellungen sprang uns immer wieder die Nolte Nova Basic in einer Kombination aus Rauchsilber und Polarsilber ins Auge. Ich habe versucht, diese Farben mit den vorhandenen Dekoren des Alno -Planers darzustellen. Der Boden wird eine antrazitfarbene Fliese, die Wände vermutlich klassisch weiß, hinter dem Kochfeld soll eine Holzplatte den Abschluss bis zu den Hängeschränken bilden.

Unsere Planung

In Alon Planer übertragen:
Anhang anzeigen TMKPL.KPL
Anhang anzeigen TMKPL.POS

full

full

full

full


Und jetzt stellt sich uns die Frage, ob man das so machen kann, oder ob wir auf dem Holzweg sind.

Wir freuen uns über jede Frage, Idee, Kritik...


Checkliste zur Küchenplanung von toxicmolotow

Anzahl Personen im Haushalt : 3
Davon Kinder? : 1
Körpergrössen aller Hauptbenutzer (wegen Arbeitshöhe ) in cm : 168 + 183
Art des Gebäudes? : Neu-/Umbau, Planänderungen möglich
Brüstungshöhe des Fensters (in cm) : noch nicht fest, vermutlich 110 cm
Fensterhöhe (in cm) :
Raumhöhe in cm: : 240-250
Heizung : Fussbodenheizung
Sanitäranschlüsse : vollkommen variabel
Ausführung Kühlgerät? : Side by Side ca. 90cm breit
Kühlgerät Größe : bis 175 cm Höhe
Ausführung Tiefkühl (TK)-Gerät : Nicht erforderlich bzw. steht woanders
Dunstabzugshaube? : Abluft
Hochgebauter Backofen ? : Wenn möglich
Hochgebauter Geschirrspüler ? : nein
Kochfeldart? : Induktion
Kochfeldbreite ca. (in cm)? : 60
Spülenform: : Noch nicht festgelegt
Weitere geplante Heißgeräte : Standmikrowelle
Küchenstil? : modern
Sitzmöglichkeit in der Küche / im Küchenbereich als : Tresen in Barhöhe
Sitzmöglichkeit: Für wieviel Personen? : für 2 Personen
Sitzmöglichkeit: Tisch - wenn gesonderter Tisch oder offene Küche : Keine
Gewünschte o. vorhandene Tischgröße : Nur als Tresen, Esstisch im angrenzenden Essbereich.
Wofür soll der Sitzplatz in der Küche genutzt werden? Wie häufig? : Zum schnellen frühstücken und snacken.
Welche Arbeitshöhe ist angedacht (in cm)? : 90cm
Was steht auf der Arbeitsplatte oder soll dort stehen? : Wasserkocher, Messerblock, Toaster, Brotbehälter, Obstschale
Welche weiteren Küchenmaschinen müssen in der Küche untergebracht werden? :
Was soll in der Küche außer den Standards untergebracht werden? : ALLE Vorräte, Geschirr komplett (nichts in Ess-/Wohnzimmer)
Welchen Stauraum gibt es sonst noch? : Hauswirtschaftsraum
Was/wie wird gekocht? (Alltagsküche, Menüs, Snacks usw) : Wir sind keine Gourmets, aber es wird alles gekocht, was eine Familie mit Kleinkind benötigt. Vom Brei bis zum normalen Mittag-/Abendessen mit Salat und Nachtisch. Vielleicht zu Weihnachten oder Silvester das Vier-Gänge-Menü, aber das wird die Ausnahme bleiben.
Wie häufig wird gekocht? : (fast) täglich 1x warm
Wird alleine gekocht? Oder auch gemeinsam? Mit und für Gäste? : Maximal zu zweit, und nie mit Gästen.
Was stört an der bisherigen Küche und was soll die neue Küche unbedingt können? Warum? : Es stört uns nichts, außer dass es eine Singleküche in einer Mietwohnung ist.
Steht schon ein Küchenhersteller fest oder wird bevorzugt? : Ja, Nolte Nova Basic 13R / 13P
Steht schon ein Gerätehersteller fest oder wird bevorzugt? : nein, aber Siemens , Bosch , Samsung, Neff bevorzugt
Preisvorstellung (Budget) : Holz/Montage bis 4.000,- Elektro seperat.
 
Zuletzt bearbeitet von einem Moderator:
AW: Moderne Küche für junge Familie

:2daumenhoch: Na das ist doch mal eine vorbildliche Threaderöffnung.

:welcome: im Küchen-Forum. Und gleich zwei Kritikpunkte: das Abschlussregal ist in erster Linie Staubfänger und wird zur Spontanablage für alle möglichen Dinge verkommen. Erfahrungsgemäß sehen diese Teile nach kurzer Zeit eigentlich immer ziemlich unordentlich aus. Und teuer sind sie auch noch

Den SBS würde ich nicht mit Möbeln umbauen. Wenn es schon ein SBS sein muss, dann würde ich den als Solitär an der Wand so richtig zur Geltung kommen lassen.
 
AW: Moderne Küche für junge Familie

.. und wenn ich jetzt noch die Vermassungen lesen könnte, wäre sogar ich glücklich ;-).


Habt ihr euch mal überlegt das Haus etwas umzuplanen?

Ich würde wohl die Fläche hinter dem Treppenahaus mit dazu nehmen, das gäbe eine lange Arbeitszeile, am besten gleich in Uebertiefe; Gegenüber dann die Gerätewand.


Neben dem Treppenhaus ergäbe es eine Kleider- & Schukammer, im Wohnzimmer noch eine Ecke, praktisch für eine Kommode oder Platz für Bücherregale oder Spielsachen.



Die Türe zum Schlafzimmer würde ich in den Gang vorverlegen; Die Schlafzimmerschränke als 2-Zeiler mit ca 90cm Gangbreite anordnen; das gibt dem Bett etwas mehr Luft.
 

Anhänge

  • Umplanung.PNG
    Umplanung.PNG
    164 KB · Aufrufe: 459
Zuletzt bearbeitet:
AW: Moderne Küche für junge Familie

das mit den Plänen und den Bemaßungen tut mir leid. Das scheint das Forum verkleinert zu haben. Ursprünglich waren die Bilder mal größer.

Die Maße:
Breite (Wand oben) max. 250cm, dann kommt die Kamintrennwand
Breite (Wand unten) mind. 230cm, max. 260cm
Tiefe (Wand links) 347cm

Der SbS-Kühlschrank ist wirklich wuchtig und "imposant", aber doch häßlich wie die Nacht. Für eine tatsächlich freie Aufstellung fehlt irgendwie der Platz. Oder habt ihr da eine sinnvolle Idee, ohne den Stauraum zu vernachlässigen?

Das Eck-Endregal wollten wir, damit man icht von der Seite auf den SBS schauen kann. Die Problematik der "Lagerfläche" für alles mögliche sehen wir ein.

Das Haus umplanen? Ich muss zugeben, dass der Entwurf ziemlich final ist. An den Außenwänden gibt es nichts mehr zu verschieben. Und irgendwie habe ich nicht verstanden, was du mit den ganzen Änderungen meinst. Das Schlafzimmer ist bereits fetig möbeliert mit vorhandenen Schränken. Das Bedarf keiner Änderung. ;-)
 
AW: Moderne Küche für junge Familie

Ihr möchtet eine moderne Küche, aber den jetzigen Entwurf mit dem U finde ich sehr konventionell, da fehlt einfach der Pep. Das Abschlussregal ist altmodisch und wird tatsächlich zu Ablage und Staubfänger verkommen. Bitte nicht krumm nehmen, mein erster Entwurf war auch nix. ;D

Könntet ihr euch eine Küche mit Insel oder Halbinsel vorstellen?

Allerdings wird dabei wohl der Kamin etwas stören. Gibt es für den keine bessere Position als eingeklemmt zwischen Küchentrennwand, Schränken und Esstisch?

Bei Preisen bin ich keine Expertin, aber ich vermute, dass 4.000€ für Holz und Montage knapp werden können.
 
AW: Moderne Küche für junge Familie

:rolleyes: Kein Wunder konntest Du Dir nix vorstellen - das Hochladen von meinem angepassten Hausplan hat nicht geklappt. Jetzt ist er hoffentlich sichtbar in dem Beitrag ;D
 
AW: Moderne Küche für junge Familie

Jetzt wird es wesentlich verständlicher. Aber das ist so nicht machbar.

Der Abstand muss dort zum Nebengebäude eingehalten werden. Daher kommt der Rücksprung. Außerdem wäre dann der oben liegende Durchgang zum Garten nicht mehr gewährleistet, weil wir uns mit der Bestandsbebauung in die Quere kommen.

Die Türe im Elternbereich war schon Teil unserer Gedanken, ist aber schon gestrichen worden.

Eine Kücheninsel ist zwar irgendwo toll, aber nicht notwendig. Da kommt uns vermutlich auch wieder der Kamin in die Quere. Und mehr Platz vom Wohnzimmer wollten wir für die Küche auch nicht zwingend "opfern".

Daher sind wir immer noch für Vorschläge offen.
 
AW: Moderne Küche für junge Familie

Ist der Platz für den Kamin absolut fix? Noch ist ja nichts gebaut ;-)
Der liegt da zwischen Küche und Essbereich ein bisschen arg ungünstig, unser steht in der Ecke neben dem Esstisch und das ist schon suboptimal, weil zumindest Gäste schnell *gar* sind, wenn der Ofen an ist ;D, ABER wir haben erst nachträglich eingebaut und per Außenkaminrohr wenig Möglichkeiten gehabt.
VIEL netter wäre es gewesen, wenn das gute Stück näher am Sofabereich stehen würde, dann würden wir auch mehr von der Wärme direkt ab bekommen...
 
AW: Moderne Küche für junge Familie

Der Kamin muss an der oberen Wand stehen. Andere Möglichkeiten bestehen wegen des Staffelgeschosses nicht. Es gibt sonst keine sinnvolle Rohrleitung nach oben. Wir wollten aber nicht weiter nach rechts, weil dann die (seltenen) Gäste sogar gegrillt werden. ;-)
 
AW: Moderne Küche für junge Familie

Das der Grundriss nicht erweitert werden kann ist natürlich schade, aber man bekommt auch so, eine schöne Küche im Raum untergebracht. Sogar eine Insel ist möglich...:cool:

Den Kamin habe ich mit Trockenbau etwas vertieft, damit man den SBS, zusammen mit dem Hochschrank für BO+Mikrowelle schön integrieren kann. Auch für die Abluftführung ist ein Trockenbau nötig. Über dem Fenster ist dieser auch recht Praktisch, weil man dort schon eine Arbeitsbeleuchtung unterbringen kann.

Für Müll unter der APL habe ich in der Spüleninsel nicht so richtig Platz gefunden, darum habe ich darauf verzichtet. Notfalls könnte man ihn aber in der Kochzeile unterbringen.

Als DAH habe ich einen Lüfterbaustein vorgesehen, der im Hängeschrank untergebracht wird.

Verplant habe ich...

- Trockenbau
- SBS
- Hochschrank für BO+Mikrowelle
- 30er Unterschrank mit Drehtür, für senkrecht gestellte Bretter oder BO-Bleche
- tote Ecke
- 80er Unterschrank im Raster 1-1-2-2
- 80er Unterschrank im Raster 1-1-2-2
- 80er Unterschrank im Raster 1-1-2-2
- 30er Unterschrank im Raster 3-3 für hohe Flaschen oder wenn man ihn anders platziert für MUPL
- Blende

Insel

- Blende
- GSP
- Spülenschrank
- 60er Unterschrank mit Auszügen
- Wange
- überstehende APL zum Sitzen
 

Anhänge

  • TM-Grundriss.JPG
    TM-Grundriss.JPG
    27,1 KB · Aufrufe: 446
  • TM - conny.KPL
    3,9 KB · Aufrufe: 350
  • TM - conny.POS
    15,2 KB · Aufrufe: 327
  • TM.jpg
    TM.jpg
    50,2 KB · Aufrufe: 468
  • TM1.jpg
    TM1.jpg
    48,9 KB · Aufrufe: 447
  • TM2.jpg
    TM2.jpg
    56,6 KB · Aufrufe: 463
  • TM3.jpg
    TM3.jpg
    54,6 KB · Aufrufe: 448
  • TM4.jpg
    TM4.jpg
    40,1 KB · Aufrufe: 440
AW: Moderne Küche für junge Familie

Hmmm, ja, nein, vielleicht.

Ich gebe zu, es sind einige interessante Ansätze dabei, aber irgendwie überzeugt es uns nicht in Gänze. Der SBS sieht dort optisch schön plaziert aus, wenn ich aber bedenke, dass 60cm rechts davon ein Ofen steht, stehen mir die Stromkostenhaare in die Höhe.

Die Spüle in die Insel zu setzen sieht wirklich schön aus, aber bedeutet auch, dass das Frisch- und Abwasser samt Lüftung dort liegen. Und der SBS benötigt dann einen zweiten, seperaten Wasseranschluss.

Das Konzept gefällt mir wirklich, aber so wird es wohl nicht umgesetzt werden. Es ist noch nicht die perfekte Lösung.
 
AW: Moderne Küche für junge Familie

Warum stehen dir bei Conny's Planung die Haare zu Berge, wenn es in deiner Planung nicht anders ist? :rolleyes:

.. und übrigens sind wir ein Mitmach-Forum!
 
AW: Moderne Küche für junge Familie

Zwischen SBS und Ofen liegt ein 60cm breiter Kamin und die Sanitäranschlüsse sind laut Ceckliste... Sanitäranschlüsse : vollkommen variabel
Wir fragen diese Dinge nicht umsonst ab.

Nichts desto trotz, ich habe noch einen Plan B, obgleich mir Plan A besser gefällt.

Dieses mal mit Kochinsel. Dort habe ich übertiefe U-Schränke verbaut. Wenn diese nicht ins Budget passen, können sie natürlich gegen normaltiefe eingetauscht werden.

Hier mal ein Vergleich von normal zu übertief aus meiner Küche...




Verplant habe ich...

- Trockenbau
- SBS
- BO-Hochschrank
- tote Ecke mit Hängeschrank
- 90er U-Schrank mit Auszügen
- 80er Spülenschrank
- 45er MUPL
- GSP
- Blende

Insel
- Blende
- 80er U-Schrank mit Auszügen
- 90er U-Schrank mit Auszügen
- Wange
- überstehende APL
 

Anhänge

  • TM - conny1.KPL
    3,9 KB · Aufrufe: 323
  • TM - conny1.POS
    14,2 KB · Aufrufe: 343
  • TM.jpg
    TM.jpg
    36 KB · Aufrufe: 425
  • TM1.jpg
    TM1.jpg
    39 KB · Aufrufe: 416
  • TM2.jpg
    TM2.jpg
    39,6 KB · Aufrufe: 419
  • TM3.jpg
    TM3.jpg
    35,3 KB · Aufrufe: 429
  • TM4.jpg
    TM4.jpg
    39,4 KB · Aufrufe: 426
  • TM-Grundriss.JPG
    TM-Grundriss.JPG
    43,2 KB · Aufrufe: 357
AW: Moderne Küche für junge Familie

...und hier noch einmal mit Hängeschränke.
 

Anhänge

  • TM.jpg
    TM.jpg
    42,5 KB · Aufrufe: 380
  • TM1.jpg
    TM1.jpg
    37,3 KB · Aufrufe: 375
  • TM - conny1a.KPL
    3,9 KB · Aufrufe: 334
  • TM - conny1a.POS
    13,8 KB · Aufrufe: 315
AW: Moderne Küche für junge Familie

@Mela, ich glaube da hat sich Connys zweiter Entwurf und mein Kommentar überschnitten.

Oder was meinst du mit "das ist gleich"? So viel Gleichheit zwischen Connys erstem Entwurf und meinem Entwurf gab es da nicht, oder habe ich etwas übersehen?

Ich kann mich erst am Wochenende wieder intensiv damit beschäftigen.
 
AW: Moderne Küche für junge Familie

Soooo,

vielen Dank bis hierher schon mal. Wie versprochen habe ich mich heute morgen wieder mit unserer Küche beschäftigt.

Als Erstes habe ich mal die "Restdeko" alias Wohn und Esszimmer hinzugefügt. Natürlich entsprechen die Bauteile in Farbe und Design nicht unbedingt unseren tatsächlichen Möbeln, aber die Maße stimmen soweit.

Jetzt wieder zurück zur Küche:
Ich habe unseren urprünglichen Plan wieder genommen und ein wenig mit Connys Vorschlägen modifiziert, wobei ich auch hier wieder die Halbinsel weggelassen habe. Der Grund dafür liegt in meiner Frau. Wenn Sie nur Halbinsel, Insel oder irgendetwas dergleichen hört geht sie an die Decke.

Den Trockenbau über dem SBS habe ich weggelassen und statt dessen einen Regalboden eingezogen. Dort kann man ein wenig Deko platzieren, die nicht katzenresistent ist.

Hier die Planungsdaten aus dem Alno -Planer:

Und ein paar Sceenshots dazu.
 

Anhänge

  • KPL24.jpg
    KPL24.jpg
    58,3 KB · Aufrufe: 396
  • KPL23.jpg
    KPL23.jpg
    43,4 KB · Aufrufe: 997
  • KPL22.jpg
    KPL22.jpg
    42,9 KB · Aufrufe: 374
  • KPL21.jpg
    KPL21.jpg
    41,7 KB · Aufrufe: 416
  • TMKPL5.KPL
    3,9 KB · Aufrufe: 328
  • TMKPL5.POS
    15 KB · Aufrufe: 339
AW: Moderne Küche für junge Familie

Bei deiner Anordnung ist es halt sehr schade, dass der Koch immer nur mit dem Rücken zum Ess/Wohnzimmer arbeitet. Selbst mit den "Besitzern" der Theke kann er nur über die Schulter nach hinten kommunizieren.
Das ist etwas, das unsere Mütter (die Väter haben doch fast nicht gekocht) in ihren abgeschlossenen Küchen hatten. Ich dachte immer, das mag die junge Generation heute nicht mehr.

Wenn das Wort "Halbinsel" solche Allergien auslöst, dann nenn sie halt Kommunikationszentrum, Anrichtebereich oder frei platzierter Stauraum und Arbeitsbereich ;-). Euer Kleinchen würde später den Platz zum Plätzchen backen liiiieben!
 
AW: Moderne Küche für junge Familie

Connys Variante 1 hatte vor allem einen Vorteil für den SbS ... das Kühlteil hat sich Richtung Küche geöffnet.

Der SbS planunten, da öffnet das Kühlteil immer der Küche abgewandt.

Ich finde diesen kleinen Tresen mit 40 cm Tiefe überflüssig. Der hat so gar keinen Bezug zur Küche. Wozu denkt ihr den an? Lt. Checkliste für 2 Personen ... was sollen die da machen?

Dann, warum ausgerechnet die Spüle direkt vors Fenster? Das ergibt immer Öffnungsschwierigkeiten und viel schöner ist doch die Hauptvorbereitungsfläche vorm Fenster. Wenn dann die Brüstungshöhe vom Fenster noch so ist, dass die APL in die Fensterlaibung laufen kann, dann hat man auch gleich noch ein tieferes Stück APL. Spüle also etwas weiter nach planunten und wird dann auch der Platz zwischen Kochfeld und Spüle besser nutzbar.

In der Ecke würde ich eher einen Ullaschrank , also auf jeden Fall volle Hochschranktiefe, einplanen. Die zurückgesetzten Hängeschränke ergeben zusammen mit dem Hochschrank und dann dem noch tieferem SbS ein sehr unruhiges Frontbild.
133171d1392467179-moderne-kueche-fuer-junge-familie-kpl23.jpg


Habt ihr schon mal eine Stauraumplanung gemacht? Ihr wollt ja alle Vorräte, Geschirr etc. im Küchenbereich unterbringen. Keller gibt es nicht.

Mir fällt dabei auch auf, wo sollen eigentlich die Garderobe/die Schuhe von jetzt 3, werden wohl mal 4 Familienmitglieder ;-), hin?

Hmm ... ist dieses Sideboard planoben notwendig? So hast du zwischen Sofa und Sideboard gerade mal 260 cm ... Tisch auch nur 80 cm tief. Dort ist auch noch der Hauptzugang zur Terrasse.

Man sieht auch im Vergleich den Architektenplan, da wirkt die Grundrissgestaltung großzügiger. Die gut 300 cm Sofa-Schenkel in den Raum hinein wirken halt sehr trennend. Bei länglicheren Räumen ist das weniger problematisch, aber hier ist der Koch/Ess/Wohnraum in seiner Grundskizze ja relativ quadratisch, was immer schwerer zu möblieren ist.
 
AW: Moderne Küche für junge Familie

Ich finde die Positon vom Backofen sehr beengend.Ohne Not,
der Raum ist wirklich gross genug,würde ich den nicht so einquetschen.
Der Sinn der Theke erschliesst sich mir auch nicht.
Man kann weder dran arbeiten,noch vernünftig dran sitzen.

LG Bibbi
 
AW: Moderne Küche für junge Familie

Diese Trennwand zwischen Küche und Essbereich gefällt mir gar nicht und die Theke auf dem Wandstück ist zu nichts richtig zu gebrauchen.

Ich kenne mich mit Kaminöfen nicht sonderlich aus, aber kann man so nah daran stehen oder sitzen, wenn dieser läuft? Und eine etwas ketzerische Frage: werdet ihr den Ofen überhaupt nutzen, wenn er weit weg vom Wohnbereich eingeklemmt in der Ecke steht?

Das Regalbrett über dem Kühlschrank würde ich eher als Stauraum für Kochbücher oder ähnliches verwenden, Deko sieht an der Position keiner. Die Hängeschränke im Eck sollten gleich tief wie der Schrank daneben sein.

Durch die Möblierung entstehen 3 praktisch abgetrennte Räume mit Engstellen am Eingang und zwischen Kühlschrank und Sofa. Das wirkt nicht sehr großzügig. Aber es ist natürlich nicht einfach, wenn 4 Wohnfunktionen (Kochen, Essen, Wohnen, Arbeiten) auf weniger als 40qm passen müssen.
 

Ähnliche Beiträge

Neff Hausgeräte Ballerina Küchen Blum Bewegungstechnologie Weibel - Intelligente Küchenlüftung

Neff Spezial

Blum Zonenplaner

Weibel Abluft-Tuning

Weibel Abluft-Tuning
Zurück
Oben