- Beiträge
- 8
perfekt, der sieht gut aus von den MaßenDann ändere ich nochmal die Planung. Zum KS habe ich noch dieses Gerät gefunden:
macht Sinn. Dann tendiere ich zu den 46cm tiefen US auf der Außenseite, auch wenn wir genug Platz zum Esstisch hätten. Glaube das ist praktischer!Bei Türen ziemlich unpraktisch, daher eher mindertiefe US empfehlenswert. Man kommt ansonsten an den hinten gelagerten Sachen nicht ran ohne den halben Inhalt erst verräumt zu haben.
Die Insel ist dann auch nicht so wuchtig.
Genau dafür braucht man die Spüle in der Nähe. Hübsche Beispiele von zeitgenössischen Inseln mit Spüle:
Danke für die Inspo. Man sieht tatsächlich sonst eher die Variante Spüle auf der Küchenzeile und Herd auf der Insel. Es gibt schon gute Gründe für die Spüle auf der Insel, aber mein Mann und ich sind trotzdem noch nicht ganz überzeugt
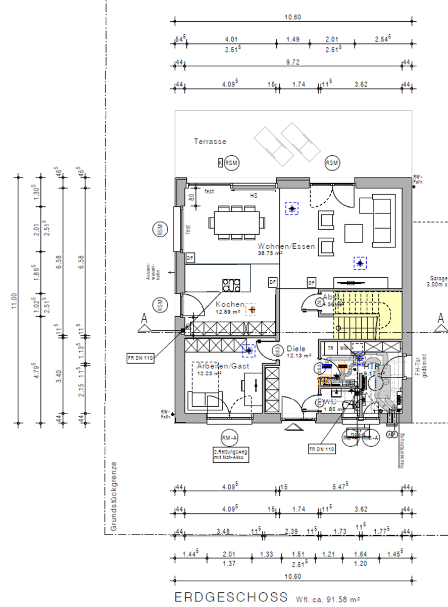
Den Grundriss füge ich bei. Es kommt noch eine Lofttür vom Flur zum Wohnbereich. Wir haben auch überlegt eine Tür gegenüber von der Abstellkammer zu machen, so dass man schnell von der Küche zur Abstellkammer kommt, aber die Lofttür wird ja nicht weit weg sein, deswegen planen wir ohne Durchgang vom Flur zur Küche, was meint ihr? Wir haben am Donnerstag unser finales Gespräch um die letzten Änderungen am Grundriss zu besprechen.
Die Terrassentür an der Küche müssen wir noch etwas nach unten verschieben, damit der Abstand zwischen Küchenzeile und Insel nicht so groß wird (planen ca. 1,15m ein).










