Randmünchner
Mitglied
- Beiträge
- 1
Hallo zusammen,
wir sind wie alle hier auf der Suche nach der richtigen Planung und einer realistischen Einschätzung der Umstände.
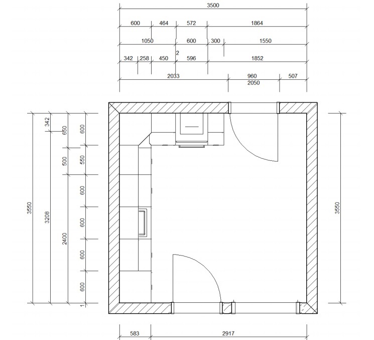
Wir haben jetzt mehrere Studios(8) durch, hängen geblieben sind wir bei der Nobilia Chalet oder der Schüller Canto, wobei die Canto favorisiert wird. Preislich könnten wir beide für 9400€ mit kompletten Siemensgeräten und Eichenarbeitsplatte bekommen(2 verschiedene Studios), wobei wir nicht einschätzen können was da noch "geht". Da wir leider die Planungsunterlagen nicht mitnehmen durften, haben wir die Planung mal mit dem Nobilia-Planer nachgestellt.(die 2 Schränke sind eigentlich 1 Schrank, das ging aber mit dem Onlinetool nicht) Die Anschlüsse für Wasser sitzen bei der eingezeichneten Spüler, Elektrik kann ich neu machen.
Preislich sollte es sich eigentlich um die 8.000€ einpendeln, funktionell muss die Küche aber sein! Qualität hat seinen Preis, das sind wir uns durchaus bewusst. Wir sind für Kritik und Anregungen offen.
Danke!
Checkliste zur Küchenplanung
Anzahl Personen im Haushalt: 2
Davon Kinder?:
Art des Gebäudes?: Bestandsbau, (kleinere) Umbauten möglich
Körpergrössen aller Hauptbenutzer (wegen Arbeitshöhe ) in cm: 175
Brüstungshöhe des Fensters (in cm): 110
Fensterhöhe (in cm): 85
Raumhöhe in cm: 250
Heizung: Keine Heizung
Sanitäranschlüsse: fix
Ausführung Kühlgerät: Integriert im Hochschrank (60cm)
Kühlgerät Größe: bis 140 cm Höhe
Ausführung Tiefkühl (TK)-Gerät: Nicht erforderlich bzw. steht woanders
Dunstabzugshaube: Abluft
Backofen etc. hochgebaut?: Nein
Hochgebauter Geschirrspüler ?: Wenn möglich
Kochfeldart: Induktion
Kochfeldbreite ca. (in cm)?: 60
Spülenform: 1 Becken mit Abtropffläche
Geplante Heißgeräte: Backofen
Küchenstil: Landhaus
Sitzmöglichkeit in der Küche / im Küchenbereich: Gesonderter Tisch
Sitzmöglichkeit: Für wieviel Personen?: für 3 Personen
Sitzmöglichkeit: Tisch - wenn gesonderter Tisch oder offene Küche: Keiner
Gewünschte o. vorhandene Tischgröße: 1x1
Wofür soll der Sitzplatz in der Küche genutzt werden? Wie häufig?: Zubereitung
Welche Arbeitshöhe ist angedacht (in cm)?: 100?
Was steht auf der Arbeitsplatte oder soll dort stehen?: Kaffeemaschine, Wasserkocher, Messerblock, Toaster
Welche weiteren Küchenmaschinen müssen in der Küche untergebracht werden?:
Was soll in der Küche außer den Standards untergebracht werden?: Geschirr komplett (nichts in Ess-/Wohnzimmer)
Welchen Stauraum gibt es sonst noch?: Speisekammer, Hauswirtschaftsraum
Was/wie wird gekocht? (Alltagsküche, Menüs, Snacks usw): Alltagsküche
Wie häufig wird gekocht?: (fast) täglich 1x warm
Wird alleine gekocht? Oder auch gemeinsam? Mit und für Gäste?: meist alleine
Was stört an der bisherigen Küche und was soll die neue Küche unbedingt können? Warum?: n.v.
Welche Mülltrennung soll in der Küche vorgehalten werden?:
Steht schon ein Küchenhersteller fest oder wird bevorzugt?: Schüller / Nobilia
Steht schon ein Gerätehersteller fest oder wird bevorzugt?: Markengeräte Siemens oder Bosch
Preisvorstellung (Budget): bis 10.000,-
wir sind wie alle hier auf der Suche nach der richtigen Planung und einer realistischen Einschätzung der Umstände.
Wir haben jetzt mehrere Studios(8) durch, hängen geblieben sind wir bei der Nobilia Chalet oder der Schüller Canto, wobei die Canto favorisiert wird. Preislich könnten wir beide für 9400€ mit kompletten Siemensgeräten und Eichenarbeitsplatte bekommen(2 verschiedene Studios), wobei wir nicht einschätzen können was da noch "geht". Da wir leider die Planungsunterlagen nicht mitnehmen durften, haben wir die Planung mal mit dem Nobilia-Planer nachgestellt.(die 2 Schränke sind eigentlich 1 Schrank, das ging aber mit dem Onlinetool nicht) Die Anschlüsse für Wasser sitzen bei der eingezeichneten Spüler, Elektrik kann ich neu machen.
Preislich sollte es sich eigentlich um die 8.000€ einpendeln, funktionell muss die Küche aber sein! Qualität hat seinen Preis, das sind wir uns durchaus bewusst. Wir sind für Kritik und Anregungen offen.
Danke!
Checkliste zur Küchenplanung
Anzahl Personen im Haushalt: 2
Davon Kinder?:
Art des Gebäudes?: Bestandsbau, (kleinere) Umbauten möglich
Körpergrössen aller Hauptbenutzer (wegen Arbeitshöhe ) in cm: 175
Brüstungshöhe des Fensters (in cm): 110
Fensterhöhe (in cm): 85
Raumhöhe in cm: 250
Heizung: Keine Heizung
Sanitäranschlüsse: fix
Ausführung Kühlgerät: Integriert im Hochschrank (60cm)
Kühlgerät Größe: bis 140 cm Höhe
Ausführung Tiefkühl (TK)-Gerät: Nicht erforderlich bzw. steht woanders
Dunstabzugshaube: Abluft
Backofen etc. hochgebaut?: Nein
Hochgebauter Geschirrspüler ?: Wenn möglich
Kochfeldart: Induktion
Kochfeldbreite ca. (in cm)?: 60
Spülenform: 1 Becken mit Abtropffläche
Geplante Heißgeräte: Backofen
Küchenstil: Landhaus
Sitzmöglichkeit in der Küche / im Küchenbereich: Gesonderter Tisch
Sitzmöglichkeit: Für wieviel Personen?: für 3 Personen
Sitzmöglichkeit: Tisch - wenn gesonderter Tisch oder offene Küche: Keiner
Gewünschte o. vorhandene Tischgröße: 1x1
Wofür soll der Sitzplatz in der Küche genutzt werden? Wie häufig?: Zubereitung
Welche Arbeitshöhe ist angedacht (in cm)?: 100?
Was steht auf der Arbeitsplatte oder soll dort stehen?: Kaffeemaschine, Wasserkocher, Messerblock, Toaster
Welche weiteren Küchenmaschinen müssen in der Küche untergebracht werden?:
Was soll in der Küche außer den Standards untergebracht werden?: Geschirr komplett (nichts in Ess-/Wohnzimmer)
Welchen Stauraum gibt es sonst noch?: Speisekammer, Hauswirtschaftsraum
Was/wie wird gekocht? (Alltagsküche, Menüs, Snacks usw): Alltagsküche
Wie häufig wird gekocht?: (fast) täglich 1x warm
Wird alleine gekocht? Oder auch gemeinsam? Mit und für Gäste?: meist alleine
Was stört an der bisherigen Küche und was soll die neue Küche unbedingt können? Warum?: n.v.
Welche Mülltrennung soll in der Küche vorgehalten werden?:
Steht schon ein Küchenhersteller fest oder wird bevorzugt?: Schüller / Nobilia
Steht schon ein Gerätehersteller fest oder wird bevorzugt?: Markengeräte Siemens oder Bosch
Preisvorstellung (Budget): bis 10.000,-
Anhänge
Zuletzt bearbeitet:
