Albertin
Mitglied
- Beiträge
- 3
Titel des Themas: Küche gestalten Einzimmerwohnung
Hallo wunderbare Forumsexperten
ich suche Ratschläge wie eine Schrankküche in einer knapp 30m2 großen Einzimmerwohnung erneuert werden kann. Die Wohnung wird vermietet, die Küche fest eingebaut, weiteres eingebautes Schrankvolumen sollte in etwa erhalten werden.
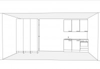
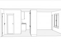
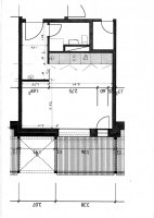
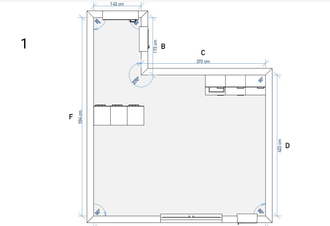
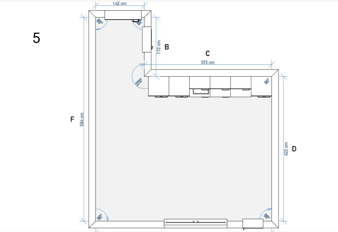
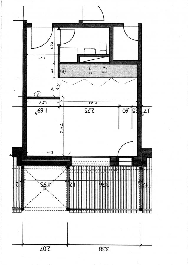
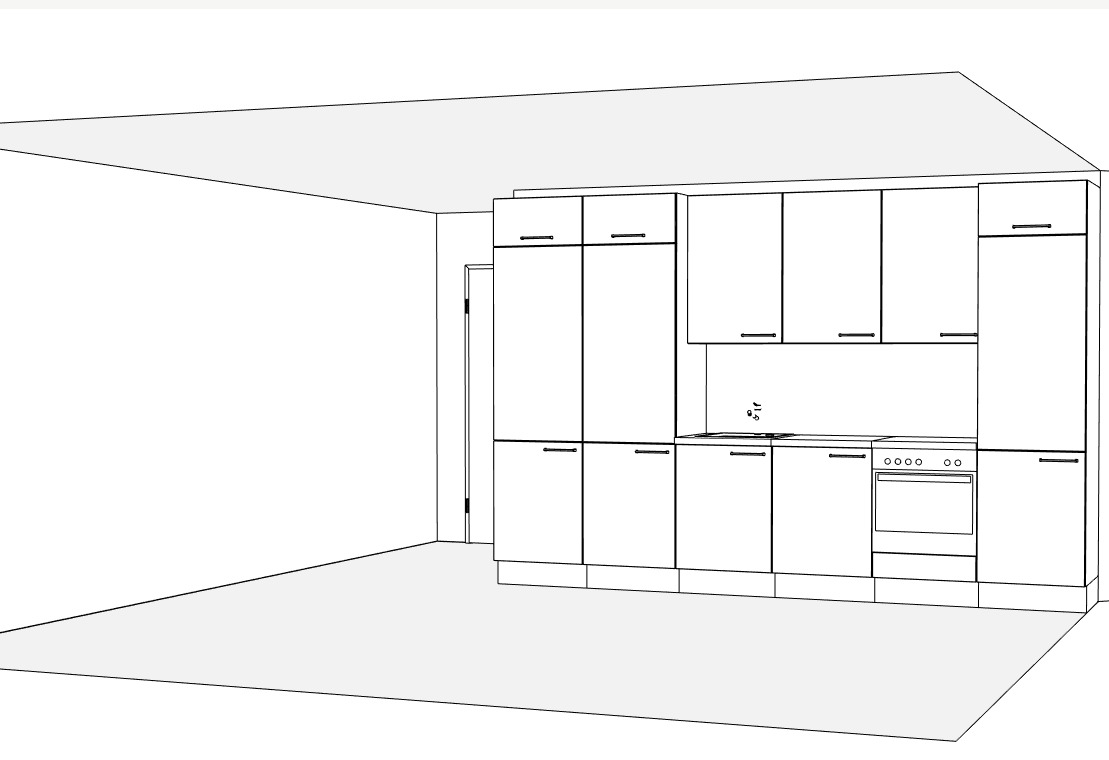
Die gesamte Schrankfront besteht aus 6 Einheiten, die mittleren beiden enthalten die Küche. Mindestens 2 weitere Schrankelemente dienen als Kleiderschränke, 1 Element als Putz/Haushaltschrank. Die alten Fronten sind sehr dunkel. Die Schrankbauweise macht das Zimmer zwar wohnlicher, mit den Flügeltüren wird kochen aber echt unpraktisch. Im Moment besteht ein Spülbecken (Wasser an der Stelle gegeben), mit Kehrichtschrank, Unterbaukühlschrank mit Gefrierfach, schmales 2 Ring Kochfeld, darüber Luftabzug/Umluft.
Eine neue Küche sollte von 1.2m auf 1.8m, d.h. auf 3 Elemente vergrößert werden. Dies wegen der sehr restriktiven Arbeitsfläche, zudem könnte ein Mikrowelle /Backofen Kombi eingebaut werden. Die neuen Fronten sollen neutral weiß werden. Da die Wohnung nicht im Preissegment von Manhattan steht sehen wir von einer versteckten Schiebetür Lösung o.ä ab, Wohnlichkeit im Schlaf/Wohnbereich ist jedoch wichtig.
Die Anordnung der 6 Elemente, wie auch die Wandelemente, markiert A und B im Plan, stehen zur Disposition, der Wasseranschluss ist aber in etwa gegeben.
Planunten ist ein großes Fenster, planunten rechts der Druchgang zum Balkon
Ich danke schon im voraus für alle Ratschläge, Anmerkungen und Kritiken!
Checkliste zur Küchenplanung
Personenkriterien und Ergonomie
Anzahl Personen im Haushalt: 1
Davon Kinder: keine
Körpergrößen aller Hauptbenutzer in cm (wegen Arbeitshöhe ):
Welche Arbeitshöhe ist angedacht (in cm)?:
Gebäudekriterien
Art des Gebäudes: Bestandsbau > (kleinere) Umbauten möglich, Eigentum, Miete
Brüstungshöhe des Fensters (in cm):
Fensterhöhe (in cm):
Raumhöhe in cm: 230
Heizung: Heizkörper wie im Grundriss
Sanitäranschlüsse: fix
Einbaugerätekriterien
Ausführung Kühlgerät: N. a.
Einbaukühlgerät Größe: Noch unbekannt
Ausführung Tiefkühl (TK)-Gerät: Im Kühlschrank als kleines Fach oben
Dunstabzugshaube: Umluft
Hochgebauter Backofen : nein
Geplante Heißgeräte: Einbaumikrowelle, Backofen
Hochgebauter Geschirrspüler : N. a.
Art des Kochfeldes: Ceran (herkömmliche Beheizung)
Kochfeldbreite (ca. in cm): 30
Sitzmöglichkeiten
Sitzmöglichkeit in der Küche / im Küchenbereich: Keine
Sitzmöglichkeit: Für wieviel Personen?: N. a.
Sitzmöglichkeit: Tisch - wenn gesonderter Tisch oder offene Küche: N. a.
Gewünschte oder vorhandene Tischgröße:
Wofür soll der Sitzplatz in der Küche genutzt werden und wie häufig:
Stauraumplanung
Was steht auf der Arbeitsplatte oder soll dort stehen?: N. a.
Welche weiteren Küchenmaschinen müssen in der Küche untergebracht werden: N. a.
Was soll in der Küche außer den Standards untergebracht werden: N. a.
Welchen Stauraum gibt es sonst noch: N. a.
Kochgewohnheiten
Was/wie wird gekocht? (Alltagsküche, Menüs, Snacks usw): Wenig, eher selten
Wie häufig wird gekocht: Ab und zu
Wird alleine gekocht? Oder auch gemeinsam? Mit und für Gäste?: Alleine
Spülen und Müll
Spülenform: 1 Becken ohne Abtropffläche
Welche Mülltrennung soll in der Küche vorgehalten werden: N. a.
Sonstiges
Steht schon ein Küchenhersteller fest oder wird bevorzugt:
Steht schon ein Gerätehersteller fest oder wird bevorzugt: BSH
Küchenstil: Klassisch
Was stört an der bisherigen Küche und was soll die neue Küche unbedingt können? Warum?: Renovation
Preisvorstellung (Budget):
Angehängte Dateien
Hallo wunderbare Forumsexperten
ich suche Ratschläge wie eine Schrankküche in einer knapp 30m2 großen Einzimmerwohnung erneuert werden kann. Die Wohnung wird vermietet, die Küche fest eingebaut, weiteres eingebautes Schrankvolumen sollte in etwa erhalten werden.
Die gesamte Schrankfront besteht aus 6 Einheiten, die mittleren beiden enthalten die Küche. Mindestens 2 weitere Schrankelemente dienen als Kleiderschränke, 1 Element als Putz/Haushaltschrank. Die alten Fronten sind sehr dunkel. Die Schrankbauweise macht das Zimmer zwar wohnlicher, mit den Flügeltüren wird kochen aber echt unpraktisch. Im Moment besteht ein Spülbecken (Wasser an der Stelle gegeben), mit Kehrichtschrank, Unterbaukühlschrank mit Gefrierfach, schmales 2 Ring Kochfeld, darüber Luftabzug/Umluft.
Eine neue Küche sollte von 1.2m auf 1.8m, d.h. auf 3 Elemente vergrößert werden. Dies wegen der sehr restriktiven Arbeitsfläche, zudem könnte ein Mikrowelle /Backofen Kombi eingebaut werden. Die neuen Fronten sollen neutral weiß werden. Da die Wohnung nicht im Preissegment von Manhattan steht sehen wir von einer versteckten Schiebetür Lösung o.ä ab, Wohnlichkeit im Schlaf/Wohnbereich ist jedoch wichtig.
Die Anordnung der 6 Elemente, wie auch die Wandelemente, markiert A und B im Plan, stehen zur Disposition, der Wasseranschluss ist aber in etwa gegeben.
Planunten ist ein großes Fenster, planunten rechts der Druchgang zum Balkon
Ich danke schon im voraus für alle Ratschläge, Anmerkungen und Kritiken!
Checkliste zur Küchenplanung
Personenkriterien und Ergonomie
Anzahl Personen im Haushalt: 1
Davon Kinder: keine
Körpergrößen aller Hauptbenutzer in cm (wegen Arbeitshöhe ):
Welche Arbeitshöhe ist angedacht (in cm)?:
Gebäudekriterien
Art des Gebäudes: Bestandsbau > (kleinere) Umbauten möglich, Eigentum, Miete
Brüstungshöhe des Fensters (in cm):
Fensterhöhe (in cm):
Raumhöhe in cm: 230
Heizung: Heizkörper wie im Grundriss
Sanitäranschlüsse: fix
Einbaugerätekriterien
Ausführung Kühlgerät: N. a.
Einbaukühlgerät Größe: Noch unbekannt
Ausführung Tiefkühl (TK)-Gerät: Im Kühlschrank als kleines Fach oben
Dunstabzugshaube: Umluft
Hochgebauter Backofen : nein
Geplante Heißgeräte: Einbaumikrowelle, Backofen
Hochgebauter Geschirrspüler : N. a.
Art des Kochfeldes: Ceran (herkömmliche Beheizung)
Kochfeldbreite (ca. in cm): 30
Sitzmöglichkeiten
Sitzmöglichkeit in der Küche / im Küchenbereich: Keine
Sitzmöglichkeit: Für wieviel Personen?: N. a.
Sitzmöglichkeit: Tisch - wenn gesonderter Tisch oder offene Küche: N. a.
Gewünschte oder vorhandene Tischgröße:
Wofür soll der Sitzplatz in der Küche genutzt werden und wie häufig:
Stauraumplanung
Was steht auf der Arbeitsplatte oder soll dort stehen?: N. a.
Welche weiteren Küchenmaschinen müssen in der Küche untergebracht werden: N. a.
Was soll in der Küche außer den Standards untergebracht werden: N. a.
Welchen Stauraum gibt es sonst noch: N. a.
Kochgewohnheiten
Was/wie wird gekocht? (Alltagsküche, Menüs, Snacks usw): Wenig, eher selten
Wie häufig wird gekocht: Ab und zu
Wird alleine gekocht? Oder auch gemeinsam? Mit und für Gäste?: Alleine
Spülen und Müll
Spülenform: 1 Becken ohne Abtropffläche
Welche Mülltrennung soll in der Küche vorgehalten werden: N. a.
Sonstiges
Steht schon ein Küchenhersteller fest oder wird bevorzugt:
Steht schon ein Gerätehersteller fest oder wird bevorzugt: BSH
Küchenstil: Klassisch
Was stört an der bisherigen Küche und was soll die neue Küche unbedingt können? Warum?: Renovation
Preisvorstellung (Budget):
Angehängte Dateien
Anhänge











