Pierre 1982
Mitglied
- Beiträge
- 3
Titel des Themas: Küche für neues EFH
Hallo liebes Forum,
ich lese schon seit geraumer Zeit hier und da in den Threads mit und bin wirklich begeistert mit welcher Kreativität und welchem Einsatz hier geholfen wird. Dafür ein ganz großes Lob an dieser Stelle.
Zu meinem/unserem Anliegen. Wir (meine Frau, die 2 Knirpse und ich) stehen kurz vor Einreichung des Bauantrags (grüner Punkt) für unser EFH. Uns wurde von diversen Seiten empfohlen jetzt schon mit der Küchenplanung zu starten, vor allem da wir noch in der Lage sind Fenster und Innenwände (bis auf tragende)/Türen zu schieben falls es erforderlich sein sollte. Wir haben uns daher schon konkret mit der Planung bzw. primär mit der Aufteilung, unter Berücksichtigung der hier aufgeschnappten Tipps, auseinander gesetzt und würden gerne eure Meinungen dazu hören/sehen. Des Weiteren stehen diese Woche auch 2 Termine in Küchenstudios an.
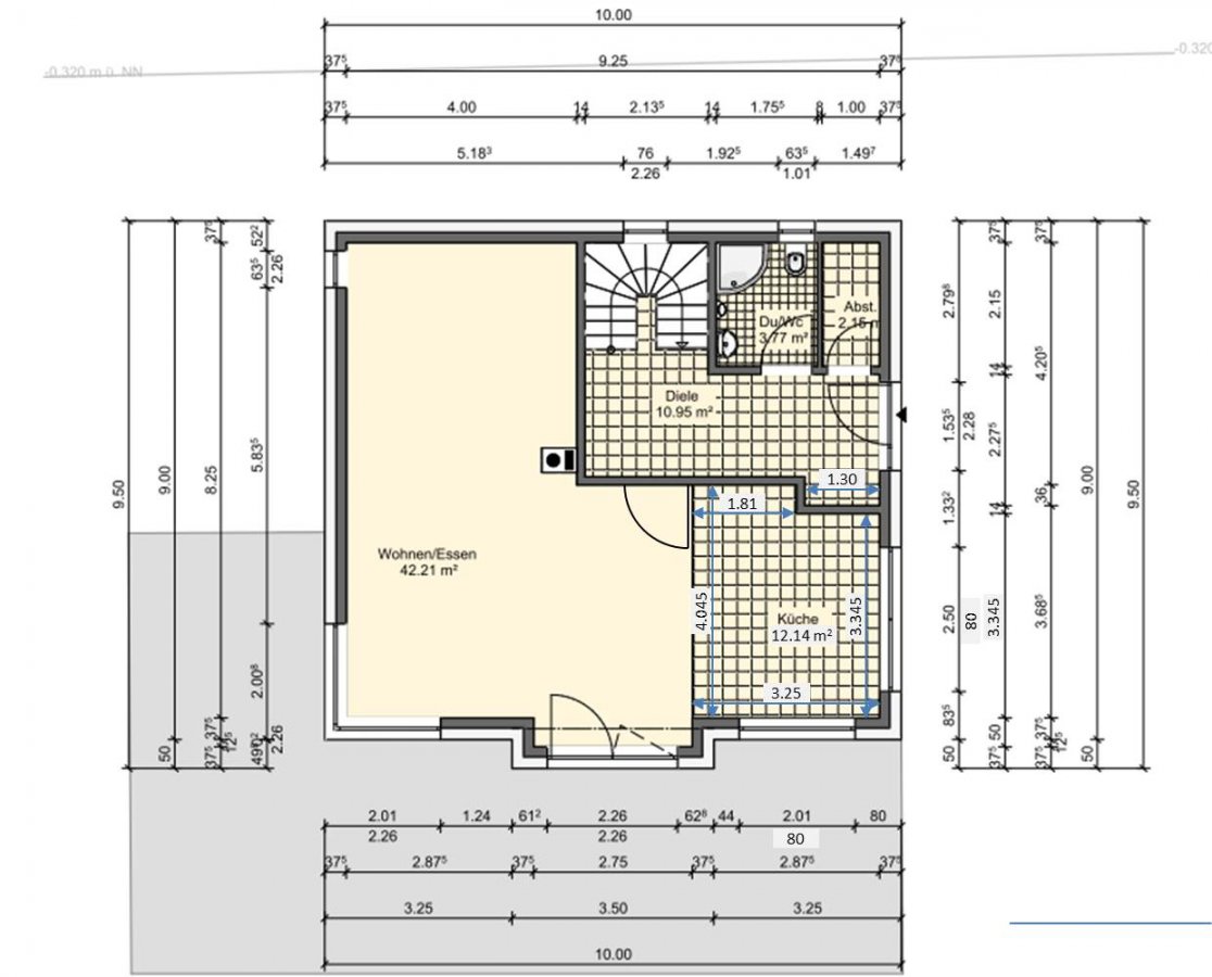
Ein paar Grundlegende Infos: Der Küchenbereich liegt in der südöstlichen Ecke unseres Hauses (siehe EG Grundriss anbei). An die Küche schließt sich der Essbereich und im weiteren Verlauf (südwestliche Ecke) der Wohnbereich an. Den Wohn-, Ess- Küchenbereich betritt man, vom Eingangsbereich (Diele) her kommend, durch eine Milchglastür mit Seitenteil. Der Küchenbereich wird gefliest (wahrscheinlich 60x30 Beton Optik oder so). Im Wohn- und Essbereich soll es geöltes Eichendielenparkett werden.
Unmittelbar geht es uns vor allem darum die Einteilung und Größe der Küche festzulegen. Sprich wo kommt ein HS, US … hin, wo brauchen wir Wasser, Strom etc. und wie bereits erwähnt wollen wir die Fensterabmessungen und Positionen sowie die Innenwände und Türen festzurren. Nicht das uns nachher ein-zwei Zentimetern zur „Traumküche“ fehlen. Die Fronten (eventuell weiß Hochglanz mit Akzent durch andere Farbe an halbhohen HS), AP (eventuell Laminat Basalt oder Schiefer), Spüle (eventuell FRANKE FX FXG 611-100), Gerätehersteller und Typ etc. werden wir zu einem späteren Zeitpunkt festlegen.
Aus unseren bisherigen Überlegungen zur Küche sind 2 Ansätze entstanden die wir im Alno -Planer versucht haben darzustellen. Variante 1 bittet aus unserer Sicht die größtmögliche AP und am meisten Stauraum. Variante 2 müsste hinsichtlich der Kosten intersannt sein.
Wichtig ist uns bei der Küche, dass wir zum Essbereich hin kochen (keine Spülinsel) und das es eine frei Arbeitsfläche neben dem Kochfeld gibt (auch wenn diese keinen MUPL hat) da wir oft zu zweit kochen und der der eine dem anderen zu schnippelt. Des Weiteren soll diese Arbeitsfläche bei größeren Kochaktionen als Anrichte und Ablage dienen. Weiter wünschen wir uns einen hochgesetzten GSP und möchten auf Hängeschränke komplett verzichten. Die Spüle mit Abtropffläche sollte groß genug sein um darin auch mal einen Backofen - oder Grillrost einweichen zu lassen. Die Spüle muss auf jeden Fall neben den GSP und unter der angrenzenden Arbeitsfläche soll es einen MUPL geben. Wir planen die Küche mit „großen“ Edelstahlgriffen.
Eine genaue Stauraumplanung werden wir nach entscheid für eine Variante und ggf. Anpassung der einzelnen Rastereinteilungen aufstellen.
Zu den 2 (Alno-) Varianten:
Wir haben versucht den gesamten Wohn-, Ess- Küchenbereich inkl. Erker mittels V17.b zu modellieren. Den Erker konnten wir allerdings nur durch zusätzliche Wandelemente darstellen. Auch die lässt der Alno-Planer nur Raumlängen bis 900cm zu, planrechts sind im Wohn- und Essbereich also noch 25cm mehr Platz. Die schwarzen Fliesen an der Ecke im Küchenbereich sind stellvertretend für Naturstein Verblender aus Schiefer zu verstehen. Die Griffpositionen, Rasterungen und Linienführung insbesondere des HS sind nur als grobe Annäherung zu verstehen. Maßgebend ist die nachfolgende schriftliche Aufstellung.
HS Zeile plan oben (von links nach rechts)
Bei beiden Varianten sollen in 3 60er HS:
Zeile planrechts (von oben nach unten)
Variante 1
Variante 2
Zeile plan unten (von rechts nach links)
Variante 1
Variante2
Nichts (eventuell eine große Tafel als Eyecatcher an die Wand)
Halbinsel planlinks von Küchenseite her (von unten nach oben)
Variante 1
Variante 2
Halbinsel planlinks von Wohn-Essbereich her (von oben nach unten)
Variante 1
Variante 2
So ich hoffe ich konnte unsere Vorstellungen einigermaßen klar darlegen und freu mich schon auf eure Feedbacks speziell in Bezug auf beste Variante und Optimierungsmöglichkeiten.
Viele Grüße
Pierre
Checkliste zur Küchenplanung
Personenkriterien und Ergonomie
Anzahl Personen im Haushalt: 4
Davon Kinder: 2
Körpergrößen aller Hauptbenutzer in cm (wegen Arbeitshöhe ): Sie 175cm, Er 176cm
Welche Arbeitshöhe ist angedacht (in cm)?: ca. 93cm
Gebäudekriterien
Art des Gebäudes: Neu-/Umbau > Planänderungen möglich
Brüstungshöhe des Fensters (in cm): ca. 146cm
Fensterhöhe (in cm): ca. 80cm
Raumhöhe in cm: ca. 250cm (lichte Rohbauhöhe 265cm)
Heizung: Fußbodenheizung
Sanitäranschlüsse: vollkommen variabel
Einbaugerätekriterien
Ausführung Kühlgerät: Integriert im Hochschrank (60cm)
Einbaukühlgerät Größe: 158cm
Ausführung Tiefkühl (TK)-Gerät: Eigenständiges Gerät bis 88 cm Höhe
Dunstabzugshaube: Abluft
Hochgebauter Backofen : ja
Geplante Heißgeräte: Standmikrowelle, Backofen
Hochgebauter Geschirrspüler : ja
Art des Kochfeldes: Induktion
Kochfeldbreite (ca. in cm): 80
Sitzmöglichkeiten
Sitzmöglichkeit in der Küche / im Küchenbereich: Tresen in Barhöhe
Sitzmöglichkeit: Für wieviel Personen?: Für 2 Personen
Sitzmöglichkeit: Tisch - wenn gesonderter Tisch oder offene Küche: Keiner
Gewünschte oder vorhandene Tischgröße:
Wofür soll der Sitzplatz in der Küche genutzt werden und wie häufig: Für das schnelle Frühstück unter der Woche, den schnellen Espresso zwischen durch…
Stauraumplanung
Was steht auf der Arbeitsplatte oder soll dort stehen?: Kaffeevollautomat, Wasserkocher, Thermomix, Obstschale
Welche weiteren Küchenmaschinen müssen in der Küche untergebracht werden: Handrührgerät, Pürierstab, Sonstiges (evtl. im Beitragstext benennen)
Was soll in der Küche außer den Standards untergebracht werden: Geschirr komplett (nichts in Ess-/Wohnzimmer)
Welchen Stauraum gibt es sonst noch: Speisekammer
Kochgewohnheiten
Was/wie wird gekocht? (Alltagsküche, Menüs, Snacks usw): Alles tifft zu
Wie häufig wird gekocht: (fast) täglich 1x warm
Wird alleine gekocht? Oder auch gemeinsam? Mit und für Gäste?: Unter der Woche meist alleine. Am Wochende auch mal zu zweit.
Spülen und Müll
Spülenform: 1 Becken mit Abtropffläche
Welche Mülltrennung soll in der Küche vorgehalten werden: Altglas, Altpapier, Biomüll, Gelber Sack Müll, Restmüll
Sonstiges
Steht schon ein Küchenhersteller fest oder wird bevorzugt: eventuell Schüller
Steht schon ein Gerätehersteller fest oder wird bevorzugt: nein
Küchenstil: Klassisch
Was stört an der bisherigen Küche und was soll die neue Küche unbedingt können? Warum?: Zu kleine AP, kaum Stauraum, abgetrennter Raum...
Preisvorstellung (Budget): Wunschpreis 12.000 Euro (max. 15.000 Euro) inkl. Geräte
Angehängte Dateien
Hallo liebes Forum,
ich lese schon seit geraumer Zeit hier und da in den Threads mit und bin wirklich begeistert mit welcher Kreativität und welchem Einsatz hier geholfen wird. Dafür ein ganz großes Lob an dieser Stelle.
Zu meinem/unserem Anliegen. Wir (meine Frau, die 2 Knirpse und ich) stehen kurz vor Einreichung des Bauantrags (grüner Punkt) für unser EFH. Uns wurde von diversen Seiten empfohlen jetzt schon mit der Küchenplanung zu starten, vor allem da wir noch in der Lage sind Fenster und Innenwände (bis auf tragende)/Türen zu schieben falls es erforderlich sein sollte. Wir haben uns daher schon konkret mit der Planung bzw. primär mit der Aufteilung, unter Berücksichtigung der hier aufgeschnappten Tipps, auseinander gesetzt und würden gerne eure Meinungen dazu hören/sehen. Des Weiteren stehen diese Woche auch 2 Termine in Küchenstudios an.
Ein paar Grundlegende Infos: Der Küchenbereich liegt in der südöstlichen Ecke unseres Hauses (siehe EG Grundriss anbei). An die Küche schließt sich der Essbereich und im weiteren Verlauf (südwestliche Ecke) der Wohnbereich an. Den Wohn-, Ess- Küchenbereich betritt man, vom Eingangsbereich (Diele) her kommend, durch eine Milchglastür mit Seitenteil. Der Küchenbereich wird gefliest (wahrscheinlich 60x30 Beton Optik oder so). Im Wohn- und Essbereich soll es geöltes Eichendielenparkett werden.
Unmittelbar geht es uns vor allem darum die Einteilung und Größe der Küche festzulegen. Sprich wo kommt ein HS, US … hin, wo brauchen wir Wasser, Strom etc. und wie bereits erwähnt wollen wir die Fensterabmessungen und Positionen sowie die Innenwände und Türen festzurren. Nicht das uns nachher ein-zwei Zentimetern zur „Traumküche“ fehlen. Die Fronten (eventuell weiß Hochglanz mit Akzent durch andere Farbe an halbhohen HS), AP (eventuell Laminat Basalt oder Schiefer), Spüle (eventuell FRANKE FX FXG 611-100), Gerätehersteller und Typ etc. werden wir zu einem späteren Zeitpunkt festlegen.
Aus unseren bisherigen Überlegungen zur Küche sind 2 Ansätze entstanden die wir im Alno -Planer versucht haben darzustellen. Variante 1 bittet aus unserer Sicht die größtmögliche AP und am meisten Stauraum. Variante 2 müsste hinsichtlich der Kosten intersannt sein.
Wichtig ist uns bei der Küche, dass wir zum Essbereich hin kochen (keine Spülinsel) und das es eine frei Arbeitsfläche neben dem Kochfeld gibt (auch wenn diese keinen MUPL hat) da wir oft zu zweit kochen und der der eine dem anderen zu schnippelt. Des Weiteren soll diese Arbeitsfläche bei größeren Kochaktionen als Anrichte und Ablage dienen. Weiter wünschen wir uns einen hochgesetzten GSP und möchten auf Hängeschränke komplett verzichten. Die Spüle mit Abtropffläche sollte groß genug sein um darin auch mal einen Backofen - oder Grillrost einweichen zu lassen. Die Spüle muss auf jeden Fall neben den GSP und unter der angrenzenden Arbeitsfläche soll es einen MUPL geben. Wir planen die Küche mit „großen“ Edelstahlgriffen.
Eine genaue Stauraumplanung werden wir nach entscheid für eine Variante und ggf. Anpassung der einzelnen Rastereinteilungen aufstellen.
Zu den 2 (Alno-) Varianten:
Wir haben versucht den gesamten Wohn-, Ess- Küchenbereich inkl. Erker mittels V17.b zu modellieren. Den Erker konnten wir allerdings nur durch zusätzliche Wandelemente darstellen. Auch die lässt der Alno-Planer nur Raumlängen bis 900cm zu, planrechts sind im Wohn- und Essbereich also noch 25cm mehr Platz. Die schwarzen Fliesen an der Ecke im Küchenbereich sind stellvertretend für Naturstein Verblender aus Schiefer zu verstehen. Die Griffpositionen, Rasterungen und Linienführung insbesondere des HS sind nur als grobe Annäherung zu verstehen. Maßgebend ist die nachfolgende schriftliche Aufstellung.
HS Zeile plan oben (von links nach rechts)
Bei beiden Varianten sollen in 3 60er HS:
- ein großer Einbaukühlschrank (ca. 160-180 cm)
- ein hochgesetzter Backoffen, darüber die Mikrowelle (hinter Dreh- oder Lifttür)
- ein mittel großer Einbaugefrierschrank (ca. 88 cm)
- so lassen wie aktuell in der Planung also Höhe ca. 240 cm und oben offen
- so lassen wie aktuell in der Planung also Höhe ca. 240 cm und oben eine ringsum die HS verlaufende Blende
- oder geringere HS Höhe und Einkofferung in Trockenbauweise
Zeile planrechts (von oben nach unten)
Variante 1
- 45er Seitenschrank (ca. 140 cm hoch) mit Innenauszügen
- 60er Seitenschrank (ca. 140 cm hoch) für hochgesetzten GSP und darunter 2 Auszüge
- 15er US (offen) für Geschirrtuchauszug
- 45er US mit 2 Auszügen
- 60er Spülen US mit 2 Auszügen (oberer Auszug mit niedriger Rückwand und gekürzt)
- 40 US 2 Auszügen (in Alno sind noch 3 dargestellt) als MUPL
- Blende
- Tote Ecke
- AP-Rückwand Milchglas. Macht da noch eine zusätzliche (Edelstahl)Leiste Sinn?
Variante 2
- 60er Seitenschrank (ca. 140 cm hoch) mit Innenauszügen
- 60er Seitenschrank (ca. 140 cm hoch) für hochgesetzten GSP und darunter 2 Auszüge
- 15er US (offen ) für Geschirrtuchauszug
- 40er US mit 2 Auszügen
- 60er Spülen US mit 2 Auszügen (oberer Auszug mit niedriger Rückwand und gekürzt)
- 60er US 2 Auszüge (in Alno sind noch 3 dargestellt) mit MUPL
- 30er US 3 Auszüge
- AP-Rückwand Milchglas. Macht da noch eine zusätzliche (Edelstahl)Leiste Sinn?
Zeile plan unten (von rechts nach links)
Variante 1
- Tote Ecke
- 2x 80er US mit 3 Auszügen
- Tote Ecke
Variante2
Nichts (eventuell eine große Tafel als Eyecatcher an die Wand)
Halbinsel planlinks von Küchenseite her (von unten nach oben)
Variante 1
- Tote Ecke
- 60er US 1-1-2-2 Raster
- 80er US 1-1-2-2 Raster darüber 80er Kochfeld mit Ablufthaube
- 45er US 1-1-2-2 Raster
- Wange an Inselende ausgeklinkt
Variante 2
- 2x60er US 1-1-2-2 Raster
- 80er US 1-1-2-2 Raster darüber 80er Kochfeld mit Ablufthaube
- 45er US 1-1-2-2 Raster
- Wange an Inselende ausgeklinkt
Halbinsel planlinks von Wohn-Essbereich her (von oben nach unten)
Variante 1
- Wange an Inselende ausgeklinkt
- 4x 60 US mit Drehtür, 35 – 40 cm tief mit Fachböden
- aufgelegtes Thekenbrett in Eiche (konnten wir in der 17er Alno nicht einfärben da Frontfarbe 2 schon belegt) ca. 35 cm Überstand für zwei Sitzplätze
- Blende
Variante 2
- Wange an Inselende ausgeklinkt
- 3x 60 US mit Drehtür, 35 – 40 cm tief mit Fachböden
- 1x 60 US mit Drehtür, 605 – 90 cm tief mit Fachböden (geht in tote Ecke)
- aufgelegtes Thekenbrett in Eiche (konnten wir in der 17er Alno nicht einfärben da Frontfarbe 2 schon belegt) ca. 35 cm Überstand für zwei Sitzplätze
- Blende
So ich hoffe ich konnte unsere Vorstellungen einigermaßen klar darlegen und freu mich schon auf eure Feedbacks speziell in Bezug auf beste Variante und Optimierungsmöglichkeiten.
Viele Grüße
Pierre
Checkliste zur Küchenplanung
Personenkriterien und Ergonomie
Anzahl Personen im Haushalt: 4
Davon Kinder: 2
Körpergrößen aller Hauptbenutzer in cm (wegen Arbeitshöhe ): Sie 175cm, Er 176cm
Welche Arbeitshöhe ist angedacht (in cm)?: ca. 93cm
Gebäudekriterien
Art des Gebäudes: Neu-/Umbau > Planänderungen möglich
Brüstungshöhe des Fensters (in cm): ca. 146cm
Fensterhöhe (in cm): ca. 80cm
Raumhöhe in cm: ca. 250cm (lichte Rohbauhöhe 265cm)
Heizung: Fußbodenheizung
Sanitäranschlüsse: vollkommen variabel
Einbaugerätekriterien
Ausführung Kühlgerät: Integriert im Hochschrank (60cm)
Einbaukühlgerät Größe: 158cm
Ausführung Tiefkühl (TK)-Gerät: Eigenständiges Gerät bis 88 cm Höhe
Dunstabzugshaube: Abluft
Hochgebauter Backofen : ja
Geplante Heißgeräte: Standmikrowelle, Backofen
Hochgebauter Geschirrspüler : ja
Art des Kochfeldes: Induktion
Kochfeldbreite (ca. in cm): 80
Sitzmöglichkeiten
Sitzmöglichkeit in der Küche / im Küchenbereich: Tresen in Barhöhe
Sitzmöglichkeit: Für wieviel Personen?: Für 2 Personen
Sitzmöglichkeit: Tisch - wenn gesonderter Tisch oder offene Küche: Keiner
Gewünschte oder vorhandene Tischgröße:
Wofür soll der Sitzplatz in der Küche genutzt werden und wie häufig: Für das schnelle Frühstück unter der Woche, den schnellen Espresso zwischen durch…
Stauraumplanung
Was steht auf der Arbeitsplatte oder soll dort stehen?: Kaffeevollautomat, Wasserkocher, Thermomix, Obstschale
Welche weiteren Küchenmaschinen müssen in der Küche untergebracht werden: Handrührgerät, Pürierstab, Sonstiges (evtl. im Beitragstext benennen)
Was soll in der Küche außer den Standards untergebracht werden: Geschirr komplett (nichts in Ess-/Wohnzimmer)
Welchen Stauraum gibt es sonst noch: Speisekammer
Kochgewohnheiten
Was/wie wird gekocht? (Alltagsküche, Menüs, Snacks usw): Alles tifft zu
Wie häufig wird gekocht: (fast) täglich 1x warm
Wird alleine gekocht? Oder auch gemeinsam? Mit und für Gäste?: Unter der Woche meist alleine. Am Wochende auch mal zu zweit.
Spülen und Müll
Spülenform: 1 Becken mit Abtropffläche
Welche Mülltrennung soll in der Küche vorgehalten werden: Altglas, Altpapier, Biomüll, Gelber Sack Müll, Restmüll
Sonstiges
Steht schon ein Küchenhersteller fest oder wird bevorzugt: eventuell Schüller
Steht schon ein Gerätehersteller fest oder wird bevorzugt: nein
Küchenstil: Klassisch
Was stört an der bisherigen Küche und was soll die neue Küche unbedingt können? Warum?: Zu kleine AP, kaum Stauraum, abgetrennter Raum...
Preisvorstellung (Budget): Wunschpreis 12.000 Euro (max. 15.000 Euro) inkl. Geräte
Angehängte Dateien
Anhänge
-
Pierre Alno Grundriss V1.jpg56,7 KB · Aufrufe: 246 -
Pierre V1 von vorne.JPG106,2 KB · Aufrufe: 257 -
Pierre V1 von hinten.JPG108,1 KB · Aufrufe: 297 -
Pierre V1 von plan unten.JPG115 KB · Aufrufe: 297 -
Pierre V1 von plan oben.JPG125,6 KB · Aufrufe: 250 -
Pierre V1 von oben.JPG101,7 KB · Aufrufe: 237 -
Pierre V1.KPL3,6 KB · Aufrufe: 286
-
Pierre V1.POS9,8 KB · Aufrufe: 269
