Unbeendet Hilfe bei Küchenplanung benötigt

mario.roosen

Hilfe bei Küchenplanung benötigt

Hallo zusammen,

mein Name ist Mario und ich bin neu hier im Küchen-Forum.
Freut mich euch alle kennenzulernen! :-)

Ich habe vor wenigen Monaten zusammen mit meiner Partnerin ein Reihenendhaus gekauft, welches gerade errichtet wird und voraussichtlich im Oktober/November 2020 bezugsfertig ist.

Aktuell beschäftigen wir uns neben einigen anderen Punkten natürlich auch mit der Küchenplanung, bei der ich eure Hilfe benötige.

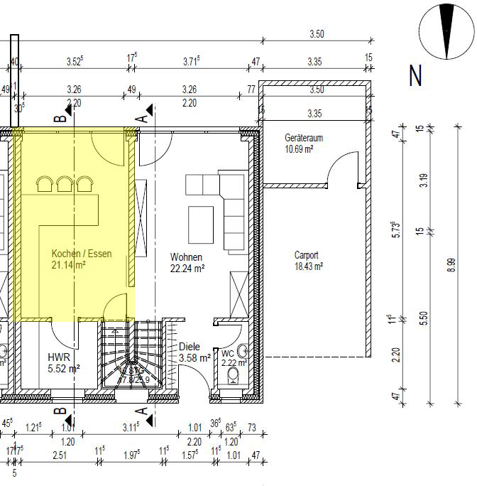
Im Anhang findet ihr einen Grundriss des Erdgeschosses auf dem ich den Küchen-/Essbereich gelb markiert habe.
Der Küchen-/Essbereich ist insgesamt 21,14 m² (3,52 m x 5,73 m) groß.
Direkt an den Küchen-/Essbereich angrenzend befindet sich der Hauswirtschaftsraum.
Der Hauswirtschaftsraum ist insgesamt 5,52 m² (2,20 m x 2,51 m) groß.

Die eingezeichnete L-Form der Küche gefällt uns nicht.
Wir hätten gerne eine große Kochinsel in der Mitte des Raumes, die den Arbeitsbereich und den Essbereich verbindet.
Die Kochinsel soll die Maße 340 cm x 100 cm haben.
Im Arbeitsbereich der Insel möchten wir eine Spüle und ein Induktionsfeld platzieren und wünschen uns noch ausreichend Fläche zum Arbeiten.
Für den Arbeitsbereich plane ich 180 cm x 100 cm ein.
Im Essbereich hätten wir gerne Platz für 4-6 Personen.
Für den Essbereich plane ich 160 cm x 100 cm ein.
Das große Inselelement soll Kochblock und Esstisch (als verlängerte Arbeitsplatte ) miteinander vereinen und einen separaten Esstisch überflüssig machen.

Folgende Küchengeräte haben wir bereits und möchten diese natürlich in der neuen Küche verbauen.
Die beiden Kompaktgeräte sollen in 2 Hochschränken abseits der Insel platziert werden. Die Kühl- und Gefrierkombination soll daneben platziert werden.

Kompaktdampfgarer:
Siemens CD634GBS1
https://www.siemens-home.bsh -group.com/de/produktliste/CD634GBS1

Kompaktbackofen mit Mikrowelle :
Siemens CM633GBS1
https://www.siemens-home.bsh-group.com/de/produktliste/CM633GBS1

Kühl- und Gefrierkombination:
Siemens KG49NSB31
https://www.siemens-home.bsh-group.com/de/produktliste/KG49NSB31

Geschirrspüler :
Siemen SX778X16TE
https://www.siemens-home.bsh-group.com/de/produktliste/SX778X16TE

Was haltet Ihr von der Idee? Ist die Idee umsetzbar?
Welche Tipps, Ratschläge, Verbesserungsvorschläge habt ihr für mich?

Bei Fragen meldet euch gerne.
Falls ich was vergessen haben, gebt mir gerne Bescheid.
Ich freue mich auf euer Feedback!

Vielen Dank!

Liebe Grüße
Mario

Checkliste zur Küchenplanung

Personenkriterien und Ergonomie
Anzahl Personen im Haushalt: 2
Davon Kinder: keine
Körpergrößen aller Hauptbenutzer in cm (wegen Arbeitshöhe ): 174 cm, 164 cm
Welche Arbeitshöhe ist angedacht (in cm)?: 91 cm

Gebäudekriterien
Art des Gebäudes: Neu-/Umbau > Planänderungen nicht möglich, Eigentum
Brüstungshöhe des Fensters (in cm): bodentiefe Fenster
Fensterhöhe (in cm): 200 cm
Raumhöhe in cm: 250 cm
Heizung: Fußbodenheizung
Sanitäranschlüsse: vollkommen variabel

Einbaugerätekriterien
Ausführung Kühlgerät: Stand-Alone bis 75cm Breite
Einbaukühlgerät Größe: Noch unbekannt
Ausführung Tiefkühl (TK)-Gerät: Nicht erforderlich bzw. steht woanders
Dunstabzugshaube: Umluft
Hochgebauter Backofen : ja
Geplante Heißgeräte: Dampfgarer ohne Wasseranschluß, Backofen
Hochgebauter Geschirrspüler : nein
Art des Kochfeldes: Induktion
Kochfeldbreite (ca. in cm): 80 cm

Sitzmöglichkeiten
Sitzmöglichkeit in der Küche / im Küchenbereich: Überstehende Arbeitsplatte
Sitzmöglichkeit: Für wieviel Personen?: Für 4 Personen
Sitzmöglichkeit: Tisch - wenn gesonderter Tisch oder offene Küche: Keiner
Gewünschte oder vorhandene Tischgröße: 160 cm
Wofür soll der Sitzplatz in der Küche genutzt werden und wie häufig: Frühstück, Mittagessen, Abendessen, täglich

Stauraumplanung
Was steht auf der Arbeitsplatte oder soll dort stehen?: Wasserkocher, Küchenmaschine, Toaster
Welche weiteren Küchenmaschinen müssen in der Küche untergebracht werden: N. a.
Was soll in der Küche außer den Standards untergebracht werden: N. a.
Welchen Stauraum gibt es sonst noch: Hauswirtschaftsraum

Kochgewohnheiten
Was/wie wird gekocht? (Alltagsküche, Menüs, Snacks usw): Alltagsküche
Wie häufig wird gekocht: (fast) täglich 1x warm
Wird alleine gekocht? Oder auch gemeinsam? Mit und für Gäste?: alleine

Spülen und Müll
Spülenform: 1 Becken ohne Abtropffläche
Welche Mülltrennung soll in der Küche vorgehalten werden: Biomüll, Gelber Sack Müll, Restmüll

Sonstiges
Steht schon ein Küchenhersteller fest oder wird bevorzugt:
Steht schon ein Gerätehersteller fest oder wird bevorzugt: Siemens
Küchenstil: Grifflose Küche
Was stört an der bisherigen Küche und was soll die neue Küche unbedingt können? Warum?:
Preisvorstellung (Budget): 10.000 Euro

Angehängte Dateien
 

Anhänge

  • Grundriss EG.JPG
    Grundriss EG.JPG
    212,7 KB · Aufrufe: 224
Hallo Mario und herzlich willkommen.

Top Eingangspost! sogar mit Nordpfeil ...

Trotzdem verstehe ich nicht alles. Damit wir uns nicht unnötig Arbeit machen, kannst du mal grob in den Raum die Möblierung einzeichnen, wie du es dir wünscht?

Der Küchen-/Essbereich ist insgesamt 21,14 m² (3,52 m x 5,73 m) groß.
wenn die Insel 340cm lang sein soll und dazu eine HS-Zeile (mit Loch?) dann wird die Anordung längs des Raumes sein.

Wie kommst du dann in die Kammer, wie soll der Tisch stehen, wenn dann nur noch ca 235cm Platz in der Länge übrig bleiben?
 
:welcome:

Was soll alles im HWR untergebracht werden? Wie kommt ihr mit einem Esstisch für nur 4 Personen klar, wenn die Grosseltern / Freunde der Kinder / eigene Freunde etc eingeladen werden?

Wie lebt ihr? Mehrheitlich Küche / Essen oder WoZi? Manche Menschen verbringen ihr Leben sozusagen am Esstisch - auch zum Zeitung lesen, arbeiten etc, wärend andere diese Zeit auf dem Sofa verbringen ..

Grundsätzliche Anpassungen: die Türen zum HWR und der Windfang sollten Schiebetüren werden. Entweder verpasst man den Räumen statt gemauerter Wände Schiebetür, elemente (d.h. doppeltbreiter Sturz und Fertigelemente) oder man doppelt auf oder wählt auf der Mauer laufende Türen. Für den Eingang würde ich eine Glaszüre wählen für den HWR ebenfalls; dann hat man mehr natürliches Licht im Küchenraum.
 

Ähnliche Beiträge

Neff Hausgeräte Ballerina Küchen Blum Bewegungstechnologie Weibel - Intelligente Küchenlüftung

Neff Spezial

Blum Zonenplaner

Weibel Abluft-Tuning

Weibel Abluft-Tuning
Zurück
Oben