caro82
Mitglied
- Beiträge
- 4
Hallo,
ich bin langsam an verzweifeln und brauche etwas Hilfe, bzw Ideen.
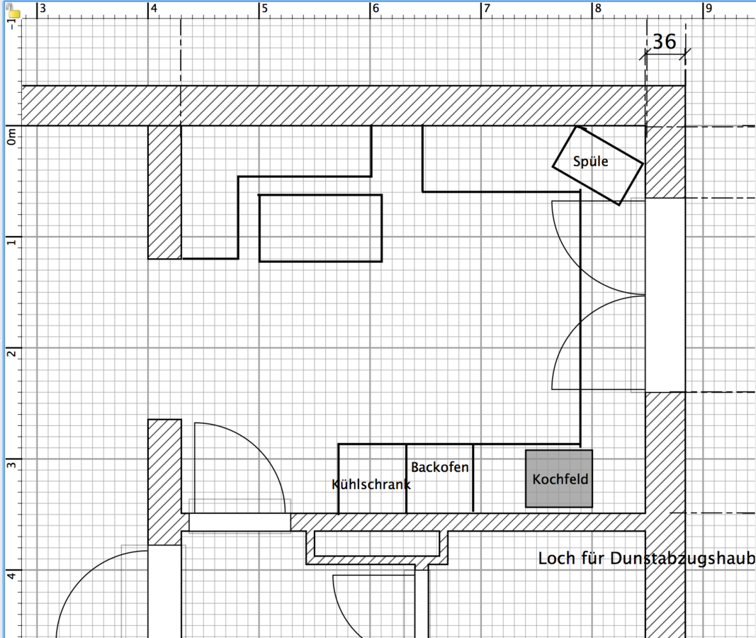
Wir haben eine Bestandsimmobilie aus den 30igern gekauft und wollen die Küche in einen anderen Raum unterbringen. Das Haus ist unterkellert, sodass die Anschlüsse beliebig verlegt werden können.
In die Wand zwischen Esszimmer und Küche soll ein Durchbruch gemacht werden. Die genaue Größe ist auch noch variabel, mind 120cm.
Wir möchten auf jeden Fall eine Essecke in der Küche für 4 Personen, gern als Eckbank am ehsten in der linken/oberen Ecke.
Ich wünsche mir einen Side by Side Kühlschrank. Aber ich denke wir bekommen ihn kaum unter. Die Kochplatte soll in der Nähe der unteren Wand/Ecke sein, weil die Dunstabzughaube(Abluftöffnung dort vorhanden) dort sein soll. Die Fensterbrütung ist leider bei 86cm. Ich hatte überlegt ob es eine Lösung mit verschiedenen Arbeitshöhen gibt.
Was haltet Ihr von Gas in einer (halb)offenen Küche? Wünscht sich mein Mann.
Vielen Dank für Eure Hilfe
Checkliste zur Küchenplanung
Anzahl Personen im Haushalt: 4
Davon Kinder?: 2
Art des Gebäudes?: Bestandsbau, (kleinere) Umbauten möglich
Körpergrössen aller Hauptbenutzer (wegen Arbeitshöhe ) in cm: 179 und 172
Brüstungshöhe des Fensters (in cm): 86cm
Fensterhöhe (in cm): 130
Raumhöhe in cm: 270
Heizung: Fussbodenheizung
Sanitäranschlüsse: vollkommen variabel
Ausführung Kühlgerät:
Kühlgerät Größe:
Ausführung Tiefkühl (TK)-Gerät:
Dunstabzugshaube: Abluft
Backofen etc. hochgebaut?: Ja
Hochgebauter Geschirrspüler ?: Nein
Kochfeldart: Gas
Kochfeldbreite ca. (in cm)?:
Spülenform: Noch nicht festgelegt
Geplante Heißgeräte: Backofen
Küchenstil: Klassisch
Sitzmöglichkeit in der Küche / im Küchenbereich: Gesonderter Tisch
Sitzmöglichkeit: Für wieviel Personen?: für 4 Personen
Sitzmöglichkeit: Tisch - wenn gesonderter Tisch oder offene Küche: Wird nach Bedarf neu gekauft
Gewünschte o. vorhandene Tischgröße:
Wofür soll der Sitzplatz in der Küche genutzt werden? Wie häufig?: zum schnellen Frühstück, Essenszubereitung
Welche Arbeitshöhe ist angedacht (in cm)?: Da das Fenster 86cm Brüstunghöhe hat leide rnur 86cm, oder an den Seiten höhere Arbeitshöhe falls möglich
Was steht auf der Arbeitsplatte oder soll dort stehen?: Wasserkocher, Obstschale
Welche weiteren Küchenmaschinen müssen in der Küche untergebracht werden?: Handrührgerät, Mixer, Pürierstab
Was soll in der Küche außer den Standards untergebracht werden?:
Welchen Stauraum gibt es sonst noch?: Geschirr/Gläserschrank im Wohn-/Esszimmer, Keller
Was/wie wird gekocht? (Alltagsküche, Menüs, Snacks usw): Alltagsküche
Wie häufig wird gekocht?: (fast) täglich 1x warm
Wird alleine gekocht? Oder auch gemeinsam? Mit und für Gäste?: Mit den Kindern
Was stört an der bisherigen Küche und was soll die neue Küche unbedingt können? Warum?:
Welche Mülltrennung soll in der Küche vorgehalten werden?: Biomüll, Plastik, Alu, Metall total getrennt, Restmüll
Steht schon ein Küchenhersteller fest oder wird bevorzugt?: nein, evtl IKEA
Steht schon ein Gerätehersteller fest oder wird bevorzugt?: Altgeräte(Backofen , Kochfeld, Geschirrspüler ) vorhandem
Preisvorstellung (Budget):
ich bin langsam an verzweifeln und brauche etwas Hilfe, bzw Ideen.
Wir haben eine Bestandsimmobilie aus den 30igern gekauft und wollen die Küche in einen anderen Raum unterbringen. Das Haus ist unterkellert, sodass die Anschlüsse beliebig verlegt werden können.
In die Wand zwischen Esszimmer und Küche soll ein Durchbruch gemacht werden. Die genaue Größe ist auch noch variabel, mind 120cm.
Wir möchten auf jeden Fall eine Essecke in der Küche für 4 Personen, gern als Eckbank am ehsten in der linken/oberen Ecke.
Ich wünsche mir einen Side by Side Kühlschrank. Aber ich denke wir bekommen ihn kaum unter. Die Kochplatte soll in der Nähe der unteren Wand/Ecke sein, weil die Dunstabzughaube(Abluftöffnung dort vorhanden) dort sein soll. Die Fensterbrütung ist leider bei 86cm. Ich hatte überlegt ob es eine Lösung mit verschiedenen Arbeitshöhen gibt.
Was haltet Ihr von Gas in einer (halb)offenen Küche? Wünscht sich mein Mann.
Vielen Dank für Eure Hilfe
Checkliste zur Küchenplanung
Anzahl Personen im Haushalt: 4
Davon Kinder?: 2
Art des Gebäudes?: Bestandsbau, (kleinere) Umbauten möglich
Körpergrössen aller Hauptbenutzer (wegen Arbeitshöhe ) in cm: 179 und 172
Brüstungshöhe des Fensters (in cm): 86cm
Fensterhöhe (in cm): 130
Raumhöhe in cm: 270
Heizung: Fussbodenheizung
Sanitäranschlüsse: vollkommen variabel
Ausführung Kühlgerät:
Kühlgerät Größe:
Ausführung Tiefkühl (TK)-Gerät:
Dunstabzugshaube: Abluft
Backofen etc. hochgebaut?: Ja
Hochgebauter Geschirrspüler ?: Nein
Kochfeldart: Gas
Kochfeldbreite ca. (in cm)?:
Spülenform: Noch nicht festgelegt
Geplante Heißgeräte: Backofen
Küchenstil: Klassisch
Sitzmöglichkeit in der Küche / im Küchenbereich: Gesonderter Tisch
Sitzmöglichkeit: Für wieviel Personen?: für 4 Personen
Sitzmöglichkeit: Tisch - wenn gesonderter Tisch oder offene Küche: Wird nach Bedarf neu gekauft
Gewünschte o. vorhandene Tischgröße:
Wofür soll der Sitzplatz in der Küche genutzt werden? Wie häufig?: zum schnellen Frühstück, Essenszubereitung
Welche Arbeitshöhe ist angedacht (in cm)?: Da das Fenster 86cm Brüstunghöhe hat leide rnur 86cm, oder an den Seiten höhere Arbeitshöhe falls möglich
Was steht auf der Arbeitsplatte oder soll dort stehen?: Wasserkocher, Obstschale
Welche weiteren Küchenmaschinen müssen in der Küche untergebracht werden?: Handrührgerät, Mixer, Pürierstab
Was soll in der Küche außer den Standards untergebracht werden?:
Welchen Stauraum gibt es sonst noch?: Geschirr/Gläserschrank im Wohn-/Esszimmer, Keller
Was/wie wird gekocht? (Alltagsküche, Menüs, Snacks usw): Alltagsküche
Wie häufig wird gekocht?: (fast) täglich 1x warm
Wird alleine gekocht? Oder auch gemeinsam? Mit und für Gäste?: Mit den Kindern
Was stört an der bisherigen Küche und was soll die neue Küche unbedingt können? Warum?:
Welche Mülltrennung soll in der Küche vorgehalten werden?: Biomüll, Plastik, Alu, Metall total getrennt, Restmüll
Steht schon ein Küchenhersteller fest oder wird bevorzugt?: nein, evtl IKEA
Steht schon ein Gerätehersteller fest oder wird bevorzugt?: Altgeräte(Backofen , Kochfeld, Geschirrspüler ) vorhandem
Preisvorstellung (Budget):
Anhänge
Zuletzt bearbeitet:




