Riesenküche2017
Mitglied
- Beiträge
- 8
Hallo liebe Forumsmitglieder,
wie viele andere, bin auch ich schon seit längerem eine stille Mitleserin und habe mir schon sehr viele Tipps und Anregungen von euch holen können. Nun geht es auch bei unserer Planung an das "Eingemachte" und ich würde mich sehr über konstruktive Kritik und eure Vorschläge freuen.
Wir haben ein Haus gekauft und ich hatte bisher einmal die Möglichkeit Maße für die Küche zu nehmen. Mitte Juli bekommen wir das Haus. Eingebaut soll die Küche Ende August werden.
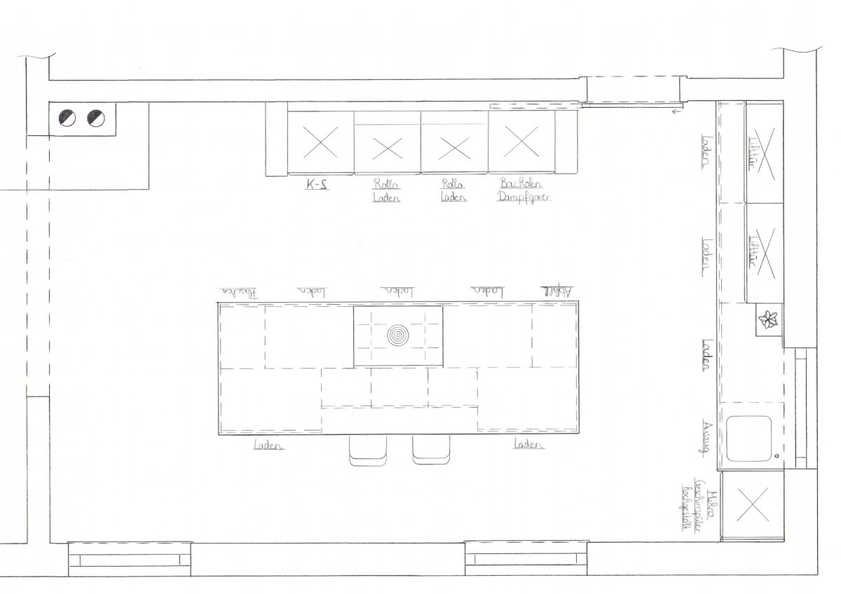
Ich habe versucht mit dem Alno -Planer zu arbeiten, war aber leider nur mäßig erfolgreich. Ich hoffe, es ist trotzdem ausreichend. Die Nische einzuzeichnen ist mir leider nicht gelungen.
Wissenswertes zum Grundriss: Wie im EG-Grundriss eingezeichnet, wird die bisherige Speisekammer sowie die Wand zwischen Küche und Esszimmer entfernt. Die Wand zwischen (bisherigem) Esszimmer und Wohnzimmer wurde schon zum Teil entfernt - übrig geblieben ist lediglich eine Nische von 133 cm. Ich nehme an, dass diese tragend ist. Zudem finde ich diese nicht unpraktisch, um zB ein optisch ansprechendes und auflockerndes Regal für Kochbücher unterzubringen. Was meint ihr?
- Küchentür: Sie wird in eine außenlaufende Schiebetür verändert. Diese soll hinter die Hochschränke laufen. Es soll aufgrund des dunklen Flurs eine Ganzglastür werden. Würdet ihr eine Klarglastür oder eine satinierte Glastür wählen?
- Wasseranschluss: Dieser soll an der Fensterzeile bleiben, da ansonsten sehr aufwändig (wenn überhaupt möglich). Allerdings ist laut Küchenplaner eine "kleinere" örtliche Verlegung an der Fensterzeile möglich.
Design/Farbe:
Fronten: weiß, matt lackiert, grifflos
Rückwand-Material (Fensterzeile): wasserabweisender Spezialanstrich?
Fußboden: Landhausdielen in Eiche Natur (matt lackiert)
Heizkörper: konventionelle Heizkörper (Tiefe: 10 cm, Breite: 60 cm), stehen 20 cm in den Raum hinein (es kann aber auch neuer Heizkörper angebracht werden)
Küchen-Hersteller: Der Küchenhersteller ist für uns kein vorrangiges Entscheidungskriterium. Wesentlich für uns ist, dass die Funktionalität gewährleistet ist, die Qualität in Bezug auf Langlebigkeit und Robustheit gegeben ist und zudem die Küche in unserem Preisrahmen bleibt, was sich angesichts der Größe als schwierig herausstellt. Ewe und Dan haben wir uns schon angesehen.
Geräte: Uns ist ein gutes Preis-Leistungs-Verhältnis sowie eine gute Energieeffizienz wichtig für Geräte, die ständig in Betrieb sind (Kühlschrank, Gefrierschrank und Geschirrspüler ).
Ausgesucht habe ich bisher:
- Backofen (60cm): Bosch HNG6764B6
- Combidampfgarer (45cm): Bosch CSG656RB6
- Kühlschrank (178cm mit TK-Fach): Liebherr IKBP 3524
- Geschirrspüler (86,5cm): Neff S726T80X1E
- Induktionsfeld mit Muldenlüftung (Umluft, flächenbündig):
Bora Basic BFIU
Miele KMDA 7774
Bosch PXX801D34E
Beim Kochfeld bin ich mir noch sehr unsicher. Klar ist lediglich, dass es eine Muldenlüftung sein soll.
Ich habe meinen Plan zwei Küchenplanern vorgeschlagen. Einer hat Einbaugeräte von KitchenAid vorgeschlagen, weil er die angeblich zu einem besonderen "Österreich-Markteinführungspreis" bekommt. Habt ihr vielleicht Erfahrungen mit diesen Produkten? Nach meiner Recherche im Internet auf diversen amerikanischen Foren habe ich Bedenken hinsichtlich der Qualität bzw. Haltbarkeit der Geräte. Zudem haben diese vergleichsweise nicht so viele Funktionen wie vergleichbare "europäische" Produkte.
Möbel:
- Rolloschrank/Schrank mit Einschubtüren: Wir wissen, dass dies sehr teuer ist, aber wir möchten in Zukunft unsere bisherigen Küchengeräte versteckt unterbringen können, um eine ruhigere und "aufgeräumtere" Optik zu erreichen (für Kaffeemaschine, Kapselspender, kaffee-Mahlmaschine, Blender (Höhe: 41 cm), Toaster). Die Kitchenaid Küchenmaschine würden wir gerne im Raum stehen lassen, weil wir sie optisch ansprechend finden - allerdings weiß ich noch nicht wo.
- Flaschenauszug: Ich hätte gerne in unmittelbarer Nähe zum Kochfeld einen Flaschenauszug (untere Lade Flaschen, Innenlade für viele Gewürze).
- MUPL : Das habe ich im Forum zum ersten Mal gesehen und bin begeistert; dies vor allem deshalb, weil ich es vermutlich nicht schaffe, eine (kleine) Spüle auf der Insel unterzubringen (Wasseranschluss). Welche Müll-"Arten" würdet ihr auf der Insel unterbringen? Und was unter der großen Spüle an der Fensterzeile?
- Arbeitsplatte : Granit Steel Grey oder Coffee Brown (poliert)
- Spüle: flächenbündig, muss aber nicht Blanco oder Francke sein. Ein Backblech sollte Platz haben.
Die Spüle könnte nur mit enormen Aufwand verlegt werden (wenn überhaupt möglich).
- Abtropffläche: Hier bin ich mir noch etwas unsicher, da mir das Küchenstudio von einem Abtropfbecken abgeraten hat. Ich kann es mir - vielleicht auch nur aus Gewohnheit - nicht vorstellen, keine Abtropffläche zu haben.
Stauraum:
Wir haben gleich neben dem Eingangsbereich (gegenüber der Kücheneingangstür) einen kleinen Raum, in dem eine Garderobe untergebracht werden wird. Dort wird Staubsauger, Besen, Leiter, Putzkübel, etc. untergebracht. Zudem gibt es einen sehr geräumigen Keller für Getränke, Marmelade, etc.
Küche: ev. VIELE Kochbücher (sonst im Wohnzimmer), Medikamente, Putzmittel, Geschirrtücher, Geschenksverpackungsmaterial (Papier, Tüten, Schleifen, etc.), Katzenfutter
Vielen lieben Dank schon einmal im Voraus für eure Ideen, Vorschläge und Kritik.
Checkliste zur Küchenplanung
Anzahl Personen im Haushalt: 2
Davon Kinder?:
Art des Gebäudes?: Bestandsbau, (kleinere) Umbauten möglich
Körpergrössen aller Hauptbenutzer (wegen Arbeitshöhe ) in cm: 166 und 185
Brüstungshöhe des Fensters (in cm): 87
Fensterhöhe (in cm): 136
Raumhöhe in cm: 262
Heizung: Heizkörper wie im Grundriss
Sanitäranschlüsse: variabel an aktueller Wand
Ausführung Kühlgerät: Integriert im Hochschrank (60cm)
Kühlgerät Größe: bis 178 cm Höhe
Ausführung Tiefkühl (TK)-Gerät: Im Kühlschrank als kleines Fach oben
Dunstabzugshaube: Umluft
Backofen etc. hochgebaut?: Ja
Hochgebauter Geschirrspüler ?: Ja
Kochfeldart: Induktion
Kochfeldbreite ca. (in cm)?: 80-90
Spülenform: 1 Becken ohne Abtropffläche
Geplante Heißgeräte: Backofen , Dampfbackofen (DGC) ohne Wasseranschluß
Küchenstil: Grifflos
Sitzmöglichkeit in der Küche / im Küchenbereich: Überstehende Arbeitsplatte
Sitzmöglichkeit: Für wieviel Personen?: für 3 Personen
Sitzmöglichkeit: Tisch - wenn gesonderter Tisch oder offene Küche: Vorhandener Tisch
Gewünschte o. vorhandene Tischgröße: 160 cm x 100 cm
Wofür soll der Sitzplatz in der Küche genutzt werden? Wie häufig?: Zum Frühstücken, für Gäste
Welche Arbeitshöhe ist angedacht (in cm)?: Fensterzeile 87 cm, Insel 91 cm
Was steht auf der Arbeitsplatte oder soll dort stehen?:
Welche weiteren Küchenmaschinen müssen in der Küche untergebracht werden?: Küchenmaschine, Toaster, Allesschneider (z. B. in Schublade), Mixer, Pürierstab, Sonstiges (evtl. im Beitragstext benennen)
Was soll in der Küche außer den Standards untergebracht werden?: ALLE Vorräte, Geschirr komplett (nichts in Ess-/Wohnzimmer), Sonstiges (evtl. im Beitragstext benennen)
Welchen Stauraum gibt es sonst noch?: Keller, Abseiten
Was/wie wird gekocht? (Alltagsküche, Menüs, Snacks usw): Alltagsküche, Menüs, Snacks
Wie häufig wird gekocht?: (fast) täglich 1x warm
Wird alleine gekocht? Oder auch gemeinsam? Mit und für Gäste?: meist alleine (166 cm Größe), selten zu zweit bzw. sehr gerne mit Gästen
Was stört an der bisherigen Küche und was soll die neue Küche unbedingt können? Warum?: - zu kleiner Kühlschrank
- keine Möglichkeit Küchengeräte versteckt aufzubewahren, sodass die Küche sehr "voll" und unruhig wirkt
- Geschirrspüler zu weit unten
- Gewürzlade hat keine ausreichende Höhe
- keine Möglichkeit Flaschen in der Nähe des Herdes aufzubewahren (viele Essig- und Ölsorten, Alkohol, Asiasaucen, etc.)
- zu wenige Unterteilungen in den 80er-Laden, sodass vieles durcheinander gewürfelt ist
Welche Mülltrennung soll in der Küche vorgehalten werden?: Altpapier, Biomüll, Plastik, Alu, Metall total getrennt, Restmüll
Steht schon ein Küchenhersteller fest oder wird bevorzugt?: nein
Steht schon ein Gerätehersteller fest oder wird bevorzugt?: ja
Preisvorstellung (Budget): bis 20.000,-
wie viele andere, bin auch ich schon seit längerem eine stille Mitleserin und habe mir schon sehr viele Tipps und Anregungen von euch holen können. Nun geht es auch bei unserer Planung an das "Eingemachte" und ich würde mich sehr über konstruktive Kritik und eure Vorschläge freuen.
Wir haben ein Haus gekauft und ich hatte bisher einmal die Möglichkeit Maße für die Küche zu nehmen. Mitte Juli bekommen wir das Haus. Eingebaut soll die Küche Ende August werden.
Ich habe versucht mit dem Alno -Planer zu arbeiten, war aber leider nur mäßig erfolgreich. Ich hoffe, es ist trotzdem ausreichend. Die Nische einzuzeichnen ist mir leider nicht gelungen.
Wissenswertes zum Grundriss: Wie im EG-Grundriss eingezeichnet, wird die bisherige Speisekammer sowie die Wand zwischen Küche und Esszimmer entfernt. Die Wand zwischen (bisherigem) Esszimmer und Wohnzimmer wurde schon zum Teil entfernt - übrig geblieben ist lediglich eine Nische von 133 cm. Ich nehme an, dass diese tragend ist. Zudem finde ich diese nicht unpraktisch, um zB ein optisch ansprechendes und auflockerndes Regal für Kochbücher unterzubringen. Was meint ihr?
- Küchentür: Sie wird in eine außenlaufende Schiebetür verändert. Diese soll hinter die Hochschränke laufen. Es soll aufgrund des dunklen Flurs eine Ganzglastür werden. Würdet ihr eine Klarglastür oder eine satinierte Glastür wählen?
- Wasseranschluss: Dieser soll an der Fensterzeile bleiben, da ansonsten sehr aufwändig (wenn überhaupt möglich). Allerdings ist laut Küchenplaner eine "kleinere" örtliche Verlegung an der Fensterzeile möglich.
Design/Farbe:
Fronten: weiß, matt lackiert, grifflos
Rückwand-Material (Fensterzeile): wasserabweisender Spezialanstrich?
Fußboden: Landhausdielen in Eiche Natur (matt lackiert)
Heizkörper: konventionelle Heizkörper (Tiefe: 10 cm, Breite: 60 cm), stehen 20 cm in den Raum hinein (es kann aber auch neuer Heizkörper angebracht werden)
Küchen-Hersteller: Der Küchenhersteller ist für uns kein vorrangiges Entscheidungskriterium. Wesentlich für uns ist, dass die Funktionalität gewährleistet ist, die Qualität in Bezug auf Langlebigkeit und Robustheit gegeben ist und zudem die Küche in unserem Preisrahmen bleibt, was sich angesichts der Größe als schwierig herausstellt. Ewe und Dan haben wir uns schon angesehen.
Geräte: Uns ist ein gutes Preis-Leistungs-Verhältnis sowie eine gute Energieeffizienz wichtig für Geräte, die ständig in Betrieb sind (Kühlschrank, Gefrierschrank und Geschirrspüler ).
Ausgesucht habe ich bisher:
- Backofen (60cm): Bosch HNG6764B6
- Combidampfgarer (45cm): Bosch CSG656RB6
- Kühlschrank (178cm mit TK-Fach): Liebherr IKBP 3524
- Geschirrspüler (86,5cm): Neff S726T80X1E
- Induktionsfeld mit Muldenlüftung (Umluft, flächenbündig):
Bora Basic BFIU
Miele KMDA 7774
Bosch PXX801D34E
Beim Kochfeld bin ich mir noch sehr unsicher. Klar ist lediglich, dass es eine Muldenlüftung sein soll.
Ich habe meinen Plan zwei Küchenplanern vorgeschlagen. Einer hat Einbaugeräte von KitchenAid vorgeschlagen, weil er die angeblich zu einem besonderen "Österreich-Markteinführungspreis" bekommt. Habt ihr vielleicht Erfahrungen mit diesen Produkten? Nach meiner Recherche im Internet auf diversen amerikanischen Foren habe ich Bedenken hinsichtlich der Qualität bzw. Haltbarkeit der Geräte. Zudem haben diese vergleichsweise nicht so viele Funktionen wie vergleichbare "europäische" Produkte.
Möbel:
- Rolloschrank/Schrank mit Einschubtüren: Wir wissen, dass dies sehr teuer ist, aber wir möchten in Zukunft unsere bisherigen Küchengeräte versteckt unterbringen können, um eine ruhigere und "aufgeräumtere" Optik zu erreichen (für Kaffeemaschine, Kapselspender, kaffee-Mahlmaschine, Blender (Höhe: 41 cm), Toaster). Die Kitchenaid Küchenmaschine würden wir gerne im Raum stehen lassen, weil wir sie optisch ansprechend finden - allerdings weiß ich noch nicht wo.
- Flaschenauszug: Ich hätte gerne in unmittelbarer Nähe zum Kochfeld einen Flaschenauszug (untere Lade Flaschen, Innenlade für viele Gewürze).
- MUPL : Das habe ich im Forum zum ersten Mal gesehen und bin begeistert; dies vor allem deshalb, weil ich es vermutlich nicht schaffe, eine (kleine) Spüle auf der Insel unterzubringen (Wasseranschluss). Welche Müll-"Arten" würdet ihr auf der Insel unterbringen? Und was unter der großen Spüle an der Fensterzeile?
- Arbeitsplatte : Granit Steel Grey oder Coffee Brown (poliert)
- Spüle: flächenbündig, muss aber nicht Blanco oder Francke sein. Ein Backblech sollte Platz haben.
Die Spüle könnte nur mit enormen Aufwand verlegt werden (wenn überhaupt möglich).
- Abtropffläche: Hier bin ich mir noch etwas unsicher, da mir das Küchenstudio von einem Abtropfbecken abgeraten hat. Ich kann es mir - vielleicht auch nur aus Gewohnheit - nicht vorstellen, keine Abtropffläche zu haben.
Stauraum:
Wir haben gleich neben dem Eingangsbereich (gegenüber der Kücheneingangstür) einen kleinen Raum, in dem eine Garderobe untergebracht werden wird. Dort wird Staubsauger, Besen, Leiter, Putzkübel, etc. untergebracht. Zudem gibt es einen sehr geräumigen Keller für Getränke, Marmelade, etc.
Küche: ev. VIELE Kochbücher (sonst im Wohnzimmer), Medikamente, Putzmittel, Geschirrtücher, Geschenksverpackungsmaterial (Papier, Tüten, Schleifen, etc.), Katzenfutter
Vielen lieben Dank schon einmal im Voraus für eure Ideen, Vorschläge und Kritik.
Checkliste zur Küchenplanung
Anzahl Personen im Haushalt: 2
Davon Kinder?:
Art des Gebäudes?: Bestandsbau, (kleinere) Umbauten möglich
Körpergrössen aller Hauptbenutzer (wegen Arbeitshöhe ) in cm: 166 und 185
Brüstungshöhe des Fensters (in cm): 87
Fensterhöhe (in cm): 136
Raumhöhe in cm: 262
Heizung: Heizkörper wie im Grundriss
Sanitäranschlüsse: variabel an aktueller Wand
Ausführung Kühlgerät: Integriert im Hochschrank (60cm)
Kühlgerät Größe: bis 178 cm Höhe
Ausführung Tiefkühl (TK)-Gerät: Im Kühlschrank als kleines Fach oben
Dunstabzugshaube: Umluft
Backofen etc. hochgebaut?: Ja
Hochgebauter Geschirrspüler ?: Ja
Kochfeldart: Induktion
Kochfeldbreite ca. (in cm)?: 80-90
Spülenform: 1 Becken ohne Abtropffläche
Geplante Heißgeräte: Backofen , Dampfbackofen (DGC) ohne Wasseranschluß
Küchenstil: Grifflos
Sitzmöglichkeit in der Küche / im Küchenbereich: Überstehende Arbeitsplatte
Sitzmöglichkeit: Für wieviel Personen?: für 3 Personen
Sitzmöglichkeit: Tisch - wenn gesonderter Tisch oder offene Küche: Vorhandener Tisch
Gewünschte o. vorhandene Tischgröße: 160 cm x 100 cm
Wofür soll der Sitzplatz in der Küche genutzt werden? Wie häufig?: Zum Frühstücken, für Gäste
Welche Arbeitshöhe ist angedacht (in cm)?: Fensterzeile 87 cm, Insel 91 cm
Was steht auf der Arbeitsplatte oder soll dort stehen?:
Welche weiteren Küchenmaschinen müssen in der Küche untergebracht werden?: Küchenmaschine, Toaster, Allesschneider (z. B. in Schublade), Mixer, Pürierstab, Sonstiges (evtl. im Beitragstext benennen)
Was soll in der Küche außer den Standards untergebracht werden?: ALLE Vorräte, Geschirr komplett (nichts in Ess-/Wohnzimmer), Sonstiges (evtl. im Beitragstext benennen)
Welchen Stauraum gibt es sonst noch?: Keller, Abseiten
Was/wie wird gekocht? (Alltagsküche, Menüs, Snacks usw): Alltagsküche, Menüs, Snacks
Wie häufig wird gekocht?: (fast) täglich 1x warm
Wird alleine gekocht? Oder auch gemeinsam? Mit und für Gäste?: meist alleine (166 cm Größe), selten zu zweit bzw. sehr gerne mit Gästen
Was stört an der bisherigen Küche und was soll die neue Küche unbedingt können? Warum?: - zu kleiner Kühlschrank
- keine Möglichkeit Küchengeräte versteckt aufzubewahren, sodass die Küche sehr "voll" und unruhig wirkt
- Geschirrspüler zu weit unten
- Gewürzlade hat keine ausreichende Höhe
- keine Möglichkeit Flaschen in der Nähe des Herdes aufzubewahren (viele Essig- und Ölsorten, Alkohol, Asiasaucen, etc.)
- zu wenige Unterteilungen in den 80er-Laden, sodass vieles durcheinander gewürfelt ist
Welche Mülltrennung soll in der Küche vorgehalten werden?: Altpapier, Biomüll, Plastik, Alu, Metall total getrennt, Restmüll
Steht schon ein Küchenhersteller fest oder wird bevorzugt?: nein
Steht schon ein Gerätehersteller fest oder wird bevorzugt?: ja
Preisvorstellung (Budget): bis 20.000,-
Anhänge
-
Ansicht von Fensterfront.jpg76,5 KB · Aufrufe: 327 -
Vogelansicht.jpg84,7 KB · Aufrufe: 301 -
Grundriss EG.jpg96,4 KB · Aufrufe: 313 -
Grundriss_Küche.jpg72,3 KB · Aufrufe: 306 -
Ansicht von Esszimmer.jpg70,1 KB · Aufrufe: 327 -
Küche 29.05.2017.KPL3,6 KB · Aufrufe: 159
-
Küche 29.05.2017.POS7 KB · Aufrufe: 166
-
Bemaßter Grundriss.jpg150,2 KB · Aufrufe: 528
