Unbeendet Wenig Raum- viele Wünsche

mova

Mitglied
Beiträge
5
Hallo liebe Küchenspezialisten,

nun sind wir schon zweimal umgezogen und haben unsere Ikea Küche dreimal selbst aufgebaut und angepasst. Jetzt reicht es, sie muß einer neuen Küche weichen. Die soll jetzt endlich genau für diesen Raum passen und viel Stauraum und Arbeitsfläche besitzen.
Einen neuen Boden benötigen wir auch. Es liegen schon 2 Lagen Fliesen am Boden und als Fliesenspiegel, die müssen raus (wir sind Eigentümer der Wohnung).

Wir benötigen einen Essplatz für 1-2 Personen für ein kleines Frühstück. Normalerweise essen wir im angrenzenden Wohn-Eßzimmer.
Die Edelstahl-Kühl-Gefrierkombi von Bosch würden wir gern in die neue Küche übernehmen, sie ist noch nicht alt (allerdings 2 m hoch!!!).
Übrigens: unser "Kind" ist schon 16 jahre alt.

Ich habe schon viele Ideen und Informationen in diesem tollen Forum bekommen. Bevor wir jetzt konkret in einem Küchenstudio unsere Küche planen lassen, würde ich gern Eure Ideen zu diesem etwas ungünstigen Grundriss hören.

Auf dem Alnoplan ist die bestehende Küche abgebildet, so soll sie aber nicht wieder aussehen!

Checkliste zur Küchenplanung

Anzahl Personen im Haushalt: 3
Davon Kinder?: 1
Art des Gebäudes?:
Körpergrössen aller Hauptbenutzer (wegen Arbeitshöhe ) in cm:
175, 190, 190
Brüstungshöhe des Fensters (in cm): 94 cm
Fensterhöhe (in cm): 122 cm
Raumhöhe in cm: 250
Heizung: Heizkörper wie im Grundriss
Sanitäranschlüsse: fix
Ausführung Kühlgerät: Stand-Alone bis 60 cm Breite
Kühlgerät Größe: bis 178 cm Höhe
Ausführung Tiefkühl (TK)-Gerät: Eigenständiges Gerät bis 178 cm Höhe
Dunstabzugshaube: Umluft
Backofen etc. hochgebaut?:
Hochgebauter Geschirrspüler ?:
Nein
Kochfeldart: Induktion
Kochfeldbreite ca. (in cm)?: 80 cm
Spülenform: 1 Becken mit Abtropffläche
Geplante Heißgeräte: Standmikrowelle, Backofen
Küchenstil: Modern
Sitzmöglichkeit in der Küche / im Küchenbereich: Überstehende Arbeitsplatte
Sitzmöglichkeit: Für wieviel Personen?: für 2 Personen
Sitzmöglichkeit: Tisch - wenn gesonderter Tisch oder offene Küche: Keiner
Gewünschte o. vorhandene Tischgröße:
Wofür soll der Sitzplatz in der Küche genutzt werden? Wie häufig?:
Frühstück, gelegentlich
Welche Arbeitshöhe ist angedacht (in cm)?: 95 cm
Was steht auf der Arbeitsplatte oder soll dort stehen?: Kaffeemaschine, Obstschale
Welche weiteren Küchenmaschinen müssen in der Küche untergebracht werden?: Küchenmaschine, Toaster, Handrührgerät, Pürierstab
Was soll in der Küche außer den Standards untergebracht werden?: ALLE Vorräte
Welchen Stauraum gibt es sonst noch?: Geschirr/Gläserschrank im Wohn-/Esszimmer, Keller
Was/wie wird gekocht? (Alltagsküche, Menüs, Snacks usw): Alltagsküche, Menüs
Wie häufig wird gekocht?(fast) täglich 1x warm[/COLOR]
Wird alleine gekocht? Oder auch gemeinsam? Mit und für Gäste?: 2 Personen
Was stört an der bisherigen Küche und was soll die neue Küche unbedingt können? Warum?: bisher wenig Stauraum, Arbeitsfläche
bisher wenig Platz zwischen Spüle und Herd

Welche Mülltrennung soll in der Küche vorgehalten werden?: Altglas, Altpapier, Biomüll, Gelber Sack Müll, Restmüll
Steht schon ein Küchenhersteller fest oder wird bevorzugt?:
Steht schon ein Gerätehersteller fest oder wird bevorzugt?: BSH -Gruppe
Preisvorstellung (Budget):

------------
Im Threadverlauf hinzugegekommen:
JPG Wohnungsgrundriss
grundriss-wohnung-jpg.176263

JPG Küchengrundriss

grundriss-kueche-jpg.176261
 

Anhänge

  • Grundriss Wohnung.pdf
    45,7 KB · Aufrufe: 321
  • Grundriss Küche, kommentiert.pdf
    119,2 KB · Aufrufe: 351
  • Alno-PLAN2.KPL
    3,9 KB · Aufrufe: 281
  • Alno-PLAN2.POS
    5,1 KB · Aufrufe: 268
Zuletzt bearbeitet von einem Moderator:
Hallo,
in der Zwischenzeit habe ich mich an einer eigenen Planung versucht.
Ich hätte halt gern ein großes Kochfeld (bei Induktion geht ja Raum für die Steuerung verloren, so dass ein 60er Feld meiner Meinung nach ganz schön klein ist). Aber es sieht etwas eng aus neben dem Fenster. Außer dem bin ich sehr skeptisch, ob man das Stromkabel von gegenüber dorthin verlegen kann (unter dem Fussboden?)
Die Tür neben dem Kochfeld ist die außenliegende Schiebetür, die stört also nicht.
Die Farben sehen fürchterlich aus, aber darum geht es zum jetzigen Zeitpunkt ja noch nicht.
Insgesamt wirkt es halt so noch nicht ausgewogen.
Als Hersteller ziehen wir z.B. Häcker oder Schüller in Betracht, vor allem wegen der hohen Korpusse (Korpii???)
Es wäre super, wenn Ihr mir helfen könntet.
 

Anhänge

  • Alno-PLAN3.KPL
    3,9 KB · Aufrufe: 262
  • Alno-PLAN3.POS
    8,8 KB · Aufrufe: 294
Hallo Mova und herzlich willkommen im Forum.

Sehr schön, dass du schon mit dem Alno Planer geübt hast, aber ausser ein paar Dateien sehen wir nichts.

Es steht sicherlich irgendwo in der Anleitung zu dem Forum, was gebraucht wird.

Es ist sehr mühsam, wenn man für jeden thread sich Alno Dateien erst runterladen muss, um zu sehen, was jemand geplant hat. Ausserdem hat nicht jeder den ALNO auf seinem laptop, ergo können diese keine Kommentare abgeben. Es ist sehr müssig, dass ich diesen Text täglich schreiben muss. Du siehst in anderen threads was wir zu einer Planung "beisteuern" zumal du ja schon eine Weile mitliest. Da wären

*.kpl + *.pos
ein paar Bilder der Planung
ein Bild des Alno Grundrisses (mit snipping tool von windows erstellt)
und etwas erklärenden Text zur Planung.

Ausserdem richte deine Alnoplanung gemäss deinem Hausgrundriss aus.

Es ist prima, dass du die Anschlüsse genau vermaßt hast, denn das machen wenige auf Anhieb. :2daumenhoch:
 
Zuletzt bearbeitet:
Hallo Evelin,
vielen Dank für Deine Hinweise. Ich habe beim Erstellen der Planungsdateien doch etwas die Übersicht verloren, ist Neuland für mich.

So, jetzt hoffe ich Ihr könnt mit den neuen Dateien etwas anfangen.:-)

Zur Erklärung unserer ersten Planungsgedanken:
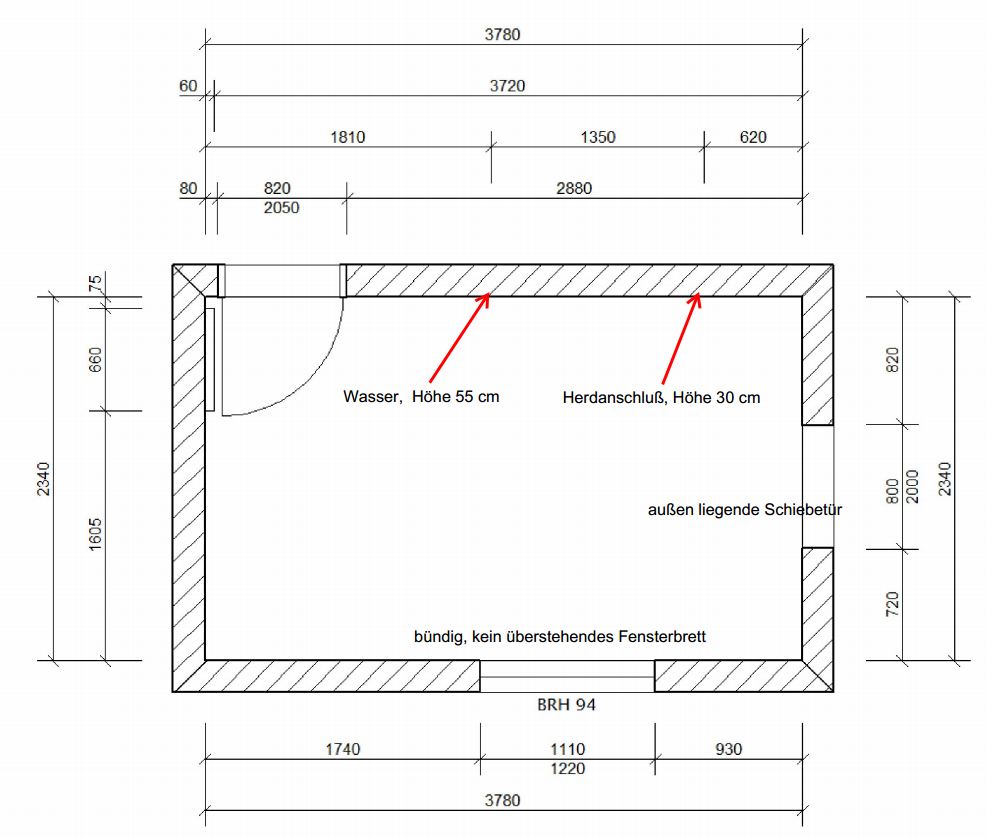
Plan unten (Außenwand) von links nach rechts (s.Bild 2):
-Hochschrank mit Auszügen für Vorräte
-vorhandener Stand alone Kühlschrank (2m hoch, unten 3 Fächer ***)
-40er Unterschrank mit tiefen Auszügen für Küchenmaschine u.ä.
-Tischplatte mit 1-2 Barhockern (etwas knapp)
-80er Unterschrank mit Induktionskochfeld und Umlufthaube
-15er Auszug für Essig/Öl

Plan oben von links nach rechts (s. Bild 1):
-40er Unterschrank mit Auszügen
-50er Spüle mit Edelstahlbecken
-45er Spülmaschine
-80er Unterschrank mit Auszügen
-Hochschrank mit Backofen und Mikrowelle hinter Klappe
-3 60er Wandschränke

Am Freitag haben wir einen Termin in einem großen Möbelhaus, dient aber mehr der Orientierung.
Ich bin schon ganz gespannt auf Eure Ideen.:2daumenhoch:

Liebe Grüße
mova
 

Anhänge

  • alte Küche.JPG
    alte Küche.JPG
    79,5 KB · Aufrufe: 253
  • Grundriss Küche.JPG
    Grundriss Küche.JPG
    84,6 KB · Aufrufe: 544
  • unsere Planung.JPG
    unsere Planung.JPG
    68,7 KB · Aufrufe: 230
  • Grundriss Wohnung.JPG
    Grundriss Wohnung.JPG
    29,5 KB · Aufrufe: 419
  • Bild 1.JPG
    Bild 1.JPG
    89,1 KB · Aufrufe: 249
  • Bild 2.JPG
    Bild 2.JPG
    83 KB · Aufrufe: 272
Lob :2daumenhoch:

Ich würde die GSP links der Spüle und rechts der Spüle einen 40er MUPL setzen. Denn so wie du es geplant hast, wird es mit den Wasseranschlüssen sehr knapp. Sind die 1810mm mittig oder die ganz rechte Aussenkante des Wasseranschlusses?

Und weil ein solo Kühli neben einem solo HS nicht so prickelnd aussieht, würde ich den Kühli planoben rechts setzen und die beiden HS zusammen planunten links.
 
Zuletzt bearbeitet:
Hallo Evelin,
ja Du hast recht, optisch passt der Kühlschrank so nicht rein. Leider haben wir ihn halt schon und er ist ziemlich neu. Ihn planoben rechts zu setzen ist eine ganz neue Option, die wir noch nicht auf dem Schirm hatten. Genug Arbeitsfläche um die Einkäufe zwischenzuparken wäre ja da.

Der Tausch GSP mit 40er Schrank als MUPL ist eine super Idee. Da habe ich wirklich nicht aufgepasst. Ich wollte den Spülenschrank so klein wie möglich halten, wenn ich schon den Müll separat plane. So ganz kann ich mir nämlich nicht vorstellen, etwas anderes als Müll unter der Spüle zu lagern.

Die Hochschränke ganz unten links zu bündeln sieht auf jeden Fall besser aus. Der Backofen (mit ein paar Zusatzwünschen wie Pyrolyse und so weiter) benötigt aber wahrscheinlich einen extra Anschluß und gibt sich nicht mit einer normalen Steckdose zufrieden. Mein Wunsch ist es ja, das Kochfeld planunten rechts zu installieren, wofür ja auch schon der Stromanschluß von planoben rechts verlegt werden müsste. Und jetzt auch noch einen neuen Anschluß für den Backofen , das findet mein Mann nicht so toll. Aber damit leben und darin arbeiten wir ja viele Jahre.

Vielen Dank für Deine Ideen!
mova
 

Anhänge

  • Bild6.JPG
    Bild6.JPG
    64,6 KB · Aufrufe: 258
  • Bild7.JPG
    Bild7.JPG
    46,1 KB · Aufrufe: 263
genau so isses, du musst mit dem Endresultat viele Jahre leben. Von daher wäre es kurzsichtig, eine Option zu verwerfen, nur weil da kein Strom ist. Strom zu verlegen ist das Billigste an der ganzen Küche.

Die Spülenablage machst du über dem GSP, damit rechts alles frei bleibt.
 
hier noch ein anderer Vorschlag. Ich habe meinen Plan nach dem Hausgrundriss ausgerichtet.

Die planlinke Zeile unten beginnend

Wange
45er GSP
50er US 3-3 Spüle
40er US 3-3 MUPL
45er US 1-1-2-2
100er US 1-1-2-2 mit Kochfeld linksbündig eingebaut
Blende

Abstand Spüle zu Kochfeld ca 90cm

Die Fensterzeile planunten beginnend

Blende
45er HS Vorräte
60er US BO/Micro
Wange
125cm überstehende AP
Wange
80er US
Wange

Kühli

Die grüne fläche im Bild ist die geöffnete GSP Tür.

Mova1.JPG


Mova2.JPG Mova3.JPG
 

Anhänge

  • Mova_Evelin_PLAN1.KPL
    3,9 KB · Aufrufe: 251
  • Mova_Evelin_PLAN1.POS
    9,9 KB · Aufrufe: 247
Deine Idee bringt ja schön viel Stauraum und auch Platz im Sitzbereich, das ist gut.
Ich muß mir das noch mal in Ruhe ansehen, komme nur leider heute nicht dazu.

Vielen Dank für die Planungsidee
mova
 
Neff Hausgeräte Ballerina Küchen Blum Bewegungstechnologie Weibel - Intelligente Küchenlüftung

Neff Spezial

Blum Zonenplaner

Weibel Abluft-Tuning

Weibel Abluft-Tuning
Zurück
Oben