Planung für Neubau-Küche

MacLitze

Mitglied
Beiträge
10
Hallo liebe Forumsmitglieder!

Ich habe mir schon einige Beiträge hier durchgelesen und habe dadurch schon viel gelernt!

Nun möchte ich mich und meine Planung vorstellen.

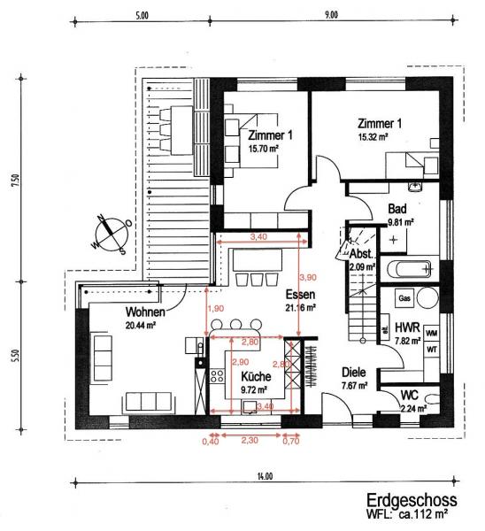
Ich und meine Freundin sind in der Planung für ein EFH-Neubau. Der Grundriss steht im großen und ganzen und deshalb wollten wir schon mal gucken ob da auch eine Küche vernüftig rein passt ;-)
Bis jetzt fanden wir den Plan von unserem Architekten ganz gut, aber als ich es einmal in 3D gesehen hatte fand ich die Ecke Plan oben links nicht so praktisch.
Da der HWR nicht sehr groß und da auch die ganze Technik rein muss bleib nicht viel Platz für Vorratshaltung. D.h. in der Küche soll auch einiges an Getränke gelagert werden. In der Abseite soll dann das Putzzeug (Staubsauger, Mop, Wäscheständer etc.) rein.

Da ich eure Entwürfe immer sehr gelungen und auch interessant:rofl: fand, dachte ich mir, ich frag mal in die Runde was ihr so für Vorschläge habt.

Schon mal vielen Dank für eure Ideen und Mühen!!!

Schönen Gruß
Kay


Checkliste zur Küchenplanung von MacLitze

Anzahl Personen im Haushalt : 2
Davon Kinder? : keine
Körpergrössen aller Hauptbenutzer (wegen Arbeitshöhe ) in cm : 168 + 178
Art des Gebäudes? : Neu-/Umbau, Planänderungen möglich
Brüstungshöhe des Fensters (in cm) : geplant in Höhe der Arbeitsplatte
Fensterhöhe (in cm) : noch offen
Raumhöhe in cm: : noch offen
Heizung : Fussbodenheizung
Sanitäranschlüsse : vollkommen variabel
Ausführung Kühlgerät? : Integriert im Hochschrank (60cm)
Kühlgerät Größe : bis 175 cm Höhe
Ausführung Tiefkühl (TK)-Gerät : Im Kühlschrank ab 3 Schubladen unten
Dunstabzugshaube? : Umluft
Hochgebauter Backofen ? : Ja
Hochgebauter Geschirrspüler ? : wenn möglich
Kochfeldart? : Induktion
Kochfeldbreite ca. (in cm)? : 60 evtl. 80
Spülenform: : Noch nicht festgelegt
Weitere geplante Heißgeräte : Standmikrowelle, Dampfgarer ohne Wasseranschluß
Küchenstil? : modern
Sitzmöglichkeit in der Küche / im Küchenbereich als : Überstehende Arbeitsplatte
Sitzmöglichkeit: Für wieviel Personen? : für 2 Personen
Sitzmöglichkeit: Tisch - wenn gesonderter Tisch oder offene Küche : Wird nach Bedarf neu gekauft
Gewünschte o. vorhandene Tischgröße : für 6 Personen
Wofür soll der Sitzplatz in der Küche genutzt werden? Wie häufig? : für Snacks, Vorbereitungen im Sitzen, für Besucher während der Zubereitung
Welche Arbeitshöhe ist angedacht (in cm)? : 95
Was steht auf der Arbeitsplatte oder soll dort stehen? : Wasserkocher, Messerblock, Toaster
Welche weiteren Küchenmaschinen müssen in der Küche untergebracht werden? : Küchenmaschine, Handrührgerät, Mixer, Pürierstab
Was soll in der Küche außer den Standards untergebracht werden? : ALLE Vorräte, Geschirr komplett (nichts in Ess-/Wohnzimmer)
Welchen Stauraum gibt es sonst noch? : Hauswirtschaftsraum, Abseiten
Was/wie wird gekocht? (Alltagsküche, Menüs, Snacks usw) : Alltagsküche, Vegetarisch
Wie häufig wird gekocht? : (fast) täglich 1x warm
Wird alleine gekocht? Oder auch gemeinsam? Mit und für Gäste? : allein oder zu zweit
Was stört an der bisherigen Küche und was soll die neue Küche unbedingt können? Warum? : Laute Dunstesse
Steht schon ein Küchenhersteller fest oder wird bevorzugt? : bevorzugt Fakta (Preisklasse)
Steht schon ein Gerätehersteller fest oder wird bevorzugt? : nein
Preisvorstellung (Budget) : bis 10.000,-
 

Anhänge

  • Grundriss V1.0.jpg
    Grundriss V1.0.jpg
    50,4 KB · Aufrufe: 256
  • PLAN1.KPL
    4,1 KB · Aufrufe: 217
  • PLAN1.POS
    5,7 KB · Aufrufe: 220
AW: Planung für Neubau-Küche

Endlich mal ein Geschossgrundriss, der Sinn macht. Lediglich die WC-Tür würde ich aussen DIN rechts anschlagen. Dass schafft Bewegungsraum im "Lesezimmer" ;-).
 
Das finden wir auch. Ist ja noch der Grob-Plan. WC-Tür kann geändert werden. Wollte den HWR nur gern größer haben. Währe aber nur durch verkleinern oder weglassen des WC's möglich.

Kleine Korrektur zum ersten Beitrag: ich meinte blöde Ecke Plan unten rechts!

Schönen Abend
 
AW: Planung für Neubau-Küche

Gäste-WC kann gerne klein sein. Unseres hat 78cm x 174cm, funktioniert bestens, ist noch niemand stecken geblieben.
 
Das werde ich mit dem Architekten noch bereden.
Aber jetzt geht's ja um die Küche!
 
AW: Planung für Neubau-Küche

Hi Kay,

ein schönes großes Haus :kiss: plant ihr da.

Könntest Du bitte ein paar Bilder + Grundriss (jpg) der Planung einstellen, denn nicht jeder hat den Alno Planer installiert. Bei mir ist er installiert aber ich habe eine andere Version und ein paar Dinge gibt es bei mir nicht.

Sorry Offtopic, @Martin: wenn wir bei kleinen WCs sind, geht bei Euch die Tür nach innen oder außen auf? Wir planen ein 100 x 155 mit Tür nach außen, überlege aber die ganze Zeit, ob man das denn doch nicht nach innen schaffen könnte. Waschbecken ist 40x32 und das Klo ist auf 50 verkürzt. Na ich stelle die Frage nochmal im Badforum.

Schöne Grüße
Muckelina
 
Moin Muckelina!

Ja, Haus wird (denke ich) schön und groß. Aber ohne Keller und oben ist dann erstmal Ausbaureserve. Ich wollte gerne wohnen auf einer Ebene.

Werd heute Abend noch ein paar Ansichten meiner Alno -Planung einstellen!

Gruß
Kay
 
AW: Planung für Neubau-Küche

Die Tür geht natürlich nach außen auf. Anders reicht der Platz nicht. Auch bei 100 x 155 würde ich die Tür nach außen öffnen. Die schmalste DIN-Tür steht 90° geöffnet 64,5cm in den Raum.

Lieber ein etwas größeres Waschbecken. Bei Becken in Spucknapfgröße kommt wenig Freude auf.
 
AW: Planung für Neubau-Küche

Bei deiner Planung ist mir aufgefallen, dass du sehr viele schmale Schränke max. 60 cm breit verwandt hast.

Ich habe einmal geschoben.

planrechts bei Einkofferung begonnen.

57 cm tiefe Einkofferung 10 cm breit, so kannst du auf eine Blende verzichten, da die Türen zu öffnen sind
Kühli
BO mit Klappfach für Mikrowelle - ist erheblich günstiger als eine eingebaute
Dampfgarer
40er Auszug 3-3 wegen Optik, mit Innenschublade
tote Ecke
darüber Nischenschrank und Oberschrank - nur ein Vorschlag kann auch anders gestaltet werden, z.B. mit Ullaschrank oder Regal

planunten:
SpüMa
60er Spüle 3-3
60er Auszug 3-3 für Müll unter der Arbeitsplatte
90er Auszug 3-3 mit Innenschublade, wieder wegen Optik, praktischer wäre 1-1-2-2

Insel:
5 cm Wange
2 x 90 Auszug 1-1-2-2 - 80er Kochfeld mittig gesetzt

gegengestellt:
80er Auszug 3-3 oder Drehtüren
105cm überstehende Arbeitsplatte für Sitzplätze

möglich wäre aber auch:
Kochfeldseite in Übertiefe mit 75 cm
und dann 30 oder 40 cm tiefer Schrank und überstehende Arbeitsplatte
 

Anhänge

  • MacLitze_Mela.KPL
    4,1 KB · Aufrufe: 194
  • MacLitze_Mela.POS
    9,4 KB · Aufrufe: 201
  • MacLitze_Mela_Draufsicht.jpg
    MacLitze_Mela_Draufsicht.jpg
    41,6 KB · Aufrufe: 190
  • MacLitze_Mela_Grundriss.JPG
    MacLitze_Mela_Grundriss.JPG
    39,9 KB · Aufrufe: 208
  • MacLitze_Mela_HS.jpg
    MacLitze_Mela_HS.jpg
    35,9 KB · Aufrufe: 207
  • MacLitze_Mela_Insel.jpg
    MacLitze_Mela_Insel.jpg
    37,7 KB · Aufrufe: 200
  • MacLitze_Mela_Spüle.jpg
    MacLitze_Mela_Spüle.jpg
    39 KB · Aufrufe: 198
AW: Planung für Neubau-Küche

Hi Mela

Danke für deine Mühe. Dies ist auch interassanter Lösungsansatz.

Das mit der Insel finde ich schon recht gut. Nur zwischen Insel und BO sind dann nur 90cm Durchgang. Das kommt mir recht knapp vor oder ist das ausreichend. Zwischen Insel und Spüle ist dann ca. 100cm Platz. Die Insel könnte man ja vielleicht noch 10-20cm hoch schieben.

Der Seitenschrankbereich sieht noch nicht so Optimal aus. Was aber auch daran liegt das ich nicht die richtigen Schränke im Planer finde. Meine Vorstellung wäre, Plan rechts oben beginnend:
1. Schrank - Kühl-Gefrierkombi
2. Schrank - BO und Klappfach für Micro
3. Schrank - (hochgebauter) GSP und Dampfgarer (evt. erstmal nur ein Klappfach)

Dann gefällt mir die Lösung mit dem 40 Auszug und dem Nischen- und Oberschrank .
Interessant ist auch der Ullaschrank . Weiß nur nicht wie praktikabel es ist, wenn der Schrank über die APL geöffnet werden muß und da nix strehen kann.

Muss darüber nochmal etwas nachdenken.

Schönen Abend noch
Kay
 
AW: Planung für Neubau-Küche

Kay,
90 cm sind ausreichend, wenn auch nicht üppig. 100 cm wären besser. Es könnte ja ein Unterschrank der Insel nur 80 cm haben.

Was willst ud denn ich die Ecke des Ullaschrankes stellen? In deinem Eröffnungsthread steht:
Messerblock, Wasserkocher und Toaster. Auf den Wasserkocher kannst du bei Induktion verzichten, geht nämlich auf dem Herd genauso schnell. Der Toaster wandert auf die Insel, da ihr doch dort bestimmt frühstückt und der Messerblock gehört links neben die Spüle auf die Vorbereitungsfläche. Du hast dort doch teilweise übertiefe Arbeitsfläche, da die Fensterbank mit einbezogen wird.

Dampfgarer über hochgesetzter SpüMa musst du ausprobieren, da im Alno diese eine Höhe von 149,5 cm hat. Aber das weiß ein KFB ;D hoffentlich besser als ich. Auf jeden Fall solltest du darauf achten, dass kein Elektrogerät höher als Schulterhöhe eingebaut wird.
 
Guten Morgen!

OK, dann behalten wir die 90cm Durchgang erstmal bei.

Was soll ich sagen, da hast du (Mela) wohl recht: was sollte vor dem Ullaschrank stehen. Aber ich denke da findet meine Freundin schon etwas und wenn's nur "Müll" ist :-)

Leichte Bedenken gibt es auch wegen dem Kochfeld auf der Insel. Wie sieht das spritztechnisch aus? Weiß auch noch nicht ob dann eine Dunstesse nicht immer im Blickfeld hängt. Gibt es denn hier Erfahrungen mit Arbeitsplatten -DAH (die in die APL absaugen)? Sind schon mal nicht günstig was ich gesehen habe.

So weit erstmal meine Gedankengänge.

Kay
 
AW: Planung für Neubau-Küche

Sagen wir mal so, die die einen Arbeitsplattenabzug in ihrer Küche haben und nutzen (Bora ) sind sehr zufrieden.
Andererseits wird hier davon abgeraten weil, das Prinzip gegen die Physik arbeitet.
Bei hohen Töpfen, musst du auch mit schief aufgelegtem Deckel arbeiten, damit der Kochdunst nach unten gezogen wird.
Preislich liegen die in derselben Kategorie wie die guten Dunstabzugshauben von O+F, Gutmann , Novy und Co.

Allerdings sehe ich da stauraumtechnisch bei dir ein Problem, denn das System benötigt eine Schublade unter dem Kochfeld, die du nicht nutzen kannst und weitere ca 10-20cm für den Abzug hinter deinen Schränken.

Wenn man ein Kochfeld auf der Insel hat, sagt man, dass die Insel mindestens 90 cm Tiefe haben sollte, damit man nicht vollgespritzt wird.
Ich habe vor ein paar Wochen an so einer Insel gesessen und es wurden Kartoffelspneuen gebraten. Es war keine Problem mit Spritzern.
 
In der Werbung sieht's ja so gut aus wie die Absaugen und es gibt ja auch welche die man in der Höhe verstellen kann. Wusste aber nicht wieviel Platz die benötigen. Wo ich noch Bedenken habe ist Wasser was da reinlaufen kann. Also wenn's eine Insel wird, dann wohl doch lieber eine Decken-DAH.

Ich werd mal gucken ob meine "G"-Küche Noch etwas zu verbessern ist. Da würde ja auch ein Ullaschrank rein passen. Und der GSP muss auch nicht hochgestellt, wenn darüber noch ein Dampfgarer kommt.
 
AW: Planung für Neubau-Küche

Kay,
nur einmal als Vorschlag. Ein Fenster habe ich entfernt (wenn es überhaupt möglich ist) und Spüle und Kochfeld an die Wand gesetzt. Sollte es mit dem Fenster nicht gehen, so wäre nur eine Deckenhaube möglich und Kochen vor dem Fenster. Dürfte aber keine Problem sein, da ja die Fensterbank auch als Arbeitsplatte ausgeführt wird.

Den Dampfgarer habe ich dir über den SpüMa gesetzt, nach meinem Wissen (damit ist es noch nicht so weit her, da ich noch nicht so lange plane) gibt es auch hochgesetzte SpüMa die nur einen Auszug unten haben, so dass der Dampfgarer nicht gar so kommt. Lässt sich aber im Alno nicht anders darstellen.

Die Insel habe ich um 10 cm gekürzt. Dann zum Esszimmer hin folgende Aufteilung:
60er Auszug 3-3 mit 1 Innenschublade, überstehende Arbeitsplatte.
So hättest du eine schöne Vorbereitungsinsel.
 

Anhänge

  • MacLitze_Mela2.KPL
    4,1 KB · Aufrufe: 192
  • MacLitze_Mela2.POS
    9,7 KB · Aufrufe: 190
  • MavLitze_Mela2_Grundrisss.JPG
    MavLitze_Mela2_Grundrisss.JPG
    43,5 KB · Aufrufe: 194
  • MavLitze_Mela2_HS.jpg
    MavLitze_Mela2_HS.jpg
    32,3 KB · Aufrufe: 188
  • MavLitze_Mela2_Wandzeile.jpg
    MavLitze_Mela2_Wandzeile.jpg
    33,5 KB · Aufrufe: 218
AW: Planung für Neubau-Küche

Hallo fleißiger Engel :-)

Bei den Fenstern ist noch alles machbar.

Bin gerade dabei mich mit der Kochinsel anzufreunden und hab auch mal ein wenig geschoben.

Hier die Ergebnisse

Entwurf MacLitze 1:
Plan rechtsoben
- Kühlschrank
- BO + Micro
- Geschirrspüler + Dampfgarer
- 40 Seitenschrank
- Ullaschrank

Plan unten
- 120 Auszug 3-3
- 90 Spüle
- 60 Müll unter APL

Insel:
2x 80 mit Kochfeld in der Mitte (hab ich nicht gefunden)
dagegengestellt 2x 80 30cm tief (konnte die APL richtig darstellen)



MacLitze 1 Grundriss.JPGMacLitze 1 Seitenschränke.jpgMacLitze 1 Fenste.jpgMacLitze 1 Kochinsel.jpg

Entwurf MacLitze 2
Plan rechtsoben
Kühlschrank
50
50
Backofen + Microwelle (oder Dampfgarer)
Ullaschrank

Plan unten:
Geschirrspüler
Spüle
60 mit Müll unter APL
90

Insel:
wie bei MacLitze 1
MacLitze 2 Seitenschränke.jpgMacLitze 2 Fenste.jpgMacLitze 2 Grundriss.JPG
 
AW: Planung für Neubau-Küche

Kay,
deine Entwürfe sind nicht schlecht, aber wie willst du an die Schränke unter der Arbeitsplatte kommen? In deinem Plan MacLitze 1 Nr. 8 und 14.

Das Kochfeld findest du unter
Sonderartikel
- Sonderartikel

Mit der Zaubertaste "F4" kannst du alles oder fast alles nach deinen Bedürfnissen anpassen.
 
AW: Planung für Neubau-Küche

Deine Antwort verstehe ich leider nicht. Wie hast du die Anordnung gedacht?
 
Also als Insel einen 80 + 90 mit Kochfeld drauf (das hatte ich oben falsch geschrieben) und dagegen einen schmalen (30cm) 80 + 90 mit einer überstehenden Arbeitsplatte (60cm) zum drann sitzen. Da kommt dann irgendein Kram rein den man nicht oft oder so gut wie nie braucht.
 

Ähnliche Beiträge

Neff Hausgeräte Ballerina Küchen Blum Bewegungstechnologie Weibel - Intelligente Küchenlüftung

Neff Spezial

Blum Zonenplaner

Weibel Abluft-Tuning

Weibel Abluft-Tuning
Zurück
Oben