Unbeendet Neue Küche Planung

AJJ_Kemp

Mitglied
Beiträge
3
Hallo liebe Küchenplaner,
wir haben eine DHH aus dem Jahr 1984 erworben und kämpfen nun mit der Küchenplanung . Am besten liste ich ich kurz unsere Hauptwünsche in Stichpunkten auf:
- möglichst viel Arbeitsfläche
- eine Frühstücksbar mit 4 Hockern
- idealerweise Backofen + Mikrowelle und/oder Geschirrspüler auf Augenhöhe
Natürlich dürfen eine Spüle und eine Kühl-/Gefrierkombi nicht fehlen.
Das Kochfeld (links neben der Balkontür), sowie die Spüle sind aufgrund der Anschlüsse (Dunstabzug und Wasserab-/zulauf) leider etwas an Ihre Lokation gebunden.
Sobald man einen Blick auf den Grundriss wirft wird das Problem schnell klar. Die beiden Türen befinden sich genau in der Mitte der beiden Seitenwände. Jetzt rätseln wir hin und her wie wir was am geschicktesten stellen, das unseren Hauptwünschen am ehesten gerecht wird. (Ein paar Ideen haben wir schon erstellt und angehängt). Leider kommt in den meisten Fällen die Arbeitsfläche zu kurz.
Wenn möglich würden wir gerne die Türen belassen wo sie sind, jedoch für "die Traumküche" könnten wir diese auch bewegen ;o)

Ein weiteres Problem ist die Fensterbank, die mit einer Höhe von (72cm) sehr niedrig ausfällt (direkt drunter befindet sich der Heizkörper).
Wenn Ihr also Vorschläge und Anregungen für unser Problem habt, würden wir uns sehr freuen. Bei Fragen; jederzeit gerne stellen!

Vielen Dank und viele Grüsse




Checkliste zur Küchenplanung von AJJ_Kemp

Anzahl Personen im Haushalt : 4
Davon Kinder? : 2
Körpergrössen aller Hauptbenutzer (wegen Arbeitshöhe ) in cm : 176, 180
Art des Gebäudes? : Bestandsbau, (kleinere) Umbauten möglich
Brüstungshöhe des Fensters (in cm) : 72
Fensterhöhe (in cm) : 140
Raumhöhe in cm: : 250
Heizung : Heizkörper wie im Grundriss
Sanitäranschlüsse : variabel an aktueller Wand
Ausführung Kühlgerät? : Stand-Alone bis 75 cm Breite
Kühlgerät Größe : noch unbekannt
Ausführung Tiefkühl (TK)-Gerät : Im Kühlschrank ab 3 Schubladen unten
Dunstabzugshaube? : Abluft
Hochgebauter Backofen ? : Wenn möglich
Hochgebauter Geschirrspüler ? : wenn möglich
Kochfeldart? : Ceran (herkömmlich)
Kochfeldbreite ca. (in cm)? : 70
Spülenform: : 1,5 Becken mit Abtropffläche
Weitere geplante Heißgeräte : Standmikrowelle, Dampfgarer ohne Wasseranschluß
Küchenstil? : modern
Sitzmöglichkeit in der Küche / im Küchenbereich als : Tresen in Barhöhe
Sitzmöglichkeit: Für wieviel Personen? : für 4 Personen
Sitzmöglichkeit: Tisch - wenn gesonderter Tisch oder offene Küche : Wird nach Bedarf neu gekauft
Gewünschte o. vorhandene Tischgröße : 120 x 70
Wofür soll der Sitzplatz in der Küche genutzt werden? Wie häufig? : Frühstück und Vesper
Welche Arbeitshöhe ist angedacht (in cm)? : 87
Was steht auf der Arbeitsplatte oder soll dort stehen? : Wasserkocher, Messerblock, Küchenmaschine, Allesschneider, Toaster, Obstschale
Welche weiteren Küchenmaschinen müssen in der Küche untergebracht werden? : Handrührgerät, Mixer, Pürierstab, Eierkocher
Was soll in der Küche außer den Standards untergebracht werden? : Getränkekisten, Geschirr komplett (nichts in Ess-/Wohnzimmer)
Welchen Stauraum gibt es sonst noch? : Keller
Was/wie wird gekocht? (Alltagsküche, Menüs, Snacks usw) : Alltagsküche und Snacks
Wie häufig wird gekocht? : (fast) täglich 1x warm
Wird alleine gekocht? Oder auch gemeinsam? Mit und für Gäste? : alleine und gemeinsam. Gelegentlich für Gäste
Was stört an der bisherigen Küche und was soll die neue Küche unbedingt können? Warum? : Fehlende Arbeitsfläche
Steht schon ein Küchenhersteller fest oder wird bevorzugt? : -
Steht schon ein Gerätehersteller fest oder wird bevorzugt? : -
Preisvorstellung (Budget) : bis 5.000,-
 

Anhänge

  • Idee4.POS
    5,9 KB · Aufrufe: 160
  • Idee4.KPL
    3,9 KB · Aufrufe: 163
  • Idee3.POS
    5,9 KB · Aufrufe: 156
  • Idee2.POS
    4,6 KB · Aufrufe: 178
  • Idee2.KPL
    3,9 KB · Aufrufe: 166
  • Idee1.POS
    5,1 KB · Aufrufe: 175
  • Image (320).jpg
    Image (320).jpg
    41,1 KB · Aufrufe: 198
  • Momentan.POS
    3,8 KB · Aufrufe: 162
AW: Neue Küche Planung

noch die Mamentan.KPL auch.
 

Anhänge

  • Momentan.KPL
    3,9 KB · Aufrufe: 175
AW: Neue Küche Planung

Hallo AJJ!
:welcome: im Küchenforum!

Wärst du bitte so nett und würdest ein paar Bilder deiner Planungen einfügen. Die Profis hier haben den Alno Planer nicht und bei gefühlten 50 Planungen hier am Tag ist es schon etwas mühselig wenn man erst immer jede Planung auf seinen Rechner laden und den Alno Planer starten muß um nur mal kurz seinen Senf dazu geben zu können.

LG
Sabine
 

Anhänge

  • Planungen.jpg
    Planungen.jpg
    29,1 KB · Aufrufe: 190
  • Idee4.jpg
    Idee4.jpg
    41,6 KB · Aufrufe: 194
  • Idee3.jpg
    Idee3.jpg
    47,7 KB · Aufrufe: 202
  • Idee2.jpg
    Idee2.jpg
    48,5 KB · Aufrufe: 204
  • Momentan.jpg
    Momentan.jpg
    42,4 KB · Aufrufe: 185
  • Idee1.jpg
    Idee1.jpg
    46,8 KB · Aufrufe: 194
AW: Neue Küche Planung

Schöne Küche- so stelle ich mir meine nächste Küche auch vor.
Die Kommt im Dezember :kfb:
 
AW: Neue Küche Planung

Die Maße im Alno -Plan sind korrekt? Ich frage, weil das Fenster im Grundriss deutlich schmaler wirkt als im Alno; die Terrassentür wirkt im Grundriss dafür breiter und öffnet in die andere Richtung als im Alno. Wo genau ist der Heizkörper, welche Maße hat er, sitzt er in einer Nische, ragt er daraus vor? Derlei Details sind grad bei einem nicht riesigen Raum nicht ganz unwesentlich für die Planung. ;-)

Btw, Arbeitshöhe 87cm - das ist ein Tippfehler, oder? Bei Körpergrößen von 176 und 180 käme mir das schon ein bisserl sehr niedrig vor.
 
AW: Neue Küche Planung

Ich hätte da dieselben Fragen wie Taylor.

Sinnvoll wäre es:
  • den Gesamtgrundriss nochmal zu scannen und als PDF zu speichern. Dann kannman die Zahlen besser lesen
  • die Küche als Ausschnitt zu scannen und da
    • Wasseranschluß (von/bis-Bereich) und
    • DAH-Position (Lochmitte) ... welchen Durchmesser hat sie? Moderne Hauben hätten gerne 150 mm
    • Türbreite
    • Fensterbreite
    • Terrassentürbreite und Öffnungsrichtung
    • Heizung Breite, Tiefe ... also wie weit ragt sie in den Raum

Dann
ARBEITSHÖHE ermitteln
3 Methoden haben sich da etabliert:
- Ellbogen abwinkeln und von dort 15 cm runtermessen
- Höhe Beckenknochen messen
- z. B. Bügelbrett nehmen und in verschiedenen Höhen Probeschnippeln und messen, wenn es einem am bequemsten erscheint.
Idealerweise ergeben alle 3 Methoden ca. denselben Wert
Ausführlicher in Optimale Arbeitshöhen beschrieben.

Zur Budget-Frage ... incl. Geräten und Möbeln? Das wäre sehr sportlich.

__________________________In der Checkliste steht ein Stand-Alone-Kühlschrank, in deinen Alnoplanungen hast du einen integrierten Kühlschrank eingefügt ... was soll es werden?

__________________________Ich gehe mal davon aus, dass du die Sitzpositionen in den bisherigen Ideen auch nicht ideal findest, um nicht zu sagen "man kann da z. T. gar nicht sitzen".

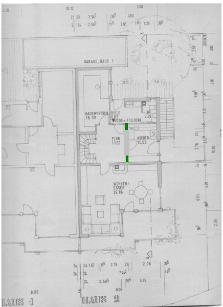
Wenn schon die Tür vom Flur versetzbar ist ... wie wäre denn die Idee, die Wand zum Flur zu öffnen. Also nur oben und unten jeweils ca. 60 cm Wandstummel stehen lassen (dunkelgrün).
ajj_kemp_20131015GrundrissWandweg.jpg

Oder was ist im Flur geplant?
__________________________In der Checkliste hast du 3 Heißgeräte:
- Backofen
- Dampfgarer
- Stand-Mikrowelle
Die sehe ich nicht in den Planungen.

Kochfeld ... warum nicht auf Induktion umsteigen?
 

Ähnliche Beiträge

Neff Hausgeräte Ballerina Küchen Blum Bewegungstechnologie Weibel - Intelligente Küchenlüftung

Neff Spezial

Blum Zonenplaner

Weibel Abluft-Tuning

Weibel Abluft-Tuning
Zurück
Oben