neue Häcker-Küche in renovierter DHH aus den 1980ern

Lordzz1

Mitglied
Beiträge
2
Hallo zusammen,
wir planen gerade für unser neues Eigenheim, eine Doppelhaushälfte aus den 1980ern, eine neue Küche. Der bisher geschlossene Küchenraum soll im Rahmen der Sanierungs-/Renovierungsphase zum Wohn/Esszimmer geöffnet werden. Der Boden wird im gesamten Erdgeschoss Landhausdielenparkett Eiche. Die neue Küche soll eine Häcker Classic/ART Faro sein, die Elektrogeräte werden von verschiedenen Herstellern sein (neue Induktionsplatte und Dampfgarer von Neff , neuer 158er Kühlschrank von Liebherr , integr. Spülmaschine und Backofen sind vorhanden und vom Hersteller AEG )

Bei der Konzeption der Küche sind wir uns allerdings noch nicht ganz schlüssig. Gerne hätten wir eure Anregungen. Wir hätten gerne unbedingt eine "Halbinsel" zum Wohn/Essraum. Beachten muss man hierbei leider die Durchgansbreite zwischen Insel und Highboards (Kühlschrank u. Backofen ), welches die Planungsmöglichkeiten etwas einschränkt.

Checkliste zur Küchenplanung

Anzahl Personen im Haushalt: 4
Davon Kinder?: 2
Art des Gebäudes?: Neu-/Umbau, Planänderungen möglich
Körpergrössen aller Hauptbenutzer (wegen Arbeitshöhe ) in cm: 176 und 187
Brüstungshöhe des Fensters (in cm): 114
Fensterhöhe (in cm): ca. 120
Raumhöhe in cm: 251
Heizung: Fussbodenheizung
Sanitäranschlüsse: fix
Ausführung Kühlgerät: Integriert im Hochschrank (60cm)
Kühlgerät Größe: bis 158 cm Höhe
Ausführung Tiefkühl (TK)-Gerät: Im Kühlschrank als kleines Fach oben
Dunstabzugshaube: Umluft
Backofen etc. hochgebaut?: Ja
Hochgebauter Geschirrspüler ?: Nein
Kochfeldart: Induktion
Kochfeldbreite ca. (in cm)?: 80
Spülenform: 1,5 Becken mit Abtropffläche
Geplante Heißgeräte: Dampfgarer ohne Wasseranschluß, Backofen
Küchenstil: Modern
Sitzmöglichkeit in der Küche / im Küchenbereich: Keine
Sitzmöglichkeit: Für wieviel Personen?: Nein
Sitzmöglichkeit: Tisch - wenn gesonderter Tisch oder offene Küche: Keiner
Gewünschte o. vorhandene Tischgröße:
Wofür soll der Sitzplatz in der Küche genutzt werden? Wie häufig?:
Welche Arbeitshöhe ist angedacht (in cm)?:
92
Was steht auf der Arbeitsplatte oder soll dort stehen?: Kaffeemaschine, Messerblock, Küchenmaschine, Toaster
Welche weiteren Küchenmaschinen müssen in der Küche untergebracht werden?: Handrührgerät, Mixer, Pürierstab
Was soll in der Küche außer den Standards untergebracht werden?: Geschirr komplett (nichts in Ess-/Wohnzimmer)
Welchen Stauraum gibt es sonst noch?: Keller
Was/wie wird gekocht? (Alltagsküche, Menüs, Snacks usw): Alltagsküche
Wie häufig wird gekocht?(fast) täglich 1x warm[/COLOR]
Wird alleine gekocht? Oder auch gemeinsam? Mit und für Gäste?: meist mindestens zu zweit, mit und für Gäste zukünftig denkbar
Was stört an der bisherigen Küche und was soll die neue Küche unbedingt können? Warum?:
Steht schon ein Küchenhersteller fest oder wird bevorzugt?: Häcker classic/ART Faro
Steht schon ein Gerätehersteller fest oder wird bevorzugt?: diverse
Preisvorstellung (Budget): bis 10.000,-
 

Anhänge

  • grundriss kpl.jpg
    grundriss kpl.jpg
    96,2 KB · Aufrufe: 282
  • perspektive1.JPG
    perspektive1.JPG
    40,7 KB · Aufrufe: 333
  • perspektive2.JPG
    perspektive2.JPG
    31,7 KB · Aufrufe: 261
  • Grundriss.JPG
    Grundriss.JPG
    73,9 KB · Aufrufe: 660
Zuletzt bearbeitet:
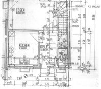
und jetzt auch noch die Dateien aus dem Planungsprogramm...und ein etwas genauerer Grundriss.

Die Raummaße der Küche sind übrigens 3,62m (entspricht 3,51m neuen Maß zzgl. der ehem. Wanddicke von 0,11m) x 3,10m. Die Wand links vom Fenster ist 0,40m, rechts vom Fenster 0,69m.

Vielen lieben Dank für eure Meinungsbeiträge! ;-)
 

Anhänge

  • PLAN1.POS
    5,1 KB · Aufrufe: 269
  • PLAN1.KPL
    3,9 KB · Aufrufe: 261
  • Grundriss Detail.jpg
    Grundriss Detail.jpg
    46,7 KB · Aufrufe: 251
Hallo Lord und herzlich willkommen im Forum!

Als erstes ist mir aufgefallen, dass eure Wunschküche nur 5er Raster hat, dh der Korpus is nur 72cm hoch. Eure Wunsch-APHöhe ist 92cm. Wenn die AP 4cm dick wird, dann habt ihr einen Sockel von 16cm.

Aber eigentlich ist für eure Grösse 92cm zu niedrig. übt mit dem Bügelbrett, um eine angehme AP Höhe zu finden, damit man sich beim Schneiden nicht beugen muss.

Wenn ihr ein Küchenmodel mit 6er Raster wählt, gibt es eine Schublade extra oder 2-2-2 und die Korpushöhe ist 78cm. Somit wäre der Sockel nur noch 10cm bei 92 AP Höhe.

Wo verstaut ihr eure Vorräte?
 
Wird die bisherige Küchentür geschlossen?

Wenn du dich für Häcker systemArt entscheidest, dann kannst du im 6er Raster planen, was bei eurer Größe auf jeden Fall angebracht wäre.
 
Hallo Lordzz1,

beim Anblick Deines Küchengrundrisses habe ich gerade ein dejà-vu, da ich bei meinen ersten Küchenvorentwürfen auch als eine Variante die Idee mit der G-Form hatte. Mein Grundriss sieht recht ähnlich aus. Bin aber davon ab und habe die U-Form gewählt weil ich WZ und Küche offen, transparenter ineinander übergehend haben wollte und keine Lust auf Slalom um einen Küchenblock auf dem Weg zum Eßtisch.

Hast Du Dir schon Gedanken über die Möblierung des restlichen Wohn- und Essbereiches gemacht? Denn das solltest Du auf jeden Fall bei der Küchenplanung berücksichtigen und ggf. die Gesamtküchentiefe minimieren. Wenn das Haus 12 Meter lang ist und Ihr seitlich noch vor der Küche eine Terassentür habt kann es mit einem schönen großen Esstisch und der Couchgarnitur eng werden, so wie es auf dem bunten Plänchen möbliert ist (die Plänchen von den Maklern und Bauträgern sind immer sehr verzerrt und sind nicht richtig maßstäblich. Idee wäre auch die Couch und Schrankwand jeweils auf die andere Seite zu stellen ...

Mit dem Budget von 10T€ und der Küchengröße und Ausstattung wie Dampfgarer wirst Du wahrscheinlich nicht hinkommen, ist aber auch von den Fronten abhängig.
 
Ich bin ja mal wieder subversiv ;-) ... wenn ihr eh schon den kompletten Boden erneuert, Wände rausnehmt (müssen da Stummel wg. Statik und Unterzug stehenbleiben), habt ihr schon mal überlegt, die Küche in den Wohnbereich planoben zu legen und einen stillen Wohnbereich nach unten?
grundriss-jpg.162485


(kleine Bitte ... Alnopläne immer in der Ausrichtung der Orginalgrundrisse anlegen ... und, Originalgrundriss nochmal scannen und genaue Wasserposition und Fensterabstände etc. eintragen. Es ist immer recht mühsam sich so etwas aus dem Text herauszusuchen ;-) )

Ein Beispiel für so eine Verlegung ist die Küche von white tiger und der Thread dazu
-------------
 
Kerstin, das ist ja ein mutiger Vorschlag ...
Bei so Planungen ist die Hausausrichtung und Thema Licht, gerade Tageslicht sehr wichtig. Bei diesen klassischen DHH-Grundrissen kommt das Haupttageslicht von der Terassenseite mit den bodentiefen Fenstern, diese dann mit einem Küchenblock & Co. zuzustellen, das raubt dem Gesamtraum das Licht und die Transparenz, wäre schade. Auf der anderen Seite dann das WZ mit Blick Richtung Strassenfassade und Fenster mit aktuell 1,34 m BRH zu verlegen. Abgesehen davon ist das Thema Verlegbarkeit der TGA-Installationen, insbesondere Abwasser zu prüfen wäre, ganz abgesehen von den Kosten ....
 
Och - im WHZ hält man sich primär Abends, bei schlechtem Wetter und im Winter auf und häufig läuft sowieso der TV und keiner guckt zum Fenster raus. In der Küche und am Esstisch hingegen, das ganze Jahr und deutlich mehr - zumindest, wenn man viel kocht & backt und eine Familie hat. Auch die Nähe zum Garten ist ein nicht zu unterschätzender Vorteil.

Wir haben auch unser Haus auf den Kopf gestellt, nur damit die Küche aus der hintersten Ecke rausgeholt werden konnte und direkten Zugang zu Terrasse und Garten hat.
 
Sehe ich wie Vanessa und dann kommt es ja auch immer noch auf die persönlichen Vorlieben an.

Wenn ich noch weiteren Platz hätte, gäbe es maximal einen kleinen Wohnraum mit Sofa und Fernseher ... der Hauptraum würde aber immer mein Ess/Kochzimmer bleiben ... mit dem gemütlichem Küchensofa usw.

Deshalb einfach die Frage.

Und, da der Boden eh erneuert wird, es einen Keller gibt, könnte ich mir vorstellen, dass es nicht so dramatisch wird, Wasser z. B. nach planoben rechts zu bringen.

Und jetzt soll halt eh etwas gebaut werden, da kann man ja auch mal neue Ideen ins Spiel bringen, denn oft ist man da ja blockiert ;-)

BRH ist übrigens 114 cm lt. Checkliste.
 
Schon klar die letztendliche Aufteilung der Wohnfläche sollte auf den Bedürfnissen der Nutzer abgestimmt sein. Dabei ist der Innen- und Außenbezug auch sehr wichtig.

So fände ich es bei einer Sofaecke Richtung Strasse /Eingangsseite störend, dass jeder vom Eingang aus direkt aufs Sofa schauen könnte. Es sei denn man spielt gerne BigBrother und lässt sich beim "gammeln" auf dem Sofa beobachten :cool:
Küche auf der Eingangsseite, so wie jetzt, ist m.E. optimal, hier ist der Außenbezug sogar von Vorteil. Zumal bei Lordzz Grundriss die Situation mit der seitlichen Tür mit Zugang zur Terassse / Garten gegeben ist, als Essbereich oder Übergang zur Küche.
Keinesfalls würde ich den Tageslichteinfall der großen Fensterfront (planoben) mit irgendwelchen feststehenden Elementen verbauen und im Falle einer Küche in dem Bereich unbedingt die bodentiefe Fensterfront freihalten!
 
Ich finde, ab und zu lohnt es sich, out-of-the-box zu denken, zumal denken kostenlos ist. Worüber ich hier denken würde
  • Licht: Wozu braucht man eher viel Tageslicht? Zum Arbeiten oder zum Fernsehen?
  • Big-Brother: Ich will nie beobachtet werden, sei es beim Kochen oder beim Essen sowie auch bei "Gammeln" - dafür gibt es, z.B., Gardinen. Viele Häuser haben auch Vorgärten und sind somit nicht ganz auf der Straße. Dann helfen auch Pflanzen, z.B.
Diese Grundrisse mit Küche und Gästeklo am Eingang sind eine deutsche Eigenart, im Rest der Welt kommt man in Wohnzimmernähe rein, in den USA oft direkt ins Wohnzimmer. Es gibt auch Gründe die dafür sprechen. Jede Lösung hat Vor- und Nachteile, man sollte sich nur alles überlegen, bevor man eine Entscheidung, egal welche, trifft.
 
Die klassischen Doppel, bzw. Reihenhausgrundrisse sind bedingt durch die teuren Grundstückspreise bei uns. So schlimm sind die nun auch nicht, sonst würde die keiner kaufen.
Finde z.b. eher Gardinen, speziell in der Küche als Inbegriff des deutschen Spiessbürgertums ...
 
Loreena, es hängt davon ab, wie die Gardine aussieht. "Spießig" ist kein Teil meines aktiven Wortschatzes, ich denke in anderen Kategorien. Zurück zum Thema: Es lohnt sich, den Vorschlag von Kerstin ernst zu nehmen, und zu überlegen, ob das was wäre. Auch wenn man sich dagegen entscheidet: Wenigstens hat man dann eine bewusste Entscheidung getroffen.
 
nachdem Lord sich seit längerem nicht mehr gemeldet hat, stelle ich ihm meine Variante zu seinem Plan ein. Vielleicht meldet er sich danach.

Von planoben im Uhrzeigersinn beginnend

Halbinsel Rückseite
Blende
80er US mit Türen, tiefenreduziert
60er US 2-2-2
Blende

Halbinsel küchenseitig
Blende
80er US 1-1-2-2
totes Eck

2 x 90er US 1-1-2-2 Kochfeld mittig über beide US
tote Ecke

Fensterseite
2 x 90er US 1-1-2-2
toteEcke

Planlinks
40er US 3-3 MUPL
50er Spüle
GSP
Blende
60er HS für BO
60er HS Kühli
Blende

Der Raum ist eigentlich etwas zu breit mit einem Zeilenabstand von 190cm.
Lord12.JPG Lord22.JPG Lord32.JPG Lord42.JPG
 

Anhänge

  • Lord_Evelin_PLAN2.KPL
    3,9 KB · Aufrufe: 262
  • Lord_Evelin_PLAN2.POS
    10,4 KB · Aufrufe: 265

Ähnliche Beiträge

Neff Hausgeräte Ballerina Küchen Blum Bewegungstechnologie Weibel - Intelligente Küchenlüftung

Neff Spezial

Blum Zonenplaner

Weibel Abluft-Tuning

Weibel Abluft-Tuning
Zurück
Oben