Unbeendet Küchenplanung und erste Idden

lumb

Mitglied
Beiträge
17
Küchenplanung und erste Ideen

Hallo zusammen,
im chefkoch.de Forum wurde mir dieses Forum empfohlen. Wir haben einen Hausumbau und planen nun eine neue Küche.
Dazu habe ich eine Grafik des Küchengrundrisses und meherere Bilder zweier erster Ideen angefügt.
Da noch keien Anschlüsse etc verlegt sind, sind wir da noch ganz frei.
Gerne hätten wir eine Insel oder eien Halbinsel.
Da wir eine angrenzende Speise/Abstellkammer mit 14qm haben, muss in der Küche nur gut Platz für den täglichen 2 Personen Haushalt finden. Getränkekisten, Sondertöpfe etc. kommen in die Kammer.

Was haltet Ihr von den bisherigen Ideen und was habe Ihr für Vorschläge?

Danke und liebe Grüße



Checkliste zur Küchenplanung von lumb

Anzahl Personen im Haushalt : 2
Davon Kinder? : keine
Körpergrössen aller Hauptbenutzer (wegen Arbeitshöhe ) in cm : 1,76
Art des Gebäudes? : Neu-/Umbau, Planänderungen möglich
Brüstungshöhe des Fensters (in cm) : 90
Fensterhöhe (in cm) : 60
Raumhöhe in cm: : 230
Heizung : Keine Heizung
Sanitäranschlüsse : vollkommen variabel
Ausführung Kühlgerät? : Integriert im Hochschrank (60cm)
Kühlgerät Größe : noch unbekannt
Ausführung Tiefkühl (TK)-Gerät : Im Kühlschrank bis 2 Schubladen unten
Dunstabzugshaube? : Umluft
Hochgebauter Backofen ? : Ja
Hochgebauter Geschirrspüler ? : ja
Kochfeldart? : Induktion
Kochfeldbreite ca. (in cm)? : 60
Spülenform: : 1 Becken ohne Abtropffläche
Weitere geplante Heißgeräte : Einbaumikrowelle
Küchenstil? : modern
Sitzmöglichkeit in der Küche / im Küchenbereich als : Arbeitsplatte in Tischhöhe
Sitzmöglichkeit: Für wieviel Personen? : für 4 Personen
Sitzmöglichkeit: Tisch - wenn gesonderter Tisch oder offene Küche : Wird nach Bedarf neu gekauft
Gewünschte o. vorhandene Tischgröße : 150 x 1 - 4 Personen
Wofür soll der Sitzplatz in der Küche genutzt werden? Wie häufig? : Normales Essen zu zweit oder zu viert. Werden es mehr Personen weichen wir ins Esszimmer aus.
Welche Arbeitshöhe ist angedacht (in cm)? : 90
Was steht auf der Arbeitsplatte oder soll dort stehen? : Küchenmaschine, Allesschneider, Toaster, Brotbehälter
Welche weiteren Küchenmaschinen müssen in der Küche untergebracht werden? :
Was soll in der Küche außer den Standards untergebracht werden? : Sonstiges (evtl. im Beitragstext benennen)
Welchen Stauraum gibt es sonst noch? : Speisekammer
Was/wie wird gekocht? (Alltagsküche, Menüs, Snacks usw) : Alltagsküche hauptsächlich vegan
Wie häufig wird gekocht? : (fast) täglich 1x warm
Wird alleine gekocht? Oder auch gemeinsam? Mit und für Gäste? : Haupsächlich nicht mehr als zwei Leute
Was stört an der bisherigen Küche und was soll die neue Küche unbedingt können? Warum? : Essbereich
Stauraum für Küchengeräte hinter Rollo, Steinarbeitsplatte
Steht schon ein Küchenhersteller fest oder wird bevorzugt? : evtl. Schüller
Steht schon ein Gerätehersteller fest oder wird bevorzugt? : nein
Preisvorstellung (Budget) : bis 15.000,-
 
Zuletzt bearbeitet von einem Moderator:
AW: Küchenplanung und erste Idden

:welcome:

Bitte hänge noch einen Hausgrundriss ein, damit wir erkennen können, woher/wohin welche Türen führen, dass erleichtert uns das Eindenken.


Habt ihr die Arbeitshöhe gestestet? 90cm kommt mir für die angegebene Grösse eher niedrig vor.
ARBEITSHÖHE ermitteln:


  • [*=1]z. B. Bügelbrett nehmen und in verschiedenen Höhen Probeschnippeln und messen, wenn es einem am bequemsten erscheint.
    [*=1]maximale Höhe ist Oberkante Beckenknochen.

Sobald man die Schultern hochzieht ist es zu hoch; wenn man sich vorbeugt zu niedrig.
Ausführlicher in Optimale Arbeitshöhen :link: beschrieben.

Die Insel ist zwar ganz lustig und zum gemeinsam Kochen auch halbwegs geeignet, aber im Alltag, würde es mich stören für jeden 2. Handgriff um die Insel rumlaufen zu müsse.

Das U ist da schon praktischer, aber auch nur, wenn man alleine in der Küche steht; zu Zweit stört man sich bei der Planung stark.
 
AW: Küchenplanung und erste Idden

Hallo,

danke für die Antwort. Die Küche mit der Insel ist bei uns eigentlich auch schon durch - eben wegen der langen Laufwege.
Unsere jetzige Küche hat eien Arbeitshöhe von 86cm, das ist etwas wenig, aber 90 ist gut. Aber Du hast recht eher 95 als 85.
Ein Bild des Gessamtgrundrisses habe ich im Originalbeitrag angefügt.
Evtl. könnten wir auf die Tür von der Küche ins Wohnzimmer verzichten.

Grüße und Danke.

lumb
 
AW: Küchenplanung und erste Idden

Auch von mir ein herzliches Willkommen.

Hat dieser Durchgang zum Vorratsraum eine Bedeutung und muss er unbedingt sein? Er ist so schmal, dass du dort nichts stellen kannst.

Ich würde die planrechte Küchenwand durchziehen und den Eingang dem Vorratsraum zuschlagen, so könntest du dort mehr unterbringen.
 
AW: Küchenplanung und erste Idden

Ich habe einmal den Grundriss versucht darzustellen. Bitte kontrolliere die Maße. Leider sind die Positionen und Breiten der Türen und des Fensters nur zu schätzen.
Die Breite des Fenster differiert zwischen Gesamt- und Küchengrundriss.
 

Anhänge

  • lumb.KPL
    3,9 KB · Aufrufe: 195
  • lumb.POS
    7,4 KB · Aufrufe: 210
  • lumb_Grundriss.JPG
    lumb_Grundriss.JPG
    28 KB · Aufrufe: 193
AW: Küchenplanung und erste Idden

Ich schiebe nun schon eine ganze Zeit rum; aber dieser Raum ist nunmal denkbar Küchenungeeignet. Er hat zuwenig zusammenhängende Wände, für eine richtige Insel ist er viel zu schmal .. bei einem reinen Esszimmer würden die vielen Türen weniger stören.

Habt ihr schonmal über einen Raumtausch nachgedacht? Wie wäre es Küche und Esszimmer zusammenzulegen und dann kann man eine schöne Essküche planen.

Das hier wird eine Variante von Murks .. hier mal mein Murks.

Die Nische habe ich verschlossen und die Türe an das obere Ende verlegt. Auch die Kellertreppentüre muss dazu verlegt werden - entweder zwischen die Zeilen oder vom Vorraum aus (da ich nicht weiss, wie die Treppe angelegt ist, weiss ich auch nicht, ob das überhaupt möglich ist)

lump1.JPGlump2.jpglump3.jpg
Hinter der Kücheneingangstüre steht eine Kombination aus:
Kühlschrank
BO
Vorratsch/Gerschirrschrank
gegenüber ein kleiner Sitzplatz - der muss ja nicht am Fenster sein, denn dort steht ja auch der grosse Esstisch nebenan.
lump4.jpg
Die Arbeitszeile unter dem Fenster besteht aus
60cm GSP
60cm Spüle
80cm Kochzutaten
60cm Kochfeldunterschrank
30cm Brettchen (oder der 60cm & der 30cm zu einem 90cm U-Schrank zusammengefasst) - das kommt auf die Stauraumplanung an
lump5.jpg
Die Insel besteht aus
2x 100cm (entweder Uebertief oder mit Plattenüberstand) für Geschirr und Zubehör.
 

Anhänge

  • lumb_nn_v1.POS
    10,8 KB · Aufrufe: 203
  • lumb_nn_v1.KPL
    3,9 KB · Aufrufe: 192
AW: Küchenplanung und erste Idden

Hallo,

habe vorher nochmal nachgemessen, es sind alles 80er Türen. Den Zugang zur Speisekammer habe ich zur Speisekammer hinzugefügt und die Tür ins Wohnzimmer entfernt.
Habe zusätzlich noch eine weitere Planung erstellz und beigefügt.
Trotzdem besteht der Wunsch nach einer Insel oder Ecke, so dass Freunde ind er Küche sitzen können und es gemütlich ist.
Danke für weitere Anregungen und Ideen.

Anhang anzeigen binrw.KPL
Anhang anzeigen binrw.POS
Anhang anzeigen leer.KPL
Anhang anzeigen leer.POS


binrw2d.PNGbinrw3d2.PNGbinrw3d.PNG
 
Zuletzt bearbeitet:
AW: Küchenplanung und erste Idden

Bitte stelle zu Deiner Planung Ansichten und Alno -Grundriss ein, so dass man sich das anschauen kann. Ausserdem wäre es nett, wenn Du meine Planung kommentieren würdest, was daran gefallen würde, was nicht. Ob eine Verlegung der Türe zur Kellertreppe geht oder nicht etc.
 
AW: Küchenplanung und erste Idden

Hallo,

habe Bilder und leere Pläne hinzugefügt. (Glaube die leeren Alno Pläne waren schon drin?)

Der Versatz der Tür ins Treppenhaus ist leider nicht möglich.
Das schließen des Vorratsraumflurs finde ich eine gute Idee, dadurch wirkt die Küche ruhiger. Habe das in den Plänen schon so geplant.
- Leider kann ich was den Grundriss angeht nicht viel Entscheiden, auch ein Raumtauch wäre mir auch sehr recht, kommt aber leider nicht in Frage.

Ansonsten gefällt mir Deine Idee gut
Hatte auch schon an eine U Form gedacht, wobei das Unterteil des Us vor der Tür ins Wohnzimmer wäre, die ja weg könnte.


Danke und Gruß
 
AW: Küchenplanung und erste Idden

Ich habe Deine Planung mal überarbeitet:

lumb30.JPGlumb34.jpg
lumb31.jpg
Kühlschrank
hochgebauter GSP
Wange
weiter in übertiefe (75cm) das gibt der Raum her und ist ausgesprochen angenehm zum Arbeiten.
40cm Küchenhelfer/Handtücher/Brettchen
60cm Spüle
60cm Müll unter der APL, sowie unterer Auszug Flaschen.
100cm Kochstellenunterschrank mit Töpfen/Pfannen, Geschirr
50cm Zutaten
tote Ecke
lumb32.jpg
2x 60cm in mindertiefe (45cm) für Geschirr
lumb33.jpg
BO-Hochschrank
Vorrats/od. Geschirrschrank
 

Anhänge

  • lumb_nn_v3.POS
    10,7 KB · Aufrufe: 174
  • lumb_nn_v3.KPL
    3,9 KB · Aufrufe: 188
AW: Küchenplanung und erste Idden

Hallo,

danke.
Ich denke so auf die Art wird es werden, allerdings ohne die gegenüberliegenden Hochschränke, da wir so viel Platz nicht brauchen und die ja im Zweifelsfall auch nachrüstbar wären.
Evtl. ist die U Form (wie in meinem ersten Beitrag) auch noch interessant, u.U.
Ich werde mir das ein oder andere noch durch den Kopf gehen lassen und wenn die Küche einmal stehen wird sie zeigen.
Die Küche im Beitrag #7 entspricht übrigens unserer jetzigen.

Ich habe schon lange einen Küchenblock oder eine Insel gewollt - aber das schein ja hier tatsächlich keinen Sinn zu machen.

(Das dauert allerdings noch bis frühestens Ende 2013)

Danke soweit schonmal.
 
AW: Küchenplanung und erste Idden

Die Planung in Beitrag 7 böte für meinen Geschmack zuwenig gut nutzbare Arbeitsfläche - deshalb habe ich sie überarbeitet und den teuren Stauraumvernichter von Apotheker rausgeworfen.

Eckspüle finde ich auch ungünstig, das dort nur eine Person dranstehen kann und sich Müll und GSP gerne gegenseitig blockieren. In meiner Planung habe ich euch deshalb einen hochgebauten GSP realisiert, welcher sehr bedienfreundlich ist ;-).

Den Vorratsschrank kannst Du natürlich auch weglassen und den BO kann man nach unten setzten und stattdessen hinter der Türe eine Kredenz hinstellen oder sonst ein nettes Möbel und ein Bild darüber hängen.
 
AW: Küchenplanung und erste Idden

Nachdem ich vorhin erfolglos eine Planung einstellen wollte, hat in der Zwischenzeit Vanessa eine bessere erstellt.


Vorab:
Ich finde bei eurem Grundriss ist eine direkte Verbindung zum Esszimmer sinnvoll. Ansonsten müsst ihr aus der Küche durch den Flur und das Wohnzimmer bis zum Essplatz. Bis dahin ist das Essen kalt. Aus diesem Grund habe ich einen großen Durchbruch (dargestellt durch das Lichtband) zum Essplatz hin geplant. Es könnte natürlich auch eine Schiebetür oder im Notfall auch eine normale Tür sein.

Ist das Küchenfenster wirklich nur 60 cm hoch bei einer Brüstungshöhe von 90 cm? Ich finde, dass dann die Küche ein dunkler Raum ist.

Die Küchentür vom Flur habe ich moderat nach planrechts verschoben, damit die HS an die Wand passen.

Nun zur Planung, beginnend planunten, links neben Tür:
Blende
BO mit Klappfach für Mikrowelle
Kühlschrank
Blende

Insel, planoben rechts beginnend:
Blende, ideal wäre, wenn die Arbeitsplatte die Fensterbank ersetzten würde
90er Auszug 1-1-2-2 in Übertiefe mit Kochfeld linksbündig gesetzt - DA - am Besten eine Deckenhaube
80er Auszug 1-1-2-2 in Übertiefe
30er Auszug 3-3 in Übertiefe für Müll unter der AP
60er Spüle 3-3 ohne Abtropfe, natürlich nicht rund - gibt es im Alno aber nicht
GSA
Wange

gegengestellt:
Blende
2 x 100 Vitrine mit Drehtüren
überstehende Arbeitplatte für Sitzplätze
 

Anhänge

  • lumb_Mela_var2.KPL
    3,9 KB · Aufrufe: 182
  • lumb_Mela_var2.POS
    9,8 KB · Aufrufe: 185
  • lumb_Mela_var2_Draufsicht.jpg
    lumb_Mela_var2_Draufsicht.jpg
    43,9 KB · Aufrufe: 187
  • lumb_Mela_var2_Grundriss.JPG
    lumb_Mela_var2_Grundriss.JPG
    27,2 KB · Aufrufe: 208
  • lumb_Mela_var2_Insel.jpg
    lumb_Mela_var2_Insel.jpg
    52 KB · Aufrufe: 212
  • lumb_Mela_var2_SichtEsszimmer.jpg
    lumb_Mela_var2_SichtEsszimmer.jpg
    53,4 KB · Aufrufe: 203
AW: Küchenplanung und erste Ideen

Ja, das wäre sehr hübch. Denkt Ihr das wird nicht zu eng?
 
AW: Küchenplanung und erste Idden

Ja, es wird eng. Allerdings ist euer Küchenraum so ungünstig geschnitten und durch die Kellertüre weiterhin im Nutzen beschränkt, dass ihr ohne gröbere Kompromisse dort kaum eine Küche unterbekommt.

Die Kochseite ist bei dieser Planung mit genügend Platz ausgestattet; die Inselrückseite ist eine dicke fette Kröte. Dafür hättet ihr die gewünschte Insel.

Eine Lösung mit viel Bewegungsfreiheit und der Möglichkeit zu zweit zu kochen habe ich euch ja entworfen.

Versucht ein bisschen abzuwägen, was euch wirklich wichtig ist und dann kann man die gewählte Variante noch optimieren.
 
AW: Küchenplanung und erste Idden

Hallo zusammen,

Es war noch eine Frage wegen des Fensters offen:
Die Maße des Fensters im Alnoplaner Grundriss stimmen:
es ist ca 174 breit und 124 hoch.
ich habe selbst nocheinmal etwas rumgeschoben.

Das mit der Insel ist zwar sehr nett, aber etwas eng. Ich denke es wird auf eine Form wie in meinem ersten Beitrag hinauslaufen.

Habt Ihr dazu speziell eine Meinung oder Verbesserungsvorschläge, bzw fällt Euch direkt etwas auf was upraktisch oder so ist? Vom Stil allerdings soll es eher etwas moderner und weniger Landhaus werden.

Eine spezielel Frage zu Barhockern in der Küche:
Könne diese so bequem sein dort gemütlich zu Essen oder sind die eher was fürs Auge?
Wie ist da eure Erfahrung?

Danke und Grüße
 
Zuletzt bearbeitet von einem Moderator:
AW: Küchenplanung und erste Idden

Dieses U ist ausgesprochen eng - sowohl zum Kochen, als auch als Durchgang - das siehst Du wenn Du das von oben betrachtest. Zwischen Spüle & Herd sollte Dein Hauptarbeitsplatz sein - da fehlt Dir bei der Planung einfach Fläche. Das Kochfeld ist sehr nah am Rand (was bei der Enge kaum zu vermeiden ist) es ist aber gefährlich, wenn z.B. Pfannenstile überstehen - da wird bei der Enge und da es der Hauptdurchgang ist, leicht etwas runtergerissen.


Sitzen auf APL-Höhe ist durchaus komfortabel und auch für richtige Mahlzeiten geeignet.
 
AW: Küchenplanung und erste Idden

Du könntest in meiner Planung die Insel noch etwas nach rechts schieben, so dass du an der Arbeitszeile 95 cm Abstand zu den Türen und zum Esszimmer zu 90 cm hättest. Es ist zwar nicht üppig aber ausreichend.

Die Sitzplätze habe ich dir bewusst bei dem breiten Durchgang geplant, so dass es dort auch nicht zu beengend wäre.

Eine Möglichkeit wäre auch, die Sitzplätze nach planoben zu verschieben, siehe Grundriss.
 

Anhänge

  • lumb_Mela_var3.KPL
    3,9 KB · Aufrufe: 199
  • lumb_Mela_var3.POS
    9,9 KB · Aufrufe: 193
  • lumb_Mela_var3_Grundriss.JPG
    lumb_Mela_var3_Grundriss.JPG
    34,8 KB · Aufrufe: 186
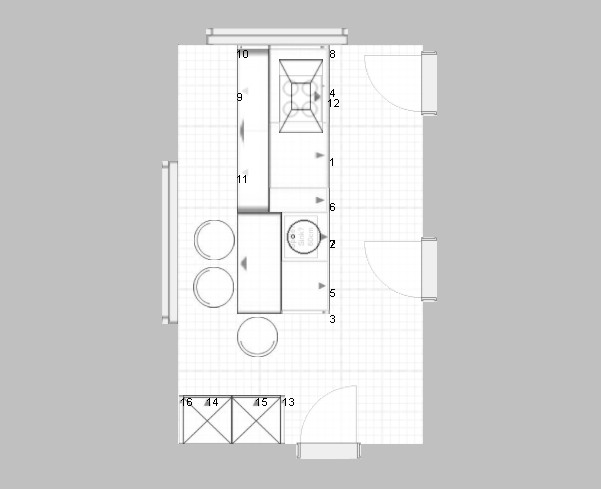
Hallo,
danke für die Insellösung. Das sieht hübsch aus, ist aber evtl etwas unpraktisch wenn man immer drumrum muss. Wir hatten nun mal mit dem Architekt gesprochen und es wurde die Möglichkeit eröffnet die Türen zu versetzen. Danach habe ich mir folgendes ausgedacht:

Der einzelne Herd ist ein schon vorhandener Holzherd, darum die 10cm Ytong Mauern drumrum. Der soll zum heizen und evtl zum Backen oder mal zum Wasserkochen verwendet werden, dass er nicht zentral zugänglich in der Küche steht wäre in Ordnung.
Der Kamin ist links vom Herd. (Ein weiterer wäre noch and er Wand gegenüber der Uhr)

Die Ofen Mikrowellenkombi stellt eine Ofen/Kaffemaschine (Kaffemaschine vorhanden) dar.

Die Barplatte beim Herd ist nicht optimal, da muss noch etwas "geschliffen" werden, aber ohne sieht es etwas nacht aus.

Der überstehenden Hochschrank könnte verkleidet werden.

Was haltet Ihr davon?

Danke und Gruß
 

Anhänge

  • 321.POS
    13,9 KB · Aufrufe: 210
  • 321.KPL
    3,9 KB · Aufrufe: 191
  • lumb_eigen_G.JPG
    lumb_eigen_G.JPG
    46,6 KB · Aufrufe: 178
Zuletzt bearbeitet von einem Moderator:

Ähnliche Beiträge

Neff Hausgeräte Ballerina Küchen Blum Bewegungstechnologie Weibel - Intelligente Küchenlüftung

Neff Spezial

Blum Zonenplaner

Weibel Abluft-Tuning

Weibel Abluft-Tuning
Zurück
Oben