Fertig mit Bildern Küchenplanung Nobilia Campo

AW: Küchenplanung

Kochfeld und Spüle direkt nebeneinander finde ich in kleinen Küchen grundsätzlich gar nicht so schlecht - da hat man quasi ein praktisches Ausgussbecken neben dem Herd, und wenn auf der anderen Spülenseite schön Platz ist, kann das in manchen Grundrisssituationen die bessere Lösung als zerhackstückelte Miniarbeitsflächen sein.

Aber Eckspüle mit angrenzendem Kochfeld ist Murks: Nicht nur, weil jemand, der vor einem der Elemente steht, das jeweils andere blockiert (und den Backofen gleich mit), und daher immer nur einer allein arbeiten kann - möglicherweise ist das ja ganz in deinem Sinne? ;-)
Aber an Spüle und Müll will und muss man ja nicht nur beim Kochen - da wird das Kind sich mal Säftlein mixen oder vor dem Essen die Überreste der Bastelarbeiten vom Tisch entsorgen wollen - geht nicht, ohne Muttern am Herd zu bedrängen und zu nerven ohne Ende. MaW: Diese Planung ist dem Familienfrieden abträglich. Und das wird auf Dauer teuer - wahlweise muss in Psychotherapie, Scheidungsanwneu oder eine neue Küche investiert werden. Oder alles zusammen. :tounge:
 
AW: Küchenplanung

Hochschrank weg finde ich :top: Und wenn der Müll nicht unter der Eckspüle landet könnte man das Eckspüle direkt neben Herd auch lassen, wenn es euch so gut gefällt, und das mit dem Tisch kann man ja ggf noch nachträglich ändern.
Wobei ich kerstins Eckspülenlösung praktikabler finde.

littlequeen
 
AW: Küchenplanung

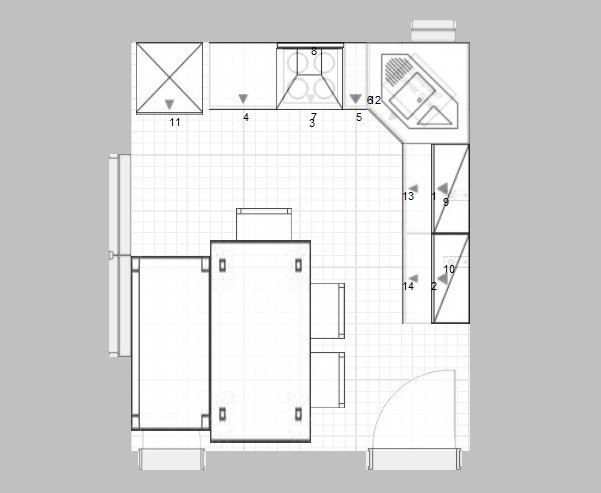
Meint ihr echt, dass es so ein großer Unterschied ist, wenn man so so macht:

Küche15.jpg
 
AW: Küchenplanung

Fangen wir mal anders herum an, wo soll der Müll hin? Also wenn du den Müll öffnest solltest du noch an deinen Herd kommen, und an die Spülmaschine. Ich jedenfalls nutze beides oft zusammen, also das ich etwas vom Herd direkt in den Müll packe, oder direkt in den Müll schnippel und dann ab auf den Herd, und später dann den Rest von den Tellern in den Müll und ab in die GSP.


littlequeen

Ich würde die Spüle dann noch etwas weiter richtung Tür ziehen und dann ist alles tutti, oder den herd etwas zum Kühlschrank,, gibt dann zwar kleine Schränke, aber mehr Bewegungsfreiraum.

Ich probiere das gleich mal in der Planung - Moment
 
AW: Küchenplanung

Der Herd muss ziemlich weit rechts bleiben, ich habe das Loch für die DAH in ca. 1m von rechts.

Gibt es Eckschränke für eine Spülmaschine? Dann könnte man GSP und Spüle tauschen.
Und statt einem 15er einen 30er Schrank zwischen Ecklösung und Herd.
 
AW: Küchenplanung

Fürs Arbeiten und den Familienfrieden machts keinen Unterschied - aber zumindest gäbs besser nutzbaren Stauraum. ;D

Aber ich wüsste wirklich gern, welche konkreten Vorteile du dir von der Spülen-Kochfeld-Kombination übereck versprichst. Wie gesagt, beides nebeneinander zu haben, kann durchaus mal praktisch sein - aber eben: gerade nebeneinander. Übereck blockieren die Elemente sich gegenseitig. Wo siehst du also den Nutzen?
 
AW: Küchenplanung

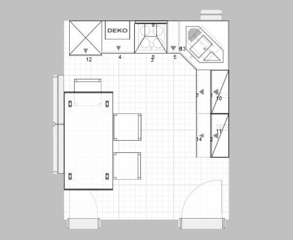
So, ich hab jetzt mal probiert die Eckspüle drin zu lassen, ich denke wenn das ist es so am praktikabelsten mit einem kleinen handtuchunterschrank zwischen herd und Spüle, die GSp neben dem Herd, dann kann man den Müll noch öffnen (gibt es so im Schrank versenkbare Türen? Dann wäre es noch unproblematischer) auch wenn jemand an GSp oder Herd muss.
 

Anhänge

  • 1.JPG
    1.JPG
    35,4 KB · Aufrufe: 193
  • 2.jpg
    2.jpg
    39,1 KB · Aufrufe: 198
AW: Küchenplanung

Spülmaschine nach links ist mal eine gute Idee, Queenie :top::top:, dakönnte man rechts die beiden Unterschränke sogar noch breiter machen.

Wenn das Abluftloch ca. 100 cm von der rechten Wand entfernt ist, wirst du mit Eckspüle und freihängender DAH auch nicht vor dem Abluftloch landen. Und ob man dann 20 oder 50 cm den Kanal nach rechts rüberführt, ist eigentlich relativ egal.

In welcher Höhe ist das Abluftloch denn? Und, welchen Durchmesser hat es? Moderne Hauben hätten da gerne 125 bis 150 mm Durchmesser.
 
AW: Küchenplanung

@taylor
Der Herd muss etwas an der Stelle stehen, weil dort Abluft vorgesehen ist. Die Spüle muss ebenfalls etwa dort stehen, weil dort die Anschlüsse sind, das könnte man aber ändern.

Ich finde, dass die Spüle in der Ecke am wenigsten brauchbaren Platz von der Arbeitsplatte kostet.

@littlequeen, welchen Unterschied macht es, ob der GSP oben oder rechts steht?
Ich finde es besser, wenn man neben dem Herd einen Platz für Töpfe hat.

@Kerstin
ich kann die genaue Position nicht bestimmen, da ich wie schon geschrieben nicht in die Wohnung rein komme, auch wenn mir das Haus gehört.
 
AW: Küchenplanung

Ich würde dann aber tatsächlich nach einem 6 rastrigen Hersteller suchen, da dies 1 Schublade mehr Stauraum pro Schrank bringt. Was in eurer Küche sicherlich nicht schadet.

Und den Tisch vielleicht dann so stellen für den Alltag wenn ihr nur zu zweit seit.

littlequeen

Nachtrag: dann aber aufpassen das die Eckspüle wenn sie eine Tür bekommt auch richtig rum aufgeht....
 

Anhänge

  • 3.JPG
    3.JPG
    36,2 KB · Aufrufe: 182
  • 4.jpg
    4.jpg
    52,3 KB · Aufrufe: 197
AW: Küchenplanung

Man könnte es rechts der Spüle auch mit 2 90er machen

Der Strich an der Spüle symbolisiert die Tür, ich würde sie so anschlagen lassen.
 

Anhänge

  • 6.JPG
    6.JPG
    36 KB · Aufrufe: 190
AW: Küchenplanung

Das ist doch klar, welchen Unterschied es macht. Der Herd rückt etwas von der Spüle ab und damit bleibt dort eh nur 60 cm Platz, genau richtig für die GSP. Auf der rechten Seite können dann 2x90er Unterschränke gestellt werden, die das beste Platz-/Leistungsverhältnis bieten.
 
AW: Küchenplanung

Und mal ehrlich, so weit ist der 90 er jetzt auch nicht entfernt vom Herd... wenn die Schubalde auf ist muss die dich nicht einmal bewegen um an die Töpfe zu kommen ;-)

AAAABBBEERR durch meine Anordnung könnten die Schubladen wenigstens noch geöffnet werden ohne sofort den Koch zu verscheuchen...

Das Kästchen soll die Schubalde darstellen

Bei einem 6 er Raster hättest du 2 Schubalden und 2 Auszüge, oder 3 Auszüge, und das bei meiner Planung 2x90cm, dementsprechend auch die Hängeschränke 90 cm.

Wenn ich von deiner letzten Planung ausgehe und sehe wie weit zur Tür du da die Schränke geplant hast könnte man sogar auf 2x1m gehen, ich persönlich fänd das jedoch etwas zu eng, das kommt dann aber auch auf euren benötigten Stauraum an.
 

Anhänge

  • 7.JPG
    7.JPG
    35,7 KB · Aufrufe: 186
AW: Küchenplanung

Queenie, da hast du einen richtigen Katalysator gebracht :top: ... ich habe das ganze jetzt noch mal mit der rechteckigen Eckspüle und einer 60er Spüle geplant. Restebecken und Abtropfe sind dann quasi über der toten Ecke.

- Kühlschrank
- 60er GSP
- 60er Herd/Kochfeld
- 50er Unterschrank wie dieser hier:
kf_philmax_20110711_LQBasis_Var4_50erUnterschrank.jpg ... allerdings könnte man die beiden Innenauszüge weglassen und oben dann einen ausziehbaren Handtuchhalter integrieren. Unten der Frontauszug kann dann Essig-/Ölflaschen etc. beherbergen. Evtl. läßt sich das auch noch anders nutzen.
- Eckspülenschrank
- dann 2x90er Auszugsunterschränke, wobei ich auch für einen 6rasterigen Hersteller wie Beckermann , Bauformat , Schüller oder Häcker plädiere.

Das ergibt zusammen mit der freihängenden DAH in angenehmer Breite ein modernes Bild. Ich habe hier mal unter der Decke eine Abluftkanal-Verkleidung mit angebracht, die dann gleichzeitig noch Einbaustrahler für die APL-Beleuchtung aufnehmen könnte.
 

Anhänge

  • kf_philmax_20110711_LQBasis_Var4.kpl
    4,1 KB · Aufrufe: 174
  • kf_philmax_20110711_LQBasis_Var4.POS
    9,9 KB · Aufrufe: 183
  • kf_philmax_20110711_LQBasis_Var4_Ansicht1.jpg
    kf_philmax_20110711_LQBasis_Var4_Ansicht1.jpg
    35,3 KB · Aufrufe: 190
  • kf_philmax_20110711_LQBasis_Var4_Ansicht2.jpg
    kf_philmax_20110711_LQBasis_Var4_Ansicht2.jpg
    28,4 KB · Aufrufe: 198
  • kf_philmax_20110711_LQBasis_Var4_Ansicht3.jpg
    kf_philmax_20110711_LQBasis_Var4_Ansicht3.jpg
    37,4 KB · Aufrufe: 188
  • kf_philmax_20110711_LQBasis_Var4_Grundriss.jpg
    kf_philmax_20110711_LQBasis_Var4_Grundriss.jpg
    21,9 KB · Aufrufe: 178
AW: Küchenplanung

Statt dem 50er ist besser ein 30er mit Innenauszügen für Gewürze/Öle usw. und ein 15er für die Handtücher und zum senkrechten Einstellen nicht benötigter Backbleche. Denn links von der GSP muss noch eine Wange hin.

kf_philmax_20110711_LQBasis_Var4a_Ansicht1.jpg
 
AW: Küchenplanung

Hallo,

Kerstin, jetzt wird ein Schuh daraus :2daumenhoch:

@ Philmax: Ist die Abtropffläche Pflicht?
Die würde ich hier weglassen, weil es einfach ohne besser aussieht.

Ich habe die letzten 20 Jahre keine Abtropffläche sondern nur ein Spülbecken.
Das ging wunderbar, sieht chicker aus und Du hast noch Arbeitsfläche gewonnen.
 
AW: Küchenplanung

;D wenn's Dich glücklich macht :cool:. Deine letzte Lösung oder die von Kerstin

:2daumenhoch: jetzt wird's ne funktionierende Küche
 
AW: Küchenplanung

Ist das ein Eckrondell da hinten? Wenn ja, dann spricht u.a. genau DAS dagegen.
Außerdem sieht der Hänger neben der DAH seltsam aus.

Ich finde Kerstins letzte Variante am besten, vor allem bei der Lösung rund um die DAH. Sieht nicht so gequetscht aus.
 
AW: Küchenplanung

Also di Spülenposition finde ich viel besser als in der Ecke.

Ausgehend von deiner letzten Planung hier nur kleine Änderungen zur Optimierung, GSp nach außen und größere Unterschränke.

Über den Hänger neben der DAh würde ich noch einmal nachdenken, vielleicht durch 1-2 Regalbretter erstezen die nicht bis an die DAH ran gehen? Ansonsten über eine Unterbauhaube nachdenken.

littlequeen

mit ein bisschen Handwerklichen Geschick könnte man dort doch auch die Micro in einer Höhe Positionieren die für die Dame des hauses noch angenehm ist, die aber auf der APL nicht stört (darunter könnte der brotkasten stehen oder so.

Nachtrag: Zur Aufteiling: Eine GSp ist ganz außen immer am besten aufgehoben, dann muss man nur in eine Richtung ausräumen, deswegen von rechts

60 GSP
60 Spüle
100 Auszug (überlege dir doch lieber auf 6 Raster zu gehen, gibt mehr Stauraum)
Tote Ecke
15 Handtuchschrank
60 Herd
90 Auszug
Kühli

Über der Spülenzeile Hänger in 80-60-80, oder wie auch immer du 220cm aufteilen magst.
 

Anhänge

  • B.JPG
    B.JPG
    36,6 KB · Aufrufe: 179
  • B1.jpg
    B1.jpg
    34,8 KB · Aufrufe: 202
  • B.KPL
    4,1 KB · Aufrufe: 164
  • B.POS
    7,6 KB · Aufrufe: 167
  • B3.jpg
    B3.jpg
    28,3 KB · Aufrufe: 187
  • B4.jpg
    B4.jpg
    28,2 KB · Aufrufe: 179

Ähnliche Beiträge

Neff Hausgeräte Ballerina Küchen Blum Bewegungstechnologie Weibel - Intelligente Küchenlüftung

Neff Spezial

Blum Zonenplaner

Weibel Abluft-Tuning

Weibel Abluft-Tuning
Zurück
Oben