k_adorna
Mitglied
- Beiträge
- 1
Guten Morgen,
zum ersten Mal planen wir eine "richtige" Küche für die neue Mietwohnung, in die wir am 1. Juni ziehen. Nach anfänglichem Frust sind wir nun auf einem ganz guten Weg (hoffe ich).
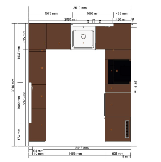
Anbei habe ich die derzeitige Planung, den Grundriss und auch ein Foto der Küche, wie sie derzeit noch bestückt ist, hochgeladen. Bei unserem Entwurf gibt es eine tote Ecke (hinten links). Ansonsten denke ich aber, dass diese Variante die Beste für diese Räumlichkeit ist. Oder?:-/
Ein paar Hinweise zu den bisher geplanten Elementen (beginnend links hinten Ecke):
- Geschirrspüler (Standardmaße 60er) - Hersteller noch unklar bzw. ist uns nicht so wichtig
- Korpus Unterschrank für Spüle mit 2 Schubladen (60x60x80)
- Spülbecken, vermutlich Keramik
- Mischbatterie
- Korpus Eckunterschrank (80x88x80 mit Eckunterschrank-Karussell)
- Korpus Unterschrank mit einer großen (60x40) und zwei kleinen Schublade (60x20)
- Induktionskochfeld - Hersteller noch unklar bzw. ist uns nicht so wichtig
- Dunstabzugshaube - Hersteller noch unklar bzw. ist uns nicht so wichtig
- Apothekerschrank (20x60x80)
- Korpus Hochschrank für Ofen und Mikrowelle (60x60x140)
- Mikrowelle - Hersteller noch unklar bzw. ist uns nicht so wichtig
- Heißluftofen mit Pyrolysereinigung - Hersteller noch unklar bzw. ist uns nicht so wichtig
- 1 Schublade unter Ofen/Mikrowelle (60x40)
- Korpus Hochschrank für Kühlschrank (60x60x140)
- Einbaukühlschrank mit Gefrierschrank - Hersteller noch unklar bzw. ist uns nicht so wichtig
- 2 x Korpus Unterschrank (80er Breite) mit je 2 Schubladen
- 1 x Korpus Unterschrank (60er Breite) mit je 2 Schubladen
- Arbeitsplatte : linke Seite 40er Breite, ansonsten 60er
Als Fronten haben wir uns weiß oder cremefarben in glänzend (ggf. Lack) vorgestellt.
Beim Material der Arbeitsplatte müssen wir uns noch entscheiden. Das hängt sicher auch vom Preis ab.
Ich würd mich freuen, wenn ihr mit eurer Expertise euren Senf zu der Planung dazu geben könntet. Am Samstag werden wir erstmal ein weiters Küchenhaus aufsuchen und den Plan dort vorlegen... sollte ich grundlegende Infos in diesem Thread vergessen haben --> seht es mir bitte nach.
PS: Das genaue Aufmaß liegt mir noch nicht vor....daher kann ich erstmal nur mit dem groben Grundriss planen. Ich hoffe, dass ich nächste Woche noch genauere Maße bekomme.
Liebe Grüße
Kathy
Checkliste zur Küchenplanung
Anzahl Personen im Haushalt: 2
Davon Kinder?: 0
Art des Gebäudes?: Neubau (2006)
Körpergrössen aller Hauptbenutzer (wegen Arbeitshöhe ) in cm: 170 und 180
Brüstungshöhe des Fensters (in cm): ca. 83 (quasi direkt über der Arbeitsplatte)
Fensterhöhe (in cm): k/a
Raumhöhe in cm: 270
Heizung: Heizkörper
Sanitäranschlüsse: variabel
Ausführung Kühlgerät: Frenchdoor ca. 90 cm breit
Kühlgerät Größe: bis 160 cm Höhe
Ausführung Tiefkühl (TK)-Gerät: Im Kühlschrank 1 Fach oben
Dunstabzugshaube: Abluft und Umluft möglich
Backofen etc. hochgebaut?: Ja
Hochgebauter Geschirrspüler ?: Nein
Kochfeldart: Induktion
Kochfeldbreite ca. (in cm)?: 60 (Standard)
Spülenform: 1 Becken, ggf. mit Abtropffläche
Geplante Heißgeräte: Einbaumikrowelle, Hochbackofen
Küchenstil: Grifflos
Sitzmöglichkeit in der Küche / im Küchenbereich: keine
Sitzmöglichkeit: Für wieviel Personen?: keine
Sitzmöglichkeit: Tisch - wenn gesonderter Tisch oder offene Küche: bereits vorhandener Tisch für 6 Personen außerhalb der Küche
Gewünschte o. vorhandene Tischgröße: 6
Wofür soll der Sitzplatz in der Küche genutzt werden? Wie häufig?: gibt keinen/soll keinen geben
Welche Arbeitshöhe ist angedacht (in cm)?: Standard (?)
Was steht auf der Arbeitsplatte oder soll dort stehen?: Wasserkocher/elek. Kaffeemühle
Welche weiteren Küchenmaschinen müssen in der Küche untergebracht werden?: Handrührgerät, Mixer, Pürierstab, Sandwichmaker
Was soll in der Küche außer den Standards untergebracht werden?: großer Wok
Welchen Stauraum gibt es sonst noch?: Speisekammer
Was/wie wird gekocht? (Alltagsküche, Menüs, Snacks usw): Alltagsküche
Wie häufig wird gekocht?: ca. täglich 1x warme Mahlzeit
Wird alleine gekocht? Oder auch gemeinsam? Mit und für Gäste?: Zu zweit
Was stört an der bisherigen Küche und was soll die neue Küche unbedingt können? /
Warum?: /
Welche Mülltrennung soll in der Küche vorgehalten werden?: Gelber Sack Müll, Restmüll
Steht schon ein Küchenhersteller fest oder wird bevorzugt?: nein
Steht schon ein Gerätehersteller fest oder wird bevorzugt?: nein
Preisvorstellung (Budget): bis 6.000,- inkl. Einbau
zum ersten Mal planen wir eine "richtige" Küche für die neue Mietwohnung, in die wir am 1. Juni ziehen. Nach anfänglichem Frust sind wir nun auf einem ganz guten Weg (hoffe ich).
Anbei habe ich die derzeitige Planung, den Grundriss und auch ein Foto der Küche, wie sie derzeit noch bestückt ist, hochgeladen. Bei unserem Entwurf gibt es eine tote Ecke (hinten links). Ansonsten denke ich aber, dass diese Variante die Beste für diese Räumlichkeit ist. Oder?:-/
Ein paar Hinweise zu den bisher geplanten Elementen (beginnend links hinten Ecke):
- Geschirrspüler (Standardmaße 60er) - Hersteller noch unklar bzw. ist uns nicht so wichtig
- Korpus Unterschrank für Spüle mit 2 Schubladen (60x60x80)
- Spülbecken, vermutlich Keramik
- Mischbatterie
- Korpus Eckunterschrank (80x88x80 mit Eckunterschrank-Karussell)
- Korpus Unterschrank mit einer großen (60x40) und zwei kleinen Schublade (60x20)
- Induktionskochfeld - Hersteller noch unklar bzw. ist uns nicht so wichtig
- Dunstabzugshaube - Hersteller noch unklar bzw. ist uns nicht so wichtig
- Apothekerschrank (20x60x80)
- Korpus Hochschrank für Ofen und Mikrowelle (60x60x140)
- Mikrowelle - Hersteller noch unklar bzw. ist uns nicht so wichtig
- Heißluftofen mit Pyrolysereinigung - Hersteller noch unklar bzw. ist uns nicht so wichtig
- 1 Schublade unter Ofen/Mikrowelle (60x40)
- Korpus Hochschrank für Kühlschrank (60x60x140)
- Einbaukühlschrank mit Gefrierschrank - Hersteller noch unklar bzw. ist uns nicht so wichtig
- 2 x Korpus Unterschrank (80er Breite) mit je 2 Schubladen
- 1 x Korpus Unterschrank (60er Breite) mit je 2 Schubladen
- Arbeitsplatte : linke Seite 40er Breite, ansonsten 60er
Als Fronten haben wir uns weiß oder cremefarben in glänzend (ggf. Lack) vorgestellt.
Beim Material der Arbeitsplatte müssen wir uns noch entscheiden. Das hängt sicher auch vom Preis ab.
Ich würd mich freuen, wenn ihr mit eurer Expertise euren Senf zu der Planung dazu geben könntet. Am Samstag werden wir erstmal ein weiters Küchenhaus aufsuchen und den Plan dort vorlegen... sollte ich grundlegende Infos in diesem Thread vergessen haben --> seht es mir bitte nach.
PS: Das genaue Aufmaß liegt mir noch nicht vor....daher kann ich erstmal nur mit dem groben Grundriss planen. Ich hoffe, dass ich nächste Woche noch genauere Maße bekomme.
Liebe Grüße
Kathy
Checkliste zur Küchenplanung
Anzahl Personen im Haushalt: 2
Davon Kinder?: 0
Art des Gebäudes?: Neubau (2006)
Körpergrössen aller Hauptbenutzer (wegen Arbeitshöhe ) in cm: 170 und 180
Brüstungshöhe des Fensters (in cm): ca. 83 (quasi direkt über der Arbeitsplatte)
Fensterhöhe (in cm): k/a
Raumhöhe in cm: 270
Heizung: Heizkörper
Sanitäranschlüsse: variabel
Ausführung Kühlgerät: Frenchdoor ca. 90 cm breit
Kühlgerät Größe: bis 160 cm Höhe
Ausführung Tiefkühl (TK)-Gerät: Im Kühlschrank 1 Fach oben
Dunstabzugshaube: Abluft und Umluft möglich
Backofen etc. hochgebaut?: Ja
Hochgebauter Geschirrspüler ?: Nein
Kochfeldart: Induktion
Kochfeldbreite ca. (in cm)?: 60 (Standard)
Spülenform: 1 Becken, ggf. mit Abtropffläche
Geplante Heißgeräte: Einbaumikrowelle, Hochbackofen
Küchenstil: Grifflos
Sitzmöglichkeit in der Küche / im Küchenbereich: keine
Sitzmöglichkeit: Für wieviel Personen?: keine
Sitzmöglichkeit: Tisch - wenn gesonderter Tisch oder offene Küche: bereits vorhandener Tisch für 6 Personen außerhalb der Küche
Gewünschte o. vorhandene Tischgröße: 6
Wofür soll der Sitzplatz in der Küche genutzt werden? Wie häufig?: gibt keinen/soll keinen geben
Welche Arbeitshöhe ist angedacht (in cm)?: Standard (?)
Was steht auf der Arbeitsplatte oder soll dort stehen?: Wasserkocher/elek. Kaffeemühle
Welche weiteren Küchenmaschinen müssen in der Küche untergebracht werden?: Handrührgerät, Mixer, Pürierstab, Sandwichmaker
Was soll in der Küche außer den Standards untergebracht werden?: großer Wok
Welchen Stauraum gibt es sonst noch?: Speisekammer
Was/wie wird gekocht? (Alltagsküche, Menüs, Snacks usw): Alltagsküche
Wie häufig wird gekocht?: ca. täglich 1x warme Mahlzeit
Wird alleine gekocht? Oder auch gemeinsam? Mit und für Gäste?: Zu zweit
Was stört an der bisherigen Küche und was soll die neue Küche unbedingt können? /
Warum?: /
Welche Mülltrennung soll in der Küche vorgehalten werden?: Gelber Sack Müll, Restmüll
Steht schon ein Küchenhersteller fest oder wird bevorzugt?: nein
Steht schon ein Gerätehersteller fest oder wird bevorzugt?: nein
Preisvorstellung (Budget): bis 6.000,- inkl. Einbau
Anhänge
Zuletzt bearbeitet:
