dn1305
Mitglied
- Beiträge
- 145
Hallo,
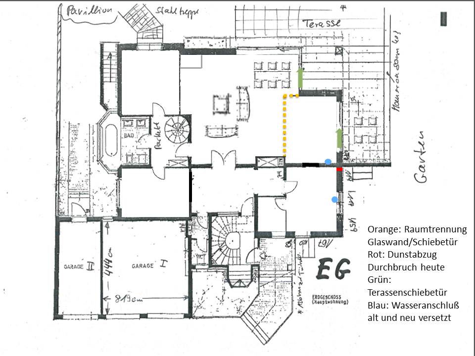
wie in der Überschrift angedeutet, haben wir den Plan gefasst unsere Küche zu versetzen.
Sie „wandert“ einen Raum weiter in das jetzige Esszimmer.
Es soll eine komplett neue Küche gekauft werden. Aus der alten Küche entsteht ein weiteres Zimmer.
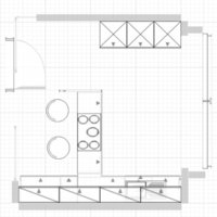
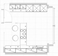
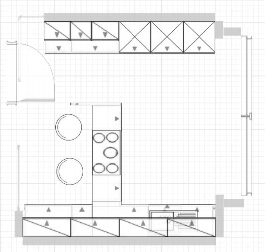
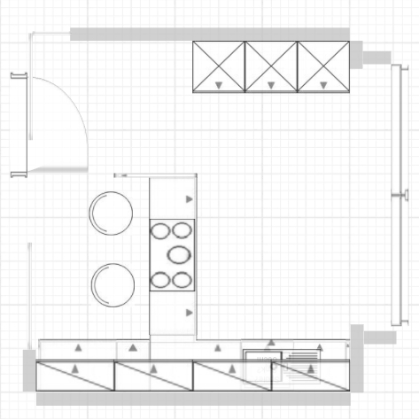
Ich habe mal ein paar Bilder und Pläne hochgeladen.
Idee:
Es soll keine offene Wohnküche werden.
Der Küchenbereich soll wenn alles steht mit einer Glaswand inkl. Glasschiebetür vom WZ getrennt werden.
Glaswand weil wir Fussbodenhzg. haben und andere Wandkonstruktionen Bohrungen mit sich bringen, die vermieden werden sollen.
Ebenso wird die jetzige Tür zwischen Küche und EZ komplett zugemauert.
Die Wasseranschlüsse werden an der Wand entlang versetzt. Habe ich auch grob eingezeichnet.
Bisher dachte ich daran den Wanddurchbruch für die Dunstabzugshaube nicht zu nutzen, sondern auf Umluft umzusteigen.
Das hat einige Gründe:
1. Kamin im gleichen Raum. Aber keine Fenster, sondern nur bodentiefe Terassentüren, also auch keine Möglichkeit zur Frischluftzufuhr bei Dunstabzugnutzung und Kamin. (Wenn ich davon absehe, die Türen zu öffnen.)
Hoffe, ich habe das so richtig verstanden, mit Frischluft, Kippschalter etc.
2. Je nachdem, wo die Kochstelle ist (unsere Idee: in einer T-Förmigen Halbinsel), hat man eine unschöne Haube im Sichtfeld und auch den Weg zum Ausgang (Abluftrohr) muss man bewältigen.
3. Rohrverkleidung im neuen/alten Zimmer notwendig. Sieht wahrscheinlich nicht so schön aus.
Wie bereits erwähnt, überlegen wir eine T-Förmige Halbinsel auf der einen Seite und ein paar Schränke auf der gegenüberliegenden Seite zu machen. Dort könnte auch der Kühlschrank, Backofen und ähnliches sein.
Insgesamt soll es 2-3 Sitzplätze geben. Gerne mit der Insel verbunden.
Ich habe mal so eine Idee skizziert und angehangen.
Bin auch dabei das Ganze im Alno Planer zu designen, aber ich wollte gerne um ein Feedback bitten, ob der Ansatz richtig ist, oder was man besser/anders machen kann.
Vielen Dank
DN
Checkliste zur Küchenplanung
Anzahl Personen im Haushalt: 3
Davon Kinder?: 1
Art des Gebäudes?: Bestandsbau, (kleinere) Umbauten möglich
Körpergrössen aller Hauptbenutzer (wegen Arbeitshöhe ) in cm: 181, 165
Brüstungshöhe des Fensters (in cm): -
Fensterhöhe (in cm):
Raumhöhe in cm: 270
Heizung: Fussbodenheizung
Sanitäranschlüsse: variabel an aktueller Wand
Ausführung Kühlgerät: Integriert im Hochschrank (60cm)
Kühlgerät Größe: noch unbekannt
Ausführung Tiefkühl (TK)-Gerät: Im Kühlschrank ab 3 Schubladen unten
Dunstabzugshaube: Umluft
Backofen etc. hochgebaut?: Wenn möglich
Hochgebauter Geschirrspüler ?: Nein
Kochfeldart: Induktion
Kochfeldbreite ca. (in cm)?: 83
Spülenform: 1 Becken mit Abtropffläche
Geplante Heißgeräte: Standmikrowelle, Backofen
Küchenstil: Grifflos
Sitzmöglichkeit in der Küche / im Küchenbereich: Überstehende Arbeitsplatte
Sitzmöglichkeit: Für wieviel Personen?: für 4 Personen
Sitzmöglichkeit: Tisch - wenn gesonderter Tisch oder offene Küche: Vorhandener Tisch
Gewünschte o. vorhandene Tischgröße: flexibel
Wofür soll der Sitzplatz in der Küche genutzt werden? Wie häufig?: Gelegentliches Essen, für zweite-dritte Person bei Kochen
Welche Arbeitshöhe ist angedacht (in cm)?: ca. 90 (ausgehend von der jetzigen Höhe)
Was steht auf der Arbeitsplatte oder soll dort stehen?: Kaffeemaschine, Wasserkocher, Messerblock, Toaster, Brotbehälter, Obstschale
Welche weiteren Küchenmaschinen müssen in der Küche untergebracht werden?: Küchenmaschine, Wasserkocher, Toaster, Eierkocher
Was soll in der Küche außer den Standards untergebracht werden?: Staubsauger/Wischer etc., Geschirr komplett (nichts in Ess-/Wohnzimmer)
Welchen Stauraum gibt es sonst noch?: Keller
Was/wie wird gekocht? (Alltagsküche, Menüs, Snacks usw): Alltagsküche
Wie häufig wird gekocht?ab und zu[/COLOR]
Wird alleine gekocht? Oder auch gemeinsam? Mit und für Gäste?: Gemeinsam; Gäste eher weniger
Was stört an der bisherigen Küche und was soll die neue Küche unbedingt können? Warum?: Küche wird versetzt; außerdem ist die alte Küche schon in die Jahre gekommen
Welche Mülltrennung soll in der Küche vorgehalten werden?: Altpapier, Biomüll, Gelber Sack Müll, Restmüll
Steht schon ein Küchenhersteller fest oder wird bevorzugt?: Nobilia
Steht schon ein Gerätehersteller fest oder wird bevorzugt?: Nein
Preisvorstellung (Budget): bis 15.000,-
wie in der Überschrift angedeutet, haben wir den Plan gefasst unsere Küche zu versetzen.
Sie „wandert“ einen Raum weiter in das jetzige Esszimmer.
Es soll eine komplett neue Küche gekauft werden. Aus der alten Küche entsteht ein weiteres Zimmer.
Ich habe mal ein paar Bilder und Pläne hochgeladen.
Idee:
Es soll keine offene Wohnküche werden.
Der Küchenbereich soll wenn alles steht mit einer Glaswand inkl. Glasschiebetür vom WZ getrennt werden.
Glaswand weil wir Fussbodenhzg. haben und andere Wandkonstruktionen Bohrungen mit sich bringen, die vermieden werden sollen.
Ebenso wird die jetzige Tür zwischen Küche und EZ komplett zugemauert.
Die Wasseranschlüsse werden an der Wand entlang versetzt. Habe ich auch grob eingezeichnet.
Bisher dachte ich daran den Wanddurchbruch für die Dunstabzugshaube nicht zu nutzen, sondern auf Umluft umzusteigen.
Das hat einige Gründe:
1. Kamin im gleichen Raum. Aber keine Fenster, sondern nur bodentiefe Terassentüren, also auch keine Möglichkeit zur Frischluftzufuhr bei Dunstabzugnutzung und Kamin. (Wenn ich davon absehe, die Türen zu öffnen.)
Hoffe, ich habe das so richtig verstanden, mit Frischluft, Kippschalter etc.
2. Je nachdem, wo die Kochstelle ist (unsere Idee: in einer T-Förmigen Halbinsel), hat man eine unschöne Haube im Sichtfeld und auch den Weg zum Ausgang (Abluftrohr) muss man bewältigen.
3. Rohrverkleidung im neuen/alten Zimmer notwendig. Sieht wahrscheinlich nicht so schön aus.
Wie bereits erwähnt, überlegen wir eine T-Förmige Halbinsel auf der einen Seite und ein paar Schränke auf der gegenüberliegenden Seite zu machen. Dort könnte auch der Kühlschrank, Backofen und ähnliches sein.
Insgesamt soll es 2-3 Sitzplätze geben. Gerne mit der Insel verbunden.
Ich habe mal so eine Idee skizziert und angehangen.
Bin auch dabei das Ganze im Alno Planer zu designen, aber ich wollte gerne um ein Feedback bitten, ob der Ansatz richtig ist, oder was man besser/anders machen kann.
Vielen Dank
DN
Checkliste zur Küchenplanung
Anzahl Personen im Haushalt: 3
Davon Kinder?: 1
Art des Gebäudes?: Bestandsbau, (kleinere) Umbauten möglich
Körpergrössen aller Hauptbenutzer (wegen Arbeitshöhe ) in cm: 181, 165
Brüstungshöhe des Fensters (in cm): -
Fensterhöhe (in cm):
Raumhöhe in cm: 270
Heizung: Fussbodenheizung
Sanitäranschlüsse: variabel an aktueller Wand
Ausführung Kühlgerät: Integriert im Hochschrank (60cm)
Kühlgerät Größe: noch unbekannt
Ausführung Tiefkühl (TK)-Gerät: Im Kühlschrank ab 3 Schubladen unten
Dunstabzugshaube: Umluft
Backofen etc. hochgebaut?: Wenn möglich
Hochgebauter Geschirrspüler ?: Nein
Kochfeldart: Induktion
Kochfeldbreite ca. (in cm)?: 83
Spülenform: 1 Becken mit Abtropffläche
Geplante Heißgeräte: Standmikrowelle, Backofen
Küchenstil: Grifflos
Sitzmöglichkeit in der Küche / im Küchenbereich: Überstehende Arbeitsplatte
Sitzmöglichkeit: Für wieviel Personen?: für 4 Personen
Sitzmöglichkeit: Tisch - wenn gesonderter Tisch oder offene Küche: Vorhandener Tisch
Gewünschte o. vorhandene Tischgröße: flexibel
Wofür soll der Sitzplatz in der Küche genutzt werden? Wie häufig?: Gelegentliches Essen, für zweite-dritte Person bei Kochen
Welche Arbeitshöhe ist angedacht (in cm)?: ca. 90 (ausgehend von der jetzigen Höhe)
Was steht auf der Arbeitsplatte oder soll dort stehen?: Kaffeemaschine, Wasserkocher, Messerblock, Toaster, Brotbehälter, Obstschale
Welche weiteren Küchenmaschinen müssen in der Küche untergebracht werden?: Küchenmaschine, Wasserkocher, Toaster, Eierkocher
Was soll in der Küche außer den Standards untergebracht werden?: Staubsauger/Wischer etc., Geschirr komplett (nichts in Ess-/Wohnzimmer)
Welchen Stauraum gibt es sonst noch?: Keller
Was/wie wird gekocht? (Alltagsküche, Menüs, Snacks usw): Alltagsküche
Wie häufig wird gekocht?ab und zu[/COLOR]
Wird alleine gekocht? Oder auch gemeinsam? Mit und für Gäste?: Gemeinsam; Gäste eher weniger
Was stört an der bisherigen Küche und was soll die neue Küche unbedingt können? Warum?: Küche wird versetzt; außerdem ist die alte Küche schon in die Jahre gekommen
Welche Mülltrennung soll in der Küche vorgehalten werden?: Altpapier, Biomüll, Gelber Sack Müll, Restmüll
Steht schon ein Küchenhersteller fest oder wird bevorzugt?: Nobilia
Steht schon ein Gerätehersteller fest oder wird bevorzugt?: Nein
Preisvorstellung (Budget): bis 15.000,-























