Konzept: Umzug von vorhandener Küche

Laine79

Mitglied
Beiträge
15
Hallo zusammen,

Da das Erdgeschoss nun fertig umgebaut ist, bin ich an der Küchenplanung des 1. Stockwerks (Danke nochmals für die Tipps für das Erdgeschoss https://www.kuechen-forum.de/forum/...63/9396-konzept-kuechenplanung-im-neubau.html , war sehr zufrieden!!)

Die Wohnung soll nach Fertigstellung vermietet werden, sodass ich die vorhandenen, 8 Jahre alten Küchenmöbel für den neuen Standort verwenden will und möglichst wenig Kosten hierfür einplane. Die 150m2 Wohnung ist für eine große Familie oder einer 5er Wohngemeinschaft ausgelegt. Bei Eigenbedarf werde ich dann später ähnlich dem Erdgeschoss eine Insellösung mit neuen Möbeln und Geräten bevorzugen.

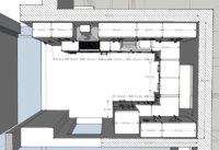
Der angehängte, skizzenhafte Grundriss stellt den planmäßigen Stand für den Eigenbedarf dar. Im HWR (Hauswirtschaftsraum) befindet sich derzeit die Küche, die ebenfalls in drei Ansichten angehängt ist. HWR soll aber vorerst als Gästezimmer dienen, Esszimmer sollte als eine Art Esszimmer/Wohnzimmer Kombination dienen.

Hinweise zur Alten Küche:

So schön angeordnet werde ich diese Küche am neuen Standort wohl nicht mehr aufbauen können. Sehr schade! In den Zeichnungen werden Anordnung und Maße der Küche und der einzelnen Möbel deutlich.

Unterschränke sind 90cm hoch und 60cm tief, Hochschränke sind 75cm hoch und 30cm tief.

Zur Beschreibung einzelner Komponenten:

1 Besenschrank (45*220*30)
2 Schubladenschrank (50*90*60)
3 Herdkombination und Abzugshaube (60*90*60)
4 Schubladenschrank + Klappe (30*90*60)
5 Spülmaschine (60*90*60)
6 Unterschrank Waschbecken (60*90*60)
7 Eckschrank 80*80
8/9 Besteckschubladen (50*12*60)
10 Eckschrank 80*80
11 Unterschrank mit innenliegenden Schubladen (50*90*60)
12 Kühlschrank und Stauraum (60*200*60)
13 Oberschrank mit inliegenden Fachböden (50*75*30)
14 Oberschrank mit inliegenden Fachböden (90*75*30)
15 Oberschrank mit Glasfront (60*50*30)
16 Oberschrank mit inliegenden Fachböden (80*75*30)
17 Oberschrank mit inliegenden Fachböden (80*75*30)
18 Oberschrank mit inliegenden Fachböden (50*75*30)


Hinweise zum neuen Standort:
Die offene Küche sollte in L-Form angelegt werden. Im Anschluss an die Küche könnte sich dann das Esszimmer befinden. Im Falle einer Nutzung der Wohngemeinschaft ist dieser Raum dann Küche, Esszimmer und Wohnzimmer.

Der Dunstabzug sollte nahe der Balkontüre montiert werden, um hier einen Abzug installieren zu können. Die Sanitäranschlüsse sind an der selben Wand (3,31m) vorgesehen. Somit sollte sich auch das Waschbecken und die Spülmaschine dort befinden. Alles andere ist frei wählbar.
Ich habe schon eine ganze Weile mit den vorhandenen Komponenten gespielt, leider ist mir bisher noch keine vernünftige Lösung eingefallen (siehe Skizze). Zwischen Besenschrank (1) und Herdkombination (3) passt nichts mehr dazwischen, ich weiß nicht, ob ich hier vllt ein kleines Regal installieren soll. In der Ecke zwischen 13 und 18 habe ich mir auch eine Regallösung vorgestellt. Übrig bleiben bei dieser Anordnung: Besteckschubladen (8,9), Eckschrank (10), Glasoberschrank (15) und ein Doppelhochschrank (16).

Vielleicht habt ihr noch ein paar Tipps für mich. Ich komme im Moment nicht so recht weiter.


Checkliste zur Küchenplanung von Laine79

Anzahl Personen im Haushalt : 5
Davon Kinder? : keine
Körpergrössen aller Hauptbenutzer (wegen Arbeitshöhe ) in cm : 1,75 bis 1,85 cm
Art des Gebäudes? : Bestandsbau, (kleinere) Umbauten möglich
Brüstungshöhe des Fensters (in cm) : kein Fenster
Fensterhöhe (in cm) : kein Fenster
Raumhöhe in cm: : 234 cm
Heizung : Keine Heizung
Sanitäranschlüsse : variabel an aktueller Wand
Ausführung Kühlgerät? : Integriert im Hochschrank (60cm)
Kühlgerät Größe : bis 88 cm Höhe
Ausführung Tiefkühl (TK)-Gerät : Nicht erforderlich bzw. steht woanders
Dunstabzugshaube? : Abluft
Hochgebauter Backofen ? : Nein
Hochgebauter Geschirrspüler ? : nein
Kochfeldart? : Ceran (herkömmlich)
Kochfeldbreite ca. (in cm)? : 60 cm
Spülenform: : 2 Becken mit Abtropffläche
Weitere geplante Heißgeräte : Standmikrowelle, Einbaukaffeeautomat
Küchenstil? : klassisch
Sitzmöglichkeit in der Küche / im Küchenbereich als : Gesonderter Tisch
Sitzmöglichkeit: Für wieviel Personen? : für 6 Personen
Sitzmöglichkeit: Tisch - wenn gesonderter Tisch oder offene Küche : Vorhandener Tisch
Gewünschte o. vorhandene Tischgröße : 160 x 80 cm
Wofür soll der Sitzplatz in der Küche genutzt werden? Wie häufig? : Küchen/Esszimmer kombiniert. Häufig.
Welche Arbeitshöhe ist angedacht (in cm)? : 90 cm
Was steht auf der Arbeitsplatte oder soll dort stehen? : Kaffeemaschine, Wasserkocher, Obstschale
Welche weiteren Küchenmaschinen müssen in der Küche untergebracht werden? :
Was soll in der Küche außer den Standards untergebracht werden? : Geschirr komplett (nichts in Ess-/Wohnzimmer)
Welchen Stauraum gibt es sonst noch? : Keller
Was/wie wird gekocht? (Alltagsküche, Menüs, Snacks usw) : Alltagsküche
Wie häufig wird gekocht? : (fast) täglich 1x warm
Wird alleine gekocht? Oder auch gemeinsam? Mit und für Gäste? : alleine und gemeinsam
Was stört an der bisherigen Küche und was soll die neue Küche unbedingt können? Warum? : Am neuen Standort ist die Sicht auf den See gegeben. Die neue Küche war perfekt angeordnet, der Raum wird in Zukunft für ein Gästezimmer genutzt.
Steht schon ein Küchenhersteller fest oder wird bevorzugt? : Vorhandene Küche
Steht schon ein Gerätehersteller fest oder wird bevorzugt? : Vorhandene Geräte
Preisvorstellung (Budget) : bis 3.000,-
 

Anhänge

  • Grundriss_ges.jpg
    Grundriss_ges.jpg
    60,9 KB · Aufrufe: 216
  • Grundriss.jpg
    Grundriss.jpg
    57,6 KB · Aufrufe: 216
  • küche_alt1.jpg
    küche_alt1.jpg
    67,4 KB · Aufrufe: 198
  • küche_alt2.jpg
    küche_alt2.jpg
    75,6 KB · Aufrufe: 214
  • küche_alt3.jpg
    küche_alt3.jpg
    66,9 KB · Aufrufe: 198
  • küche_neu1.jpg
    küche_neu1.jpg
    44,6 KB · Aufrufe: 209
  • küche_neu_Konzept.jpg
    küche_neu_Konzept.jpg
    60,8 KB · Aufrufe: 346
Zuletzt bearbeitet:
AW: Konzept: Umzug von vorhandener Küche

Bitte hänge einen Gesamtgrundriss ein, sowie einen vermassten Küchengrundriss in dem die Sanitäranschlüsse eingezeichnet sind.
 
AW: Konzept: Umzug von vorhandener Küche

Hallo Laine, ich habe schon mal versucht einen Alnoplan zu erstellen, bitte berichtige das, was nicht richtig ist und stelle die vorhandenen Schränke in den Raum. So ist es etwas müßig, sich alles herauszusuchen, zumal es nicht mal ordentlich aufgelistet ist.
 

Anhänge

  • laine.KPL
    4,1 KB · Aufrufe: 202
  • laine.POS
    4,9 KB · Aufrufe: 214
  • laine Grundriss.PNG
    laine Grundriss.PNG
    50,4 KB · Aufrufe: 200
AW: Konzept: Umzug von vorhandener Küche

Hallo,

danke für die Antworten.
Ich habe den Grundriss angehängt. Eine genaue Position für die Sanitäranschlüsse steht nicht fest und kann (wie schon beschrieben) beliebig an der längeren Wand des "L-Profiles" gewählt werden.

Das ALNO -Planer Programm bekomme ich bei mir nicht zum laufen. Ich habe versucht, die Komponenten noch genauer zu beschreiben und den Grundriss zu bemaßen. Wenn es jemandem hilft, könnte ich die Sketchup-Dateien zur Verfügung stellen.
 
AW: Konzept: Umzug von vorhandener Küche

habe jetzt erst mal die Möbel in Connys Raum geworfen;-)
 

Anhänge

  • laine Küchenmöbel.KPL
    4,1 KB · Aufrufe: 226
  • laine Küchenmöbel.POS
    7,7 KB · Aufrufe: 200
  • Küchenmöbel.JPG
    Küchenmöbel.JPG
    31,1 KB · Aufrufe: 313
AW: Konzept: Umzug von vorhandener Küche

So, und den Raum hab ich jetzt auch noch angepasst....
wenn ich nix vergessen habe, müsste jetzt alles stimmen....

Ring frei;-)
 

Anhänge

  • Küchenmöbel und berichtiger Raum.JPG
    Küchenmöbel und berichtiger Raum.JPG
    30,9 KB · Aufrufe: 219
  • Laine Küchenmöbel und berichtigter Grundriss.POS
    7,9 KB · Aufrufe: 241
  • Laine Küchenmöbel und berichtigter Grundriss.KPL
    4,1 KB · Aufrufe: 198
AW: Konzept: Umzug von vorhandener Küche

bitte nich böse sein:kiss: :kiss::kiss:

Aber bei diesen Möbeln kann man ja nur eine Küche basteln, die genau das wird, was wir immer versuchen zu verbessern....da kräuseln sich gerade meine Nackenhaare.....

geh jetzt erst mal nen Kaffee trinken....

boewu20.gif


Vielleicht kommt ja noch die Erleuchtung:-):-)
 
AW: Konzept: Umzug von vorhandener Küche

ich komm auch nicht auf eine schöne Planung.

Stimmen deine Angaben, dass die beiden Hochschränke unterschiedlich hoch sind?


@ Bastler, kann man die Schränke irgendwie gleich hoch bekommen?
Besenschrank 2,20 Geräteschrank 2,00m
 
AW: Konzept: Umzug von vorhandener Küche

Ich würde zumindest überdenken, ob wirklich Herd bzw. DAH und die Wasseranschlüsse an die Wand mit der Balkontür kommen müssen. Andernfalls hast Du bei den vorhandenen Möbeln den Geschirrspüler direkt neben dem Herd.

Vor allem würde ich beim Installieren der Anschlüsse an den von Dir erwähnten späteren Eigenbedarf denken, also schon mal überlegen, wie dann die Küche sein sollte und entsprechend schauen, wie sich diese dann realisieren lässt, ohne dass Du alle Anschlüsse wieder umlegen musst.
 
AW: Konzept: Umzug von vorhandener Küche

ah, ich weiß es nicht kleiner machen.....den kürzeren Schrank oben verkleiden...Mensch bin ich blöd.
 
AW: Konzept: Umzug von vorhandener Küche

Könntest du bitte anhand dieses Grundrisses mal definieren oder mit einem Paint-Programm markieren, welches "die Lange Wand des L" ist?
90442d1346414629-konzept-umzug-von-vorhandener-kueche-kuechenmoebel.jpg


AH, jetzt habe ich es gerade gelesen .. die Wand planrechts unterhalb der Balkontür ist es.

__________________________Ich verstehe es so, dass du eigentlich erstmal einen Plan haben möchtest, wie die Küche bei Eigennutzung ideal eingerichtet sein kann. Daraus ergeben sich dann Wasser, Kochfeld/DAH-Position. Und dann soll für diese Positionen angepaßt die vorhandene Küche bestmöglich eingesetzt werden, da die Wohnung zunächst nur vermietet wird.

Das ist allerdings jetzt nur der erste Versuch für die neuen Möbel - oder:
90435d1346350721-konzept-umzug-von-vorhandener-kueche-kueche_neu_konzept.jpg
 
AW: Konzept: Umzug von vorhandener Küche

ich muss gleich weg, hab leider keine Zeit für Erklärungen, die ergänze ich heute abend nochmal...

kurz...neue günstige Umlufthaube, brauchst du kein Loch....
ansonsten hat Pari recht...

so mal ganz fix...bis auf 3 Oberschränke alles verbaut....
 

Anhänge

  • 1_Tara.KPL
    4,1 KB · Aufrufe: 229
  • 1_Tara.POS
    8,5 KB · Aufrufe: 212
  • 3.jpg
    3.jpg
    42,3 KB · Aufrufe: 235
  • Grundriss.JPG
    Grundriss.JPG
    28,3 KB · Aufrufe: 206
  • Herdseite.jpg
    Herdseite.jpg
    35,7 KB · Aufrufe: 219
  • Spülenzeile.jpg
    Spülenzeile.jpg
    36,3 KB · Aufrufe: 190
AW: Konzept: Umzug von vorhandener Küche

Ich hab mich mal an Laines Wünsche gehalten, Herd und Spülen an gewünschter Wand gelassen. Finde es aber nicht optimal, dafür hab ich alles, bis auf einen Eckschrank verbaut. :cool: Den wird man aber zum Basteln benötigen um die Hochschränke durch eine Blende, in der Höhe anzugleichen. :girlblum: ;D Für die Insel müsste man, in dieser Planung, noch ein Flaschenregal basteln.

Evtl. könnte man da ja auch Inselkochen draus machen, meine Insel wäre groß genug...;D ;-)
 

Anhänge

  • laine-conny 1.KPL
    4,1 KB · Aufrufe: 199
  • laine-conny 1.POS
    11,1 KB · Aufrufe: 183
  • laine.jpg
    laine.jpg
    27,3 KB · Aufrufe: 191
  • laine2.jpg
    laine2.jpg
    27,1 KB · Aufrufe: 200
  • laine3.jpg
    laine3.jpg
    25,1 KB · Aufrufe: 197
  • laine grundriss.PNG
    laine grundriss.PNG
    66,1 KB · Aufrufe: 203
AW: Konzept: Umzug von vorhandener Küche

Die Insel könnte man auch schmaler gestalten, sieht dann von der Seite etwas netter aus... ;D ...dafür hat man aber dann zusätzlich noch einen 50er Hängeschrank und die beiden Schubladen übrig.
 

Anhänge

  • laine4.jpg
    laine4.jpg
    29,2 KB · Aufrufe: 198
AW: Konzept: Umzug von vorhandener Küche

...und hier die Insel mit Sitzplatz. Hier sind nur die Schubladen und der Eckschrank übrig geblieben.

Welche Farbe hat die Küche eigentlich?
 

Anhänge

  • Laine-conny.KPL
    4,1 KB · Aufrufe: 207
  • laine5.jpg
    laine5.jpg
    24,8 KB · Aufrufe: 200
  • laine6.jpg
    laine6.jpg
    24,4 KB · Aufrufe: 194
  • Laine-conny.POS
    11,1 KB · Aufrufe: 211
Zuletzt bearbeitet:
AW: Konzept: Umzug von vorhandener Küche

*hüstel*

*.Pos & *.KPL sollten zusammenpassen ;-)
 
AW: Konzept: Umzug von vorhandener Küche

Ups, war etwas in Eile...:-[ Ich ändere es denn mal ganz schnell. ;-)
 
AW: Konzept: Umzug von vorhandener Küche

na, da sind ja jetzt viele Vorschläge eingegangen, ich glaub da muss ich meinen gar nicht mehr kommentieren.

Was ich vorhin noch sagen wollte, Pari und Kerstin haben es ja auch schon gesagt,
wenn du die Wohnung später mal selber nutzen willst, ist es natürlich äußerst ungünstig ein Abzugsloch in die Wand zu bohren und nach ein paar Jahren mit deiner eigenen Küchenplanung stellst du fest....uuups, ich möchte das Kochfeld aber an einer anderen Stelle haben.

Du kannst natürlich auch jetzt schon eine schöne neue Küche für den Raum planen, denke aber, dass sich evtl. Geschmack oder die Art der zur Zeit modernen Küchen wieder ändern kann. Vielleicht ist z.B, das Thema Insel (wie damals die Durchreichen) dann wieder out und man sagt....wie konnte man nur;-)
 
AW: Konzept: Umzug von vorhandener Küche

Warum willst du deinen Vorschlag nicht mehr zeigen? Vielleicht ist der viel besser als meiner. Es sind auch nicht viele Planungen, ich habe lediglich für die Insel 3 Varianten aufgezeigt. ;-)

P.S. ...wer lesen kann ist klar im Vorteil. :-[ Du hast kommentieren geschrieben. Es wird Zeit das ich zu Bett gehe! :n8:
 
Zuletzt bearbeitet:
AW: Konzept: Umzug von vorhandener Küche

Wow, erst mal vielen Dank für eure Mühe und die vielen Vorschläge. Das sind echt super Ideen dabei.

Ja ihr habt recht, einfach ein Loch in die Wand zu machen, um dann ein paar Jahre später alles wieder renovieren zu müssen ist nicht optimal. Ich muss mir überlegen, die "Feuerstelle" woanders zu platzieren. Einen Kohleabzug könnte ich mir dann noch zulegen, mal sehen was sowas kostet.

Werde mir demnächst die Vorschläge genauer ansehen, aber gerade nur wenig Zeit.
Nochmals vielen Dank, Ihr seid die besten!:top:
 
Neff Hausgeräte Ballerina Küchen Blum Bewegungstechnologie Weibel - Intelligente Küchenlüftung

Neff Spezial

Blum Zonenplaner

Weibel Abluft-Tuning

Weibel Abluft-Tuning
Zurück
Oben