Teichfee
Mitglied
- Beiträge
- 3
Titel des Themas: Kleine offene Küche und jeder Zentimeter zählt
Liebes Küchenforum,
zuerst möchte ich mich bei allen Aktiven hier für alle Tipps und Planungshilfen bedanken.
Ohne dieses Forum hätte ich alle üblichen Fehler wie z.B. Eckschränke, Apothekerschränke usw. geplant.
Einfach ein tolles Forum!
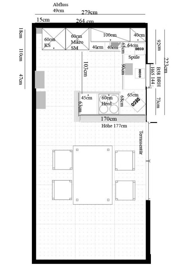
Ich habe also einige Tage lang im Alnoplaner Küchenmöbel hin und her geschoben und bin zu folgender Planung für meine Küche gekommen.
Ich wünsche mir vor allen Dingen mehr Arbeitsfläche und Abstellfläche.
Ich habe auch einen Plan meiner alten Küche angehängt darauf kann man sehen warum.
Da man ja manchmal ein Brett vorm Kopf wäre es gut wenn ihr diese mal begutachten würdet.
Die Größe der Küche kann nicht verändert werden, lediglich der Wasseranschluss soll geändert werden.
Ich hoffe ich habe alle relevanten Informationen angehängt.
Liebe Grüße
Teichfee
Checkliste zur Küchenplanung
Personenkriterien und Ergonomie
Anzahl Personen im Haushalt: 2
Davon Kinder: N. a.
Körpergrößen aller Hauptbenutzer in cm (wegen Arbeitshöhe ): 164
Welche Arbeitshöhe ist angedacht (in cm)?: 91-92
Gebäudekriterien
Art des Gebäudes: Bestandsbau > Umbauten ausgeschlossen, Eigentum
Brüstungshöhe des Fensters (in cm):
Fensterhöhe (in cm):
Raumhöhe in cm:
Heizung: N. a.
Sanitäranschlüsse: N. a.
Einbaugerätekriterien
Ausführung Kühlgerät: N. a.
Einbaukühlgerät Größe: 178cm
Ausführung Tiefkühl (TK)-Gerät: N. a.
Dunstabzugshaube: Umluft
Hochgebauter Backofen : N. a.
Geplante Heißgeräte: Standmikrowelle, Backofen ,
Hochgebauter Geschirrspüler : ja
Art des Kochfeldes: Induktion
Kochfeldbreite (ca. in cm): 60
Sitzmöglichkeiten
Sitzmöglichkeit in der Küche / im Küchenbereich: Keine
Sitzmöglichkeit: Für wieviel Personen?: N. a.
Sitzmöglichkeit: Tisch - wenn gesonderter Tisch oder offene Küche: N. a.
Gewünschte oder vorhandene Tischgröße:
Wofür soll der Sitzplatz in der Küche genutzt werden und wie häufig:
Stauraumplanung
Was steht auf der Arbeitsplatte oder soll dort stehen?: Kaffeevollautomat
Welche weiteren Küchenmaschinen müssen in der Küche untergebracht werden: Küchenmaschine, Handrührgerät, Pürierstab, Eierkocher
Was soll in der Küche außer den Standards untergebracht werden: N. a.
Welchen Stauraum gibt es sonst noch: Geschirr/Gläserschrank im Wohn-/Esszimmer
Kochgewohnheiten
Was/wie wird gekocht? (Alltagsküche, Menüs, Snacks usw): Alltagsküche
Wie häufig wird gekocht: (fast) täglich 1x warm
Wird alleine gekocht? Oder auch gemeinsam? Mit und für Gäste?: alleine
Spülen und Müll
Spülenform: Noch nicht festgelegt
Welche Mülltrennung soll in der Küche vorgehalten werden: Gelber Sack Müll, Restmüll
Sonstiges
Steht schon ein Küchenhersteller fest oder wird bevorzugt: Ballerina
Steht schon ein Gerätehersteller fest oder wird bevorzugt:
Küchenstil: Klassisch
Was stört an der bisherigen Küche und was soll die neue Küche unbedingt können? Warum?: Zu wenig Arbeits-Abstellfläche
Preisvorstellung (Budget): 15000-20000
Angehängte Dateien
Liebes Küchenforum,
zuerst möchte ich mich bei allen Aktiven hier für alle Tipps und Planungshilfen bedanken.
Ohne dieses Forum hätte ich alle üblichen Fehler wie z.B. Eckschränke, Apothekerschränke usw. geplant.
Einfach ein tolles Forum!
Ich habe also einige Tage lang im Alnoplaner Küchenmöbel hin und her geschoben und bin zu folgender Planung für meine Küche gekommen.
Ich wünsche mir vor allen Dingen mehr Arbeitsfläche und Abstellfläche.
Ich habe auch einen Plan meiner alten Küche angehängt darauf kann man sehen warum.
Da man ja manchmal ein Brett vorm Kopf wäre es gut wenn ihr diese mal begutachten würdet.
Die Größe der Küche kann nicht verändert werden, lediglich der Wasseranschluss soll geändert werden.
Ich hoffe ich habe alle relevanten Informationen angehängt.
Liebe Grüße
Teichfee
Checkliste zur Küchenplanung
Personenkriterien und Ergonomie
Anzahl Personen im Haushalt: 2
Davon Kinder: N. a.
Körpergrößen aller Hauptbenutzer in cm (wegen Arbeitshöhe ): 164
Welche Arbeitshöhe ist angedacht (in cm)?: 91-92
Gebäudekriterien
Art des Gebäudes: Bestandsbau > Umbauten ausgeschlossen, Eigentum
Brüstungshöhe des Fensters (in cm):
Fensterhöhe (in cm):
Raumhöhe in cm:
Heizung: N. a.
Sanitäranschlüsse: N. a.
Einbaugerätekriterien
Ausführung Kühlgerät: N. a.
Einbaukühlgerät Größe: 178cm
Ausführung Tiefkühl (TK)-Gerät: N. a.
Dunstabzugshaube: Umluft
Hochgebauter Backofen : N. a.
Geplante Heißgeräte: Standmikrowelle, Backofen ,
Hochgebauter Geschirrspüler : ja
Art des Kochfeldes: Induktion
Kochfeldbreite (ca. in cm): 60
Sitzmöglichkeiten
Sitzmöglichkeit in der Küche / im Küchenbereich: Keine
Sitzmöglichkeit: Für wieviel Personen?: N. a.
Sitzmöglichkeit: Tisch - wenn gesonderter Tisch oder offene Küche: N. a.
Gewünschte oder vorhandene Tischgröße:
Wofür soll der Sitzplatz in der Küche genutzt werden und wie häufig:
Stauraumplanung
Was steht auf der Arbeitsplatte oder soll dort stehen?: Kaffeevollautomat
Welche weiteren Küchenmaschinen müssen in der Küche untergebracht werden: Küchenmaschine, Handrührgerät, Pürierstab, Eierkocher
Was soll in der Küche außer den Standards untergebracht werden: N. a.
Welchen Stauraum gibt es sonst noch: Geschirr/Gläserschrank im Wohn-/Esszimmer
Kochgewohnheiten
Was/wie wird gekocht? (Alltagsküche, Menüs, Snacks usw): Alltagsküche
Wie häufig wird gekocht: (fast) täglich 1x warm
Wird alleine gekocht? Oder auch gemeinsam? Mit und für Gäste?: alleine
Spülen und Müll
Spülenform: Noch nicht festgelegt
Welche Mülltrennung soll in der Küche vorgehalten werden: Gelber Sack Müll, Restmüll
Sonstiges
Steht schon ein Küchenhersteller fest oder wird bevorzugt: Ballerina
Steht schon ein Gerätehersteller fest oder wird bevorzugt:
Küchenstil: Klassisch
Was stört an der bisherigen Küche und was soll die neue Küche unbedingt können? Warum?: Zu wenig Arbeits-Abstellfläche
Preisvorstellung (Budget): 15000-20000
Angehängte Dateien
Anhänge
