Ich war nun noch einmal bei zwei verschiedenen Händlern und habe mir Angebote machen lassen, aber die Sache ist vertrackt.
Fest steht, statt Lackfronten wird es Glas geben.
Anbieter 1 bietet eine Küche von
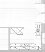
Nolte . Die Küche lässt sich genau so generieren, wie ich es gerne möchte. Ich bekomme unter dem Schrank für die Einbaugeräte zwei Auszüge, jeweils 30cm hoch. Darauf kommen dann der BO und der Dampfgarer, der mit der Oberkante allerdings schon auf 188cm Höhe liegt. Die noch darüber liegenden Hängeschränke sind nur 30 hoch und bieten daher wenig Platz.
Die Korpushöhe der Unterschränke ist hier 75cm.
Der Preis soll inklusive Elektrogeräte bei rund 11.200 liegen. Wir können die Elektrogeräte auch selbst besorgen, er baut sie uns ein, die Ersparnis läge bei 950 Euro, aber die Küche selbst würde wieder etwas teurer werden, weil die Rabattierung sinkt, den genauen Preis müsste ich dann noch mal erfragen.
Anbieter 2 bietet eine Küche von
Schüller , wegen des anderen Rasters ist der Bau an der Ostwand ziemlich schwierig, da passt von der Stange so gut wie nichts. Unter dem Schrank für BO und DG geht nur ein Auszug in Höhe 39,5 cm (ich hätte lieber zwei), dafür ist der Dampfgarer nicht so hoch. Die Hängeschränke sind 65 oder 71 cm (ich weiß es nicht mehr) deutlich höher und bieten damit mehr Platz. Die Nische für die Kaffemaschine ist nur noch 45 cm hoch und mir damit eigentlich zu niedrig. Eine Abdeckung für unsere teilintegrierte Spühlmaschine gibt es nicht, wir müssten also unsere gerade mal drei Jahre alte Maschine rauswerfen und auch noch eine neue Spühlmaschine kaufen

.
Die Korpushöhe der Unterschränke ist 68 cm, also etwas mehr.
Preislich konnte der Berater noch keinen definitiven Preis nennen, er wollte wegen der vielen Sonderanfertigungen und Basteleien alles noch mal in Ruhe durchchecken. Er rechnet mit 12 bis 13.000 Euro inklusive Elektrogeräte plus 1.000 Euro für die neue Spüma.
Eigentlich spricht viel für Variante 1, aber soweit man liest ist Schüller qualitativ doch (deutlich? Ein ganz kleines bisschen?) besser als Nolte, eigentlich ist mir Schüller daher sympatischer... .
Wie groß ist der Qualitätsunterschied zwischen beiden Herstellern denn? Man liest viel wiedersprüchliches... . Wenn ich Nolte und Glasfronten google stoße ich unter anderem schnell auf mehrere Themen, nach denen es massive Probleme mit sich durchbiegenden und ablösenden Fronten gab/gibt. Die Themen sind allerdings schon ein paar Jahre alt, hat Nolte das in den Griff gekriegt?