Hilfe bei der Planung der offenen Küche für Neubau.

Mykissa

Mitglied
Beiträge
5
Hallo zusammen,
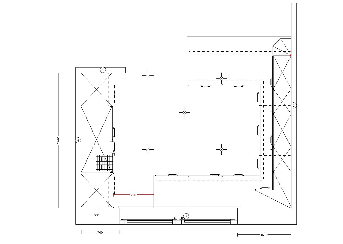
Ich brauche Ihre Unterstützung bei der Planung unserer Küche für den Neubau. Wir sind knapp mit der Zeit, da brauchen am 9. Mai ein Plan für Elektriker. Auf dem Plan sind zwar 2 Fenster in der Küche zu sehen, wird es aber nur 1 großes 2,13m ungefähr mittig. Neue Pläne sollen wir noch bekommen.
Wir möchten an die Innenwand Hochschränke mit follgenden Geräten: GS, Backofen und Dampfgarer (Habe noch Frage: was ist besser nur Dampgarer oder eine Combi aus Dampfgarer und Backofen ). An diese Wand kommt auch unserer Side-by-Side Kühlschrank 1,20m breit. Dann dachte wir an eine U-Form Küche mit Spüle am Fenster und auf der andere Seite noch eine Halbinsel mit Sitzmöglichkeit von der Wohn-/Essbereichseite.
Die Küchenfront soll pflegeleicht und kratzfest wegen Kinder. Für den Boden planen wir Vinyl entweder in Fliesenform(wahrscheinlich grau) oder wie es im ganzen Wohnbereich Eiche.
Wir dachten auch an ein Induktionsherd (vielleicht größe 90 cm??)
Wir waren heute bei einem Küchenstudio , sind zwar mit der Planung noch nicht fertig. Wir möchten so viel wie möglich Stauraum haben. In Moment haben wir 2 tote Ecke in der Planung, bin nicht sehr zufrieden damit, aber möchte nicht zu viel Geld ausgeben (habe mitbekommen ein Eckschrank mit Karussel soll ca. 1000,00 EUR kosten?!). Auf dem Plan ist es in Moment 2 kleine Aphotekenschränke 30 cm breit seitlich von Induktionsherd zu sehen, hätte zwar nur 1 gehabt, aber dann sieht als Gesamtbild nicht schön. Bei Arbeitsplatte überlegen wir in Richtung Granit - hängt von Preis ab.
Ich hoffe wir können hier ein paar Tipps und Meinungen bekommen. Als Anlage füge ich Bilder von der Planung sowie Grundriss(noch mit 2 Fenster!!!).

Checkliste zur Küchenplanung

Anzahl Personen im Haushalt: 3
Davon Kinder?: 1
Art des Gebäudes?: Neu-/Umbau, Planänderungen nicht möglich
Körpergrössen aller Hauptbenutzer (wegen Arbeitshöhe ) in cm: 170 und 172
Brüstungshöhe des Fensters (in cm): 134
Fensterhöhe (in cm): 101
Raumhöhe in cm: 250
Heizung: Fussbodenheizung
Sanitäranschlüsse: vollkommen variabel
Ausführung Kühlgerät: Side by Side ca. 90cm breit - nein 120 cm
Kühlgerät Größe: bis 178 cm Höhe
Ausführung Tiefkühl (TK)-Gerät: Im Kühlschrank ab 3 Schubladen unten
Dunstabzugshaube: Umluft
Backofen etc. hochgebaut?: Ja
Hochgebauter Geschirrspüler ?: Wenn möglich
Kochfeldart: Induktion
Kochfeldbreite ca. (in cm)?: ca. 90 cm
Spülenform: 1,5 Becken mit Abtropffläche
Geplante Heißgeräte: Standmikrowelle, Backofen , Dampfbackofen (DGC) mit Wasseranschluß
Küchenstil: Modern
Sitzmöglichkeit in der Küche / im Küchenbereich: Arbeitsplatte in Tischhöhe
Sitzmöglichkeit: Für wieviel Personen?: für 3 Personen
Sitzmöglichkeit: Tisch - wenn gesonderter Tisch oder offene Küche: Vorhandener Tisch
Gewünschte o. vorhandene Tischgröße: 160 cm wird in Essbereich stehen
Wofür soll der Sitzplatz in der Küche genutzt werden? Wie häufig?: zum Frühstück unter der Woche, Zusammen sein beim Kochen
Welche Arbeitshöhe ist angedacht (in cm)?: normales
Was steht auf der Arbeitsplatte oder soll dort stehen?: Kaffeevollautomat, Wasserkocher, Messerblock, Toaster, Obstschale
Welche weiteren Küchenmaschinen müssen in der Küche untergebracht werden?: Allesschneider (z. B. in Schublade), Handrührgerät, Mixer, Pürierstab
Was soll in der Küche außer den Standards untergebracht werden?: ALLE Vorräte, Geschirr komplett (nichts in Ess-/Wohnzimmer)
Welchen Stauraum gibt es sonst noch?: Speisekammer
Was/wie wird gekocht? (Alltagsküche, Menüs, Snacks usw): Alltagsküche
Wie häufig wird gekocht?: (fast) täglich 1x warm
Wird alleine gekocht? Oder auch gemeinsam? Mit und für Gäste?: gemeinsam
Was stört an der bisherigen Küche und was soll die neue Küche unbedingt können? Warum?: mehr Arbeitsplatz, vielleicht vorhandene Mikrowelle auf das Regal stellen; bessere Dunstabzughaube - eventull hinter einem Hängeschrank versteckt; keine Fliesen an Rückwand, dafür pflegeleichte Alternative.
Welche Mülltrennung soll in der Küche vorgehalten werden?: Altpapier, Bio/Restmüll ungetrennt, Gelber Sack Müll
Steht schon ein Küchenhersteller fest oder wird bevorzugt?: nein
Steht schon ein Gerätehersteller fest oder wird bevorzugt?: steht nicht fest, aber sollen gute Geräte sein
Preisvorstellung (Budget): bis 15.000,-
 

Anhänge

  • Plan_Mit Änderung von Fenstern.JPG
    Plan_Mit Änderung von Fenstern.JPG
    73 KB · Aufrufe: 304
  • Perspektive.JPG
    Perspektive.JPG
    92,4 KB · Aufrufe: 310
  • Grundriss.pdf
    30,4 KB · Aufrufe: 258
  • Grundriss.jpg
    Grundriss.jpg
    60,6 KB · Aufrufe: 318
Zuletzt bearbeitet von einem Moderator:
Auf den ersten Blick zur Optik.Abschlussregal,Eckhängeschrank und Glashängeschrank wirken sehr altbacken,da sollte etwas Ruhe rein.Wenn noch nicht vorhanden,plant besser keinen SBS sondern integrierte Kühlgeräte.
Wo ist denn Spüle und Kochfeld angedacht?
LG Bibbi
 
Ok, mit Abschlussregal war ich nicht so zufrieden. Was kann man statt Eckhängeschrank und Glashängeschränke - Normale Hängeschränke?
Der SBS ist bereits vorhanden und wir möchten der gern missen. Zwar der kann man trenen und als 2 Teiler in verschiedene Ecken Stellen. Das Induktionsherd wurde in der Mitte von U-Formküche gegenüber SBS. Und die Spüle am Fenster 2. Schrank von GS.
LG, Mykissa
 
kannst du den Etagengrundriss noch als pdf anhängen, damit man die Masse besser lesen kann?

wie breit ist der Raum planunten an der Fensterseite?
 
Zuletzt bearbeitet:
381 cm
Grunriss in pdf ist schon angehängt.

Habe auch gemerkt, dass ich mich verschrieben - wir möchten der sbs nicht missen.
 
die 244cm für die Nische ist das Fertig- oder Rohbaumass?

Denn 4 x 60cm breite Schränke werden da wohl nicht so ganz reinpassen. Denn der GSP braucht eine Sichtseite auf der linken Seite wenn ich mich nicht irre.

Ein DGC also Dapfgarer mit BO ist sinnvoller als nur ein Garer.
 
244,5 cm ist Rohbaumass. Da waren auch nicht 100% sicher, ob alles reinpasst.
 
ehrlich, ich kann es mir nicht vorstellen, dass die 4 x HS reinpassen.

genauso ist diese 24er Wand unnötig lang und der U-Schenkel muss deshalb kürzer sein.

Denn, wenn es unten 381cm, die HS 60cm tief, dann ist die Wand 20cm unnötig lang, es sein denn man braucht die Länge aus statischen Gründen. Aber so wie es ist, macht es die Küche nur kleiner. Hm, mal schauen.
 
Leider man braucht diese Wand wegen Statik. Wir können es nicht kürzen.
 
:welcome:

Das Fenster würde ich bis auf die APL runterziehen und die APL ins Fenster laufen lassen und gleich die Fensterbank mit machen. Das wird grosszügiger und gibt ein besseres Arbeitslicht.

Wenn ihr den Stauraum maximieren wollt, dann bleibt bei toten Ecken und wählt übertiefe Unterschränke.
 
Denkbar wäre auch diese Statikwand zu verlängern und von innen die SBS s mit dem Rücken dagegenstellen,idealerweise elegant eingekoffert.Dann ein sauberes L mit hochgestellter Spülma planunten links und hochgebauten Heissgeräten planoben rechts.
Von der Esszimmerseite dient die Wand dann für Sideboard etc.
LG Bibbi
 
ich habe eine ähnliche Idee wie Russini, in der Annahme, dass der Rohbau schon steht? Wenn nicht, kann man es auch wie Russini's Plan machen.

hier erst mal ein paar Bilder, vielleicht kommt diese Variante gar nicht in Frage. Über dem GSP ist der DGC.

Der Zeilenabstand ist 120cm, das Kochfeld über einem 60 + 50er US.

Mykissa1.JPG Mykissa2.JPG Mykissa3.JPG
 

Anhänge

  • Mykissa_Evelin_PLAN1.KPL
    3,9 KB · Aufrufe: 210
  • Mykissa_Evelin_PLAN1.POS
    6,6 KB · Aufrufe: 213

Ähnliche Beiträge

Neff Hausgeräte Ballerina Küchen Blum Bewegungstechnologie Weibel - Intelligente Küchenlüftung

Neff Spezial

Blum Zonenplaner

Weibel Abluft-Tuning

Weibel Abluft-Tuning
Zurück
Oben