Vorab: So sehr ich Mathe geliebt habe, so sehr waren mir Geometrie und Millimeterpapier immer ein Graus. Ich hab mich jetzt trotzdem nochmal daran gewagt & hoffe, dass das so sinnvoll ist.
Eine Idee kam mir beim Durchblättern einer Wohnzeitschrift. Darum steige ich mal damit ein:
Es geht mir um das Holzregal links der vorderen Küchenzeile. Was mir daran gefällt: Das Versprechen auf Wohnlichkeit. Da wir einen Wohnessraum haben, hätte ich in der Küche – trotz aller praktischer Überlegungen – gerne auch etwas Gemütlichkeit. Die entstehen für mich z.B durch Holz und Bücher (und mit meinen Kochbüchern könnte ich einige Regalmeter füllen). Bei uns stände so ein Regal natürlich an der Wand planlinks, weshalb man die Rückseite nicht für weitere Fächer nutzen kann (wie ich es hier im Bild vermute). Was klar war: Durch die Kochhalbinsel geht ein wenig Fläche verloren (ich dachte mir, dass man aber ja das eine Regal auch so planen kann, dass man von der Küchenzeile aus daran kommt, und den Verlust so möglichst gering hält.) Als ich mich ans Zeichnen machte, zeigte sich aber vor allem ein anderes Problem: Das Fenster ist "im Weg". Ich habe trotzdem mal weitergemacht. In der Vogelperspektive sieht man: Die Arbeitsfläche der Insel ist entsprechend angeglichen – darunter entstünde eine kleine Nische, die man aber sicherlich genutzt bekäme. Darauf könnte man z.B. auch die Getreidemühle stellen. Mir stellt sich die Frage nach der Optik und sonstigen Praktikabilität. Außerdem: die genauen Maße des Fensters stehen meines Wissens noch nicht fest (darauf spekuliere ich auch für die Höhe) – aber diese Planungsgespräche stehen erst noch an. Ich habe das Fenster jetzt erstmal so genommen, wie es im Plan steht.
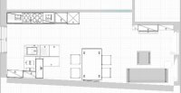
Jetzt aber erstmal die beiden Skizzen mitsamt Erklärungen:
Vogel:
Ich gehe mal die Zahlen planoben durch (ist aber fast identisch mit dem letzten Entwurf von mir)
1. Im Plan ist hier ein Schacht eingezeichnet – ob er wirklich dahin kommt, ist unsicher. Aber ich gehe mal vom ungünstigen Fall aus. Davor könnte man vielleicht noch ein schmales Regal planen.
2. Geräteschrank (mit Ofen, Dampfgarer & Wärmeschublade: 60x225x60)
3. Geräteschrank (45x75x60), Platz für eine Küchenmaschine, darüber Hängeregal
4. Herd (90x75x60) (darunter Schubladen für Gewürze/Töpfe/Pfannen), darüber DAH
5. (hier kommt jetzt eine Veränderung): Spülschrank (100x75x60), darunter gerne
MUPL , darüber Hängeschrank
6. Spülmaschine (60x75x60), darauf ggf. 2. Küchenmaschine und Getreidemühle darüber HS
7. Kühl- Gefrierkombi (
@KerstinB - du hattest noch gefragt: Ich plane jetzt immer mit Einbaugerät, aber wir haben auch eine Kühl- Gefrierkombi von
Bosch , die wir mitnehmen könnten (60x201x65)).
Den Abstand zwischen Kochzeile und Insel hab ich jetzt mit 120cm geplant.
Die Halbinsel ist (ohne das Zusatzstück vorm Fenster) 180cmx90cm (scheint mir auf der Zeichnung etwas zu breit geworden sein) und wäre die Arbeitsfläche. Die Schubladen zur Wand hin hätte ich gerne ca. 30cm lang, die zur Kochzeile ca. 60cm. In den kleinen Schubladen könnte man Dinge verstauen, die man immer mal wieder, aber nicht ständig zum Kochen braucht (Marsala, Wermut usw., Gewürzvorräte, Zubehör für die Küchenmaschinen, Backutensilien...).
Das Regal geht auf meiner Zeichnung bis zum Fenster – etwa 120cm und ist etwa 30cm tief (hier scheine ich etwas zu knapp gemalt zu haben).
Der Tisch ist – nicht ausgezogen – 160cmx100cm, die Stühle hab ich jetzt 50cmx50cm geplant. Sitzt niemand am Tisch, werden sie natürlich angeschoben. Ausgezogen (gestrichelt) ist er 210cmx100cm (müsste noch etwas anders platziert werden). Wohnzimmersofa hab ich unser jetziges eingezeichnet (209cmx100cm) und als Regal erstmal das Expedit (acht Fächer), was wir längs auf dem Boden stehen haben, darauf ist der Fernseher. Solange noch nicht beide Kinderzimmer belegt sind, werden wir ein Arbeitszimmer haben und dort viele Bücher stellen können – das wandfüllende Regale würden wir erst benötigen, wenn ein zweites Kind da ist.
Dann hab ich mich auch noch in der Frontalansicht der Wand mit Fenster versucht.
Die hab ich ja bereits größtenteils beschriftet. Ich hoffe daraus geht hervor, wie ich mir das gedacht habe.