Es fehlt nur noch die Küche

AW: Es fehlt nur noch die Küche

Hallo Martin, eine ganz andere Frage: Ich habe mir Deine Ideen für mögliche Hersteller im Internet angesehen. Intuo-Küchen, sehr chic, habe ich aber bisher noch nicht gesehen. Welcher Händler vertreibt diese?

Viele Grüße, Ulla
 
AW: Es fehlt nur noch die Küche

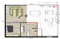
... so, jetzt die Variante 3 als 2-Insel-Variante. Folgende Gedanken dazu:


  • Spüle an Wand und Kochfeld direkt ggü. ... paßt auch gut zum Alleinekochen.
  • Kochinsel so breit, dass rechts und links von den Kochstellen auch noch Platz genug für Schüsselchen etc. ist.
  • alle relevanten Hochschränke bei der Wandspüle, links von der Spüle Geschirr/Vorratsschrank, dann BO/DG. Rechts von der Spüle GSP, oben drüber Wärmeschublade für die Tassen und Einbaukaffeeautomat, ganz außen der große Kühlschrank.
  • Weinkühlschrank und Kombigerät mit dem Eiswürfelbereiter an der Spülenseite der zusätzlichen Arbeitsinsel. Dann kann dieser Bereich zusammen mit dem großen angesetztem Bartisch auch mal als Bar/Getränkeecke genutzt werden. Dazu dann die gerade Lauflinie zum Einbaukaffeeautomat.
  • Die Arbeitsinsel mit der Spüle. Die Spüle kann auch von der Rückseite der Kochinsel genutzt werden.
  • Der Barplatz als zusätzlicher Sitzplatz für bis zu 4 Leute am Fenster. Ist aber auch als echte Bar zu nutzen.
  • Tisch ist jetzt mit einer Länge von 300 cm und Breite 110 cm eingeplant. Das sollte für 10 Leute bequem sein und für 12 Leute auch noch gehen.
  • Beleuchtung für Tisch und Bar auch mal angedeutet
  • Über den Inseln 2 identisch große Abhängungen für die Inselbeleuchtung und Aufnahme der DAH. Wobei die Arbeitsinsel ja etwas schmaler ist als die Kochinsel
 

Anhänge

  • kf_martin_1_20100402_Variante3.KPL
    4,1 KB · Aufrufe: 142
  • kf_martin_1_20100402_Variante3.POS
    27,9 KB · Aufrufe: 159
  • kf_martin_1_20100402_Variante3_Ansicht2.jpg
    kf_martin_1_20100402_Variante3_Ansicht2.jpg
    329,8 KB · Aufrufe: 153
  • kf_martin_1_20100402_Variante3_Ansicht3.jpg
    kf_martin_1_20100402_Variante3_Ansicht3.jpg
    214,6 KB · Aufrufe: 156
  • kf_martin_1_20100402_Variante3_Ansicht4.jpg
    kf_martin_1_20100402_Variante3_Ansicht4.jpg
    280,5 KB · Aufrufe: 145
  • kf_martin_1_20100402_Variante3_Ansicht5.jpg
    kf_martin_1_20100402_Variante3_Ansicht5.jpg
    283,8 KB · Aufrufe: 163
  • kf_martin_1_20100402_Variante3_Ansicht6.jpg
    kf_martin_1_20100402_Variante3_Ansicht6.jpg
    300 KB · Aufrufe: 144
  • kf_martin_1_20100402_Variante3_Gesamtgrundriss.jpg
    kf_martin_1_20100402_Variante3_Gesamtgrundriss.jpg
    212,5 KB · Aufrufe: 163
  • kf_martin_1_20100402_Variante3_Grundriss.jpg
    kf_martin_1_20100402_Variante3_Grundriss.jpg
    85,6 KB · Aufrufe: 145
AW: Es fehlt nur noch die Küche

Donnerwetter Kerstin, ich glaub besser gehts schon nicht mehr.
Respekt! :top:

@Martin
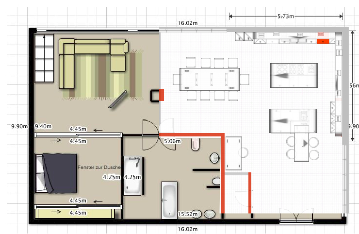
Da steht im Schlafzimmer "Fenster zur Dusche", ist das der Ersatz für den Fernseher im Schlafzimmer? ;-)
Oder warum hat man sowas?

LG
Sabine
 
AW: Es fehlt nur noch die Küche

;D weil dat Schlafjemach ansonsten ohne Fenster ist :tounge: - ich könnte ja nicht Fensterlos schlafen... aber datt is ja bekanntlich wie das "Gülle führen" reine Geschmackssache:girlblum:


Aber beim "Donnerwetter" schliess ich mich mal Sabine an .. Super Kerstin!!
 
AW: Es fehlt nur noch die Küche

Nochmal dumm gefragt, was ist das dann im Schlafzimmer in der unteren Wand?

LG
Sabine
 
Neff Hausgeräte Ballerina Küchen Blum Bewegungstechnologie Weibel - Intelligente Küchenlüftung

Neff Spezial

Blum Zonenplaner

Weibel Abluft-Tuning

Weibel Abluft-Tuning
Zurück
Oben