WolkenFamilie
Mitglied
- Beiträge
- 4
- Wohnort
- Kleve
Titel des Themas: 5,3qm Küche soll vergrößert werden
Hallo,
nachdem wir uns hier schon einige Anregungen geholt haben (Verzicht auf Eckrondell, u.ä.) stellt wir unser Vorhaben hier mal zur Diskussion.
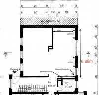
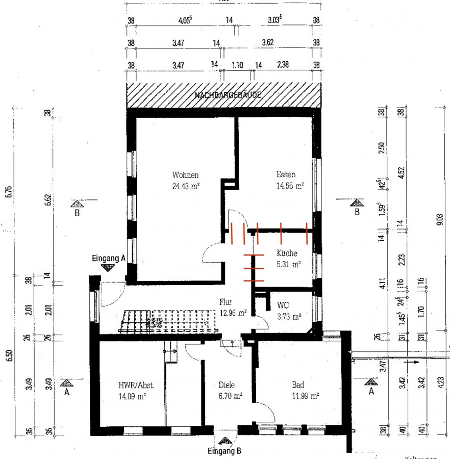
Wir haben ein Haus gekauft, allerdings ist uns die bisherige Küche erheblich zu klein (5,3qm). Das Erdgeschoss soll durch Abbruch dreier Wände zu einem großen Raum werden (Wohnzimmer, offener Küchen- und Essbereich. Außerdem soll ein Zugang zum Garten geschaffen werden, es muss also aus einem Fenster eine Tür gemacht werden.
Die Anschlüsse der bisherigen Küche liegen in der Wand zum Bad. Da wir den Fußboden komplett vermutlich auch mit Estrich entfernen werden, kam der Gedanke auf, die Küche auf die andere Seite, planoben zu verlegen. Anschlüsse müssten/könnten dann entsprechend auch verlegt werden.
Als Küchenform favorisiert meine Frau zu diesem Zeitpunkt ein U.
Uns geht es zum derzeitigen Stand der Planung eher darum, festzulegen was der beste Platz ist.
Die Küche am bisherigen Ort (Planunten) lassen, Esstisch dann planoben.
Oder u-Küche planoben und Esstisch planunten.
Wenn die Küche unten bleibt, wird die Terrassentür ins obere Fenster, wenn nicht, dann ins untere Fenster kommen.
Im Alno -PLaner habe wir fix mal unsren aktuellen Favorit geplant:
Nun unsere Frage: Ist es sinnvoll möglich 45 und 60 tiefe Korpusse zu kombinieren, um eine solche Fläche herzustellen und des GS auf der anderen Seite zu haben. Dadurch kommt das ja zustande. Eine Alternative wäre es, den GS unter das Fenster (grün) zu bauen, das erfordert aber einen längeren Weg.
Evtl hat ja auch jemand neue kreative Gedanken, wie aus der mini Küche und dem Esszimmer ein ansprechender Raum werden kann.
Checkliste zur Küchenplanung
Personenkriterien und Ergonomie
Anzahl Personen im Haushalt: 4
Davon Kinder: 2
Körpergrößen aller Hauptbenutzer in cm (wegen Arbeitshöhe ): 180
Welche Arbeitshöhe ist angedacht (in cm)?: 100
Gebäudekriterien
Art des Gebäudes: Bestandsbau > (kleinere) Umbauten möglich
Brüstungshöhe des Fensters (in cm): ?
Fensterhöhe (in cm): 130
Raumhöhe in cm: 250
Heizung: Fußbodenheizung geplant, falls nicht möglich Heizkörper
Sanitäranschlüsse: variabel an aktueller Wand (planunten)
Einbaugerätekriterien
Ausführung Kühlgerät: Integriert im Hochschrank (60cm)
Einbaukühlgerät Größe: -N/A-
Ausführung Tiefkühl (TK)-Gerät: Nicht erforderlich bzw. steht woanders
Dunstabzugshaube: Abluft
Hochgebauter Backofen : wenn möglich
Geplante Heißgeräte: Backofen ,
Hochgebauter Geschirrspüler : nein
Art des Kochfeldes: Gas
Kochfeldbreite (ca. in cm): 90
Sitzmöglichkeiten
Sitzmöglichkeit in der Küche / im Küchenbereich: Überstehende Arbeitsplatte
Sitzmöglichkeit: Für wieviel Personen?: Für 2 Personen
Sitzmöglichkeit: Tisch - wenn gesonderter Tisch oder offene Küche: Vorhandener Tisch
Gewünschte oder vorhandene Tischgröße: 100x210
Wofür soll der Sitzplatz in der Küche genutzt werden und wie häufig:
Stauraumplanung
Was steht auf der Arbeitsplatte oder soll dort stehen?: Kaffeemaschine, Wasserkocher, Küchenmaschine, Brotbehälter, Obstschale
Welche weiteren Küchenmaschinen müssen in der Küche untergebracht werden: Mixer, Pürierstab
Was soll in der Küche außer den Standards untergebracht werden: -N/A-
Welchen Stauraum gibt es sonst noch: Geschirr/Gläserschrank im Wohn-/Esszimmer, Hauswirtschaftsraum
Kochgewohnheiten
Was/wie wird gekocht? (Alltagsküche, Menüs, Snacks usw): Alltagsküche, selten Menüs, oft wird gebacken,
Wie häufig wird gekocht: (fast) täglich 1x warm
Wird alleine gekocht? Oder auch gemeinsam? Mit und für Gäste?: Gemeinsam nur am Wochenende, bisher selten für Gäste
Spülen und Müll
Spülenform: Noch nicht festgelegt
Welche Mülltrennung soll in der Küche vorgehalten werden: Altpapier, Biomüll, Gelber Sack Müll, Restmüll
Sonstiges
Steht schon ein Küchenhersteller fest oder wird bevorzugt: nein
Steht schon ein Gerätehersteller fest oder wird bevorzugt: nein
Küchenstil: -N/A-
Was stört an der bisherigen Küche und was soll die neue Küche unbedingt können? Warum?: Küche ist zu klein, geschlossener Raum, kaum Stauraum
Preisvorstellung (Budget): 10.000
Angehängte Dateien
Hallo,
nachdem wir uns hier schon einige Anregungen geholt haben (Verzicht auf Eckrondell, u.ä.) stellt wir unser Vorhaben hier mal zur Diskussion.
Wir haben ein Haus gekauft, allerdings ist uns die bisherige Küche erheblich zu klein (5,3qm). Das Erdgeschoss soll durch Abbruch dreier Wände zu einem großen Raum werden (Wohnzimmer, offener Küchen- und Essbereich. Außerdem soll ein Zugang zum Garten geschaffen werden, es muss also aus einem Fenster eine Tür gemacht werden.
Die Anschlüsse der bisherigen Küche liegen in der Wand zum Bad. Da wir den Fußboden komplett vermutlich auch mit Estrich entfernen werden, kam der Gedanke auf, die Küche auf die andere Seite, planoben zu verlegen. Anschlüsse müssten/könnten dann entsprechend auch verlegt werden.
Als Küchenform favorisiert meine Frau zu diesem Zeitpunkt ein U.
Uns geht es zum derzeitigen Stand der Planung eher darum, festzulegen was der beste Platz ist.
Die Küche am bisherigen Ort (Planunten) lassen, Esstisch dann planoben.
Oder u-Küche planoben und Esstisch planunten.
Wenn die Küche unten bleibt, wird die Terrassentür ins obere Fenster, wenn nicht, dann ins untere Fenster kommen.
Im Alno -PLaner habe wir fix mal unsren aktuellen Favorit geplant:
Nun unsere Frage: Ist es sinnvoll möglich 45 und 60 tiefe Korpusse zu kombinieren, um eine solche Fläche herzustellen und des GS auf der anderen Seite zu haben. Dadurch kommt das ja zustande. Eine Alternative wäre es, den GS unter das Fenster (grün) zu bauen, das erfordert aber einen längeren Weg.
Evtl hat ja auch jemand neue kreative Gedanken, wie aus der mini Küche und dem Esszimmer ein ansprechender Raum werden kann.
Checkliste zur Küchenplanung
Personenkriterien und Ergonomie
Anzahl Personen im Haushalt: 4
Davon Kinder: 2
Körpergrößen aller Hauptbenutzer in cm (wegen Arbeitshöhe ): 180
Welche Arbeitshöhe ist angedacht (in cm)?: 100
Gebäudekriterien
Art des Gebäudes: Bestandsbau > (kleinere) Umbauten möglich
Brüstungshöhe des Fensters (in cm): ?
Fensterhöhe (in cm): 130
Raumhöhe in cm: 250
Heizung: Fußbodenheizung geplant, falls nicht möglich Heizkörper
Sanitäranschlüsse: variabel an aktueller Wand (planunten)
Einbaugerätekriterien
Ausführung Kühlgerät: Integriert im Hochschrank (60cm)
Einbaukühlgerät Größe: -N/A-
Ausführung Tiefkühl (TK)-Gerät: Nicht erforderlich bzw. steht woanders
Dunstabzugshaube: Abluft
Hochgebauter Backofen : wenn möglich
Geplante Heißgeräte: Backofen ,
Hochgebauter Geschirrspüler : nein
Art des Kochfeldes: Gas
Kochfeldbreite (ca. in cm): 90
Sitzmöglichkeiten
Sitzmöglichkeit in der Küche / im Küchenbereich: Überstehende Arbeitsplatte
Sitzmöglichkeit: Für wieviel Personen?: Für 2 Personen
Sitzmöglichkeit: Tisch - wenn gesonderter Tisch oder offene Küche: Vorhandener Tisch
Gewünschte oder vorhandene Tischgröße: 100x210
Wofür soll der Sitzplatz in der Küche genutzt werden und wie häufig:
Stauraumplanung
Was steht auf der Arbeitsplatte oder soll dort stehen?: Kaffeemaschine, Wasserkocher, Küchenmaschine, Brotbehälter, Obstschale
Welche weiteren Küchenmaschinen müssen in der Küche untergebracht werden: Mixer, Pürierstab
Was soll in der Küche außer den Standards untergebracht werden: -N/A-
Welchen Stauraum gibt es sonst noch: Geschirr/Gläserschrank im Wohn-/Esszimmer, Hauswirtschaftsraum
Kochgewohnheiten
Was/wie wird gekocht? (Alltagsküche, Menüs, Snacks usw): Alltagsküche, selten Menüs, oft wird gebacken,
Wie häufig wird gekocht: (fast) täglich 1x warm
Wird alleine gekocht? Oder auch gemeinsam? Mit und für Gäste?: Gemeinsam nur am Wochenende, bisher selten für Gäste
Spülen und Müll
Spülenform: Noch nicht festgelegt
Welche Mülltrennung soll in der Küche vorgehalten werden: Altpapier, Biomüll, Gelber Sack Müll, Restmüll
Sonstiges
Steht schon ein Küchenhersteller fest oder wird bevorzugt: nein
Steht schon ein Gerätehersteller fest oder wird bevorzugt: nein
Küchenstil: -N/A-
Was stört an der bisherigen Küche und was soll die neue Küche unbedingt können? Warum?: Küche ist zu klein, geschlossener Raum, kaum Stauraum
Preisvorstellung (Budget): 10.000
Angehängte Dateien
Anhänge
Zuletzt bearbeitet:
