Unbeendet U-Küche Schüller vs. Hacker

posti

Mitglied
Beiträge
8
Guten Abend in die Runde,
wir planen einen Durchbruch und damit verbunden eine größere Küche. Die erste Planung, die wir im Küchenstudio gemacht haben, gefiel uns gut. Jetzt möchte ich diese noch hier "checken" lassen.
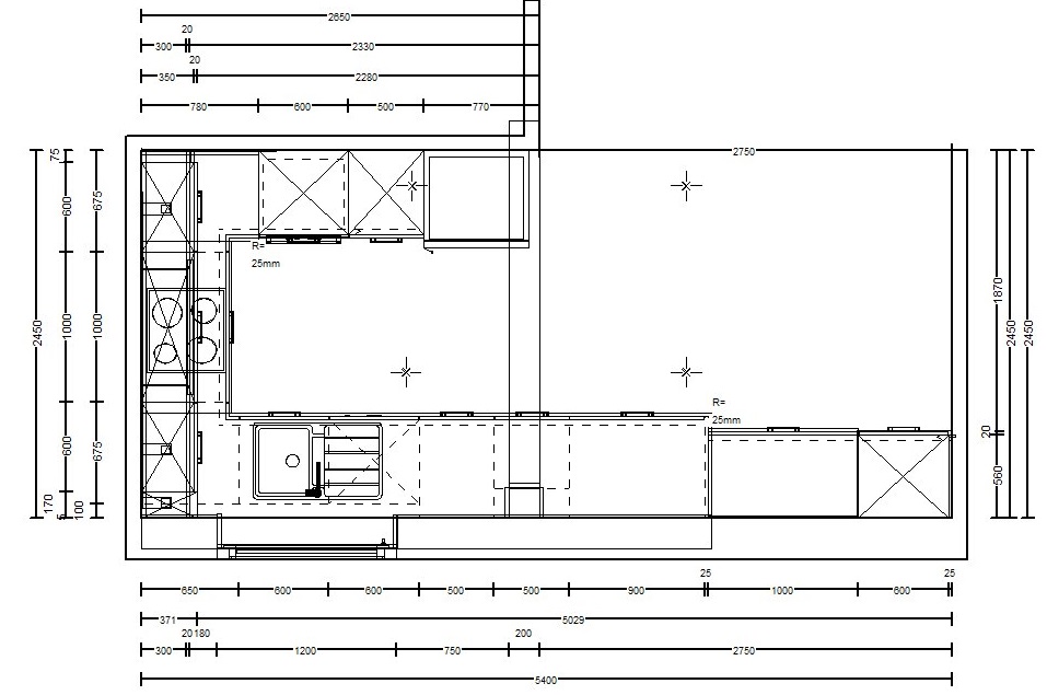
Links angefangen mit einem Besenschrank, daneben einen Sitzbereich oder als Hocker zum mithelfen für die Kinder. Dann Schubladen breit. Anschließend Schubladen 50cm breit in tiefer ausführung und danach in nicht so tiefer ausführung (falls von der Mauer ein stück stehen bleiben muss -> muss ich noch mit dem Statiker abklären). Dann vorhandene Spülmaschine und Auszug mit Müllbehälter. Anschließend um die Ecke 100er Schubladen unter dem vorhandenen Induktionskochfeld. Die Ecken sind nicht genutzt/ verblendet. Anschließend Hochschrank für Backofen und darüber ein Fach für die Mikrowelle . Daneben einen Schrank mit verdeckten Schubladen. Und dann der vorhandene Kühlschrank. über dem Kochfeld eine Schmale Abzugshaube und drei Schränke mit Lifttüren.
Was haltet Ihr von der Planung?
Was könnte man noch verbessern?
Ich habe gleichwertige Angebote von Schüller und Häcker . Welches ist der bessere Hersteller?

Checkliste zur Küchenplanung

Anzahl Personen im Haushalt: 4
Davon Kinder?: 2
Art des Gebäudes?: Neu-/Umbau, Planänderungen möglich
Körpergrössen aller Hauptbenutzer (wegen Arbeitshöhe ) in cm: 187 und 170 cm
Brüstungshöhe des Fensters (in cm): 95
Fensterhöhe (in cm): 110
Raumhöhe in cm: 250
Heizung: Keine Heizung
Sanitäranschlüsse: variabel an aktueller Wand
Ausführung Kühlgerät: Stand-Alone bis 75 cm Breite
Kühlgerät Größe: noch unbekannt
Ausführung Tiefkühl (TK)-Gerät: Im Kühlschrank ab 3 Schubladen unten
Dunstabzugshaube: Abluft
Backofen etc. hochgebaut?: Ja
Hochgebauter Geschirrspüler ?: Nein
Kochfeldart: Induktion
Kochfeldbreite ca. (in cm)?: 60
Spülenform: 1 Becken mit Abtropffläche
Geplante Heißgeräte: Standmikrowelle, Backofen
Küchenstil: Modern
Sitzmöglichkeit in der Küche / im Küchenbereich: Keine
Sitzmöglichkeit: Für wieviel Personen?: Nein
Sitzmöglichkeit: Tisch - wenn gesonderter Tisch oder offene Küche: Keiner
Gewünschte o. vorhandene Tischgröße:
Wofür soll der Sitzplatz in der Küche genutzt werden? Wie häufig?:
Welche Arbeitshöhe ist angedacht (in cm)?: 95
Was steht auf der Arbeitsplatte oder soll dort stehen?: Kaffeemaschine, Wasserkocher, Messerblock, Toaster, Obstschale
Welche weiteren Küchenmaschinen müssen in der Küche untergebracht werden?: Küchenmaschine, Handrührgerät, Mixer, Pürierstab
Was soll in der Küche außer den Standards untergebracht werden?: Getränkekisten, Staubsauger/Wischer etc., Bügelbrett, Geschirr komplett (nichts in Ess-/Wohnzimmer)
Welchen Stauraum gibt es sonst noch?: Keller
Was/wie wird gekocht? (Alltagsküche, Menüs, Snacks usw): Täglich mit / für die Kinder
Wie häufig wird gekocht?: (fast) täglich 1x warm
Wird alleine gekocht? Oder auch gemeinsam? Mit und für Gäste?: Meist allein. Ab und zu auch für und mit Gästen
Was stört an der bisherigen Küche und was soll die neue Küche unbedingt können? Warum?: Die alte Küche ist 2,45 x 2,6 und hat links und rechts eine Arbeitsplatte. Es fehlt massiv an Stauraum... Vor allem an Schubladen.
Welche Mülltrennung soll in der Küche vorgehalten werden?: Gelber Sack Müll, Restmüll
Steht schon ein Küchenhersteller fest oder wird bevorzugt?: Schüller oder Häcker
Steht schon ein Gerätehersteller fest oder wird bevorzugt?: Backofen , Induktionskochfeld, Mikrowelle , Geschirrspüler vorhanden. Der Rest muss neu. Hersteller ist egal.
Preisvorstellung (Budget): bis 10.000,-
 

Anhänge

  • Grundrissneu.jpg
    Grundrissneu.jpg
    112,3 KB · Aufrufe: 1.144
  • P-1neu.jpg
    P-1neu.jpg
    95,7 KB · Aufrufe: 425
  • P-2neu.jpg
    P-2neu.jpg
    82,4 KB · Aufrufe: 406
  • P-3neu.jpg
    P-3neu.jpg
    74,3 KB · Aufrufe: 406
  • Vogel-neu.jpg
    Vogel-neu.jpg
    54,4 KB · Aufrufe: 372
@posti ...leider fehlt ein Übersichtsplan, wie es mit den Räumlichkeiten weitergeht. Außerdem Maße wo aktuell genau der Wasseranschluß liegt und wo das Abluftloch ist (schon vorhanden? Welchen Durchmesser, moderne Hauben möchten 15 cm, welche Höhe?)

Die Planung ist nachbesserungsbedürftig. Kaum Platz zwischen Spüle und Kochfeld. Viel zu viele hohe Auszüge .. ich nehme an, es sind dir die 78 cm hohen Korpusse angeboten worden.
* 6 Raster - was heißt das? *
Habe im Rahmen der Planung der neuen Küche für meine Eltern über Nutzhöhen in Auszügen gesprochen. Mein Vater dazu: "Ja, die Tellerstapel sind doch so hoch" ... Ich: "Geh mal messen" ... Er: "Oh, nur 17 cm hoch der Stapel" ... Ich: "ja, dann reicht doch auch ein 2-rasteriger Auszug" ;-)
Dazu Vermaßung Häcker Systemat und sinnvollerweise -->Stauraum Schubladen am Beispiel meiner 590 cm Schubladen ;-)

--------------------
grundrissneu-jpg.208947


Tendentiell würde ich die Hochschränke eher planrechts unten setzen und dann planoben Kochfeld und planunten Arbeitszeile. Was da aber wie genau Sinn macht, kann man halt mit einem Gesamtplan viel besser beurteilen.
--------------------------
Schüller und Häcker geben sich nicht groß etwas. Wichtig ist das Frontmaterial, eine gute Planung und eine gute Montage.
 
Hallo Kerstin, vielen Dank für Deine Einschätzung. Zur Raumplanung:
Dort wo der Kühlschrank aufhört geht der Raum weiter Ca. 370 x 500 cm. Hier steht der Esstisch mit Stühlen. Die Wand hinter dem Kühlschrank ist nach dem Durchbruch ein 1 Meter breiter Raumteiler. Könnte bei bedarf noch eine Zeichnung machen.
Der Wasseranschluss befindet sich zwischen Spüle und Kochfeld.
Abluft geht aktuell in den stillgelegten Kamin rechts oben überm Kochfeld. Allerdings nur 130.Eine neue Bohrung könnte rechts oben über dem Fenster erfolgen in 150.
Ja, es sind die 78er Korpusse, damit wir auf eine 95er Höhe kommen mit 12,5er Sockel und Arbeitsplatte .
Wieso benötigt man zwischen Spüle und Kochfeld mehr Platz? Sorry, dass ich so doof frage.
Ich habe auch mal gemessen. Tellerstapel passen auch in die 21er Höhe, danke für den Hinweis. Also nur hohe Auszüge für Küchenmaschine und Getränkekisten. Dann werden wir auch mal planen, was wo hin kommt. Deine Küche werden wir uns auch mal anschauen.
Frontmaterial ist Schichtstoff . Die Hochschränke haben wir mit Absicht "versteckt", damit man nicht direkt draufschaut aus dem offenen Raum.
Ich bin dankbar für weitere Anregungen und Hinweise.
Vielen Dank!
Posti
 
Na, dann stell erstmal einen Grundriss des Geschosses ein, zeichne ein wenig ein, wo was steht, damit man sich das besser vorstellen kann. Und bitte den Grundriss analog dem Küchengrundriss ausrichten .. siehe Vorspann zu diesem Forumsbereich.

Und am besten Wasseranschluß vermaßt .. also mal genau wieviel cm von der linken unteren Ecke steht der Wasseranschluß weg.

Die Hauptarbeitsfläche ist nun mal zwischen Kochfeld und Spüle .. an/neben der Spüle vorbereiten und dann am Kochfeld weiter bearbeiten.

Abluft geht aktuell in den stillgelegten Kamin rechts oben überm Kochfeld. Allerdings nur 130
Diesen Kamin sehe ich nicht auf dem Grundriss oder wie muss ich mir das vorstellen? Du mußt immer bedenken, wir kennen deine Räume nicht, daher sind Skizzen und Fotos immer xmal besser als 1000 Worte ;-).
 
Neff Hausgeräte Ballerina Küchen Blum Bewegungstechnologie Weibel - Intelligente Küchenlüftung

Neff Spezial

Blum Zonenplaner

Weibel Abluft-Tuning

Weibel Abluft-Tuning
Zurück
Oben