Drasleona
Mitglied
- Beiträge
- 25
U-Küche mit Halbinsel für Neubau
Hallo ihr Lieben
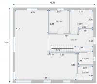
Wir befinden uns derzeit noch in der Planungsphase hinsichtlich des gesamten Hauses. Hier geht es um die Idee, die wir für unsere Küche haben, und darum herauszufinden, ob die gesamte Grundidee vielleicht so doof ist, dass wir den Grundriss ändern sollten.
Dementsprechend sind die Farben erst einmal nicht so wichtig, Technische Geräte konnte ich leider auch gar nicht auswählen. Es geht aber natürlich um die Position der Geräte, die habe ich schon so eingezeichnet, wie ich mir das vorstelle.
Die Ecken sollen beide tot werden.
Die eingezeichnete Tür führt zur Speisekammer und soll in der Realität schmaler werden und vor allem in Richtung Speisekammer öffnen. Das eingezeichnete Fenster ist eigentlich 2m breit und bodentief. Leider war das Programm (oder ich?) dazu nicht in der Lage. Tut mir leid, dass so viel Vorstellungskraft erforderlich ist, aber ich habe es nicht besser hinbekommen...
Anmerkungen zur Checkliste:
- Das "Kind" ist dann 14, deswegen habe ich es nicht als Kind angegeben.
- Wir möchten einen großen, ziemlich hohen Kühlschrank haben. Welche Maße es genau werden sollen ist aber noch nicht entschieden.
- Einen hochgebauten Geschirrspüler fände ich toll, habe ich aber nicht untergebracht... Vielleicht den Apothekerschrank weglassen und dafür einen hochgebauten Geschirrspüler ? Der ist dann aber ziemlich weit weg vom Waschbecken, geht das? Und würde das verbleibende "Arbeitsplatteneck" dadurch zu klein?
- Ich möchte einen Kochfeldabzug. Ich denke, dass dadurch das Kochfeld ziemlich breit wird.
Ich hoffe, ich habe das jetzt richtig gemacht
Wenn etwas fehlt bitte Bescheid geben.
Checkliste zur Küchenplanung
Personenkriterien und Ergonomie
Anzahl Personen im Haushalt: 3
Davon Kinder: keine
Körpergrößen aller Hauptbenutzer in cm (wegen Arbeitshöhe ): 184, 173, derzeit 170
Welche Arbeitshöhe ist angedacht (in cm)?: aktuell haben wir 87, das ist recht niedrig. Vielleicht 90? 92?
Gebäudekriterien
Art des Gebäudes: Neu-/Umbau > Planänderungen möglich
Brüstungshöhe des Fensters (in cm): bodentief
Fensterhöhe (in cm): 209
Raumhöhe in cm: 250
Heizung: Fußbodenheizung
Sanitäranschlüsse: vollkommen variabel
Einbaugerätekriterien
Ausführung Kühlgerät: Integriert im Hochschrank (60cm)
Einbaukühlgerät Größe: Noch unbekannt
Ausführung Tiefkühl (TK)-Gerät: Nicht erforderlich bzw. steht woanders
Dunstabzugshaube: Umluft
Hochgebauter Backofen : ja
Geplante Heißgeräte: Standmikrowelle, Backofen
Hochgebauter Geschirrspüler : wenn möglich
Art des Kochfeldes: Induktion
Kochfeldbreite (ca. in cm): 80 - 100
Sitzmöglichkeiten
Sitzmöglichkeit in der Küche / im Küchenbereich: Keine
Sitzmöglichkeit: Für wieviel Personen?: N. a.
Sitzmöglichkeit: Tisch - wenn gesonderter Tisch oder offene Küche: N. a.
Gewünschte oder vorhandene Tischgröße:
Wofür soll der Sitzplatz in der Küche genutzt werden und wie häufig:
Stauraumplanung
Was steht auf der Arbeitsplatte oder soll dort stehen?: Kaffeevollautomat, Messerblock, Obstschale
Welche weiteren Küchenmaschinen müssen in der Küche untergebracht werden: Wasserkocher, Handrührgerät
Was soll in der Küche außer den Standards untergebracht werden: Geschirr komplett (nichts in Ess-/Wohnzimmer)
Welchen Stauraum gibt es sonst noch: Speisekammer, Hauswirtschaftsraum
Kochgewohnheiten
Was/wie wird gekocht? (Alltagsküche, Menüs, Snacks usw): Ich koche täglich am Abend ein durchschnittliches Abendessen
Also keine Menüs. Wir frühstücken am Wochenende gerne gemütlich zusammen. Ab und zu backe ich auch Kuchen. Wir hätten gerne öfter Gäste, aber die derzeitige Platzsituation (Tisch in der Küche) lässt es nicht zu. Das würde sich dann vielleicht ändern.
Wie häufig wird gekocht: (fast) täglich 1x warm
Wird alleine gekocht? Oder auch gemeinsam? Mit und für Gäste?: Eher alleine
Spülen und Müll
Spülenform: 1 1/2 Becken mit Abtropffläche
Welche Mülltrennung soll in der Küche vorgehalten werden: Bio/Restmüll ungetrennt, Plastik
Sonstiges
Steht schon ein Küchenhersteller fest oder wird bevorzugt: nein
Steht schon ein Gerätehersteller fest oder wird bevorzugt: nein
Küchenstil: Grifflose Küche
Was stört an der bisherigen Küche und was soll die neue Küche unbedingt können? Warum?: In der jetzigen Küche sind über einem Großteil der Arbeitsfläche Hängeschränke. Diese stören mich, sodass ich immer die "ungestörte" Arbeitsfläche nutze. Unser derzeitiger Kühlschrank ist zu klein.
Preisvorstellung (Budget): 12000
Angehängte Dateien
Hallo ihr Lieben
Wir befinden uns derzeit noch in der Planungsphase hinsichtlich des gesamten Hauses. Hier geht es um die Idee, die wir für unsere Küche haben, und darum herauszufinden, ob die gesamte Grundidee vielleicht so doof ist, dass wir den Grundriss ändern sollten.
Dementsprechend sind die Farben erst einmal nicht so wichtig, Technische Geräte konnte ich leider auch gar nicht auswählen. Es geht aber natürlich um die Position der Geräte, die habe ich schon so eingezeichnet, wie ich mir das vorstelle.
Die Ecken sollen beide tot werden.
Die eingezeichnete Tür führt zur Speisekammer und soll in der Realität schmaler werden und vor allem in Richtung Speisekammer öffnen. Das eingezeichnete Fenster ist eigentlich 2m breit und bodentief. Leider war das Programm (oder ich?) dazu nicht in der Lage. Tut mir leid, dass so viel Vorstellungskraft erforderlich ist, aber ich habe es nicht besser hinbekommen...
Anmerkungen zur Checkliste:
- Das "Kind" ist dann 14, deswegen habe ich es nicht als Kind angegeben.
- Wir möchten einen großen, ziemlich hohen Kühlschrank haben. Welche Maße es genau werden sollen ist aber noch nicht entschieden.
- Einen hochgebauten Geschirrspüler fände ich toll, habe ich aber nicht untergebracht... Vielleicht den Apothekerschrank weglassen und dafür einen hochgebauten Geschirrspüler ? Der ist dann aber ziemlich weit weg vom Waschbecken, geht das? Und würde das verbleibende "Arbeitsplatteneck" dadurch zu klein?
- Ich möchte einen Kochfeldabzug. Ich denke, dass dadurch das Kochfeld ziemlich breit wird.
Ich hoffe, ich habe das jetzt richtig gemacht
Checkliste zur Küchenplanung
Personenkriterien und Ergonomie
Anzahl Personen im Haushalt: 3
Davon Kinder: keine
Körpergrößen aller Hauptbenutzer in cm (wegen Arbeitshöhe ): 184, 173, derzeit 170
Welche Arbeitshöhe ist angedacht (in cm)?: aktuell haben wir 87, das ist recht niedrig. Vielleicht 90? 92?
Gebäudekriterien
Art des Gebäudes: Neu-/Umbau > Planänderungen möglich
Brüstungshöhe des Fensters (in cm): bodentief
Fensterhöhe (in cm): 209
Raumhöhe in cm: 250
Heizung: Fußbodenheizung
Sanitäranschlüsse: vollkommen variabel
Einbaugerätekriterien
Ausführung Kühlgerät: Integriert im Hochschrank (60cm)
Einbaukühlgerät Größe: Noch unbekannt
Ausführung Tiefkühl (TK)-Gerät: Nicht erforderlich bzw. steht woanders
Dunstabzugshaube: Umluft
Hochgebauter Backofen : ja
Geplante Heißgeräte: Standmikrowelle, Backofen
Hochgebauter Geschirrspüler : wenn möglich
Art des Kochfeldes: Induktion
Kochfeldbreite (ca. in cm): 80 - 100
Sitzmöglichkeiten
Sitzmöglichkeit in der Küche / im Küchenbereich: Keine
Sitzmöglichkeit: Für wieviel Personen?: N. a.
Sitzmöglichkeit: Tisch - wenn gesonderter Tisch oder offene Küche: N. a.
Gewünschte oder vorhandene Tischgröße:
Wofür soll der Sitzplatz in der Küche genutzt werden und wie häufig:
Stauraumplanung
Was steht auf der Arbeitsplatte oder soll dort stehen?: Kaffeevollautomat, Messerblock, Obstschale
Welche weiteren Küchenmaschinen müssen in der Küche untergebracht werden: Wasserkocher, Handrührgerät
Was soll in der Küche außer den Standards untergebracht werden: Geschirr komplett (nichts in Ess-/Wohnzimmer)
Welchen Stauraum gibt es sonst noch: Speisekammer, Hauswirtschaftsraum
Kochgewohnheiten
Was/wie wird gekocht? (Alltagsküche, Menüs, Snacks usw): Ich koche täglich am Abend ein durchschnittliches Abendessen
Wie häufig wird gekocht: (fast) täglich 1x warm
Wird alleine gekocht? Oder auch gemeinsam? Mit und für Gäste?: Eher alleine
Spülen und Müll
Spülenform: 1 1/2 Becken mit Abtropffläche
Welche Mülltrennung soll in der Küche vorgehalten werden: Bio/Restmüll ungetrennt, Plastik
Sonstiges
Steht schon ein Küchenhersteller fest oder wird bevorzugt: nein
Steht schon ein Gerätehersteller fest oder wird bevorzugt: nein
Küchenstil: Grifflose Küche
Was stört an der bisherigen Küche und was soll die neue Küche unbedingt können? Warum?: In der jetzigen Küche sind über einem Großteil der Arbeitsfläche Hängeschränke. Diese stören mich, sodass ich immer die "ungestörte" Arbeitsfläche nutze. Unser derzeitiger Kühlschrank ist zu klein.
Preisvorstellung (Budget): 12000
Angehängte Dateien
Anhänge



