notyze
Mitglied
- Beiträge
- 4
Titel des Themas: Offene Küche in Eigentumswohnung im 1950er Haus
Guten Tag Zusammen,
vielen Dank für diese tolle Plattform. Hier kann man sich einiges an Informationen für die eigene Küchenplanung zusammentragen. Die Plattform wird uns bis zum Kauf bestimmt noch einiges weiter helfen.
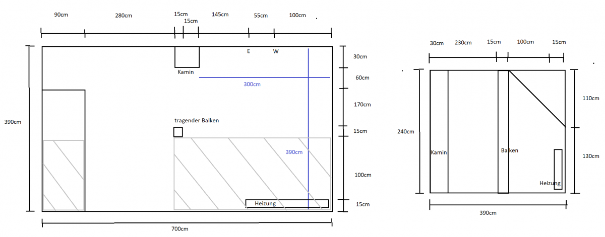
Anbei der Grundriss der offenen Küche. Diese dient als "Eingangsbereich". Dh. man kommt von der eingangstüre im EG auf einer Treppe in die Wohnung. Zutritt ist "oben links" im Grundriss. Die anschließenden Türen beginnend ab dem Treppenaufgang: Badezimmer, Kinderzimmer, Wohnzimmer. Vom Wohnzimmer wird man weiter ins Elternschlafzimmer kommen.
Ebenfalls ist eine Treppe in der Wohnung nach oben ins DG. (Im Grundriss "unten links") Dieses ist nicht ausgebaut und soll auch die nächsten 10 Jahre ca. nicht ausgebaut werden, aber der Treppenaufgang ist eben im Küchenraum vorhanden.
Es gibt in der offenen Küche eine Dachschräge, die bis zum tragenden Balken geht. Unter dieser Dachschräge gibt es eine Heizung, die dort bleiben muss. In der Dachschräge ist ein kleines Dachfenster (ca. 60cm breit). Ab dem Balken ist ein Giebel eingebaut (dort auch zwei Fenster).
Die Küche selbst ist ab dem Kamin um die Ecke geplant und bis zur Heizung kann geplant werden, wobei hier auch die DS geachtet werden muss.
Die letzte Küchenplanerin hatte uns ein Konzept vorgestellt, das den Kamin mit der Arbeitsplatte "umschließt" und somit eine Halbinsel darstellt, das hat uns relativ gut gefallen. Das Aufmaß muss zeigen, ob dieses umgesetzt werden kann, da links neben dem Kamin relativ bald (ca. 10cm) die Eingangstüre zum Wohnzimmer anschließt.
Für die Küchengeräte haben wir uns nichts besonderes vorgestellt: Bei dem Ofen reichen die Grundfunktionen Heißluft und OU Hitze. Der Kühlschrank sollte ein Gefrierfach haben, in welchem man auf einen kleineren Zeitraum Vorräte lagern kann. Das Kochfeld sollte bitte Glaskeramik ohne Touchscreen sein. Eine Abzugshaube ist bisher nicht geplant (Da keine Abluft möglich ist, haben wir aber gesagt, dass wir bei Bedarf nachrüsten mit einer Umluftanlage)
Ich bin gespannt, was die Forumsmitglieder zur bisherigen Planung beitragen können oder welche Anmerkungen es gibt. Vielleicht haben wir einige Möglichkeiten auch noch gar nicht in Betracht gezogen.
Bei Anmerkungen zu den Anhängen oder Ausfüllen der Checkliste bitte rege nachfragen.
Vielen Dank und viele Grüße,
Notyze
PS: Starkstromanschluss rot - Wasseranschluss blau markiert.
Checkliste zur Küchenplanung
Personenkriterien und Ergonomie
Anzahl Personen im Haushalt: 2
Davon Kinder: keine
Körpergrößen aller Hauptbenutzer in cm (wegen Arbeitshöhe ): 178 beide
Welche Arbeitshöhe ist angedacht (in cm)?: Perfekt wären 92 bis 96 cm aber bisherige Küche mit 87 cm hat uns auch nicht gestört
Gebäudekriterien
Art des Gebäudes: Bestandsbau > Umbauten ausgeschlossen, Eigentum
Brüstungshöhe des Fensters (in cm): unbekannt aber auch nicht im Küchenbereich
Fensterhöhe (in cm): -
Raumhöhe in cm: -
Heizung: Heizkörper wie im Grundriss
Sanitäranschlüsse: fix
Einbaugerätekriterien
Ausführung Kühlgerät: Integriert im Hochschrank (60cm)
Einbaukühlgerät Größe: Noch unbekannt
Ausführung Tiefkühl (TK)-Gerät: Im Kühlschrank ab 3 Schubladen unten
Dunstabzugshaube: keine
Hochgebauter Backofen : nein
Geplante Heißgeräte: Standmikrowelle, Backofen
Hochgebauter Geschirrspüler : nein
Art des Kochfeldes: Ceran (herkömmliche Beheizung)
Kochfeldbreite (ca. in cm): 60
Sitzmöglichkeiten
Sitzmöglichkeit in der Küche / im Küchenbereich: Separater Tisch
Sitzmöglichkeit: Für wieviel Personen?: Für 6 Personen
Sitzmöglichkeit: Tisch - wenn gesonderter Tisch oder offene Küche: Vorhandener Tisch
Gewünschte oder vorhandene Tischgröße: 200x100 cm
Wofür soll der Sitzplatz in der Küche genutzt werden und wie häufig:
Stauraumplanung
Was steht auf der Arbeitsplatte oder soll dort stehen?: Kaffeemaschine, Wasserkocher, Toaster
Welche weiteren Küchenmaschinen müssen in der Küche untergebracht werden: Küchenmaschine, Wasserkocher, Handrührgerät, Mixer, Pürierstab
Was soll in der Küche außer den Standards untergebracht werden: ALLE Vorräte
Welchen Stauraum gibt es sonst noch: Keller
Kochgewohnheiten
Was/wie wird gekocht? (Alltagsküche, Menüs, Snacks usw): Alltagsküche, Snacks
Wie häufig wird gekocht: (fast) täglich 1x warm
Wird alleine gekocht? Oder auch gemeinsam? Mit und für Gäste?: Auch gemeinsam
Spülen und Müll
Spülenform: 1 Becken ohne Abtropffläche
Welche Mülltrennung soll in der Küche vorgehalten werden: Biomüll, Gelber Sack Müll
Sonstiges
Steht schon ein Küchenhersteller fest oder wird bevorzugt: noch offen, bevorzugt Häcker Bristol Samtblau
Steht schon ein Gerätehersteller fest oder wird bevorzugt: noch offen
Küchenstil: Klassisch
Was stört an der bisherigen Küche und was soll die neue Küche unbedingt können? Warum?: bisher kleine Küche in kleiner Wohnung - neue Küche für Familienplanng im Eigenheim; bisher wenig Staurumfläche - in der neuen Küche wird einiges mehr an Stauraum benöigt, da die Küche als Eingangsbereich dient und keine sonstigen Stellflächen für andere Schränke verfügbar sind; bisher steht man sich beim gemeinsamen Kochen oft im Weg; bisher nur ein Unterschrank platz als Arbeitsbereich (zum Schnippeln); bisher Mikrowelle auf Arbeitsplatte - diese sollte möglichst im Schrank verschwinden; bisher Geschirr in offenen Regalen - diese sollen in staubfreie Schränke;
Preisvorstellung (Budget): 7.000 in Planung, max. Budget von 10.000€; 12.000€ wird für Bristol akzeptiert
Angehängte Dateien
Guten Tag Zusammen,
vielen Dank für diese tolle Plattform. Hier kann man sich einiges an Informationen für die eigene Küchenplanung zusammentragen. Die Plattform wird uns bis zum Kauf bestimmt noch einiges weiter helfen.
Anbei der Grundriss der offenen Küche. Diese dient als "Eingangsbereich". Dh. man kommt von der eingangstüre im EG auf einer Treppe in die Wohnung. Zutritt ist "oben links" im Grundriss. Die anschließenden Türen beginnend ab dem Treppenaufgang: Badezimmer, Kinderzimmer, Wohnzimmer. Vom Wohnzimmer wird man weiter ins Elternschlafzimmer kommen.
Ebenfalls ist eine Treppe in der Wohnung nach oben ins DG. (Im Grundriss "unten links") Dieses ist nicht ausgebaut und soll auch die nächsten 10 Jahre ca. nicht ausgebaut werden, aber der Treppenaufgang ist eben im Küchenraum vorhanden.
Es gibt in der offenen Küche eine Dachschräge, die bis zum tragenden Balken geht. Unter dieser Dachschräge gibt es eine Heizung, die dort bleiben muss. In der Dachschräge ist ein kleines Dachfenster (ca. 60cm breit). Ab dem Balken ist ein Giebel eingebaut (dort auch zwei Fenster).
Die Küche selbst ist ab dem Kamin um die Ecke geplant und bis zur Heizung kann geplant werden, wobei hier auch die DS geachtet werden muss.
Die letzte Küchenplanerin hatte uns ein Konzept vorgestellt, das den Kamin mit der Arbeitsplatte "umschließt" und somit eine Halbinsel darstellt, das hat uns relativ gut gefallen. Das Aufmaß muss zeigen, ob dieses umgesetzt werden kann, da links neben dem Kamin relativ bald (ca. 10cm) die Eingangstüre zum Wohnzimmer anschließt.
Für die Küchengeräte haben wir uns nichts besonderes vorgestellt: Bei dem Ofen reichen die Grundfunktionen Heißluft und OU Hitze. Der Kühlschrank sollte ein Gefrierfach haben, in welchem man auf einen kleineren Zeitraum Vorräte lagern kann. Das Kochfeld sollte bitte Glaskeramik ohne Touchscreen sein. Eine Abzugshaube ist bisher nicht geplant (Da keine Abluft möglich ist, haben wir aber gesagt, dass wir bei Bedarf nachrüsten mit einer Umluftanlage)
Ich bin gespannt, was die Forumsmitglieder zur bisherigen Planung beitragen können oder welche Anmerkungen es gibt. Vielleicht haben wir einige Möglichkeiten auch noch gar nicht in Betracht gezogen.
Bei Anmerkungen zu den Anhängen oder Ausfüllen der Checkliste bitte rege nachfragen.
Vielen Dank und viele Grüße,
Notyze
PS: Starkstromanschluss rot - Wasseranschluss blau markiert.
Checkliste zur Küchenplanung
Personenkriterien und Ergonomie
Anzahl Personen im Haushalt: 2
Davon Kinder: keine
Körpergrößen aller Hauptbenutzer in cm (wegen Arbeitshöhe ): 178 beide
Welche Arbeitshöhe ist angedacht (in cm)?: Perfekt wären 92 bis 96 cm aber bisherige Küche mit 87 cm hat uns auch nicht gestört
Gebäudekriterien
Art des Gebäudes: Bestandsbau > Umbauten ausgeschlossen, Eigentum
Brüstungshöhe des Fensters (in cm): unbekannt aber auch nicht im Küchenbereich
Fensterhöhe (in cm): -
Raumhöhe in cm: -
Heizung: Heizkörper wie im Grundriss
Sanitäranschlüsse: fix
Einbaugerätekriterien
Ausführung Kühlgerät: Integriert im Hochschrank (60cm)
Einbaukühlgerät Größe: Noch unbekannt
Ausführung Tiefkühl (TK)-Gerät: Im Kühlschrank ab 3 Schubladen unten
Dunstabzugshaube: keine
Hochgebauter Backofen : nein
Geplante Heißgeräte: Standmikrowelle, Backofen
Hochgebauter Geschirrspüler : nein
Art des Kochfeldes: Ceran (herkömmliche Beheizung)
Kochfeldbreite (ca. in cm): 60
Sitzmöglichkeiten
Sitzmöglichkeit in der Küche / im Küchenbereich: Separater Tisch
Sitzmöglichkeit: Für wieviel Personen?: Für 6 Personen
Sitzmöglichkeit: Tisch - wenn gesonderter Tisch oder offene Küche: Vorhandener Tisch
Gewünschte oder vorhandene Tischgröße: 200x100 cm
Wofür soll der Sitzplatz in der Küche genutzt werden und wie häufig:
Stauraumplanung
Was steht auf der Arbeitsplatte oder soll dort stehen?: Kaffeemaschine, Wasserkocher, Toaster
Welche weiteren Küchenmaschinen müssen in der Küche untergebracht werden: Küchenmaschine, Wasserkocher, Handrührgerät, Mixer, Pürierstab
Was soll in der Küche außer den Standards untergebracht werden: ALLE Vorräte
Welchen Stauraum gibt es sonst noch: Keller
Kochgewohnheiten
Was/wie wird gekocht? (Alltagsküche, Menüs, Snacks usw): Alltagsküche, Snacks
Wie häufig wird gekocht: (fast) täglich 1x warm
Wird alleine gekocht? Oder auch gemeinsam? Mit und für Gäste?: Auch gemeinsam
Spülen und Müll
Spülenform: 1 Becken ohne Abtropffläche
Welche Mülltrennung soll in der Küche vorgehalten werden: Biomüll, Gelber Sack Müll
Sonstiges
Steht schon ein Küchenhersteller fest oder wird bevorzugt: noch offen, bevorzugt Häcker Bristol Samtblau
Steht schon ein Gerätehersteller fest oder wird bevorzugt: noch offen
Küchenstil: Klassisch
Was stört an der bisherigen Küche und was soll die neue Küche unbedingt können? Warum?: bisher kleine Küche in kleiner Wohnung - neue Küche für Familienplanng im Eigenheim; bisher wenig Staurumfläche - in der neuen Küche wird einiges mehr an Stauraum benöigt, da die Küche als Eingangsbereich dient und keine sonstigen Stellflächen für andere Schränke verfügbar sind; bisher steht man sich beim gemeinsamen Kochen oft im Weg; bisher nur ein Unterschrank platz als Arbeitsbereich (zum Schnippeln); bisher Mikrowelle auf Arbeitsplatte - diese sollte möglichst im Schrank verschwinden; bisher Geschirr in offenen Regalen - diese sollen in staubfreie Schränke;
Preisvorstellung (Budget): 7.000 in Planung, max. Budget von 10.000€; 12.000€ wird für Bristol akzeptiert
Angehängte Dateien
Anhänge
-
Grundriss.KPL3,9 KB · Aufrufe: 158
-
Grundriss.POS3,7 KB · Aufrufe: 147
-
Küchenbild_01.PNG513,9 KB · Aufrufe: 244 -
Küchenbild_02.PNG396,6 KB · Aufrufe: 221 -
Küchenbild_03.PNG433,9 KB · Aufrufe: 226 -
Küchenbild_04.PNG593,6 KB · Aufrufe: 237 -
Küchenplanung_inkl_Leitung.PNG186,6 KB · Aufrufe: 232 -
Küchenplanung.POS7,2 KB · Aufrufe: 141
-
Küchenplanung.KPL3,9 KB · Aufrufe: 146
