Neue Küche für neue RE-Haus aus den 60ern

zitronenkuchen

Mitglied
Beiträge
21
Titel des Themas: Neue Küche für neue RE-Haus aus den 60ern

Hallo zusammen,

wir haben ein Reihenendhaus aus den 60ern gekauft und planen gerade an unserer Küche. Wir waren schon in 2 Küchenstudios haben dort aber keinen Vorschlag bekommen, der uns gefallen hat. Deshalb dachten wir, dass wir die Planung erst einmal selbst erstellen und dann damit nochmal einen Versuch starten.

Unten findet ihr den letzten Planstand. Für Kommentare und Vorschläge bin ich dankbar.

Checkliste zur Küchenplanung

Personenkriterien und Ergonomie
Anzahl Personen im Haushalt: 4
Davon Kinder: 2
Körpergrößen aller Hauptbenutzer in cm (wegen Arbeitshöhe ): 170-185
Welche Arbeitshöhe ist angedacht (in cm)?: 92

Gebäudekriterien
Art des Gebäudes: Bestandsbau > (kleinere) Umbauten möglich
Brüstungshöhe des Fensters (in cm): 101
Fensterhöhe (in cm): 120
Raumhöhe in cm: 250
Heizung: Fußbodenheizung
Sanitäranschlüsse: vollkommen variabel

Einbaugerätekriterien
Ausführung Kühlgerät: Stand-Alone bis 60cm Breite
Einbaukühlgerät Größe: N. a.
Ausführung Tiefkühl (TK)-Gerät: Im Kühlschrank ab 3 Schubladen unten
Dunstabzugshaube: Abluft
Hochgebauter Backofen : nein
Geplante Heißgeräte: Backofen
Hochgebauter Geschirrspüler : nein
Art des Kochfeldes: Gas
Kochfeldbreite (ca. in cm): 60

Sitzmöglichkeiten
Sitzmöglichkeit in der Küche / im Küchenbereich: Separater Tisch
Sitzmöglichkeit: Für wieviel Personen?: nein
Sitzmöglichkeit: Tisch - wenn gesonderter Tisch oder offene Küche: Vorhandener Tisch
Gewünschte oder vorhandene Tischgröße: 220x100
Wofür soll der Sitzplatz in der Küche genutzt werden und wie häufig: täglich

Stauraumplanung
Was steht auf der Arbeitsplatte oder soll dort stehen?: Kaffeemaschine, Wasserkocher, Brotbehälter
Welche weiteren Küchenmaschinen müssen in der Küche untergebracht werden: Handrührgerät, Pürierstab
Was soll in der Küche außer den Standards untergebracht werden: Geschirr komplett (nichts in Ess-/Wohnzimmer)
Welchen Stauraum gibt es sonst noch: Hauswirtschaftsraum

Kochgewohnheiten
Was/wie wird gekocht? (Alltagsküche, Menüs, Snacks usw): Alltagsküche
Wie häufig wird gekocht: (fast) täglich 1x warm
Wird alleine gekocht? Oder auch gemeinsam? Mit und für Gäste?: gemeinsam

Spülen und Müll
Spülenform: 1 Becken mit Abtropffläche
Welche Mülltrennung soll in der Küche vorgehalten werden: Altpapier, Gelber Sack Müll

Sonstiges
Steht schon ein Küchenhersteller fest oder wird bevorzugt: nein
Steht schon ein Gerätehersteller fest oder wird bevorzugt: Geräte vorhanden
Küchenstil: Grifflose Küche
Was stört an der bisherigen Küche und was soll die neue Küche unbedingt können? Warum?: keine Küche im Haus
Preisvorstellung (Budget): 15000 ohne Geräte

Angehängte Dateien
 

Anhänge

  • 190610 Küche Ansichten.jpg
    190610 Küche Ansichten.jpg
    53,5 KB · Aufrufe: 422
  • 190610 Küche Grundriss.jpg
    190610 Küche Grundriss.jpg
    63,7 KB · Aufrufe: 415
Herzlich willkommen im Forum!
da es viel los hier ist, braucht man möglichst alle Infos parat und auch die Erklärungen was dir an deiner letzten Planung gefällt und was nicht.

Zunächst bitte einen Geschossgrundriss als Bild hinzufügen, damit man auch die Wege zur Küche besser nachvollziehen kann. Und es fehlen noch weitere Maße links der unteren Tür, die vermutlich vom Flur? kommt.

Was mir an der Planung nicht gefällt ist, dass es zu wenig Hauptarbeitsfläche zwischen Kochfeld und Spüle ist, der dich dann immer zwischen wird entweder in der Ecke zu schnippeln oder erst mal alles auf das Stummel-Inselchen zu schleppen, dort schnippeln. Es sind viele schmale US verplant, breitere sind besser nutzbar. Du hast nicht viel Küche und da werden noch viele Regale verplant. Sind teuer und im 60 cm tiefen Regal will ich nicht unten auf den Knien kramen müssen.

Bist du dir bewusst, dass grifflos auch Stauraumverlust bedeutet, Alternative wäre z.B. auch dezente Aufsatzgriffe.

Wenn die Planung für 15K ohne Geräte verplant worden ist, dann halte ich das nicht für gerade eine Glanzleistung.

Dann noch eine Frage zum Gasherd. Ist es irgendwie ein super geniales Teil oder stinknormales Gasherd? Schon mal Induktion ausprobiert? Fein regelbar, brennt nichts an und super zu putzen und auch keine Verbrennungsgefahr bei Kindern. Ich würde den Gasherd lieber verkaufen und in ein autarkes Set etwas von dem Budget abzweigen, erhöhten Backofen oder DGC realisieren und schönes Induktions-Kochfeld.

Das sind erst mal paar Anregungen zum Nachdenken.
 
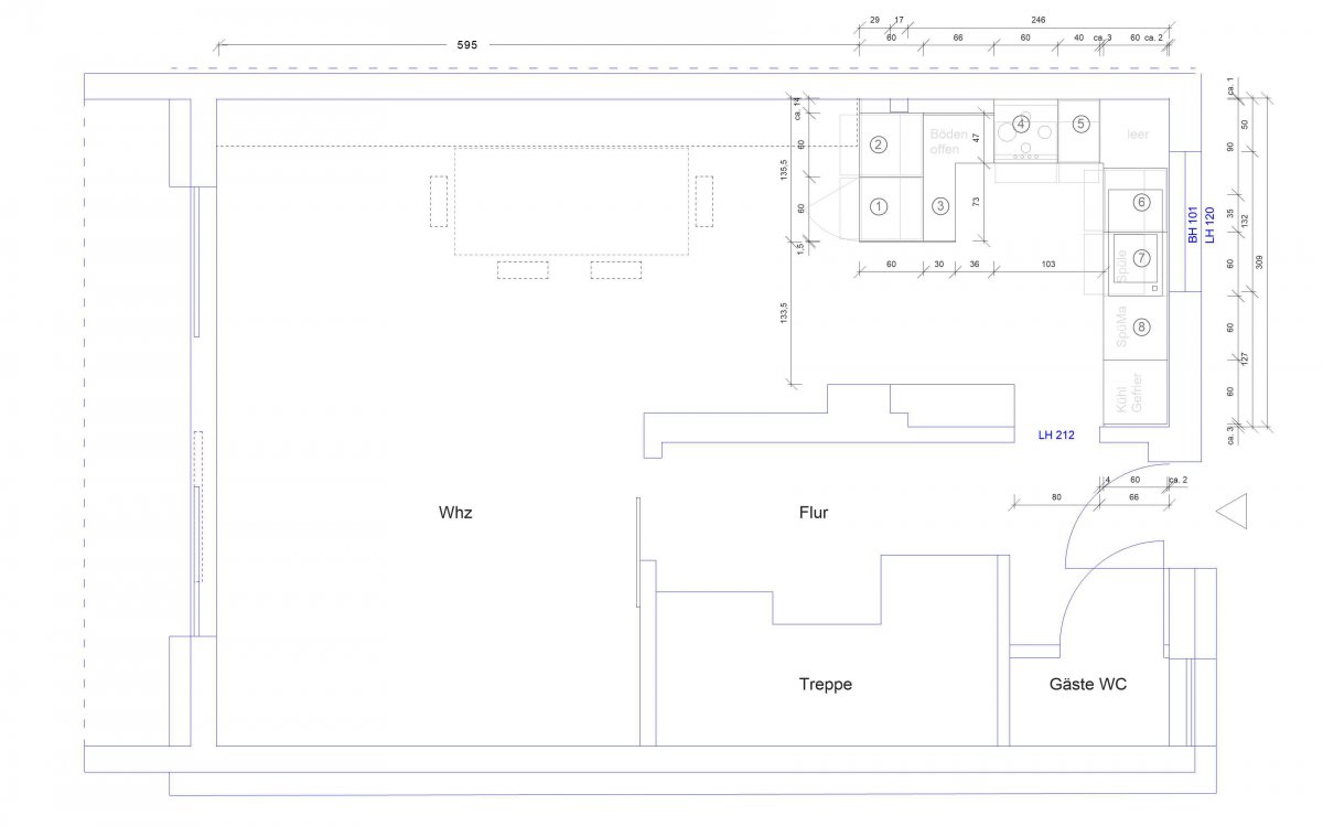
Grundriss anbei.

Die Küche soll kompakt sein aber dabei funktional bleiben. Schnickschnack brauchen wir nicht. Die Kritik mit der wenigen Arbeitsfläche sehe ich als berechtigt an. Wie könnte man das anders machen?

Danke für den Hinweis mit dem Platzverlust bei grifflosen Küchen. Das wusste ich noch nicht, generell hätte ich auch kein Problem mit Griffen. Vielleicht würde ich die Inselfront zum Tisch trotzdem grifflos machen.

15 K ist nur ein Budget, wenn es günstiger wird ist auch gut.

Gas ist Pflicht, hatte ich schon immer und werde ich behalten, trotzdem danke für die Anregung.

Viele schmale Unterschränke sehe ich garnicht, eigentlich ist es nur Schrank Nr.5. Schrank Nr. 3 ergibt sich aus dem Rest aber vielleicht gibt es ja auch eine bessere Lösung.

Generell sind wir mit den Maßen in Richtung Tisch flexibel, möchten die Küche aber nicht unnötig aufblähen.

Auf Oberschränke wollen wir verzichten. Statt dessen haben wir ein offenes Regal an der Wand mit dem Kamin (im Grundriss unten).

Welche Optionen gibt es das ganze zu optimieren und mehr zusammenhängende Arbeitsfläche zu schaffen?
 

Anhänge

  • 190610 EG Grundriss.jpg
    190610 EG Grundriss.jpg
    63,2 KB · Aufrufe: 352
  • 20190612_140700.jpg
    20190612_140700.jpg
    71,7 KB · Aufrufe: 384
zitrone0.jpg

kannst du das Maß oben ergänzen und die Wand planunten erklären?

Die eingestellten Küchenbilder sind welcher Hersteller? Es sieht aus wie 3 x 2 Raster Auszüge und keine direkte Schublade?

Warum sind zwischen dem Inselende und der Wand planunten soviel Abstand (133cm)?
 
Maß habe ich oben ergänzt. Zu den Rückfragen:

-die eingekringelte Wand stellt ein Regal dar. Foto hatte ich oben mitgeschickt. Hier werden Vorräte aufbewahrt
-die Zeichnung habe ich selbst erstellt Da ist kein Küchenhersteller hinterlegt.
-den großen Abstand empfinden wir als angenehm. Könnte man aber sicher auch etwas kleiner wählen wenn das ein Vorteil ist
-Brüstungshöhe des Fensters ist leider fix, da der Vorbesitzer vor 8 Jahren neue Fenster eingebaut hat. Sonst wäre es sicher gut gewesen die AP mit in die Nische zu ziehen.
 
sorry, hatte vergessen, dass es eine Bestandsimmobilie ist.

Die Abluft soll wo raus? nach hinten oder neben dem Fenster?

Mit grifflos werden auch Fronten bezeichnet, die obn auf der Front aufgesetzte Griffe haben. Wollt ihr sowas? Dabei gibt es keinen Stauraumverlust.
 
Abluft kann neben dem Fenster raus.
Eigentlich dachten wir an Grifflos im Sinn von Griffmulden, wir können aber auch Griff nehmen, das ist schon ok.
 
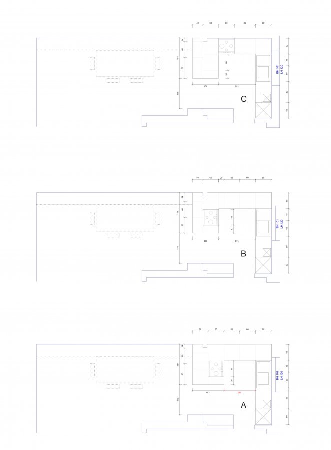
Der Einwand mit der wenigen Arbeitsfläche zwischen Spüle und Kochfeld hat mich beschäftigt und deshalb habe ich mal ein paar Varianten gezeichnet.

A
Kochfeld ist jetzt in der angehängten Insel, dadurch ergibt sich eine schöne Fläche zwischen Kochfeld und Spühle. Der Abstand dazwischen beträgt nur 120 cm (rotes Maß), das kommt mir sehr wenig vor oder passt das?
Auf der Insel, hinter dem Kochfeld könnte man jetzt auch mal etwas abstellen. Andererseits empfinde ich 120 cm Breite für die Insel ganz schön viel.

B
Hier ist der Abstand zwischen AP Spühle und AP Kochfeld auf 140 cm vergrößert. Das sollte genug sein. Die Insel selbst ist nur noch 100 cm breit. Jetzt könnte man eher nichts mehr hinter den Herd stellen. Die Insel ist eigentlich nur noch zum kochen da

C
Die Insel ist jetzt wieder Kochfeldfrei und kann für die gemeinsame Zubereitung oder zum temporären Abstellen genutzt werden. Das Kochfeld liegt am Rand der mittleren AP. Ist sowas ok oder eher unpraktisch? Die Flächen zwischen Kochfeld und Spühle scheint mir immer noch ausreichend zu sein.
 

Anhänge

  • 190610 Küche Grundriss ABC.jpg
    190610 Küche Grundriss ABC.jpg
    35,3 KB · Aufrufe: 355
Im Spühlenbereich habe ich die Spühlmaschine jetzt nur noch mit 45er Breite, daneben ein 60er US mit Müll und dann ein 80er US. Eigentlich dachte ich, wir machen alles 60 breit, weil es vielleicht etwas besser aussieht. Uns würde aber die 45er Maschinen genügen. Wir haben seit 10 Jahren eine kleine Spühlmaschine und kommen mit 2 Kindern trotzdem bestens zurecht.
Sieht das nicht komisch aus wenn man 45/60/80 nebeneinander stellt?
 
Ist das Gasfeld autark? Ist Backofen separat, könnte dieser erhöht eingebaut werden?

Ich habe an eine Zeile mit 2 Hochschränken planrechts gedacht und freien Kochinsel parallel zur langen Wand, so 240 x 90.
 
Denke das funktioniert nicht. Wenn die Insel mit 90 cm Breite mittig aufgestellt wird, bleibt zu beiden Seiten je 90 cm Durchgangsbreite. Ein bisschen wenig. Außerdem müssten wir den Tisch deutlich weiter in den Raum schieben...
 
kannst du die Bilder in #10 so hochladen, dass man die Zahlen lesen kann? vielleicht pdf

Wenn es ein Gaskochfeld wird, wollte ich es auf keinem Fall in der Halbinsel, dass wäre mir zu gefährlich. AUßerdem musst du an die ABluft denken.

einfacher wäre die Abluft hinter der DAH raus.
Einen 45er GSP für einen 4 Personenhaushalt finde ich nicht sinnvoll. Das Teil verbraucht dieselbe Menge Wasser und Strom, muss dann aber 2 x laufen, weil wenig reinpasst.

Ich würde es so machen.
zitrone11.jpgzitrone1.JPGZitrone2.JPGzitrone3.JPGzitrone4.JPG

der 60er US links neben der Spüle kann auch 1-2-3 oder 1-1-2-2 sein, kommt darauf an, ob es dich optisch stört. Ansonsten mach eine Innenschublade oben (und unten) rein für Folien, Brettchen, Kleinkram. Geschirr passt in einen 2er Auszug, 60cm breit.

Rechts neben dem Kochfeld wäre dann oben der MUPL , unten Ölflaschen.
Links vom Kochfeld dann Gewürze usw.

Im 100er oben Besteck, in den höheren Auszuegen Pfannen, Töpfe, Schüsseln.

In dem mindertiefen 90er HS mit Türen planunten passen gut Vorräte.

Ich würde den Solo KS bevorzugen, weil mehr Platzinhalt.
 
Stark, danke für die Tipps. Ich bin heute den ganzen Tag unterwegs und kann es mir erst heute Abend in Ruhe anschauen. Dann lade ich auch den Grundriss nochmal hoch.:muscle:
 
je nachdem wie ihr den Esstisch nutzt (Hausaufgaben, Spiele, Basteln etc.) wäre die Nähe zum Tageslicht relevant.

Ja, ich habe früher auch auf Gas geschworen und wollte nie was anderes; bis ich Induktion kennen lernte.... - 'das Bessere ist der grösste Feind des Guten'
 
Hat dann doch etwas länger gedauert als gedacht ;-)
Anbei der neue Grundriss und die Ansichten. Was haltet ihr von der überarbeiteten Version?
 

Anhänge

  • 190910 W35 Küche Ansichten.pdf
    21,8 KB · Aufrufe: 315
  • 190910 W35 Küche Grundriss.pdf
    16,6 KB · Aufrufe: 328
Preisauskunft
Zuerst ist zu sagen, dass wir uns hier nicht als Preisauskunft verstehen. In unserem Planungsboard geht es vorrangig um Planungsoptimierung. Wenn es zum Preis kommt, dann kann man schon Aussagen treffen wie "zu teuer", "ok" mit Alternative nichts zu sagen oder "echtes Schnäppchen". Für mehr wirst du hier niemanden finden. Eine Küche ist immer auch ein individuelles Kalkulationsobjekt.

Faktoren wie
  • Kosten des Studioinhabers (unterschiedliche hohe Mieten, Lohn usw., z. B. wg. der Region)
  • Entfernung Montageort
  • Vorrätigkeit, evtl. Auslaufmodelle etc. oder auch Konditionen für Geräteeinkauf
spielen eine Rolle, die hier niemand beurteilen kann. Damit wir überhaupt etwas zum Preis sagen können benötigen wir folgende Infos:
  1. Aussagekräftige Planungsbilder, oder im Alno -Planer genau nachgebildet
  2. Hersteller, Frontmaterial, Korpushöhe, Übertiefen, Preisgruppe, Griffart, Innenausbau, Arbeitsplattenmaterial, sonstige Extras
  3. wenn Stein- APL : Steinname & Herkunft; Bearbeitung, Randgestaltung, Oberflächenfinish
  4. mit/ohne Lieferung & Montage
Ausserdem:
  1. ermittle den MITTLEREN Internetpreis, plus Versandspesen, plus ca. €100 für den Einbau/Gerät und vom Preis abziehen (Geräte, Spüle , Armaturen).
  2. Verlinke die Geräte / Armaturen / Spüle auf die jeweilige Herstellerseite, wenn wir die Auswahl kommentieren sollen.
Und dann bietet es sich immer an, das ganze so darzustellen:
  • Bilder der Planung: xx
  • Gesamtpreis: xxx
  • davon ermittelter Internetpreis Geräte: xxx
  • Hersteller / Serie: xxx
  • Korpushöhe: xxx
  • Frontmaterial: xxx
  • Wangenmaterial: xxx
  • APL-Material: xxx
Das wäre dann übersichtlich. *
 

Ähnliche Beiträge

Neff Hausgeräte Ballerina Küchen Blum Bewegungstechnologie Weibel - Intelligente Küchenlüftung

Neff Spezial

Blum Zonenplaner

Weibel Abluft-Tuning

Weibel Abluft-Tuning
Zurück
Oben