Neue Küche für Mietwohnung

Pataclaun

Mitglied
Beiträge
6
Sehr geehrte Küchenfreunde,

ich hoffe ihr könnt uns bei der Küchenplanung unserer neuen Wohnung helfen. Wir suchen etwas stabiles, praktisches, langlebiges und etwas was wir später irgendwann zu unserem zukünftigen Haus nehmen können. Wir sind offen für neue Ideen und Vorschläge. Und wir planen bis 15000 EUR auszugeben.

Ich tendiere grundsätzlich zu Holzmöbel aber meine Frau zu matte Fronten mit warmer Farbe wie Magnoliaweis. Das wäre nur mit Kunststoff möglich, oder?. Mein Wunschmaterial für eine Arbeitsplatte ist Granit. Aber da wir irgendwann umziehen werden, ist es wahrscheinlich dass die Arbeitsplatte wegwerfen müssen. Was schade wäre. Welchen Arbeitsplattematerial könnt ihr empfehlen? Welche Vorteile oder Nachteile haben Kunststoff, Melanine, Folien und Holz als Fronten und Arbeitsplatte?

Ich weiss noch nicht ob wir Induktionsherdplatte wegen der Strahlung nehmen werden. Die Verkäufer sagen dass die weniger als ein Handy strahlen. Ob das gut ist?

Bein Küchenstudios habe ich gehört, dass man Elektrogeräte von "Tochterfirmen" kaufen kann. Was günstiger ist. Ist es wahr, dass die Tochterfirmengeräte die gleiche Qualität als die Mutterfirmen haben und dass der einzige Unterschied ist die Anzahl von Features. Könnt ihr es beurteilen?

Ich werde jedes Eintrag danken.

MfG

Pataclaun


Checkliste zur Küchenplanung von Pataclaun

Anzahl Personen im Haushalt : 4
Davon Kinder? : 2
Körpergrössen aller Hauptbenutzer (wegen Arbeitshöhe ) in cm : 170, 180
Art des Gebäudes? : Bestandsbau, Umbauten ausgeschlossen
Brüstungshöhe des Fensters (in cm) : 86
Fensterhöhe (in cm) : 150
Raumhöhe in cm: : 310
Heizung : Heizkörper wie im Grundriss
Sanitäranschlüsse : fix
Ausführung Kühlgerät? : Integriert im Hochschrank (60cm)
Kühlgerät Größe : noch unbekannt
Ausführung Tiefkühl (TK)-Gerät : Im Kühlschrank ab 3 Schubladen unten
Dunstabzugshaube? : Umluft
Hochgebauter Backofen ? : Wenn möglich
Hochgebauter Geschirrspüler ? : nein
Kochfeldart? : Ceran (herkömmlich)
Kochfeldbreite ca. (in cm)? : 90
Spülenform: : 1,5 Becken mit Abtropffläche
Weitere geplante Heißgeräte : Dampfgarer ohne Wasseranschluß
Küchenstil? : modern
Sitzmöglichkeit in der Küche / im Küchenbereich als : Gesonderter Tisch
Sitzmöglichkeit: Für wieviel Personen? : für 5 Personen
Sitzmöglichkeit: Tisch - wenn gesonderter Tisch oder offene Küche : Vorhandener Tisch
Gewünschte o. vorhandene Tischgröße : 80 x 120 cm
Wofür soll der Sitzplatz in der Küche genutzt werden? Wie häufig? : Zu jeder Mahlzeit
Welche Arbeitshöhe ist angedacht (in cm)? : 90
Was steht auf der Arbeitsplatte oder soll dort stehen? : Wasserkocher, Messerblock, Küchenmaschine, Brotbehälter, Obstschale
Welche weiteren Küchenmaschinen müssen in der Küche untergebracht werden? : Mixer, Pürierstab, Eierkocher
Was soll in der Küche außer den Standards untergebracht werden? : ALLE Vorräte, Getränkekisten, Staubsauger/Wischer etc.
Welchen Stauraum gibt es sonst noch? : Geschirr/Gläserschrank im Wohn-/Esszimmer, Keller
Was/wie wird gekocht? (Alltagsküche, Menüs, Snacks usw) : Alltagsküche
Wie häufig wird gekocht? : (fast) täglich 2x warm
Wird alleine gekocht? Oder auch gemeinsam? Mit und für Gäste? : Auch gemeinsam. Manchmal mit Gäste
Was stört an der bisherigen Küche und was soll die neue Küche unbedingt können? Warum? : Mehr Platz. Das Gefahr dass mein Sohn sich in der Küche verletzen kann.
Steht schon ein Küchenhersteller fest oder wird bevorzugt? : Nein
Steht schon ein Gerätehersteller fest oder wird bevorzugt? : Nein
Preisvorstellung (Budget) : bis 15.000,-
 

Anhänge

  • Küchengrundriss.pdf
    94,1 KB · Aufrufe: 217
  • Grundriss.pdf
    13 KB · Aufrufe: 223
  • PLAN1.KPL
    3,9 KB · Aufrufe: 172
  • PLAN1.POS
    6 KB · Aufrufe: 179
  • IMG_0366.jpg
    IMG_0366.jpg
    46,3 KB · Aufrufe: 165
  • IMG_0369.jpg
    IMG_0369.jpg
    76,4 KB · Aufrufe: 160
  • IMG_0370.jpg
    IMG_0370.jpg
    68,7 KB · Aufrufe: 165
AW: Neue Küche für Mietwohnung

Hallo Pataclaun!

:welcome: im Küchenforum! Wann plant ihr denn wieder umzuziehen? Das Problem ist das man heutzutage nicht sicher sein kann nach z.B. 5 Jahren noch zusätzliche Schränke für seine Küche mit den passenden Fronten zu bekommen. Manchmal kann das auch nach 2 Jahren schon der Fall sein. Und selbst wenn sind oftmals ein paar dazu gekaufte Schränke teurer als eine neue Küche.

Zu dem Induktionsfeld sag ich folgendes:
Unser Bekannter hat im Dezember einen Herzschrittmacher bekommen und gleich nal beim Professor in der Herzklinik nachgefragt. Es stimmt, ein Handy ist gefährlicher als ein Induktionsfeld. Man müßte sich schon drauf legen und es anschalten um nah genug zu sein. Und selbst das ist noch ungefährlich da im "schlimmsten" Fall der Schrittmacher auf eine andere Frequenz wechselt.
Es gibt viele Geräte (unter anderem schnurlose Telefone, Bohrmaschinen ect.)die weitaus gefährlicher sind und über dessen Benutzung sich man im Alltag nicht so einen Kopp macht.

LG
Sabine
 
AW: Neue Küche für Mietwohnung

Vielen Dank Sabine für deinen Beitrag!
Das Problem von Finden den gleichen Fronten nach ein paar Jahren spricht vielleicht dafür Holz auszuwählen, da die Holzfrontenfarben sich später ausgleichen können, oder?

Schöne Grüße

Pataclaun
 
AW: Neue Küche für Mietwohnung

Ich persönlich würde für eine Küche in eine Wohnung in der ich vllt. in ein paar Jahren wieder ausziehe nicht so viel Geld ausgeben. Egal wie du planst sie passt hinterher nicht mehr ins eigene Haus.
Du würdest dich auch zu sehr einschränken.
Die Holzküche verblast mit den Jahren so, dass man neu dazugekaufte Fronten erkennen würde...
und wie du schon richtig sagst, die Granitplatte ist auch nicht mehr zu gebrauchen und die sind ja nicht gerade günstig.
außerdem ändert sich ständig was auf dem Küchenmarkt so dass dir vllt die "Mode" in ein paar Jahren noch besser zusagt...
 
AW: Neue Küche für Mietwohnung

Ich schließe mich den Vorschreiberinnen an und würde nicht darauf setzen, dass in einigen Jahren noch Küchenmöbel aus dem Programm erhältlich sein werden.

Deswegen würde ich eurer Stelle gute Geräte nehmen, die dann mitgenommen werden können.

Dadurch, dass die Essecke in die Küche muss, ist natürlich der Platz etwas beschränkt.

Bei eurer Körpergröße kommen mir 90cm Arbeitshöhe wenig vor.

Deswegen bitte
ARBEITSHÖHE ermitteln
3 Methoden haben sich da etabliert:
- Ellbogen abwinkeln und von dort 15 cm runtermessen
- Höhe Beckenknochen messen
- z. B. Bügelbrett nehmen und in verschiedenen Höhen Probeschnippeln und messen, wenn es einem am bequemsten erscheint. Sich Vorbeugen, dann ist's zu niedrig, die Schultern hochziehen, dann ist's zu hoch.
Idealerweise ergeben alle 3 Methoden ca. denselben Wert

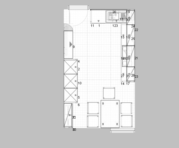
Beginnend planlinks:
Regal in Arbeitsplattenhöhe über der Heizung, wenn die Maßangaben stimmen
Kühlschrank
BO mit Dampfgarer, allerdings sollte der BO unten nur einen rastrigen Auszug haben, damit der Dampfgarer nicht so hoch kommt.
Besenschrank
tiefenreduzierter US kann auch eine Höhe von 212 cm oder noch eine OS haben.

Pataclaun_Mela_HS.jpg

planoben:
Blende
GSA
Spüle, 1,5 Becken ohne Abtropfe, damit du Stell- und Arbeitsfläche hast

Pataclaun_Mela_Spüle.jpg

planrechts, ab toter Ecke:
90er US 1-1-2-2
90er US 1-1-2-2 mit Kochfeld
60er US 1-2-3, damit du auch einen Platz für Essig-, Ölflaschen und Höheres hast
Blende

Pataclaun_Mela_HS.jpg
 

Anhänge

  • Pataclaun_Mela.KPL
    3,9 KB · Aufrufe: 163
  • Pataclaun_Mela.POS
    10 KB · Aufrufe: 183
  • Pataclaun_Mela_Darufsicht.jpg
    Pataclaun_Mela_Darufsicht.jpg
    42,1 KB · Aufrufe: 175
  • Pataclaun_Mela_Grundriss.JPG
    Pataclaun_Mela_Grundriss.JPG
    29,1 KB · Aufrufe: 174
AW: Neue Küche für Mietwohnung

Vielen Dank Australien und Mela für Ihre Beiträge.

Wie kann ich wissen, welche Geräte ich kaufen soll? Aussagen von Verkäufern von Küchenstudios sind:
- Geräte von Tochterfirmen sind günstiger aber genauso gut wie die "Markengeräte" nur mit wenigen Funktionalitäten. Die kann man nehmen.
- aber nicht bei Geschirrspüler . Es muss mindestens Siemens oder Bosch sein.
- Siemens Kühlschrank wird von Samsung in China hergestellt. Samsung verkauft baugleiche Kühlschränke aber günstiger. Lieber Liebherr nehmen.

Könnt ihr diese Aussagen beurteilen? Ich möchte Qualität zu einem vernünftigen Preis kaufen.

Eine ganz wichtige Frage: Wie gefährlich ist für meinen "sehr lebendigen", einandhalbjährigen Sohn, dass der Geschirrspüler neben der Küchetür ist, besonders wenn die Geschirrspülertür ausgeklappt ist?

Schöne Grüße

Pataclaun

Ps. Mela, leider die Heizung ist 150 cm hoch.
 
AW: Neue Küche für Mietwohnung

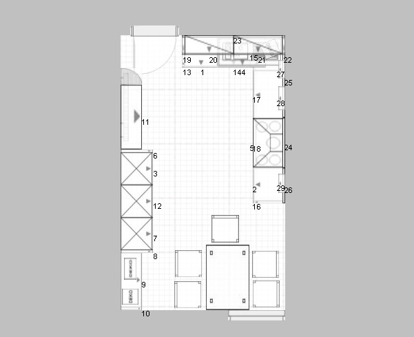
Hallo Mela,

jetzt konnte ich deinen Küchenplan sehen. Deine Vorschläge sehen super aus. Leider ist bei dem OS zu beachten, dass es nicht länger als 160 cm sein. Sonst würde es den Lichtschalter zudecken. Der US darf es bis 190 cm lang sein. Das finde ich nicht besonders schön. In meinem ersten Plan habe ich zwei Elemente von 80 cm jeweils gewählt. Aber das ist nicht symmetrisch. Eine Lösung wäre an beiden Seiten eine Lücke von 30cm zu lassen. Aber das bedeutet wenig Lagerraum. Irgendeine Idee?

Schöne Grüße

Gonzalo
 
AW: Neue Küche für Mietwohnung

Symetrie wird überbewertet. In so einer kleinen Küche wirst du nie weit genug von den Schränken entfernt stehen das die Symetrie so gravierend auffällt. ;-)

LG
Sabine
 
AW: Neue Küche für Mietwohnung

"In so einer kleinen Küche"???? :( Das ist mit Abstand die größte Küche, die ich jemals hatte. Klar außer Mutti´s Küche. :-)
 
Zuletzt bearbeitet von einem Moderator:
AW: Neue Küche für Mietwohnung

War jetzt nicht bös gemeint. Ich meinte halt das man in schmaleren Küchen selten so weit von der Zeile entfernt steht als das die Asymetrie dann ins Auge fällt.

LG
Sabine
 
AW: Neue Küche für Mietwohnung

Leider sehe ich für die GSM keine andere Position, da du schreibst, dass Umbauten ausgeschlossen sind.

Die einzige Möglichkeit wäre, die GSM planrechts unten neben den Herd zu setzen. Allerdings müsste dann die Zeile um 5 cm vorgezogen werden, da du den Platz für das verlegen der Schläuche benötigst.

Die OS habe ich dir enmal planrechts geplant mit einer Unterbauhaube und über den tiefengekürzten US ebenfalls eine OS.
 

Anhänge

  • Pataclaun_Mela_OS.KPL
    3,9 KB · Aufrufe: 161
  • Pataclaun_Mela_OS.POS
    10,4 KB · Aufrufe: 174
  • Pataclaun_Mela_OS_Grundriss.JPG
    Pataclaun_Mela_OS_Grundriss.JPG
    31,7 KB · Aufrufe: 167
  • Pataclaun_Mela_OS_HS.jpg
    Pataclaun_Mela_OS_HS.jpg
    35 KB · Aufrufe: 160
  • Pataclaun_Mela_OS_Kochen.jpg
    Pataclaun_Mela_OS_Kochen.jpg
    49,7 KB · Aufrufe: 162
  • Pataclaun_Mela_OS_Spüle.jpg
    Pataclaun_Mela_OS_Spüle.jpg
    47,1 KB · Aufrufe: 158
AW: Neue Küche für Mietwohnung

Sabine, du musst dich nicht entschuldigen. Ich habe alle deine Kommentare positiv genommen.

Mela, vielen Dank für die neue Planung. Ich werde es laden und ein bisschen spielen.
 

Ähnliche Beiträge

Neff Hausgeräte Ballerina Küchen Blum Bewegungstechnologie Weibel - Intelligente Küchenlüftung

Neff Spezial

Blum Zonenplaner

Weibel Abluft-Tuning

Weibel Abluft-Tuning
Zurück
Oben