Fertig mit Bildern Neubau mit großer offener EBK

phil-hh

Mitglied
Beiträge
25
Guten Tag liebes Forum,
erst einmal möchte ich meine Begeisterung für dieses Forum ausdrücken! Ich hab hier schon unglaublich viel lesen/lernen können. Nun möchte ich gerne um Ratschläge für unseren Küchenbau bitten, da wir uns den Küchenverkäufern etwas ahnungslos ausgeliefert fühlen. Vieles was man uns dort erzählt hat, wird z.T. ganz anders hier im Forum von vielen Mitgliedern berichtet.
Wir haben bisher bei einem großen Möbelhaus und einem kleineren Alno Küchenstudio kurze Info-Gespräche gehabt, und bei einem großen Küchen-Giganten zwei Detailgespräche inkl. 3D-Planung etc gehabt. Wir sind aber noch nicht überzeugt, ob die Planung so alles bedenkt was man bedenken sollte.
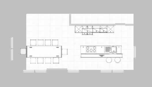
Anbei unser EG Grundriß. Das Haus ist generell sehr symmetrisch gehalten und wird auch in den Wohnräumen modern mit klaren Linien eingerichtet sein (zumindest so lange bis meine Frau und Sohnemann alles Um-Dekorieren ;-)).
Ebenso anbei hab ich versucht das was der Verkäufer bisher geplant hat, einmal am PC nachzuzeichnen. Mit dem alno Planer kommt mein PC irgendwie nicht zurecht, da kommen dauernd Fehlermeldungen... ich hoffe das wird so einigermaßen klar. Leider hat uns der Verkäufer bis auf einen Schüller Prospekt nichts mitgeben wollen.
Derzeit ist es eine Schüller Küche mit Mora matt Lack in weiß. Grifflos, finden wir passend und schick zu unserem Hausstil. Als Arbeitsplatte haben wir uns eine Silestone in Gedatsu (poliert) rausgesucht, auch wenn wir da noch unsicher sind wegen der Sichtbarkeit von Flecken. Die Elektrogeräte wären von Siemens (kann ich später gerne im Detail mit Modellnamen nennen), bis auf die DAH, die wäre von Gutmann (Sombra). Da wir eine zentrale Be- und Entlüftung haben und dazu noch einen Kaminofen, kommt nur Umluftbetrieb in Frage.
Das erste Angebot liegt bei 20Tsd Euro ohne Kühlschrank...haben wir erstmal dankend abgelehnt.

Wichtigste Frage für mich ist: Was haltet ihr von der grundlegenden Planung? Auf was sollten wir noch achten bzw. was vielleicht ändern?
Die Brüstungshöhe der Fenster kenne ich übrigens nicht, da hab ich jetzt einfach mal nen Wert von 100 eingetragen...sorry.
Vielen Dank schon mal für Eure Hilfe!
Phil


Checkliste zur Küchenplanung von phil-hh

Anzahl Personen im Haushalt : 3
Davon Kinder? : 1
Körpergrössen aller Hauptbenutzer (wegen Arbeitshöhe ) in cm : Ich 1,88m, Frau 1,61m, Kind 0,8m
Art des Gebäudes? : Neu-/Umbau, Planänderungen nicht möglich
Brüstungshöhe des Fensters (in cm) : 100
Fensterhöhe (in cm) : 138
Raumhöhe in cm: : 270
Heizung : Fussbodenheizung
Sanitäranschlüsse : variabel an aktueller Wand
Ausführung Kühlgerät? : Frenchdoor ca. 90 cm breit
Kühlgerät Größe : bis 175 cm Höhe
Ausführung Tiefkühl (TK)-Gerät : Nicht erforderlich bzw. steht woanders
Dunstabzugshaube? : Umluft
Hochgebauter Backofen ? : Ja
Hochgebauter Geschirrspüler ? : nein
Kochfeldart? : Induktion
Kochfeldbreite ca. (in cm)? : 80
Spülenform: : 1 Becken mit Abtropffläche
Weitere geplante Heißgeräte : Standmikrowelle, Einbaukaffeeautomat, Wärmeschublade
Küchenstil? : grifflos
Sitzmöglichkeit in der Küche / im Küchenbereich als : Keine
Sitzmöglichkeit: Für wieviel Personen? : nein
Sitzmöglichkeit: Tisch - wenn gesonderter Tisch oder offene Küche : Keine
Gewünschte o. vorhandene Tischgröße : 4x2m
Wofür soll der Sitzplatz in der Küche genutzt werden? Wie häufig? : no
Welche Arbeitshöhe ist angedacht (in cm)? : 90
Was steht auf der Arbeitsplatte oder soll dort stehen? : Messerblock, Toaster, Obstschale
Welche weiteren Küchenmaschinen müssen in der Küche untergebracht werden? :
Was soll in der Küche außer den Standards untergebracht werden? : ALLE Vorräte
Welchen Stauraum gibt es sonst noch? : Geschirr/Gläserschrank im Wohn-/Esszimmer, Hauswirtschaftsraum
Was/wie wird gekocht? (Alltagsküche, Menüs, Snacks usw) : In der Woche Kindernahrung, am WE für die Familie
Wie häufig wird gekocht? : (fast) täglich 1x warm
Wird alleine gekocht? Oder auch gemeinsam? Mit und für Gäste? : eher alleine, für 2 oder 3
Was stört an der bisherigen Küche und was soll die neue Küche unbedingt können? Warum? : kein Vergleich
Steht schon ein Küchenhersteller fest oder wird bevorzugt? : nein, Freunde haben und empfehlen Schüller oder Alno
Steht schon ein Gerätehersteller fest oder wird bevorzugt? : Siemens
Preisvorstellung (Budget) : bis 15.000,-
----------------------------
Im Threadverlauf hinzugekommen:
Erstplanung als Bild statt PDF:

128383d1388398198-neubau-mit-grosser-offener-ebk-phil-hh-1.jpg
 

Anhänge

  • Küchenplanung.pdf
    337,4 KB · Aufrufe: 362
Zuletzt bearbeitet von einem Moderator:
AW: Neubau mit großer offener EBK

Hallo Phil, herzlich Willkommen im Küchenforum! :welcome:

Gleich zu Anfang eine Bitte, würdest du bitte immer ein paar Ansichten mit einstellen. Bei der Fülle an Anfragen ist es manchmal recht lästig, wenn man sich extra die Dateien herunterladen muss, um einen Blick darauf werfen zu können... :rose:

Die wichtigsten Ansichten aus deiner pdf-Datei habe ich nun für dich kopiert und hochgeladen... ;-) ...und sehe viel Änderungspotential.

- Lemansschrank
- Eckschrank mit Einlegeböden

hierzu lese dir bitte einmal den Thread Warum tote Ecken gute Ecken sind durch.
Zu dem Eckschrank mit den Einlegeböden noch eine zusätzliche Anmerkung von mir...
Alles was ihr in in die hinterste Ecke stellt, könnt ihr im Prinzip gleich entsorgen. Ihr holt es mit Sicherheit, höchtens ein bis zwei mal heraus, danach ist euch das zu lästig...:cool: Ihr müsst nämlich alles was vorne steht herausräumen, um an die Dinge zu gelangen, die in der Ecke stehen... :w00t:

- 30er Apotherauszug in der Halbinsel

hier würde ich einen Unterschrank mit Auszügen sinnvoller halten

- die Kochhalbinsel

Ich halte sie für zu klein, bzw. gehen dir dir Vorteile einer Insel verlorgen. Arbeiten auf einer Insel macht nämlich richtig Spaß, nur leider berschränkt sich das Arbeiten auf eurer Insel nur aufs Kochen... Selbst zum Anrichten der Speisen, reicht der Platz nicht aus.
In dem Raum könnte ich mir eine freistehende Insel toll vorstellen! :kiss:

- die Brüstungshöhe

Es wäre gut, wenn du diese noch herausfinden würdest. Toll ist es immer, wenn man die APL ins Fenster laufen lassen kann.
 

Anhänge

  • phil-hh 1.jpg
    phil-hh 1.jpg
    57 KB · Aufrufe: 788
  • phil-hh.jpg
    phil-hh.jpg
    73,5 KB · Aufrufe: 355
AW: Neubau mit großer offener EBK

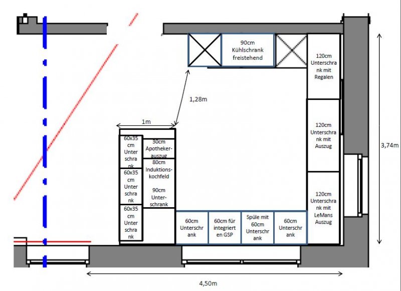
Ich bin gerade dabei, den Grundriss im Alnoplaner anzulegen und dabei bin ich darüber gestolpert, dass die Unterschränke an der Wand planrechts alle vorgezogen sind. Außerdem ist an der Wand im Grundriss ein Element eingezeicht, was ich nicht deuten kann. Was ist das und welche Maße und Position hat es?

Nachtrag: Oder soll das die Regale darstellen?

Außerdem fehlt noch Maß und Position der Tür/Durchgang zum Flur.
 

Anhänge

  • phil.JPG
    phil.JPG
    35,5 KB · Aufrufe: 246
AW: Neubau mit großer offener EBK

Hallo Conny,
wow das geht ja schnell :-)
Danke fürs Willkommen-Heißen!

Zu deinen Anmerkungen gleich mal ein paar Antworten:
- Der Unterschrank mit Einlegeböden: Ja, war uns bewusst dass das dann umständlich und quasi nicht toll zugänglich ist. Im Originalvorschlag sollte da noch ein LeMans Auszug rein, aber da wir auch so Geräte haben wie ein Raclette-Set, ein Waffeleisen und weitere "ich nutz dich einmal im Jahr" Geräte, dachten wir dass wir so eine Ecke doch gar nicht so doof finden...in der Praxis doch keine gute Idee?
- Ich habe jetzt den Beitrag zu toten Ecken gelesen: Ein Augenöffner! Danke! Also da wir ja generell eine große Küche haben dann eher links und rechts 2x60cm Unterschränke mit Auszug und in der Mitte ein großer 120cm Unterschrank?
- Zum Apothekerschrank : Kannst Du das noch etwas ausführen warum ein "normaler Schrank" vielleicht besser ist?
- Hm, mit der Inselgröße...der Durchgang sollte nicht kleiner werden, deswegen ist die Länge ziemlich ausgereizt. Jetzt sind es 1,28m. Das ist ein guter Wert oder? Wir könnten die Insel noch tiefer machen, zumindest ein wenig bis dann die Terrassentür kommt. Oder hast Du da noch eine spezielle Idee?
- Die APL wird in die Fensterbänke laufen, das ist sowohl mit dem Bauträger als auch mit dem Küchenstudio so geplant und auch eingepreist. Dennoch kenne ich die Brüstungshöhe nicht :-) Ich hatte das jetzt so verstanden dass die Fenster innen entsprechend vom Mauerwerk so freigelassen werden dass die APL da reinläuft. Ganz sattelfest bin ih in dem Thema aber nicht. Werde ich mal nachfragen beim Architekten, derzeit sind alle im Urlaub.
Anbei auch mal eine Außenansicht der Küchen-Süd-Seite. Ich hoffe das kann man so direkt sehen/öffnen?
Südseite Haus.jpg
 
AW: Neubau mit großer offener EBK

Ich bin gerade dabei, den Grundriss im Alnoplaner anzulegen und dabei bin ich darüber gestolpert, dass die Unterschränke an der Wand planrechts alle vorgezogen sind. Außerdem ist an der Wand im Grundriss ein Element eingezeicht, was ich nicht deuten kann. Was ist das und welche Maße hat es?

Hi Conny,
ja sorry, da war mal die Kochstelle geplant, da hab ich amateurhaft ein weißes Feld drüber gelegt :-) Da ist nix.
Die Maße schau ich mir gleich noch mal an...
liebe grüße und danke!
 
AW: Neubau mit großer offener EBK

Für diese Küche, da der Raumtiefe doch großzügig ist, 3,74m,
- Hochschrankeand planoben des Küchenraums wie eingezeichnet
- L- Form Unterschrankzeilen entlang der planrechten und Plan unteren Wand des Raums, gegebenfalls in Ünertiefe
- Platz in der Mitte der Schrankzeile kann evtl ausreichen für eine reine Arbeitsinsel, was ich persönlich sehr angenehm finde, wenn man eine freie Arbeitsinsel haben kann, auch wenn die nicht so groß sein wird. Aber es reicht, die als reine Vorbereitungsinsel und nach dem kochen als Buffettisch zum Servieren zu haben, wenn man vom Platz her eine haben kann. Dazu die Arbeitsinsel in ihrer Längsseite quer Stellen parallel zu Planungsrecht Wand (entlang der 4,5m Seite)


Hab grob nachgerechnet
374cm
abzüglich 60cm Hochschranktiefe planobere Wand
abzüglich 60cm Unterschrsnktiefe Planuntere. Wand
abzüglich 2x90cm Duchgänge zwischen den 2 Zeilen bleiben
74cm übrig, reich für eine (Übertiefe) Insel Länge 450cm minus 60cm planrechten Zeile minus Durchgang 90cm = 300cm

Dies ist nur eine grobe Idee von mir.
VG, H-C
 
AW: Neubau mit großer offener EBK

Ok, dann kann ich dieses Element vergessen.

Der Apothekerschrank , wenn du dort etwas herausholen willst, musst du immer den kompletten Schrank öffnen, du kannst ihn nur von der Seite bedienen, wenn dir in dem Schrank etwas ausläuft oder etwas krümeliges umschüttest, läuft es durch alle Ebenen bis hin zur Technik. Das heißt Putzen des kompletten Schrankes, sowie mühsehliges Säubern der Technik...

In einem Auzugschrank, bleib ausgeschüttetes im Auszug, zudem siehst du alles was im Auszug liegt mit einem Blick und du kannst von oben zugreifen...

...ansonsten muss ich mich jetzt erst mit dem Grundriss beschäftigen und die Möglichkeiten ausloten. ;-)

Kannst du bitte noch die Tür oder Durchgang zum Flur bemaßen.
 
AW: Neubau mit großer offener EBK

Ach so, die Sanitäranschlüsse, sind die wirklich schon gesetzt oder könnte man sie evtl. doch noch variabel verlegen? :kiss:
 
AW: Neubau mit großer offener EBK

Wird der Tisch wirklich 4m x 2m groß? :w00t: Dann bleibt vom Raum nicht viel übrig... :cool: :rose:
 
AW: Neubau mit großer offener EBK

Hui, schon so viele Kommentare, toll, danke!
Also ich versuch mal ein paar Antworten:
- Der Durchgang (keine Tür) ist 3,2m von der Ostwand entfernt und ist mit 1m Breite geplant.
- Generell sind noch Änderungen möglich, wobei die sich in Grenzen halten sollten (da hätte ich sonst früher mit anfangen müssen). Die Sanitäranschlüsse sind an der Südseite geplant weil wir es eine schöne Idee fanden, von der Spüle in den Garten zu schauen. Daher auch das große Fenster dort. Da man in der Nähe oder direbt bei der Spüle auch viel schnibbeln wird, hat man dann den Garten schön im Blick. So viel zum Gedankengang.
- Der Tisch mit 4x2m;-) is tatsächlich etwas monströs...ehrlich gesagt fehlt mir das Gefühl für den Raum, und den Tisch gibt es nämlich noch nicht. Der wird also erst noch gekauft. Da sollten 8 Personen gut dran Platz finden, die Angabe ist vielleicht hilfreicher?
- Ok, den Apothekerschrank überlegen wir uns noch mal, klingt einleuchtend was Du sagst.
- @Hobby-Chef: Das ist eine spannende Idee, aber sind so 90cm Durchgänge nicht doch ein wenig schmal? Und unser Kühlschrank ist ja so ein amerikanischer der mit 76cm Tiefe eh etwas vorsteht. Ich glaub das wird mir doch zu eng, auch wenn es seinen Charme hätte...

Vielen Dank schon mal, das hilft alles ungemein!
Liebe Grüße
 
AW: Neubau mit großer offener EBK

Ich bin gerade dabei, den Grundriss im Alnoplaner anzulegen und dabei bin ich darüber gestolpert, dass die Unterschränke an der Wand planrechts alle vorgezogen sind.

Ach so, und dazu noch: Nein, auch das ist ein Fehler von meiner Amateurzeichnung, die sollen nicht vorgezogen sein sondern ganz normal direkt an der Wand. Tschuldigung!
lg
 
AW: Neubau mit großer offener EBK

Wusste ja nicht, dass Ihr einen übertiefen Kühli habt.
Ist er ein Siemens SBS? Schon vorhanden od geplant?
Es gibt auch andere Lösung für SbS. 2x60cm, dann habt schon SbS.
Liebherr hat 60cm tiefe SbS bzw Kühli, Frenchdoor.

Durchgang 90cm reicht uns vollkommen. Unser Durchgang von Wohnbereich im die Küche, direkt vor den geplanten 2x60cm Kühlis (quasi SbS) ist 90cm geplant.

Zwischen 2 Küchenzeilen haben wir 110cm, aber auch wegen der Terrassentür an einer Stirnseite des Durchgangs zwischen den 2 Zeilen. Aber letztendlich, abgesehen von Türzarge und minimalen Abständen zwischen der jeweiligen Zeile zu Türrahmen ist auch der Durchgang durch diese Terrassentür 90cm. Und die wird sogar der Haupteingang für die Familie, direkt von der Garagen, sein (Huaseingangstür bei uns ist um ein ganzes Eck weiter).

Ich würde sagen, Durchgangsbreite 90-120cm ist OK.

VG, H-C
 
Zuletzt bearbeitet:
AW: Neubau mit großer offener EBK

Alsooooo, wenn das Haus noch nicht steht, dann würde ich mit einer freistehenden Insel planen...:kiss: Dafür hätte ich auch schon einen ersten Entwurf. :cool:
Das ist jetzt nur eine Idee, weil mir freistehende Insel gut gefallen und weil der Raum sich dafür hervorragend eignen würde.

Das kleine Fenster habe ich etwas verschoben und beide Küchenfenster bodentief ausgeführt. Der Durchgang zum Flur brauchte für meine Planung auch eine andere Position, die Haustür würde ich dann zur anderen Seite anschlagen lassen. Ggf. falls es euch nicht stören würde, könnte man den Durchgang auch ganz weglassen und durch die Wohnzimmertür zur Küche gehen. Dann könnte man die Hochschrankwand noch etwas ausbauen...

Die Inselschränke habe ich übertief eingeplant. Dafür habe ich mich am Schüllermaß orientiert.
Übertiefe Auszüge sind wahre Stauramwunder, hier mal ein vergleich von übertief zu normaltief. Allerdings mit dem Häckermaß, welches noch 5cm tiefer ist und auch dem Alnomaß entsprechen würde.



Auf der Inselrückseite habe ich keine Schränke eingeplant, nur Blenden. Man könnte dort aber auch tiefengekürzte Schränke mit Drehtür einplanen.

Den Tisch habe ich jetzt mit 1 x 3m eingeplant, das reicht locker für 8 Personen. Er könnte für diese Personenzahl auch etwas kleiner ausfallen.

Bei dieser Planung könnte ich mir die Unterschränke mit aufgesetzten Griffen vorstellen und die Hochschrankwand dann grifflos. In etwa wie in Muckelinas Küche.

Nachtrag:

...aufgesetzte Griffleisten darum, weil man mit grifflos auch immer Stauraum verliert. Mit aufgesetzten Griffen, wie in Muckelinas Küche, könnte man im Raster 1-1-2-2 planen. Das heißt du hättest 2 Schubladen und 2 Auszüge in einem Unterschrank .

Verplant habe ich...

Hochschrankwand, planrechts beginnend...

- Wange
- Hochschrank für Kaffeevollautomat und Mikrowelle
- Hochschrank für BO
- GSP - hochgestellt
- Stützwange
- Frenchdoor
- 60er Hochschrank mit Innenauszügen
- Wange

Insel

- Wange
- 90er Spülenschrank, Spüle rechtsbündig eingebaut
- 30er Unterschrank für Müll unter der APL
- 90er Unterschrank mit Auszügen
- 90er Kochfeldschrank
- 40er Unterschrank mit Auszügen
- Wange

Die komplette Raumlänge kann ich im Alnoplaner leider nur andeuten, weil er nur 9m zulässt.
Die Planung könnte man natürlich auch spiegeln, dann wäre der Kaffeevollautomat näher am Esstisch dran. Ist mir leider jetzt erst aufgefallen... :-[ ...allerdings wäre dann der Kühlschrank weiter weg. Eine Kröte muss man wohl schlucken... ;D
 

Anhänge

  • phil - freistehende Insel.KPL
    3,9 KB · Aufrufe: 223
  • phil - freistehende Insel.POS
    10,5 KB · Aufrufe: 248
  • phil.jpg
    phil.jpg
    40,2 KB · Aufrufe: 351
  • phil1.jpg
    phil1.jpg
    33,5 KB · Aufrufe: 329
  • phil2.jpg
    phil2.jpg
    41,4 KB · Aufrufe: 349
  • phil3.jpg
    phil3.jpg
    30,2 KB · Aufrufe: 341
  • phil-grundriss.JPG
    phil-grundriss.JPG
    19,8 KB · Aufrufe: 343
Zuletzt bearbeitet:
AW: Neubau mit großer offener EBK

Oh! Das sieht toll aus, und würde uns wieder große Fenster ermöglichen zur Südseite...gleichzeitig stürzt Du gerade mich und meine Frau in tiefste Zweifel :-) Das müssen wir uns in Ruhe heut Abend mal überlegen.
Danke für die tollen Anregungen!
Lg
 
AW: Neubau mit großer offener EBK

Conny :kiss:,
als ich den Raum gesehen habe, mußte ich auch gleich an eine "Muckelina" denken ;-).

@phil, wir leben seit 10 Monaten mit so einer Küche und lieben sie :2daumenhoch:, also wirklich eine Überlegung wert. Hier noch ein paar Bilder.
Nieburg - große weiße Inselküche - Bilder aus dem | Bilder-Album von Muckelina | Küchen-Forum
- Küchen-Forum | Küchenplanung - Ratgeber und Tipps

LG,
Muckelina :cool:

PS: ja 3x1m reicht dicke für 8 Personen, ggf einen ausziehbaren Tisch nehmen, wenn es mal 12 werden sollten ;-)
 
AW: Neubau mit großer offener EBK

Muckelina, der Raum schreit förmlich danach... Nech! :cool: :kiss:

...und das U bringt in der Planung eigentlich nur Nachteile, zumindest kriege ich damit keine zufriedenstellende Planung hin.
 
AW: Neubau mit großer offener EBK

Ich habe die Inselvariante mal noch etwas angepaßt, da mir der SbS in der Hochschrankwand nicht sehr gefällt :kiss:

Ihr baut ohne Keller - oder?

Die Eingangstür/Durchgang zur Küche jetzt ziemlich genau ggü. der Treppe. D. h., man kommt von oben und kann geradedurch in die Küche gehen.

Daher jetzt planrechts ein komplettes Trockenbaukonstrukt .. SbS dadurch eingekoffert, rechts und links quasi 2 Kammern .. z. B. nur mit einer Hochschrankfronttür aus dem Küchenprogramm verschlossen. Dahinter kann man dann einfache Regale anbringen und all das unterbringen, was du für den Eckschrank gedacht hast. Das wird hier dann aber übersichtlicher. Es bleibt auch Platz für Getränkekisten. Die schmale Variante planunten könnten die ganzen Weingläser etc. aufnehmen.

Das Fenster habe ich an der Position gelassen, denn die Position sorgt ja von außen auch für Symmetrie. Ich habe es mal bodentief gemacht, wenn doch nur Fenster, könnte man dort auch noch einen 100er Auszugsunterschrank stellen, der z. B. Spiele, Tischdeko etc. aufnehmen könnte.

Planoben dann nur einen 240 cm Block, rechts und links die Hochschränke für BO bzw. Einbau-KVA (gibt es den schon? Der erhöht den Preis ja auch ganz gut). Dazwischen dann einen 120er Auszugsunterschrank .. hier denke ich vorzugsweise Geschirr und Besteck an. Da kommt man nämlich auch ran, wenn jemand kocht. So wie natürlich Tassen und Alltagsgläser im Hängeschrank.

Für die Insel dann rundum auch einen Trockenbau gestellt. Das muss man ordentlich zusammen mit der Verlegung der FBH planen. Hat aber den Vorteil, dass du dir rund 450 cm Sichtseitenverkleidung für die Insel sparst. Und diese Sichtseitenverkleidung ist in aller Regel nicht günstig. Außerdem hat man gleich einen Installationspunkt für den Wasseranschluß.

Seitlich nach planrechts ist der Trockenbau durch eine 15 cm Lücke unterbrochen. Hier kann man hinter die GSP ein 15er Element zur Aufnahme eines Handtuchhalters stellen. Hier könnten auch mal gerade nicht benötigte Backbleche senkrecht eingestellt werden.

Die Insel dann:
- 60er GSP
- 60er Spülenschrank, oberer Auszug küchentypische Putzmittel, unterer Auszug Stauraum
- 45er übertiefer Bio/Rest/Gelber Sack Müll direkt unter der APL ... der zweite Auszug unten ist Stauraum:
full


- 60er übertiefer Auszugsunterschrank, insbesondere Küchenhelfer, Schüsseln, halt alles, was man auch so zum Vorbereiten braucht
-90er übertiefer Auszugsunterschrank fürs Kochfeld, hier Kochbesteck, Töpfe, Pfannen, Auflaufformen, Backformen etc.
- 45er übertiefer Auszug für reine Kochvorräte, aber auch Gewürze, Öle/Essig

Die typischen sonstigen Vorräte können dann noch in den Auszügen unter den Heißgeräten untergebracht werden.

Vorteile in meinen Augen:
- Kühlschrank kann auch gut vom Tisch erreicht werden
- Öffnungsrichtung Kühlschrank gerade noch so, dass man Gemüse/Fleisch gleich neben der Spüle ablegen kann
- großzügige Laufwege
- Kostenminimierung

Denn Geräte, z. B. die Gutmann , Silestone -APL usw. ... der Preis von 20000 Euro schockt mich erstmal nicht.
 

Anhänge

  • phil-hh_20131231-kb1-alt_Ansicht1.jpg
    phil-hh_20131231-kb1-alt_Ansicht1.jpg
    83 KB · Aufrufe: 259
  • phil-hh_20131231-kb1-alt_Ansicht8.jpg
    phil-hh_20131231-kb1-alt_Ansicht8.jpg
    71,4 KB · Aufrufe: 280
  • phil-hh_20131231-kb1-alt_Ansicht7.jpg
    phil-hh_20131231-kb1-alt_Ansicht7.jpg
    156,5 KB · Aufrufe: 268
  • phil-hh_20131231-kb1-alt_Ansicht6.jpg
    phil-hh_20131231-kb1-alt_Ansicht6.jpg
    106,9 KB · Aufrufe: 261
  • phil-hh_20131231-kb1-alt_Ansicht5.jpg
    phil-hh_20131231-kb1-alt_Ansicht5.jpg
    85,1 KB · Aufrufe: 278
  • phil-hh_20131231-kb1-alt_Ansicht4.jpg
    phil-hh_20131231-kb1-alt_Ansicht4.jpg
    119,8 KB · Aufrufe: 744
  • phil-hh_20131231-kb1-alt_Ansicht3.jpg
    phil-hh_20131231-kb1-alt_Ansicht3.jpg
    148,1 KB · Aufrufe: 273
  • phil-hh_20131231-kb1-alt_Ansicht2.jpg
    phil-hh_20131231-kb1-alt_Ansicht2.jpg
    130,9 KB · Aufrufe: 275
  • phil-hh_20131231-kb1-alt_Grundriss.jpg
    phil-hh_20131231-kb1-alt_Grundriss.jpg
    66,4 KB · Aufrufe: 668
Zuletzt bearbeitet:
AW: Neubau mit großer offener EBK

... und hier noch die Alno -Dateien:

Den Tisch habe ich übrigens mal mit 110x250 cm eingezeichnet.
 

Anhänge

  • phil-hh_20131231-kb1-alt.POS
    16,7 KB · Aufrufe: 249
  • phil-hh_20131231-kb1-alt.KPL
    4,1 KB · Aufrufe: 230
Zuletzt bearbeitet:

Ähnliche Beiträge

Neff Hausgeräte Ballerina Küchen Blum Bewegungstechnologie Weibel - Intelligente Küchenlüftung

Neff Spezial

Blum Zonenplaner

Weibel Abluft-Tuning

Weibel Abluft-Tuning
Zurück
Oben