Küchenplanung für offene Küche

iKlaus

Mitglied
Beiträge
14
Wohnort
Bochum
Grundriss.jpg
jetzige Kueche.jpg
Unsere gute alte Poggenpohlküche ist nun fast 28 Jahre alt und wir wollen eine neue Küche. In 28 Jahren hat sich in der Entwicklung der Küchen/Küchentechnik viel getan. Für gute Tipps was wirklich lohnenswert/praktisch ist, ist man natürlich dankbar.
Unsere jetzige Küche hat eine P-Form (?), d.h. 4 Schenkel mit Durchgang. Am Fenster sind die Spüle und der Geschirrspüler , im linken Schenkel (Außenmauer) ist das Kochfeld mit Dunstabzugshaube.
Die neue Küche sollte qualitativ gut sein (aber keine hochpreisige Marke), da sie die nächsten 20 Jahre schon halten sollte. Von daher sollte sie seniorenfreundlich sein (man wird ja älter), d.h. Bedienung und Suchen ohne viel Bücken und Krauchen. Interessant wären auch Vorschläge für die 3 vorhandenen Ecken!?

Checkliste zur Küchenplanung

Anzahl Personen im Haushalt: 4
Davon Kinder?:
Art des Gebäudes?:
Bestandsbau, Umbauten ausgeschlossen
Körpergrössen aller Hauptbenutzer (wegen Arbeitshöhe ) in cm: 167 cm, 184 cm
Brüstungshöhe des Fensters (in cm): 104 cm
Fensterhöhe (in cm): 115
Raumhöhe in cm: 251
Heizung: Fussbodenheizung
Sanitäranschlüsse: fix
Ausführung Kühlgerät: Integriert im Hochschrank (60cm)
Kühlgerät Größe: bis 178 cm Höhe
Ausführung Tiefkühl (TK)-Gerät: Im Kühlschrank als kleines Fach oben
Dunstabzugshaube: Abluft
Backofen etc. hochgebaut?: Ja
Hochgebauter Geschirrspüler ?: Wenn möglich
Kochfeldart: Ceran (herkömmlich)
Kochfeldbreite ca. (in cm)?: 57
Spülenform: 1,5 Becken mit Abtropffläche
Geplante Heißgeräte: Einbaumikrowelle, Backofen
Küchenstil: Landhaus
Sitzmöglichkeit in der Küche / im Küchenbereich: Keine
Sitzmöglichkeit: Für wieviel Personen?: Nein
Sitzmöglichkeit: Tisch - wenn gesonderter Tisch oder offene Küche: Keiner
Gewünschte o. vorhandene Tischgröße:
Wofür soll der Sitzplatz in der Küche genutzt werden? Wie häufig?:
Welche Arbeitshöhe ist angedacht (in cm)?:
94 ?
Was steht auf der Arbeitsplatte oder soll dort stehen?: Kaffeevollautomat, Wasserkocher, Messerblock, Küchenmaschine, Allesschneider, Toaster, Brotbehälter, Obstschale
Welche weiteren Küchenmaschinen müssen in der Küche untergebracht werden?:
Was soll in der Küche außer den Standards untergebracht werden?:
Welchen Stauraum gibt es sonst noch?:
Geschirr/Gläserschrank im Wohn-/Esszimmer, Speisekammer, Hauswirtschaftsraum, Keller
Was/wie wird gekocht? (Alltagsküche, Menüs, Snacks usw): Alltagsküche, jeden Tag wird frisch gekocht
Wie häufig wird gekocht?(fast) täglich 2x warm[/COLOR]
Wird alleine gekocht? Oder auch gemeinsam? Mit und für Gäste?: auch gemeinsam
Was stört an der bisherigen Küche und was soll die neue Küche unbedingt können? Warum?: Schränke bieten Stauraum, man muss aber immer alles ausräumen um an die hinteren Sachen dranzukommen (insbesondere im Eckschrank)
Welche Mülltrennung soll in der Küche vorgehalten werden?: Altpapier, Biomüll, Gelber Sack Müll, Restmüll
Steht schon ein Küchenhersteller fest oder wird bevorzugt?: Nein
Steht schon ein Gerätehersteller fest oder wird bevorzugt?: Miele , Bosch , ...
Preisvorstellung (Budget): bis 20.000,-
 
Zuletzt bearbeitet:
:welcome:
Endlich mal ein einfacher Fall: Macht die Küche genau so wie ...

Nee, im Ernst: Du hilfst den Profis hier enorm, wenn du vermasste Grundrisse vom Raum sowie der Etage hochlädst, ev. auch das ein oder andere Foto vom Ist-Zustand. Die Kristallkugeln heutzutage sind einfach super unzuverlässig ;-)
 
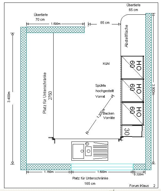
Also ich habe einen Grundriss der Etage und einen bemaßten Grundriss der jetzigen Küche hochgeladen. Fotos kommen noch....(mit Kamera nicht mit Kristallkugel ;-)
 
Hallo Klaus, auch von mir ein herzliches Willkommen! :welcome:

Soll die halbhohe Mauer stehen bleiben oder dürfen wir sie einreißen?
Wenn ja, würdest du dann bitte auch den Wohnraum bemaßen. Bei einem offenen Grundriss, legen wir gerne den Gesamtraum im Alnoplaner an, um einen Gesamteindruck zu erhalten. ...und wie steht der Esstisch im Raum?
 
Naja.... ein paar Dinge würde ich schon anders gestalten.
Speziell bei den Eckschränken habt Ihr ja schon selbst festgestellt wie schlecht der Stauraum dort nutzbar ist.
Ecken also töten, und dann lieber perfekt nutzbaren Stauraum in Auszügen schaffen.
Versuchen, ein 6-er Raster zu realisieren, das bringt auch mehr und besseren Stauraum.
Evtl. die Spülmaschine hochsetzen, das schont enorm den Rücken.
Planlinks könnte über Übertiefe nachgedacht werden, spätestens dann ist der gefühlte Verlust durch tote Ecken ausgeglichen.
Die angedachte Arbeitshöhe unbedingt mal testen, entweder durch Unterlage auf der jetzigen Arbeitsplatte , oder mittels eines verstellbaren Bügelbretts. Einfach mal in den verschiedenen Höhen richtig probeschnippeln.

Ansonsten ist derzeit viel los im Planungsboard , also bitte nicht ungeduldig werden, falls heut abend die neue Küche noch nicht steht.

Bis dahin viel Spass hier und viel nützlichen Input wünscht
Samy
 
Hallo zusammen,

ich habe mal einige Bilder hochgeladen, die mehr als erklären als tausend Worte.
@Conny: Die halbhohe Mauer soll stehen bleiben. Auf den Bildern ist auch zu erkennen wie das Esszimmer anschließt. Die Farben sind durch das Mischlicht nicht immer so naturgetreu.
@Samy: Ja, das mit der Arbeitshöhe werden wir noch einmal ausprobieren. Was meinst Du eigentlich mit 'Planlinks'?

Bin schon gespannt auf euren Input!

iKlaus
 
Sehr schön, so kann man sich was vorstellen :-)

Planlinks = Wenn du auf den Grundriss schaust, die Wand links. Also wo aktuell bei euch Herd und Backofen sind.

Weglassen würde ich an eurer Stelle den Schrank vor der niedrigen Mauer. Der bringt aktuell an Schrankfläche ungefähr das, was die tote Ecke kostet. Von einem übertiefen Unterschrank mit Auszügen habt ihr da - also wo aktuell tote Ecke ist - mehr.
 
Weglassen würde ich an eurer Stelle den Schrank vor der niedrigen Mauer. Der bringt aktuell an Schrankfläche ungefähr das, was die tote Ecke kostet. Von einem übertiefen Unterschrank mit Auszügen habt ihr da - also wo aktuell tote Ecke ist - mehr.

...wobei die Arbeits-/Abstellfläche an der Mauer auch nicht zu verachten ist...
*winke*
Samy
 
@Schreinersam:

Mir fehlt leider grade die Zeit, den Raum im Alno zu basteln, deshalb einfach schnell als Skizze im GR, was ich meine:

Ohne die tote Ecke an der niedrigen Mauer könnten angesichts der Raumgröße planlinks locker übertiefe Unterschränke hin - blau eingezeichnet.

Die gelbe Linie lang hätte man dann man komplett mit übertiefen Auszügen, jede Menge Stauraum an den man leicht rankommt. Also ohne wie bisher räumen zu müssen.

Dazu bringt die übertiefe APL Abstellfläche nach hinten mit z.B. für die Dekosachen, die bisher weiter vorne stehen.

"Verlieren" würde man an APL effektiv das Bissl, was ich rot markiert habe. Also dafür würde ich nicht auf die übertiefen US mit all ihren Vorteilen verzichten wollen.
 

Anhänge

  • iKlaus_Skizze_GR.jpeg
    iKlaus_Skizze_GR.jpeg
    95,2 KB · Aufrufe: 223
Vielleicht noch wichtig für iKlaus:

Was habt ihr mit Boden und Wänden vor? Also sollen die Fließen auf dem Boden im Gesamtraum bleiben wie sie sind? Soll der Fliesenspiegel in der Küche bleiben?

Da die alte Küche ja auf jeden Fall rauskommt, wäre die Gelegenheit günstig sich da jetzt Gedanken drüber zu machen.

Nicht dass am Ende die Dame des Hauses 2 Jahre nach Installation der neuen Küche auf die Idee kommt, dass neuer Boden doch mal angebracht wäre ;-)
 
ich versuche mal, Varianten zu zeigen.
Die vorhandene Küche ist so weit eigentlich gut,
aber um bspw eine hochgestellte SpüMa zu realisieren sollten man was anderes zumindest mal gesehen haben
Forum iKlais1.jpg
 
@pari79: Vielen Dank für Deine Hinweise. Das mit der übertiefen Unterschränken hört sich sehr interessant an. Wie tief sind die denn? Werden solche Schränke von allen Küchenherstellern angeboten? Heißt das dann auch für 'Über-Preise'?
Ja, über die Fliesen haben wir uns auch Gedanken gemacht und beratschlagt. Ich gehe davon aus, dass der Fliesenspiegel raus muss, um nicht zu viele Gestaltungseinschränkungen zu haben. Beim Fußboden sind wir noch nicht zu Ende; hier gibt es mehrere Möglichkeiten: Ersetzen einzelner, vermackter Fliesen oder in der Küche ganz raus (nachteilig hierbei ist neben dem Aufwand+Kosten, dass die Fliese im gesamten Küche/Essraum/Wohnzimmerbereich liegt. Die neue Fliese müsste farblich, vom Format (alte Fliese hat 25x25cm²) und von der Höhe passen, ist nicht ganz so einfach, da die Auswahl sehr eingeschränkt ist. Eine dritte Möglichkeit wäre noch einen Belag über die Fliesen zu legen, was m. E. einige Nachteile hat.

:danke: iKlaus
 
@Samy: Ja, über die hochgestellte haben wir uns auch schon den Kopf zerbrochen. Die Spüle sollte am Fenster bleiben (beim Arbeiten ein 'schöner Blick nach draußen' und wegen des Abflusses). Aber man könnte ja nur die SpüMa planrechts stellen. Ich denke das Abwasser der SpüMa sollte die Abwasserpumpe ja dann bis zum Siphon unterm Fenster pumpen können.
Wir dachten daran neben den Kühlschrank den hochgestellten Backofen und übergebauter Mikrowelle hinzustellen. Ist das wegen des Wärmeübergangs ungünstig oder heutzutage beherrschbar?

iKlaus
 
Mal in die Skizze eingezeichnet als perfektes Beispiel was ich meine: Hier werden 60 x 70 (rot) zur toten Ecke, um davor 70 x 60 Schrank zu stellen. Bei einem kleinen Raum mit Arbeitsplattenmangel macht das Sinn. Aber nicht hier! Zumal man die 60 Breite in der Zeile planlinks in Unterschränke mit 100cm Breite investieren kann.

Was ich gelb markiert habe, würde ich des Weiteren in jedem Fall frei lassen. Ihr habt geschrieben, dass die Küche auch aufs "Alter" gesehen funktionieren soll. Da sind breite Gänge angebracht ... dann klappts auch mit der Gehhilfe ;-)


Und damit zu deinen Fragen @iKlaus


Im Alno -Planer sind die übertiefen US 75cm tief - also 5cm mehr als in der Skizze. Alle Hersteller haben die nicht im Programm, z.B. Ikea kann übertief nicht. Aber welche Hersteller diese Schränke konkret anbieten, können dir die :kfb: hier im Forum bestimmt besser sagen, ansonsten mal vor Ort im Küchenstudio nachfragen.


Was die Fliesen angeht:

Da ihr durch die Mauer einen Trenner habt, könnte man in der Küche auch problemlos eine neue Fliese im Kontrast zur alten im Wohnzimmer legen.

Aber um ehrlich zu sein - auch weil ihr mit "bis 20.000€" ein durchaus üppiges Budget habt - würde ich mir ernsthaft überlegen, den kompletten Raum neu zu machen:

Die Wände macht ihr sowieso, wenn der alte Fliesenspiegel ab ist, den Küchenboden wahrscheinlich auch, weil du dich sicher nicht über die Reparaturstellen in den alten Fliesen ärgern willst, wenn du in deiner neuen (teuren) Küche stehst. Den Rest vom Gesamtraum würde ich dann bei der Gelegenheit mitnehmen. Dann ist es für die nächsten Jahrzehnte gemacht. Und ihr habt diesbezüglich eure Ruhe ;-)
 

Anhänge

  • Forum iKlais1.jpg
    Forum iKlais1.jpg
    152,6 KB · Aufrufe: 252
Vorab.... Das ist nur lautes Denken, kein Planen.

Über die Ecke planlinks-oben kann man trefflich diskutieren, ich habe jetzt mal planrechts Abstellfläche gezeichnet.

Es kann dann wie folgt aussehen
Forum iKlaus2.jpg
 
bei dieser Planung habe ich Bodenfliesen und DAH Loch nicht beachtet sondern einfach drauflosgeschoben.;-)

Ist das eigentlich fix oder seid ihr flexibel.

Die HS Wand planrechts habe ich nicht mehr bis ans Wandende planoben zugestellt (Fliesenproblem), aber es erscheint mir etwas wie overkill.

Der GSP ist erhöht, in real aber 13cm tiefer. Ebenso der BO ist im Bild zu hoch eingebaut, aber der ALNO bietet nichts anderes an oder ich finde es nicht. Zum individuellen Zusammenbasteln habe ich keine Zeit im Moment.

Die Zeile planunten ist 10cm vorgezogen (oder eben übertiefe US) und die Zeile planlinks 8cm).

Wenn es 75cm breite US gibt, würde ich so einen an die halbhohe Wand setzen anstelle von 60er und 15er US.

Die OS würden mir sehr gut wie in Conny's Küche gefallen.
974_dscf4930-1353779005.jpg



so, hier der Plan. Die grüne Fläche ist die geöffnete GSP Tür.

iKlaus1.JPG


iKlaus2.JPG iKlaus3.JPG iKlaus4.JPG iKlaus5.JPG iKlaus6.JPG
 

Anhänge

  • iKlaus_Evelin_PLAN1.KPL
    3,9 KB · Aufrufe: 252
  • iKlaus_Evelin_PLAN1.POS
    10,7 KB · Aufrufe: 268
Zuletzt bearbeitet:
Gefällt mir Evelin.
Wobei ich Backöfen und SpüMa tauschen würde, um keine Wange zu benötigen.
Diese "Trennlinie" wirkt unten am Unterschrank nicht gut .
Zwar brauchts einen Schritt mehr von der Spüle zur Spüma, aber dafür ist sie rundum frei zugänglich und kann bei Bedarf auch offen bleiben ohne dass das stört.
*winke*
Samy
 
genau diese Trennwand habe ich und es sieht eigentlich gut aus. wobei ich sagen muss, der anschliessende US bei mir ist ca 1cm nach hinten versetzt, weil man es angeblich hier so macht, dass die AP mit der Vorderkante der HS abschliesst (meine AP ist tiefer als normal).

auch ist es bei mir so, dass die HS rechts, links und oben eine Wange haben, um den anderen Farbton der HS als Einheit besser wirken zu lassen. Bei mir sind diese beiden umrandeten HS das optische highlight der Küche.

Auch gefallen mir optisch Heissgeráte besser ain der Mitte.

Persönlich wollte ich jedoch nicht so hohe HS haben wie Klaus.
 

Ähnliche Beiträge

Neff Hausgeräte Ballerina Küchen Blum Bewegungstechnologie Weibel - Intelligente Küchenlüftung

Neff Spezial

Blum Zonenplaner

Weibel Abluft-Tuning

Weibel Abluft-Tuning
Zurück
Oben