Unbeendet Kleine Küche im Altbau (ca. 7,5 m2)

Gigglo

Mitglied
Beiträge
15
Hallo,

seit 5 Jahren wohnen wir jetzt in diesem Haus von 1934. Das Thema Küche schieben wir eigentlich seitdem vor uns her. Da unsere jetzige Küche aber Stück für Stück "den Geist aufgibt" wollen wir uns jetzt endlich eine neue anschaffen.

Wir haben uns bereits von einem Küchenstudio ein Angebot machen lassen, das uns aber noch kein "Ja, das ist es" entlockt hat.
Konkret würden wir gerne eine andere Lösung, als die Kochoption zum Esszimmer hin haben. Außerdem sollte die Küche keine geschlossenen L- bzw. U-Form haben. Toll wäre eine Zeile auf dergegenüberliegenden Seite des Wanddurchbruchs (man schaut vom Esszimmer drauf!) und eine Arte Tresen/Arbeitsfläche im Bereich der Wandöffnung + ggf. Kühlschrank über Eck (neue Türöffnung). Vielleicht kann auf der Esszimmerseite ein offenes Regal sein, in dem später ein kleiner Holzvorrat für den geplanten Kaminofen seien Platz findet.
Wir wünschen uns eine moderne, klare, zeitlose Küche. Gerne im Farbbereich weiß/grau/Glas usw. - was sicher gut zum vorhanden Terrazzo-Boden (schwarz-weiß-gesprenkelt) und den vorhandenen Holzdielen (Pitch Pine) im Esszimmer passt.

Anbei haben wir die den Grundriss Bestand als PDF, die beiden ALNO Küchenplaner Dateien und 3 Dateien des Küchenstudios als JPG angefügt.

Wir freuen uns auf Eure Vorschläge!
Vielen Dank und viele Grüße,
Jenn


Checkliste zur Küchenplanung von Gigglo

Anzahl Personen im Haushalt : 3
Davon Kinder? : 1
Körpergrössen aller Hauptbenutzer (wegen Arbeitshöhe ) in cm : 1,85m und 1,65m
Art des Gebäudes? : Bestandsbau, (kleinere) Umbauten möglich
Brüstungshöhe des Fensters (in cm) : 88,5
Fensterhöhe (in cm) : 160
Raumhöhe in cm: : 290
Heizung : Heizkörper wie im Grundriss
Sanitäranschlüsse : vollkommen variabel
Ausführung Kühlgerät? : Integriert im Hochschrank (60cm)
Kühlgerät Größe : bis 175 cm Höhe
Ausführung Tiefkühl (TK)-Gerät : Im Kühlschrank bis 2 Schubladen unten
Dunstabzugshaube? : Abluft
Hochgebauter Backofen ? : Wenn möglich
Hochgebauter Geschirrspüler ? : nein
Kochfeldart? : Induktion
Kochfeldbreite ca. (in cm)? : 60-80
Spülenform: : 1 Becken ohne Abtropffläche
Weitere geplante Heißgeräte :
Küchenstil? : modern
Sitzmöglichkeit in der Küche / im Küchenbereich als : Keine
Sitzmöglichkeit: Für wieviel Personen? : nein
Sitzmöglichkeit: Tisch - wenn gesonderter Tisch oder offene Küche : Keine
Gewünschte o. vorhandene Tischgröße : keine, da sep. Esszimmer
Wofür soll der Sitzplatz in der Küche genutzt werden? Wie häufig? : entfällt, das sep. Esszimmer
Welche Arbeitshöhe ist angedacht (in cm)? : 92
Was steht auf der Arbeitsplatte oder soll dort stehen? : Kaffeemaschine, Wasserkocher, Obstschale
Welche weiteren Küchenmaschinen müssen in der Küche untergebracht werden? : Toaster, Handrührgerät
Was soll in der Küche außer den Standards untergebracht werden? : ALLE Vorräte, Geschirr komplett (nichts in Ess-/Wohnzimmer)
Welchen Stauraum gibt es sonst noch? : Geschirr/Gläserschrank im Wohn-/Esszimmer, Keller
Was/wie wird gekocht? (Alltagsküche, Menüs, Snacks usw) : Alltagsküche
Wie häufig wird gekocht? : (fast) täglich 1x warm
Wird alleine gekocht? Oder auch gemeinsam? Mit und für Gäste? : für die Familie
Was stört an der bisherigen Küche und was soll die neue Küche unbedingt können? Warum? : Stinkender Geschirrspüler , Standard-Herdplatten, Dunstabzugshaube ohne Wirkung, Ofen ohne Umluft.
Steht schon ein Küchenhersteller fest oder wird bevorzugt? : nein
Steht schon ein Gerätehersteller fest oder wird bevorzugt? : nein, aber Geschirrspüler NICHT von Bosch /Siemens
Preisvorstellung (Budget) : bis 10.000,-
 

Anhänge

  • Grundriss_Bestand_20120918_HF.pdf
    20,2 KB · Aufrufe: 296
  • 2012-09-16.KPL
    4,1 KB · Aufrufe: 213
  • 2012-09-16.POS
    2,7 KB · Aufrufe: 214
  • IC_Grundr.jpg
    IC_Grundr.jpg
    22,5 KB · Aufrufe: 327
  • IC_Iso.jpg
    IC_Iso.jpg
    15,1 KB · Aufrufe: 302
  • IC_Liste.jpg
    IC_Liste.jpg
    19 KB · Aufrufe: 288
AW: Kleine Küche im Altbau (ca. 7,5 m2)

Hallo Jenn,

tolle Thread-Eröffnung mit allen notwendigen Angaben und ein herzliches :welcome:

Nur eine Frage: Was ist ein "SW-Anschluss"?

Zur Dunstabzugshaube als Information: Wenn ihr einen Kaminofen plant braucht ihr zur Ablufthaube eine kontrollierte Raumlüftung. Dies bedeutet, dass sich das Fenster automatisch öffnet, sobald die DA eingeschaltet wird. Bitte nehmt mit euren Bezirksschornsteinfeger deswegen Kontakt auf.
 
AW: Kleine Küche im Altbau (ca. 7,5 m2)

Hallo Mela,

danke für das nette Feedback.

"SW" steht für Schmutzwasser.

Mit dem Bezirksschornsteinfeger habe ich schon gesprochen. Der hat grundsätzlich erstmal keine Einwände. Wir wollen aber noch mal miteinander sprechen, wenn es soweit ist.

LG

Jenn

Gesendet von meinem GT-I9300 mit Tapatalk 2
 
AW: Kleine Küche im Altbau (ca. 7,5 m2)

Bitte habe etwas Geduld, denn dein Grundriss hat es in sich.

Ich habe versucht zu schieben, bin aber noch zu keinem befriedendem Ergebnis gekommen.

Sinnvoll wäre es, wenn du den Alnogrundriss so anlegen könntest, dass das Esszimmer mit dargestellt wird. Ich kann dies leider nicht, da die Maße des Esszimmers fehlen.

Vielleicht hast du ja eine Planung im Kopf, wie du dir die Küche vorstellst.
Versuche doch einfach einmal, diese umzusetzen.
 
AW: Kleine Küche im Altbau (ca. 7,5 m2)

Hast Du schon mal so versucht: (im Uhrzeigersinn)

Herd vor dem Fenster auf Brüstungshöhe - an der Rückwand zwei Seitenschränke - an der gegenüberliegenden Wand Spüle (so wie im Grundriss)

Dabei wird es auf jeden cm ankommen - da diese Konfiguration in der Raumbreite eigendlich 250cm benötigt - wenn man grifflos oder einliegende Griffe wählt kommt man aber evt. auch so hin ... wenn man am Putz spart .. - es würde schon sehr knapp - da müsste man tricksen.
 
AW: Kleine Küche im Altbau (ca. 7,5 m2)

Ich habe einmal geschoben.

Wie variabel ist eigentlich der Heizkörper?

Bei der Planung des Küchenstudios habe ich den Eindruck, dass ihr den ersten Hochschrank nicht richtig öffnen könnt.

Über die Größe des Kochfelds kann ich euch nichts sagen, es kommt darauf an, wie aufwändig ihr kocht und außerdem auf die Größe der Töpfe.

Vorweg zähle ich dir einmal die Nachteile auf:
- keine hochgesetzte SpüMa
- kein Müll unter der Arbeitsfläche
- keinen hochgesetzten BO

Optimal wäre, wenn es eure Finanzen erlauben, dass ihr eine Deckenhaube nimmt.Dann wäre eine Ullaschrank in Oberschranktiefe möglich.

Nun zur Planung, planoben links beginnend:
17,5 cm Blende - evtl mit Klappscharnier für Handfefer oder Handtücher etc. wegen Heizung
SpüMa
60er Spüle mit 1 Becken
100er Auszug im Raster 1-1-2-2
tote Ecke
obendrüber:
Blende
100er OS
30er Regal
100er OS
Blende
Nischenrückwand nur zum Beispiel

planrechts:
60er Unterbauherd
40er Auszug 3-3 für Höheres
- Kochfeld linksbündig über beide gesetzt
Kühli

planunten:
Blende
100er Drehtürenschrank tiefenreduziert auf 30 cm
Blende
Regal für Holz gegengestellt
 

Anhänge

  • Gigglo_Mela_Draufsicht.jpg
    Gigglo_Mela_Draufsicht.jpg
    39 KB · Aufrufe: 282
  • Gigglo_Mela_Grundriss.JPG
    Gigglo_Mela_Grundriss.JPG
    39,4 KB · Aufrufe: 246
  • Gigglo_Mela_Herd.jpg
    Gigglo_Mela_Herd.jpg
    37,5 KB · Aufrufe: 509
  • Gigglo_Mela_Spüle.jpg
    Gigglo_Mela_Spüle.jpg
    41,5 KB · Aufrufe: 240
  • Gigglo_Mela_Theke.jpg
    Gigglo_Mela_Theke.jpg
    32,2 KB · Aufrufe: 250
  • Gigglo-Mela.POS
    6,1 KB · Aufrufe: 216
  • Gigglo-Mela.KPL
    4,1 KB · Aufrufe: 207
AW: Kleine Küche im Altbau (ca. 7,5 m2)

Hallo Mela,

wow, ich bin beeindruckt - so schnell eine so weit ausgearbeiteter Vorschlag. Danke!

Ich habe versucht im Alno -Planer das Esszimmer hinzuzufügen, klappt aber leider irgendwie nicht. Statt dessen anliegend der Grundriss ergänzt um Maße fürs Esszimmer.

Der Heizkörper in der Küche steht z.Zt. in der Tat ca. 5cm über, da er in einer Nische steht. Das soll im Zuge des Umbaus jedoch möglichst bereinigt werden: Nische dämmen und weniger tiefen HK, so dass es bündig wird. Ob klappt? Ist sicherlich mm-Arbeit :-).

Gruß, Jennifer
 

Anhänge

  • Grundriss_Bestand_mit_Esszimmer_HF.pdf
    24,6 KB · Aufrufe: 227
AW: Kleine Küche im Altbau (ca. 7,5 m2)

Ich ging halt vom Alno -Planer aus und dort stand beim Heizkörper 15 cm Tiefe.

Aber umso besser, so kannst du auch noch den Müll unter der Arbeitsplatte haben.
Ich füge es dir einmal als Bild bei.
 

Anhänge

  • Gigglo_Mela_Müll.jpg
    Gigglo_Mela_Müll.jpg
    33,2 KB · Aufrufe: 226
AW: Kleine Küche im Altbau (ca. 7,5 m2)

Ich habe mal Spüle/Kochfeld an die Wand planoben gesetzt. Da kann ja auch gut die Abluft rausgeführt werden. Rechts dann 2 Hochschränke und noch etwas Abstellplatz.

Zum Esszimmer hin dann eine richtige Halbinsel.

Im Einzelnen:

- 2 cm Blende
- 60er GSP
- 45er Spülenschrank, oberer tiefenreduzierter Auszug für Putzmittel etc., untere Auszug Gelber Sack/Papiermüll, großes Becken ohne Abtropfe
- 30er Bio/Restmüll unter der APL, unten Essig/Öl oder ähnliches
- 100er Auszugsunterschrank im Raster 1-2-3 wg. der Optik. Kochtöpfe, Küchenhelfer, Kochbesteck, höhere Maschinenteile, Thermoskannen usw.
- tote Ecke
- 40er Auszugsunterschrank insbesondere Gewürze und typische Kochvorräte wie Mehl, Zucker usw.
- 60er Hochschrank für Backofen , unten Drehtür mit Innenauszügen für Vorräte usw.
- Kühl/TK-Kombination.

Halbinsel:
- 50er übertiefer Auszugsunterschrank im Raster 1-1-2-2
- 80er übertiefer Auszugsunterschrank im Raster 1-1-2-2
von der Rückseite dann das Holzregal ... das muss dann vielleicht nicht in Lack ausgeführt sein :cool:

Ich würde die Halbinsel in einem Abstand von ca. 100 bis max. 110 cm zu Spülenzeile stellen. Dabei würde ich dran denken, die Fensterbank durch APL-Material zu ersetzen. Was man prüfen müßte, ob der Fensterflügel bei der Arbeitshöhe von 92 cm dann noch aufgeht. Die gemessene Brüstungshöhe ist sicherlich Unterkante Fensterbank - oder?

Den Esstisch habe ich mal mit 220x100 cm eingezeichnet.
 

Anhänge

  • kf_gigglo_20120921_kb_var1.kpl
    4,1 KB · Aufrufe: 210
  • kf_gigglo_20120921_kb_var1.POS
    12,2 KB · Aufrufe: 214
  • kf_gigglo_20120921_kb_var1_Ansicht1.jpg
    kf_gigglo_20120921_kb_var1_Ansicht1.jpg
    30 KB · Aufrufe: 230
  • kf_gigglo_20120921_kb_var1_Ansicht2.jpg
    kf_gigglo_20120921_kb_var1_Ansicht2.jpg
    48,3 KB · Aufrufe: 249
  • kf_gigglo_20120921_kb_var1_Ansicht3.jpg
    kf_gigglo_20120921_kb_var1_Ansicht3.jpg
    31,9 KB · Aufrufe: 242
  • kf_gigglo_20120921_kb_var1_Ansicht4.jpg
    kf_gigglo_20120921_kb_var1_Ansicht4.jpg
    41 KB · Aufrufe: 242
  • kf_gigglo_20120921_kb_var1_Ansicht5.jpg
    kf_gigglo_20120921_kb_var1_Ansicht5.jpg
    37,2 KB · Aufrufe: 228
  • kf_gigglo_20120921_kb_var1_Grundriss.jpg
    kf_gigglo_20120921_kb_var1_Grundriss.jpg
    17,3 KB · Aufrufe: 1.019
AW: Kleine Küche im Altbau (ca. 7,5 m2)

Hallo Mela, Vanessa und Kerstin,

vielen lieben Dank für Eure Entwürfe und Vorschläge. :2daumenhoch: Das ist ja echt ein riesige Hilfe hier. Wenn ich daran denke, als Jenn und ich damals vor 5 Jahren das Haus gekauft haben, waren wir nach 5 Besuchen in Küchenstudios noch längst nicht so weit wie jetzt in diesem Thread.

Leider hat eine Erkältung Jenn momentan fest im Griff. :sleep: Sie wird sich aber sofort wieder melden, sobald sie genesen ist.

@Kerstin: Jenn hat an so einen Entwurf auch schon gedacht, wobei sie den Tresen gedanklich auf die andere Seite des Wanddurchbruchs gesetzt hat. Dann wäre auf dem kleinen Wandstück links vom Fenster noch ein schmales Regal/Schrank möglich. Was haltet Ihr davon?

Viele liebe Grüße und ein schönes Wochenende

Ulf (Der Mann von Jenn)
 
AW: Kleine Küche im Altbau (ca. 7,5 m2)

Jenn wünsche ich
coolsmiley.de.01.11.0037.gif
!

Sollte der Tresen auf die rechte Seite des Wandurchbruchs, dann wäre aber diese Tiefe wegen des Kamins nicht möglich.

Mir wäre bei Kerstins Entwurf der Arbeitsplatz zwischen Spüle und Kochfeld zu gering.
 
AW: Kleine Küche im Altbau (ca. 7,5 m2)

Mela, ja, der Platz ist da relativ wenig. Deshalb hatte ich ja auch vorgeschlagen, die Halbinsel relativ nah ranzuziehen (max. 100 cm Zeilenabstand) und die Fensterbank dann mit APL durchzuführen. Vorteilhaft finde ich hier eben auch, dass man die Abluft direkt an dieser Wand nach außen führen kann.

Die Halbinsel auf der anderen Seite ... nee und das aus mehreren Gründen:
- sie steht zu weit von der hinteren Zeile weg
- sie steht zu nah am geplanten Kaminofen
- Der Weg von Flur in Küche muss immer um die Halbinsel rum
- Sachen aus dem Kühlschrank an den Esstisch immer um die Halbinsel herum
- Die Halbinsel kann nicht so tief werden

Und, welchen Platz hätte man gewonnen, wenn statt meiner tiefen Halbinsel mit den übertiefen Auszugsunterschränken dann links ein Schrank an der Wand steht? Insbesondere an gut nutzbarem und erreichbarem Arbeitsplatz würde es fehlen.
 
AW: Kleine Küche im Altbau (ca. 7,5 m2)

Hallo Kerstin,

kurze Zwischenfrage mal eben:

Welche Version des KPL von Alno nutzt Du? Jenn und ich haben hier die 0.99a. Beim Öffnen Deiner .kpl erscheint die Fehlermeldung "Planungsformat nicht mehr gültig!" aus. Die .kpl lässt sich zwar nach der Bestätigung von div. Fehlermeldungen öffnen, aber m.E. wird dann nicht mehr alles von Deinem Entwurf angezeigt.

@Mela: Habe Deine Genesungsgrüße ausgerichtet. :-)

Viele Grüße

Ulf

Gesendet von meinem GT-I9300 mit Tapatalk 2
 
AW: Kleine Küche im Altbau (ca. 7,5 m2)

Ich nutze aktuell den neuesten Alnoplaner von der Alno -Website. Und ja, der hat ein paar neue Fronten und APL-Materialien.
 
AW: Kleine Küche im Altbau (ca. 7,5 m2)

Hallo Kerstin, hallo zusammen!

*hust* - da bin ich wieder!
Vielen Dank für den schönen Entwurf! Wie Ulf bereits verraten hat, hatte ich eine ähnliche Aufteilung auch bereits im Sinn. Sie würde von der Lage der Zu-/Ableitungen auch super passen, da im Moment GSP und Spülbecken auch ca. an der Stelle sind. Wäre also weniger Umbau...
Mit der Halbinsel auf der linken Seite (Fenster) muss ich mich erst anfreunden, wenn auch Deine Argumente alle sehr schlüssig sind. Das "arbeitet" jetzt in mir
:read:
Die Tiefe der Halbinsel + Feuerholzregal würde ich nochmal überdenken - scheint mir zusammen etwas tief. Da steht dann irgendwann der HK des Esszimmers im Wege Wie tief ist denn "übertief"?.
Spontan möchte ich unser schönes Altbaufenster gerne "für sich" stehen lassen und nicht über APL an die Zeilen anbinden, aber - mal "arbeiten lassen".
Um das Argument von Mela aufzunehmen (wenig Arbeitsfläche zwischen Spüle und Kochefld): Könnte man Spüle und GSP auch tauschen, also Spüle nach links schieben? Oder wird das zu eng an der Wand?

Fragen über Fragen... :-)

Gruß, Jenn
 
AW: Kleine Küche im Altbau (ca. 7,5 m2)

Spüle mit GSP tauschen - drei Gründe sprechen dagegen: einerseits benötigt man an der Spüle Ellenbogenfreiheit, andererseits brauchst Du eine Seite für 'sauber' und eine für 'dreckig' und drittens steht der GSP besser am Zeilenanfang und nicht in der Mitte; in der Mitte ist er die 'perfekte' Stolperfalle und man muss beim Kochen um die offene Klappe drumrumtanzen.

Kerstins Planung ist (wie gewohnt :kiss:) schlüssig durchdacht.

Stelle doch mal Fotos von der jetztigen Situation ein - auch wie der Raum sonst möbliert ist, damit wir Deine Bedenken nachvollziehen können.
 
AW: Kleine Küche im Altbau (ca. 7,5 m2)

Hallo Nice-nofret,

habe mir soeben Deine fertiggestellte Küche angesehen und bin meganeidisch!!! Würde ich so übernehmen, wenn sie bei uns reinpassen würde ;-) Sehr, sehr gelungen! Großes Lob!

Aber nun zu unserem Sorgenkind:
Das mit der GSP-"Stolperfalle" mitten in einer Zeile hatten wir gar nicht bedacht. Was man so alles nicht bedenkt, wenn man keine Erfahrung in Küchenplanung hat... - aber darum sind wir ja hier :-)

Ich habe mal ein paar Fotos vom jetzigen Zustand eingestellt.
Man kann deutlich sehen, dass wir küchentechnisch noch in einem Provisorium (mit echt unschönen "Rummel-Ecken") leben, das nach Fertigstellung des Wanddurchbruch von der ehemals zweizeiligen Küche übrig geblieben ist. Die Tür zum früheren separaten Raum gibt es zwar noch (hinterm Kühlschrank), soll aber im Zuge der anstehenden Umgestaltung geschlossen werden. Die neuen Fliesen müssen leider runter - schade, aber es gibt soviel Dreckeinbrand, da ist nix mehr zu retten. Der Terrazzo-Boden soll bleiben und aufgearbeitet werde.

Gruß, Jennifer

P.S.
Ich hoffe die Fotos sind richtig gedreht . irgendwie wollte das hier nicht so, wei ich wohl wollte...???
 

Anhänge

  • Bestand_01.jpg
    Bestand_01.jpg
    40,2 KB · Aufrufe: 256
  • Bestand_03.jpg
    Bestand_03.jpg
    59,6 KB · Aufrufe: 270
  • Bestand_02.jpg
    Bestand_02.jpg
    47,3 KB · Aufrufe: 268
  • Bestand_04.jpg
    Bestand_04.jpg
    42,3 KB · Aufrufe: 321
  • Bestand_05.jpg
    Bestand_05.jpg
    38,1 KB · Aufrufe: 280
  • Bestand_06.jpg
    Bestand_06.jpg
    43,7 KB · Aufrufe: 247
AW: Kleine Küche im Altbau (ca. 7,5 m2)

Danke für die Fotos - jetzt kann ich mir Kerstins Lösung wunderbar in diesem Raum vorstellen. Die Insel auf der Fensterseite passt auch vom Ablauf und den Laufwegen her besser in den Raum *find*.
 
AW: Kleine Küche im Altbau (ca. 7,5 m2)

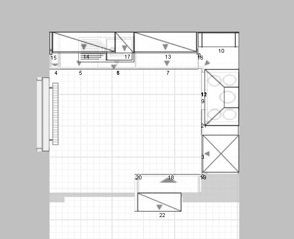
Nochmal der Grundriss:
92010d1348223192-kleine-kueche-im-neubau-ca-7-5-m2-kf_gigglo_20120921_kb_var1_grundriss.jpg


Das sind rund 105 bis 110 cm Inseltiefe .. eine wundervolle Tiefe zum Keksebacken, Nudelteig machen, Buffet anrichten usw. Ziel war es von Küchenseite Stauraum zu schaffen.

Von Esszimmerseite kann die Halbinsel gleich nach der Heizung beginnen. Da ja dort nur Regal auf der Rückseite geplant ist, stört das gar nicht.

Das Fenster an sich behält ja seine Wirkung, wenn man APL und Fensterbank aus einem Material wählt. Es entfallen halt die Schlitze, die automatisch entstehen, wenn sonst 2 Materialien aufeinandertreffen.
 
AW: Kleine Küche im Altbau (ca. 7,5 m2)

Kann mir das Hereinziehen der Halbinsel ins Esszimer nicht so richtig vorstellen, da der HK doch näher am Wanddurchbruch sitzt als im meinem Grundriss dargestellt, nämlich nur mit ca. 5 cm Abstand. War wohl im Bestandsplan gemogelt...:rolleyes:
Habe mal 2 Fotos angehängt von der Situation.
Demnach bietet sich eigentlich nur an, die Halbinsel max. bis in den Durchgang (also bündig Esszimmer-Wand) zu setzen. Dann bis zum Küchenfenster. Bleiben nur ca. 83 cm mögliche Tiefe (15 cm starke Wand Küche-Esszimmer + 68 cm. Trennwand bis Fenster).

Gruß, Jenn
 

Anhänge

  • Bestand_07.jpg
    Bestand_07.jpg
    36,7 KB · Aufrufe: 263
  • Bestand_08.jpg
    Bestand_08.jpg
    35,1 KB · Aufrufe: 231

Ähnliche Beiträge

Neff Hausgeräte Ballerina Küchen Blum Bewegungstechnologie Weibel - Intelligente Küchenlüftung

Neff Spezial

Blum Zonenplaner

Weibel Abluft-Tuning

Weibel Abluft-Tuning
Zurück
Oben