Kleine geschlossene Küche im alten Reihenhaus

Motte270902

Mitglied
Beiträge
7
Hallo zusammen,
bin ganz neu hier und könnte dringend Hilfe bei der Planung meiner neuen Einbauküche benötigen, bin noch sehr unsicher ob die aktuelle Planung auch gut ist.
Wir wohnen in dem Reihenhaus zur Miete, Wasseranschluss ist leider fix, aber der Strom ist noch komplett offen, haben einen Elektriker an der Hand und das OK vom Vermieter.
Sind eine Patchwork-Familie, in der Woche haben wir 3 Kinder am Wochenende 5 Kinder, daher benötigen wir halt so viel Stauraum wie möglich. Haben noch eine alte Mikrowelle in der Küche stehen die wir auch regelmäßig benötigen, aber die muss auch ersetzt werden.
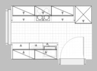
Ich habe versucht so gut ich konnte die Küche auszumessen und zu zeichnen. Die bisherige Küche wird nächsten Monat 33 Jahre alt und muss da Sie langsam auseinander fällt nun erneuert werden.
Ich bitte etwas um Nachsicht, hatte so meine Schwierigkeiten mit dem Alno Planer die Küche zu erstellen.
Die Küche die ich bei dem Alno Küchenplaner erstellt habe, hat uns so ein Küchenstudio auch erstellt und entspricht größtenteils auch unserer jetzigen Küche, nur Spüle und Geschirrspüler sind jetzt auf gleicher Höhe wie der Rest der Schränke und wurde jetzt höher geplant. Aktuell ist der Kühlschrank und der Apothekerschank getauscht. Achso die Küche wurde bei der Planung komplett mit weißer Nischenverkleidung ausgestattet außer beim Herd da wurde die Farbe der Arbeitsplatte hochgezogen, habe ich beim Küchenplaner irgendwie nicht hinbekommen, aber ich dachte, das ist für die Grundsätzliche Planung jetzt auch nicht ganz so wichtig
Backofen Herd Kombination und Geschirrspüler ist bereits vorhanden, bzw. wird in die neue Küche übernommen. Kühlschrank soll so Groß wie möglich sein beim Küchenstudio wurde daher ein Kühlschrank mit 177 höhe eingeplant, weil unser jetziger 122cm aus allen Nähten Platzt.
2 Tiefkühler und stehen im Keller.
Was sagt ihr zu der geplanten Küche? Ist meine erste eigene Einbauküche.
Ich hoffe ihr könnt alles erkennen auf den Plänen?
Wenn ich noch etwas vergessen habe, dann sagt bescheid und ich versuche es nachzureichen.

Vielen lieben Dank schon mal im voraus.

Checkliste zur Küchenplanung

Anzahl Personen im Haushalt: 7
Davon Kinder?: 5
Art des Gebäudes?: Bestandsbau, (kleinere) Umbauten möglich
Körpergrössen aller Hauptbenutzer (wegen Arbeitshöhe ) in cm: 170cm und 180cm
Brüstungshöhe des Fensters (in cm): 90
Fensterhöhe (in cm):
Raumhöhe in cm:
257
Heizung: Keine Heizung
Sanitäranschlüsse: fix
Ausführung Kühlgerät: Integriert im Hochschrank (60cm)
Kühlgerät Größe: bis 178 cm Höhe
Ausführung Tiefkühl (TK)-Gerät: Nicht erforderlich bzw. steht woanders
Dunstabzugshaube: keine
Backofen etc. hochgebaut?: Nein
Hochgebauter Geschirrspüler ?: Wenn möglich
Kochfeldart: Induktion
Kochfeldbreite ca. (in cm)?: 60
Spülenform: 1 Becken mit Abtropffläche
Geplante Heißgeräte: Backofen , Mikrowelle
Küchenstil: Modern
Sitzmöglichkeit in der Küche / im Küchenbereich: Keine
Sitzmöglichkeit: Für wieviel Personen?:
Sitzmöglichkeit: Tisch - wenn gesonderter Tisch oder offene Küche:
Gewünschte o. vorhandene Tischgröße:
Wofür soll der Sitzplatz in der Küche genutzt werden? Wie häufig?:
Welche Arbeitshöhe ist angedacht (in cm)?:
Was steht auf der Arbeitsplatte oder soll dort stehen?:
Kaffeemaschine, Wasserkocher, Toaster, Sonstiges (evtl. im Beitragstext benennen)
Welche weiteren Küchenmaschinen müssen in der Küche untergebracht werden?: Handrührgerät, Mixer, Pürierstab
Was soll in der Küche außer den Standards untergebracht werden?: ALLE Vorräte, Geschirr komplett (nichts in Ess-/Wohnzimmer)
Welchen Stauraum gibt es sonst noch?: Keller
Was/wie wird gekocht? (Alltagsküche, Menüs, Snacks usw): Alltagsküche zu Feierlichkeiten auch Menüs für Gäste
Wie häufig wird gekocht?: (fast) täglich 1x warm
Wird alleine gekocht? Oder auch gemeinsam? Mit und für Gäste?: Gekocht wird aus Platzgründen eigentlich immer alleine.
Gelegentlich für mehrere Gäste (Feiertage, Geburtstage usw.)

Was stört an der bisherigen Küche und was soll die neue Küche unbedingt können? Warum?:
Welche Mülltrennung soll in der Küche vorgehalten werden?:
Biomüll, Gelber Sack Müll, Restmüll
Steht schon ein Küchenhersteller fest oder wird bevorzugt?: bisher ist Nobilia geplant
Steht schon ein Gerätehersteller fest oder wird bevorzugt?:
Preisvorstellung (Budget):
bis 10.000,-
Ansicht Fenster.JPG

Ansicht Herdseite.JPG
Ansicht Spülenseite.JPG
 

Anhänge

  • Küche.pdf
    161,8 KB · Aufrufe: 406
  • Erdgeschoss.pdf
    707,8 KB · Aufrufe: 416
  • PLAN6.KPL
    3,9 KB · Aufrufe: 312
  • PLAN6.POS
    5,3 KB · Aufrufe: 290
Zuletzt bearbeitet:
Kompletter Grundriss des EG inkl Massen bitte einstellen .. im Luftleeren Raum klappt das mit dem Planen nicht.
 
Leider habe ich kein kompletten Grundriss, deswegen habe ich wie es in der Anleitung steht, eine unbemasste Handskizze vom EG gemacht und nur den Küchengrundriss bemaßt. Ich dachte es geht auch bei dem komplette Grundriss nur um evtl. Laufwege usw.
Die Vermieter erreiche ich die nächsten Wochen auch nicht da die im Urlaub sind.
Oder habe ich das jetzt falsch verstanden, dann tut mir das leid.

Viele Grüße

Antje
 
Hallo liebes Planungsteam,

ich hab noch etwas weiter mit dem Alno Küchenplaner rum probiert und noch ein paar Kleinigkeiten geändert.
Wäre für ein paar Tipps und Ratschläge dankbar.
Bin mir auch nicht Sicher ob das mit der U Form geplanten Küche wirklich Gut ist.
Habe schon im Forum gelesen das die Eckschränke viele Nachteile haben, jetzt bin ich noch verunsicherter. Bei zwei einzelnen Küchen Zeilen habe ich nur Sorge das die freie Arbeitsfläche nicht ausreichend ist, die Küche ist mit unter 6m² ist halt sehr klein.
Habe die bestehende geplante U-Küche ein klein wenig geändert, siehe die Bilder und Planung, vielleicht habt Ihr ja noch viel bessere Ideen, Vorschläge und Ratschläge. Was sagt ihr dazu?

Ansicht Übersicht.JPG
Ansicht Herd.JPG
Ansicht Spüle.JPG
 

Anhänge

  • PLAN1.KPL
    3,9 KB · Aufrufe: 309
  • PLAN1.POS
    7,1 KB · Aufrufe: 300
Bitte immer zu der Planung ein Grundriss Bild einfügen, dann sieht man die Abstände und Schrankbreiten besser.
 
Motte, du hast es schon richtig gemacht mit den Grundrisses, nur "sieht" mna sie nicht auf Anhieb. hier die Bilder, damit man gleich sieht, worum es sich handelt, wobei der Küchenplan vielleicht schlecht zu lesen ist.

Motte Küche.JPGMotte Grundriss.JPG

der Raum ist nur 193 cm breit, das ist zuwenig für eine U-Küche. Auch mit 2 Zeilen, ist der Zeilenabstand nur 73cm.

Wasser ist fix. Wo? bitte vermassen.
Keine DAH. Warum?
 
Zuletzt bearbeitet:
Entschuldigung, das mit den Wasseranschlüsse habe ich völlig vergessen.
Die Wasseranschlüsse sind direkt links neben der Tür.
Der Abstand zwischen Tür und Wasseranschlüsse beträgt 11 und 20cm sprich zwischen den Anschlüssen ist ein Abstand von 9cm. Die Wasseranschlüsse sind vom Boden aus auf einer Höhe von 55cm.
Reicht das so oder soll ich versuchen noch mal in der Zeichnung einzuzeichnen und dann nochmal neu einscannen?

Aktuell habe ich eine U-Küche in dieser Küche stehen, ich weiß also wie eng das ist.

Wegen der DAH, ich bin kein großer Fan von DAH, ich hatte Küchen mit und ohne DAH und für mich war das eher eine laute teure Lampe

Viele liebe Grüße

Antje
 
das mit dem Wasser recht. Es gibt sehr sehr gute DAHs, man hört kaum was und man hat keinen Fettfilm auf den Möbeln.

Hier mein Vorschlag, im 6er Raster, wenn es dann Budget erlaubt.
Planunten links beginnend

Blende
60er GSP
40er US 3-3 mit MUPL oben
60er US 3-3 mit Spüle
Sichtseite

Planoben links beginnend
Blende
80er US 1-1-2-2
60er US mit Kochfeld und BO
80er US 1-1-2-2
Sichtseite

80-60-80er OS, so hoch wie möglich bzw gewünscht, über Kochfeld 60cm breit.
Insgesamt bietet dir diese Variante mehr Stauraum, der auch gut zugänglich ist.

Persönlich wollte ich einen Solo KS, so hoch und so breit wie möglich.

Motte1.JPG Motte2.JPG Motte3.JPG
 

Anhänge

  • Motte_Evelin_PLAN1.KPL
    3,9 KB · Aufrufe: 290
  • Motte_Evelin_PLAN1.POS
    4,5 KB · Aufrufe: 286
Hallo Evelin,

wie ich deinen Plänen entnehme bist du lieber zu zwei Zweilen, statt der U-Zeile.
Das mit den 80er OS, gefällt mir sehr gut.
Das mit dem 40er US mit MUPL , kannte ich auch noch gar nicht, finde ich gut das man sich dann nicht mehr bücken muss. Aber was macht man dann mit dem Spülenschrankunterschrank?
Achso , ich mag nicht so gerne Solokühlschränke, möchte lieber ein Einbaukühlschrank.

Viele Grüße

Antje
 
in den unteren Spülenauszug kannst du zB den Gelben Sack unterbringen, ansonsten Getränke, Dosen, was auch immer in einen 3er Auszug sinnvoll passt. Unter dem MUPL dann Ölflaschen.
 
Vielen Dank für die schnelle Antwort, das mit dem MUPL werde ich mir überlegen auf so eine Idee wäre ich alleine nie gekommen.
Genauso werde ich mir mal durch den Kopf gehen lassen müssen, ob mir die Arbeitsfläche beim Zweiweiler ausreicht. Aber vielen Dank für dein Plan und die damit verbundene Arbeit.
Hab auf jeden Fall viele neue Idenn und Anregungen bekommen.

Viele Grüße Antje
 
Evelins Planung ist in meinen Augen die einzig mögliche:clap:

Arbeitsfläche wird in dieser Miniküche sogar mehr, nur die Abstellfläche in den Ecken wird geringer - da muss man halt konsequenter alles verräumen. Aber der Stauraum vergrössert sich ungemein und vor allem ist er mit breiten Auszügen besser nutzbar.

Ich plädiere bei der Anzahl der Familienmitglieder auch für einen Stand-Alone-KS, hat einfach deutlich mehr Volumen.
 
@Bärbel123

tja, ich finde die Einbau KS auch zu klein für einen grossen Haushalt. Mir wäre es wurscht, wie der aussieht, Hauptsache GROSS.
 
@Evelin :2daumenhoch: GROSS

auch der Verzicht auf die Abtropfe bringt Arbeitsfläche und natürlich die Eliminierung des unpraktischen Apothekers, auch an die Oberschränke kommt man viel besser ran, wenn da nicht 2 Ecken im Weg stehen und die Mikro als Einbaugerät in einen Oberschrank oder ein Regal hierfür vorsehen, das schafft auch schon wieder viel Arbeitsfläche (und man muss nicht um eine Mikro auf der APL rumputzen - würde mich ungemein nerven)
 
Evelin
:top:
Warum nicht eine BO mit Mikrowellenfunktion?

Ich würde dir auch eine gute DA empfehlen. Seit ich eine Gutmann Llano32 Umluft habe, ist der Fettfilm auf den Schränken verschwunden.
 
Vielen Dank für Eure tollen Ideen!

@Evelin
Also eine Mikrowelle mit Dunstabzugshaube als Kombination kannte ich noch gar nicht!
Bei so einer Kombination würde ich mir das mir einer Dunstabzugshaube vielleicht doch noch mal anders überlegen. ;-)
Das mit den Hängeschrank vorm Fester ist kein Problem, da ich es jetzt auch nicht komplett öffnen kann und es Super auch von außen putzen kann.
Aktuell auch besser von außen als von Innen wegen den Eckschränken. :rolleyes:

Viele Grüße Antje
 
@Motte270902 ich würde dir auch zum 2-Zeiler raten. Die Unterschränke im U bieten einfach nicht vergleichbar viel Stauraum.

Außerdem unbedingt ein 6-rasteriger Hersteller, das bietet Nobilia aber erst ab einer Arbeitshöhe , die für dich wohl zu hoch ist.

* 6 Raster - was heißt das? *

Dann würde ich die Fensterbank mit einbinden, also mit ca. 5 bis 6 cm überstehender APL bedecken. Dort schaffst du dir dann auch noch mal ca. 25 cm Abstelltiefe, zumal du das Fenster eh von außen putzt.

Apotheker rausschmeißen:
Zum Apothekerschrank :
full



Und, dann ganz ernsthaft überlegen, eure aktuelle Kochfeld/Backofenkombination zu ersetzen. Erstens finde ich den Backofen bei einem Zeilenabstand von 73 cm unter der APL nicht gut zu bedienen, zweitens gibt es Backöfen, die die Mikrowelle integriert haben, z. B. von Siemens :
Einbau-Backöfen mit Mikrowelle

Dann kann man den Schrank, den ich über dem Kochfeld erhöht geplant habe, auch später mal mit einer DAH ausstatten, was ich schon empfehlen würde. Oder ihn auch ganz weglassen ;-) und damit kein Fensterproblem mehr haben.

Zeile Planoben:
  • Kühlschrank
  • Backofenhochschrank, in den Auszügen darunter Vorräte, evtl. statt 1-1-2-2 lieber 2-2-2 sollte man prüfen, es gibt aber auch viel kleines etc und die Schubladen könnten auch für Gewürze etc. genutzt werden. Über dem Backofen dann eher Bräter, Thermoskannen, Utensilienkörbe für das einfache Herausnehmen mit Teilen, die man seltener braucht.
  • 80er Unterschrank Besteck, Küchenhelfer, Folien, Geschirr, Tupper etc. Alles Sachen, wo auch mal eine zweite Person schnell ran kann, wenn man gerade kocht. Außerdem hier Abstellplatz Kaffeemaschine/Toaster sofern der wirklich ständig auf der APL stehen muss und nicht vielleicht lieber im Hängeschrank untergebracht wird und bei Bedarf rausgeholt wird
  • 80er Unterschrank mit Kochfeld mittig, hier in erster Schublade Kochbesteck, zweite Schublade Pfannen, Deckel etc., dann Töpfe, Auflaufformen, etc.
  • Im Hängeschrank neben dem Backofen Gläser/Tassen etc. So ist auch die GSP praktisch auszuräumen.
Zeile planunten:
  • Abschlußwange
  • 60er Spülenschrank mit einer Spüle wie der BLANCO ELON XL 6 S | BLANCO .. sehr praktisch. Im oberen Auszug küchentypische Putzmittel, im unteren Auszug normaler Stauraum für höhere Sachen
  • 40er * MUPL *, da paßt oben 2x8l für Bio und Restmüll und 1x17 l für Gelber Sack Müll, untendrunter dann Essig/Öl etc.
  • 60er GSP
  • Blende
  • und 2x80er Hängeschränke.
Dringend solltest du eine explizite * Stauraumplanung * machen.
 

Anhänge

  • Motte270902_20160521_kb1-alt.POS
    7,1 KB · Aufrufe: 294
  • Motte270902_20160521_kb1-alt.KPL
    4,1 KB · Aufrufe: 283
  • Motte270902_20160521_kb1-alt_Grundriss.jpg
    Motte270902_20160521_kb1-alt_Grundriss.jpg
    28,2 KB · Aufrufe: 399
  • Motte270902_20160521_kb1-alt_Ansicht5.jpg
    Motte270902_20160521_kb1-alt_Ansicht5.jpg
    26,4 KB · Aufrufe: 407
  • Motte270902_20160521_kb1-alt_Ansicht4.jpg
    Motte270902_20160521_kb1-alt_Ansicht4.jpg
    21,7 KB · Aufrufe: 394
  • Motte270902_20160521_kb1-alt_Ansicht3.jpg
    Motte270902_20160521_kb1-alt_Ansicht3.jpg
    28,3 KB · Aufrufe: 420
  • Motte270902_20160521_kb1-alt_Ansicht2.jpg
    Motte270902_20160521_kb1-alt_Ansicht2.jpg
    25,5 KB · Aufrufe: 1.839
  • Motte270902_20160521_kb1-alt_Ansicht1.jpg
    Motte270902_20160521_kb1-alt_Ansicht1.jpg
    19,1 KB · Aufrufe: 391

Ähnliche Beiträge

Neff Hausgeräte Ballerina Küchen Blum Bewegungstechnologie Weibel - Intelligente Küchenlüftung

Neff Spezial

Blum Zonenplaner

Weibel Abluft-Tuning

Weibel Abluft-Tuning
Zurück
Oben