memari
Mitglied
- Beiträge
- 29
360 kurzes L mit vielen Geräten in US
Hi liebes Forum,
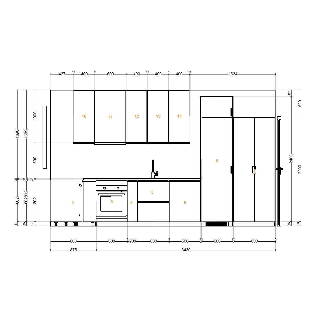
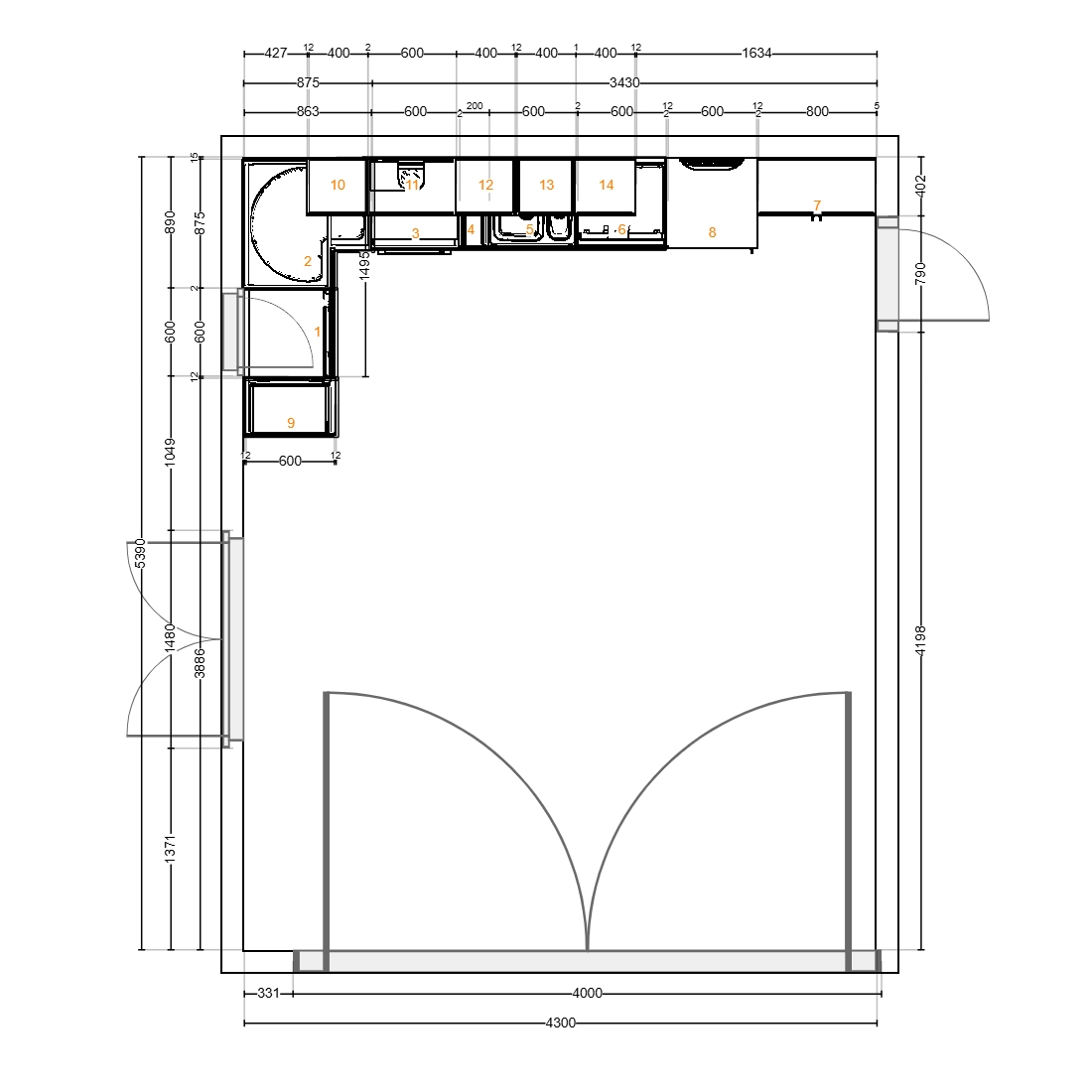
ich habe einen 4,30 x 5,40 m großen Raum, geplant für WZ mit L-Sofa 2,50 m Breite maxinal, mit L-Küche über kurzes Eck und angesetztem Tisch für 6 Personen. Die aktuelle Küchenplanung habe ich im IKEA Planer gemacht, weil es hier am einfachsten für mich ging. PDF mit Ansichten und Grundriss ist angehängt.
Optisch soll der Raum warm wirken, Richtung Latte Macchiato, taupe oä, im Forum habe ich den Ton Mohair von Leicht gesehen. Ich stelle mir eine Mischung US in hellem Holzton wie Eiche hell, OS in grau-beigem Creme-Ton und AP in grauem Terazzo "Ceppo di gre" sehr schön vor.
Ein grauer Fliesenboden liegt bereits. Ein Küchenhersteller steht nicht fest, die Küche wird in Kroatien geplant und montiert.
Mit Hilfe dieses Forum will ich alle unbedachten Details klären und die Planung verbessern. Das wäre dann meine Basis für die Küchenstudios vor Ort. Ich bin auch offen für IKEA Korpusse mit ggf. anderen Fronten.
An dem kurzen L-Schenkel am Fenster soll ein tieferer Esstisch angesetzt werden, der gleichzeitig als erweiterte Arbeitsfläche dient. Höhe ca. 72/73 cm, nicht ganz Standard 74/75 cm, für 6 Personen: 3 außen beim Sofa, 2 innen und 1 Platz an der Stirn.
Dieser AP-Tisch soll daher in derselben Optik/Material sein wie die AP. AP nicht in Holz, kein Laminat , kein teurer Marmor, sondern etwas widerstandsfähiges - Granit? Dekton ? Porzellan? Kunststoff? in Terazzo "Ceppo di gre"-Optik, falls es so etwas gibt. Bin hier völlig überfordert und hoffe auf euren Rat.
Arbeitshöhe max 88-90cm. Ich hatte bei meiner alten Küche IKEA Metod Korpusse mit separat gekauften Füßen, die ich maximal heruntergedreht habe, das ging gut für meine Größe von 1,55m.
An der "Ansetzfläche" am Fenster soll ein ca 40 cm tiefer Schrank als offenes Regal oder mit Auszügen Richtung Sofa (also um 90° weg von Küche gedreht) in 60 cm Breite genau zur Tiefe der anderen US passen. Hoffe, das ist verständlich erklärt.
Schwierig ist der Stauraum in den Unterschränken, ich habe keine Schubladen für Besteck oder MUPL . Es liegt nahe, den BO hochzusetzen für Besteckschubladen unter dem Kochfeld. Aber wo? Über dem GS, als Dampf-BO, da dieser niedriger ist? GS sollte auch am liebsten hochgesetzt sein wegen Ergonomie. Seht ihr da eine Möglichkeit?
GS hochgesetzt engt den Arbeitsradius ein an der Spüle und ermöglicht keine Abtropffläche. Ich weiß nicht, ob da so tragisch ist, wenn direkt neben der Spüle der Hochschrank kommt. Ich würde es gerne mit einem Hochschrank für GS lösen und auf die Abtropffläche verzichten.
BO als Dampf-BO ohne Wasseranschluss (meiner ist von Ikea mit Einfüllöffnung). Mikrowelle verzichtbar, falls sich kein Platz findet.
DAH über Abluft möglich, soll versteckt sein, also Unterbau (?), keine Kopffrei-Haube.
Großer Kühlschrank, extra US für Gefrierschrank. Dieser ist aktuell am schmalen Fenster eingeplant. Wird wohl 1-2x tägl. geöffnet für Eiswürfel oder Essensentnahme. Wird während des Essens wegen Stuhls davor nicht zugänglich sein, aber hier gehe ich davon aus, dass das Eis oä vorher rausgeholt ist.
Anschlüsse für Strom und Wasser habe ich leider nicht vermaßt, dazu fehlen mit die ganz genauen Abmaße, da ich nicht vor Ort in der Wohnung bin. Die Anschlüsse werden aktuell aber hinter bzw. neben/unterhalb die entsprechenden Geräte versetzt.
Eine Idee war, den Kühlschrank an die lange Wand (ohne Fenster) zu stellen, an der der TV hängen wird, allerdings scheint dann ein Turm den Laufweg Richtung Sofa/Balkon zu verengen. Ich kann mir auch vorstellen, einen niedrigeren Schrank zuerst aufzustellen und daneben den KS: den Gefrierschrank zuerst und dann KS. Dann könnte ich 2x 60cm aus der L-Form lösen und habe vielleicht mehr Spielraum für hochgesetzten GS und Abtropffläche?
KS muss groß sein, da diese Wohnung in einem Ferienort in Kroatien ist und während der Hauptnutzungszeit im Sommer praktisch alles und sehr viel gekühlt wird. Weitere Abstellräume, Keller oä gibt es nicht.
Gibt es Anregungen/Denkanstöße, wie ich mehr Stauraum rausholen kann? Oder ob es Sinn macht, 2 Elemente an die andere Wand zu stellen? Da würde dann idealerweise eine TV-Wand mit ggf. Lowboard weitergeführt werden.
In der Planung sind die Oberschränke nicht bündig über die ganze Breite, da ich nicht weiß, wieviel Abstand / Blenden ich einbauen soll, um alle OS montieren zu können und die Türen gut zu öffnen. Der Ikea-Planer hat vorher gemeckert, dass Abstände nicht berücksichtigt sind, daher habe ich 2 OS links und rechts gelöscht. Am liebsten ist mir eine komplett geschlossene Küchenfront mit versteckten Geräten und OS bis zur Decke.
Sollten noch Infos für eure Überlegungen fehlen, bitte Bescheid geben.
Vielen Dank im Voraus für eure Rückmeldungen!
Checkliste zur Kuechenplanung
Personenkriterien und Ergonomie
Anzahl Personen im Haushalt: 6
Davon Kinder: 2
Körpergrößen aller Hauptbenutzer in cm (wegen Arbeitshoehe): 160
Welche Arbeitshöhe ist angedacht (in cm)?: 90
Gebäudekriterien
Art des Gebäudes: Neu-/Umbau > Planänderungen nicht möglich
Bruestungshöhe des Fensters (in cm): 110
Fensterhöhe (in cm):
Raumhöhe in cm: 260
Heizung: Keine Heizung
Sanitäranschlüsse: fix (Bitte Position im Grundriss vermaßt angeben)
Einbaugerätekriterien
Ausführung Kühlgerät: Integriert im Hochschrank (60cm)
Einbaukühlgerät Größe: 178cm
Ausführung Tiefkühl (TK)-Gerät: Eigenständiges Gerät bis 72 cm Höhe
Dunstabzugshaube: Abluft
Hochgebauter Backofen : wenn möglich
Geplante Heißgeräte: Backofen , Dampfbackofen (DGC) ohne Wasseranschluß
Hochgebauter Geschirrspüler : wenn möglich
Art des Kochfeldes: Induktionskochfeld
Kochfeldbreite (ca. in cm): 60
Sitzmöglichkeiten
Sitzmöglichkeit in der Küche / im Küchenbereich: Arbeitsplatte in Tischhöhe
Sitzmöglichkeit: Für wieviel Personen?: Für 6 Personen
Sitzmöglichkeit: Tisch - wenn gesonderter Tisch oder offene Küche: N. a.
Gewünschte oder vorhandene Tischgröße: max. 90 cm breit, 200 cm lang
Wofür soll der Sitzplatz in der Küche genutzt werden und wie häufig: tägliche Nutzung für alle Mahlzeiten
Stauraum-Planung
Was steht auf der Arbeitsplatte oder soll dort stehen?: Kaffeevollautomat, Wasserkocher, Allesschneider, Toaster, Obstschale
Welche weiteren Küchenmaschinen müssen in der Küche untergebracht werden: Handrührgerät, Mixer, Pürierstab
Was soll in der Küche außer den Standards untergebracht werden: ALLE Vorräte, Geschirr komplett (nichts in Ess-/Wohnzimmer)
Welchen Stauraum gibt es sonst noch: N. a.
Kochgewohnheiten
Was/wie wird gekocht? (Alltagsküche, Menüs, Snacks usw): 3x täglich voll gekocht
Wie häufig wird gekocht: (fast) täglich 2x warm
Wird alleine gekocht? Oder auch gemeinsam? Mit und für Gäste?: 2 Personen max. kochen gleichzeitig
Spülen und Müll
Spülenform: 1 Becken ohne Abtropffläche
Welche Mülltrennung soll in der Küche vorgehalten werden: Bio/Restmüll ungetrennt
Sonstiges
Steht schon ein Küchenhersteller fest oder wird bevorzugt: nein
Steht schon ein Gerätehersteller fest oder wird bevorzugt: nein
Küchenstil: Grifflose Küche
Was stört an der bisherigen Küche und was soll die neue Küche unbedingt können? Warum?: noch keine Küche eingebaut, Raum ist leer
Preisvorstellung (Budget): 10.000
Angehängte Dateien
Anhänge





