maalaa
Mitglied
- Beiträge
- 17
hallo an alle lesewilligen,
ich habe einzwei planungen und einzwei angebote und kann doch keine endgültige endscheidung treffen weil mich nichts 100%ig überzeugt. ich würde mich also ganz doll freuen wenn ich hier tipps und anregungen bekommen kann!!
die details:
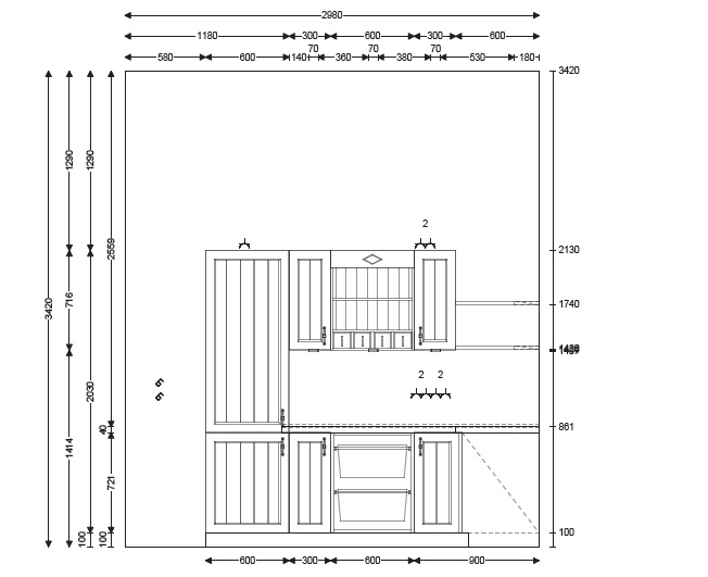
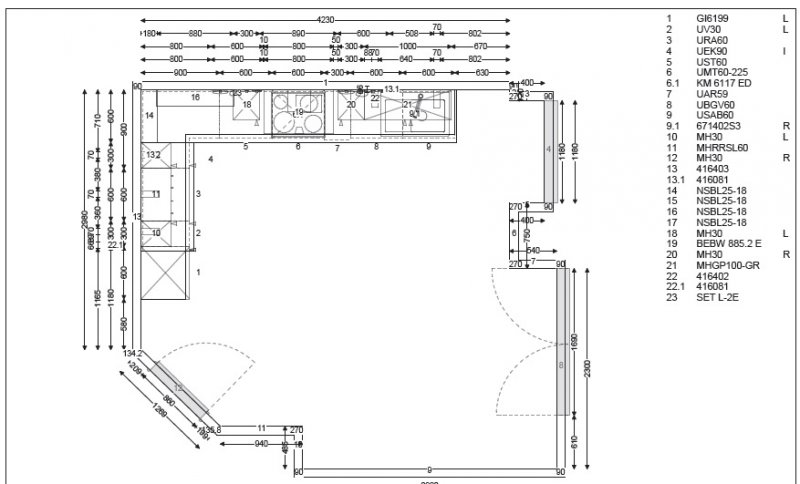
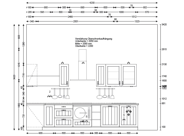
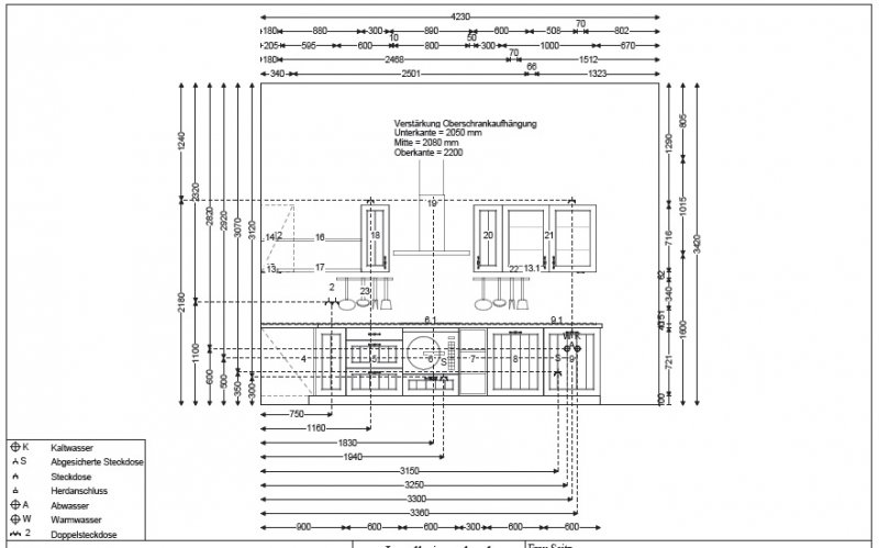
die planung wurde erstellt für eine sachsenküche, modell diana. das dazugehörige angebot wurde auf ca. 14.000 bemessen, geräte (kühl/gefrierkombi, dampfgarer, iduktion-herd, geschirrspüler alle von miele + silverline abzughaube)
für ziemlich genau die gleiche planung habe ich nochmal ein angebot (von einem anderen küchenstudio ) mit einer schüller -küche modell breda von knapp 10.000 €. mit massivholzarbeitsplatte und buntem geräte-mix (kühl/gefrier constructa , damfgarer/induktion miele, geschirr siemens ).
eigentlich hatte ich ein gutes gefühl bei diesem küchenstudio, bis mein berater am ende etwas ungeduldig als ich nicht sofort zuschlagen wollte.
eigentlich würde ich gerne noch ein bisschen herumplanen, weil ich noch nicht ganz überzeugt bin vom gesamtkonzept. ich frage mich zb ob die konstrktion an der kürzeren wand nicht zu "wuchtig" wirkt, wenn die andere wand relativ offen gestaltet ist.
generell bin ich kein fan von zuviel oberschrank und möchte die küche möglichst offen gestalten, daher die regale.
jetzt habe ich aber irgendwie das gefühl dass ich beide küchenstudios schon ausgereizt habe und wir irgendwie an dieser planung festhängen..
die ich im übrigen aber gar nicht so schlecht finde und das schüller-angebot klingt für mich erstmal machbar.. was ist euere fachkundige meinung??
der erste berater war sehr geduldig mit mir, leider arbeiten die nicht mit schüller und ausgerechnet da habe ich bisher den besten eindruck..
ist denn der preisunterschied realistisch zw. schüller und sachsenküchen (klar, schwer zu sagen ohne die genauen details, aber so grundsätzlich)?
jemand nette ideen zur planung selbst bzw. wie ich hier vorwärtskomme ? evtl. noch ein drittes studio zu rate ziehen??
vielen dank für die aufmerksamkeit
freue mich sehr über kommentare!!
Checkliste zur Küchenplanung von maalaa
Anzahl Personen im Haushalt : 3
Davon Kinder? : 1
Körpergrössen aller Hauptbenutzer (wegen Arbeitshöhe ) in cm : 160
Art des Gebäudes? : Neu-/Umbau, Planänderungen nicht möglich
Brüstungshöhe des Fensters (in cm) : 00
Fensterhöhe (in cm) :
Raumhöhe in cm: : 400
Heizung : Fussbodenheizung
Sanitäranschlüsse : fix
Ausführung Kühlgerät? : Integriert im Hochschrank (60cm)
Kühlgerät Größe : bis 175 cm Höhe
Ausführung Tiefkühl (TK)-Gerät : Im Kühlschrank ab 3 Schubladen unten
Dunstabzugshaube? : Umluft
Hochgebauter Backofen ? : Nein
Hochgebauter Geschirrspüler ? : nein
Kochfeldart? : Induktion
Kochfeldbreite ca. (in cm)? : 60
Spülenform: : 1,5 Becken mit Abtropffläche
Weitere geplante Heißgeräte : Dampfgarer ohne Wasseranschluß
Küchenstil? : Landhaus
Sitzmöglichkeit in der Küche / im Küchenbereich als : Gesonderter Tisch
Sitzmöglichkeit: Für wieviel Personen? : für 4 Personen
Sitzmöglichkeit: Tisch - wenn gesonderter Tisch oder offene Küche : Wird nach Bedarf neu gekauft
Gewünschte o. vorhandene Tischgröße : 200
Wofür soll der Sitzplatz in der Küche genutzt werden? Wie häufig? : täglich als essplatz
Welche Arbeitshöhe ist angedacht (in cm)? : 86
Was steht auf der Arbeitsplatte oder soll dort stehen? : Kaffeemaschine, Wasserkocher, Toaster, Brotbehälter
Welche weiteren Küchenmaschinen müssen in der Küche untergebracht werden? :
Was soll in der Küche außer den Standards untergebracht werden? : Geschirr komplett (nichts in Ess-/Wohnzimmer)
Welchen Stauraum gibt es sonst noch? : Keller
Was/wie wird gekocht? (Alltagsküche, Menüs, Snacks usw) : alltagsküche
Wie häufig wird gekocht? : (fast) täglich 2x warm
Wird alleine gekocht? Oder auch gemeinsam? Mit und für Gäste? :
Was stört an der bisherigen Küche und was soll die neue Küche unbedingt können? Warum? : platz zum arbeiten, möglichst offene gestaltung
Steht schon ein Küchenhersteller fest oder wird bevorzugt? : bevorzugt schueller
Steht schon ein Gerätehersteller fest oder wird bevorzugt? :
Preisvorstellung (Budget) : bis 15.000,-
ich habe einzwei planungen und einzwei angebote und kann doch keine endgültige endscheidung treffen weil mich nichts 100%ig überzeugt. ich würde mich also ganz doll freuen wenn ich hier tipps und anregungen bekommen kann!!
die details:
die planung wurde erstellt für eine sachsenküche, modell diana. das dazugehörige angebot wurde auf ca. 14.000 bemessen, geräte (kühl/gefrierkombi, dampfgarer, iduktion-herd, geschirrspüler alle von miele + silverline abzughaube)
für ziemlich genau die gleiche planung habe ich nochmal ein angebot (von einem anderen küchenstudio ) mit einer schüller -küche modell breda von knapp 10.000 €. mit massivholzarbeitsplatte und buntem geräte-mix (kühl/gefrier constructa , damfgarer/induktion miele, geschirr siemens ).
eigentlich hatte ich ein gutes gefühl bei diesem küchenstudio, bis mein berater am ende etwas ungeduldig als ich nicht sofort zuschlagen wollte.
eigentlich würde ich gerne noch ein bisschen herumplanen, weil ich noch nicht ganz überzeugt bin vom gesamtkonzept. ich frage mich zb ob die konstrktion an der kürzeren wand nicht zu "wuchtig" wirkt, wenn die andere wand relativ offen gestaltet ist.
generell bin ich kein fan von zuviel oberschrank und möchte die küche möglichst offen gestalten, daher die regale.
jetzt habe ich aber irgendwie das gefühl dass ich beide küchenstudios schon ausgereizt habe und wir irgendwie an dieser planung festhängen..
die ich im übrigen aber gar nicht so schlecht finde und das schüller-angebot klingt für mich erstmal machbar.. was ist euere fachkundige meinung??
der erste berater war sehr geduldig mit mir, leider arbeiten die nicht mit schüller und ausgerechnet da habe ich bisher den besten eindruck..
ist denn der preisunterschied realistisch zw. schüller und sachsenküchen (klar, schwer zu sagen ohne die genauen details, aber so grundsätzlich)?
jemand nette ideen zur planung selbst bzw. wie ich hier vorwärtskomme ? evtl. noch ein drittes studio zu rate ziehen??
vielen dank für die aufmerksamkeit
freue mich sehr über kommentare!!
Checkliste zur Küchenplanung von maalaa
Anzahl Personen im Haushalt : 3
Davon Kinder? : 1
Körpergrössen aller Hauptbenutzer (wegen Arbeitshöhe ) in cm : 160
Art des Gebäudes? : Neu-/Umbau, Planänderungen nicht möglich
Brüstungshöhe des Fensters (in cm) : 00
Fensterhöhe (in cm) :
Raumhöhe in cm: : 400
Heizung : Fussbodenheizung
Sanitäranschlüsse : fix
Ausführung Kühlgerät? : Integriert im Hochschrank (60cm)
Kühlgerät Größe : bis 175 cm Höhe
Ausführung Tiefkühl (TK)-Gerät : Im Kühlschrank ab 3 Schubladen unten
Dunstabzugshaube? : Umluft
Hochgebauter Backofen ? : Nein
Hochgebauter Geschirrspüler ? : nein
Kochfeldart? : Induktion
Kochfeldbreite ca. (in cm)? : 60
Spülenform: : 1,5 Becken mit Abtropffläche
Weitere geplante Heißgeräte : Dampfgarer ohne Wasseranschluß
Küchenstil? : Landhaus
Sitzmöglichkeit in der Küche / im Küchenbereich als : Gesonderter Tisch
Sitzmöglichkeit: Für wieviel Personen? : für 4 Personen
Sitzmöglichkeit: Tisch - wenn gesonderter Tisch oder offene Küche : Wird nach Bedarf neu gekauft
Gewünschte o. vorhandene Tischgröße : 200
Wofür soll der Sitzplatz in der Küche genutzt werden? Wie häufig? : täglich als essplatz
Welche Arbeitshöhe ist angedacht (in cm)? : 86
Was steht auf der Arbeitsplatte oder soll dort stehen? : Kaffeemaschine, Wasserkocher, Toaster, Brotbehälter
Welche weiteren Küchenmaschinen müssen in der Küche untergebracht werden? :
Was soll in der Küche außer den Standards untergebracht werden? : Geschirr komplett (nichts in Ess-/Wohnzimmer)
Welchen Stauraum gibt es sonst noch? : Keller
Was/wie wird gekocht? (Alltagsküche, Menüs, Snacks usw) : alltagsküche
Wie häufig wird gekocht? : (fast) täglich 2x warm
Wird alleine gekocht? Oder auch gemeinsam? Mit und für Gäste? :
Was stört an der bisherigen Küche und was soll die neue Küche unbedingt können? Warum? : platz zum arbeiten, möglichst offene gestaltung
Steht schon ein Küchenhersteller fest oder wird bevorzugt? : bevorzugt schueller
Steht schon ein Gerätehersteller fest oder wird bevorzugt? :
Preisvorstellung (Budget) : bis 15.000,-
Anhänge
Zuletzt bearbeitet:













